賃貸アパート
レオパレスVOYAGEの賃貸物件情報(1K/2階)
| 家賃 | 管理費等 | 敷金 | 礼金 | 間取り | 専有面積 |
|---|---|---|---|---|---|
| 4.6万円 | 4,500円 | なし | なし | 1K | 26.08m2 |
入居決定でお祝い金最大100,000円
Point
まずはお問い合わせ!
不動産会社は街のプロ、あなたに合った物件がきっと見つかります。
提供:ハウスコム静岡株式会社 静岡北店

詳細情報 レオパレスVOYAGE
物件紹介
このお部屋は2階以上に位置しているので、通行人や周囲の住人からの視線が気になりにくく、防犯面でも安心。インターホンにはTVモニタもついているため、相手の顔を確認してから来客対応することができます。
バス・トイレ別の仕様で、のんびりお風呂タイムも楽しめます。
通信設備面では、インターネット接続が可能です(別途工事、契約料が必要な場合あり)。
共用部には宅配ボックスが設定されているので、不在の時にも荷物を受け取ることができます。
コンビニまで徒歩9分の場所にあり、日用品や食料品のお買い物にも便利です。
バス・トイレ別の仕様で、のんびりお風呂タイムも楽しめます。
通信設備面では、インターネット接続が可能です(別途工事、契約料が必要な場合あり)。
共用部には宅配ボックスが設定されているので、不在の時にも荷物を受け取ることができます。
コンビニまで徒歩9分の場所にあり、日用品や食料品のお買い物にも便利です。
お金・契約の情報
※「-」と表示されているものは、実際は料金が発生するものもございます。詳細はお問い合わせください。
| 家賃 | 4.6万円 | 管理費・共益費 | 4,500円 |
|---|---|---|---|
| 敷金 | なし | 礼金 | なし |
| 入居決定でお祝い金最大100,000円 | |||
| 保証金 | - | 償却・敷引 | - |
| 住宅保険料 | 1円 | 更新料 | - |
| その他費用 | 抗菌施工(任意):2.376万円 | ||
| 保証会社利用 | 必須 | 保証会社名 | - |
| 保証会社費用 | - | 保証会社備考 | 保証料:52190円(契約内容により100〜120%で変動有)※記載金額は120%の場合 |
| 契約形態 | - | 契約期間 | - |
| 入居・引渡期間 | 即時 | 現況 | - |
| 契約備考 | 鍵交換費10450円、抗菌施工(任意)18040円から23760円(税込)/環境維持費550円/月、更新手数料16500円/2年(税込)/基本清掃料:34100円(税込) 月額(環境維持費 550円) 鍵交換費用:16500 室内清掃費用:41800 その他設備/条件:室内洗濯機置き場 | ||
部屋の情報
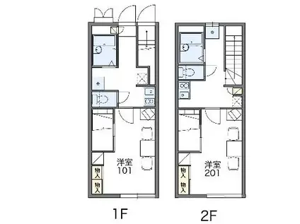
| 間取り | 1K | 専有面積 | 26.08m2 |
|---|---|---|---|
| 所在階 / 向き | 2階 / - | バルコニー面積 | - |
| 水道 / ガス | - | ||
| 設備 | バス・トイレ別、テレビドアホン、宅配ボックス、光ファイバー対応、エアコン、家具家電付き | ||
| 当社物件ID | 3251831 | ||
建物の情報
| 建物名 | レオパレスVOYAGE | ||
|---|---|---|---|
| 所在地 | 静岡県静岡市清水区八木間町 | ||
| 交通 | 東海道本線 興津駅 バス乗車時間:4分 興津ラセン前バス停で下車 徒歩8分 | ||
| 階数 | 2階建 | 総戸数 | 18戸 |
| 築年月 | 2005年02月 / 築22年 | エレベーター | - |
| 駐車場 | 空有 4,950円/月 | バイク置き場 | - |
| 駐輪場 | - | 管理人/管理会社 | - |
| 周辺環境 | コンビニ 徒歩9分(661m) その他 ドラッグストア その他 公園 その他 銀行 その他 * | ||
| 建物種別 | アパート | 建物構造 | 木造 |
この部屋の取扱い不動産会社
| 会社名 | ハウスコム静岡株式会社 静岡店 | ||
|---|---|---|---|
| 所在地 | 静岡県静岡市駿河区10-5地建南町ビル1階 | 交通 | - |
| 営業時間 | 10:00~18:00 | 定休日 | - |
| 免許番号 | 静岡県知事(1)第14629号 | 取引態様 | 仲介 |
| 不動産会社管理番号 | HC5-78604-207-0037 | 当社管理番号 | 468 |
| 所属団体 | 、 | ||
| 取扱い物件情報 | 物件詳細へ | ||
※各種情報と現状に差異がある場合は、現状優先となります。問い合わせをすることで、より詳しい条件、情報を確認する事ができます。
提供:ハウスコム静岡株式会社 静岡店
この物件が気になったら掲載期限まであと12日
レオパレスVOYAGEに条件(家賃・エリア)が近い物件一覧
| 写真 | 家賃 管理費等 | 敷金 礼金 | 間取り 専有面積 | 築年数 | 最寄り駅 所在地 | キープ | 詳細 |
|---|---|---|---|---|---|---|---|
マンション グリーントレジャー(1LDK/2階) | |||||||
![]() | 6.1万円 3,000円 | 12.2万円 なし | 1LDK 34.2m2 | 新築 | 東海道新幹線 新富士駅(静岡) 徒歩20分 JR東海道本線 富士駅 徒歩24分 静岡県富士市鮫島 | 詳細を見る | |
マンション プリムローズ(1LDK/3階) | |||||||
![]() | 5.2万円 2,000円 | なし なし | 1LDK 39.36m2 | 築20年 | JR身延線 竪堀駅 徒歩32分 JR身延線 入山瀬駅 徒歩34分 岳南電車 吉原本町駅 徒歩34分 静岡県富士市伝法 | 詳細を見る | |
マンション 岳南電車 ジヤトコ前駅(ジヤトコ1地区前) 徒歩9分 築21年(1DK/3階) | |||||||
![]() | 5万円 2,000円 | なし なし | 1DK 30.35m2 | 築21年 | 岳南電車 ジヤトコ前駅(ジヤトコ1地区前) 徒歩9分 静岡県富士市荒田島町 | 詳細を見る | |
マンション フローラ若松(1DK/2階) | |||||||
![]() | 3.9万円 3,000円 | なし なし | 1DK 30.35m2 | 築22年 | 岳南電車 本吉原駅 徒歩46分 静岡県富士市大淵 | 詳細を見る | |
マンション ミルキーウェイ“フジ”(1LDK/1階) | |||||||
![]() | 5.7万円 3,000円 | 11.4万円 なし | 1LDK 41.11m2 | 築9年 | 身延線 富士駅 徒歩14分 静岡県富士市松岡 | 詳細を見る | |
マンション ボヌールII(2LDK/3階) | |||||||
![]() | 5.7万円 3,000円 | 5.7万円 なし | 2LDK 51.72m2 | 築27年 | 静岡県静岡市清水区押切 | 詳細を見る | |
マンション テクトピア伝法(1DK/3階) | |||||||
![]() | 4万円 2,000円 | なし なし | 1DK 30.71m2 | 築31年 | 岳南電車 吉原本町駅 徒歩36分 身延線 竪堀駅 徒歩39分 静岡県富士市伝法 | 詳細を見る | |
マンション グレイス六番館(3LDK/1階) | |||||||
![]() | 6.5万円 2,000円 | なし なし | 3LDK 69.68m2 | 築26年 | JR身延線 柚木駅(JR) 徒歩7分 JR東海道本線 富士駅 徒歩26分 静岡県富士市柚木 | 詳細を見る | |









