賃貸マンション
船丘ビルの賃貸物件情報(3DK/3階)
| 家賃 | 管理費等 | 敷金 | 礼金 | 間取り | 専有面積 |
|---|---|---|---|---|---|
| 3.8万円 | 4,000円 | なし | なし | 3DK | 58.72m2 |
入居決定でお祝い金最大100,000円
Point
姫路駅徒歩圏内で便利!お手軽ファミリー物件空き出ました!頭金0円から入居できます!!クレジットカード決済可能!初期費用の分割できます☆ペット飼育時賃料3000円、敷金1ヶ月UP
提供:(株)SUMOMIT(SUUMO経由)

詳細情報 船丘ビル
物件紹介
船丘ビルは山陽電鉄本線山陽姫路駅から徒歩20分にあるマンションです。
このお部屋は2階以上に位置しているので、通行人や周囲の住人からの視線が気になりにくく、防犯面でも安心。インターホンにはTVモニタもついているため、相手の顔を確認してから来客対応することができます。
人気の南向き・フローリングのお部屋。角部屋でもあるため、周囲の居住者の生活音も気になりにくい場所です。バス・トイレ別の仕様で、のんびりお風呂タイムも楽しめます。
ペット飼育の相談ができますので、あなたの大切な家族の一員も快適に暮らせるか、ぜひ確認してみてください。
このお部屋は2階以上に位置しているので、通行人や周囲の住人からの視線が気になりにくく、防犯面でも安心。インターホンにはTVモニタもついているため、相手の顔を確認してから来客対応することができます。
人気の南向き・フローリングのお部屋。角部屋でもあるため、周囲の居住者の生活音も気になりにくい場所です。バス・トイレ別の仕様で、のんびりお風呂タイムも楽しめます。
ペット飼育の相談ができますので、あなたの大切な家族の一員も快適に暮らせるか、ぜひ確認してみてください。
お金・契約の情報
※「-」と表示されているものは、実際は料金が発生するものもございます。詳細はお問い合わせください。
| 家賃 | 3.8万円 | 管理費・共益費 | 4,000円 |
|---|---|---|---|
| 敷金 | なし | 礼金 | なし |
| 入居決定でお祝い金最大100,000円 | |||
| 保証金 | - | 償却・敷引 | - |
| 住宅保険料 | - | 更新料 | - |
| 保証会社利用 | 必須 | 保証会社名 | - |
| 保証会社費用 | - | 保証会社備考 | 保証会社利用必 初回保証料 賃料総額60%~80% |
| 契約形態 | - | 契約期間 | - |
| 入居・引渡期間 | 即時 | 現況 | - |
| 契約備考 | 巡回管理 町会費500円鍵交換代16500円初期費用の分割可能!クレジットカード決済可(分割最大24回払いOK)ペット飼育時賃料3000円、敷金1ヶ月UP 3DK 二人入居可 普通借家2年 損保【0.8万円1年】 バストイレ別、ガスコンロ対応、フローリング、TVインターホン、陽当り良好、南向き、角住戸、2口コンロ、駐輪場、即入居可、閑静な住宅地、分譲賃貸、保証人不要、二人入居相談、バイク置場、保証金不要、3沿線以上利用可、和室、都市ガス、敷金・礼金不要 | ||
部屋の情報
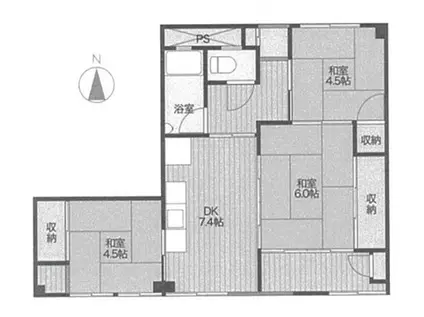
| 間取り | 3DK | 専有面積 | 58.72m2 |
|---|---|---|---|
| 所在階 / 向き | 3階 / 南 | バルコニー面積 | - |
| 水道 / ガス | - | ||
| 設備 | バス・トイレ別、2階以上、テレビドアホン、南向き、角部屋、フローリング、2口コンロ、コンロ:ガス | ||
| 当社物件ID | 157109450 | ||
建物の情報
| 建物名 | 船丘ビル | ||
|---|---|---|---|
| 所在地 | 兵庫県姫路市船丘町 | ||
| 交通 | JR山陽本線 姫路駅 徒歩24分 山陽新幹線 姫路駅 徒歩24分 JR播但線 姫路駅 徒歩24分 | ||
| 階数 | 4階建 | 総戸数 | - |
| 築年月 | 1967年01月 / 築60年 | エレベーター | - |
| 駐車場 | なし | バイク置き場 | あり |
| 駐輪場 | あり | 管理人/管理会社 | - |
| 周辺環境 | その他 船場小学校(小学校)まで578m その他 琴陵中学校(中学校)まで607m その他 (コンビニ)まで300m | ||
| 建物種別 | マンション | 建物構造 | RC(鉄筋コンクリート) |
この部屋の取扱い不動産会社
| 会社名 | (株)Sumika(SUUMO経由) | ||
|---|---|---|---|
| 所在地 | 兵庫県姫路市三左衛門堀東の町 93 | 交通 | - |
| 営業時間 | 10:00~20:00 | 定休日 | なし |
| 免許番号 | 兵庫県知事451611 | 取引態様 | 仲介 |
| 不動産会社管理番号 | 100418227066 | 当社管理番号 | 89 |
| 所属団体 | (公社)全日本不動産協会兵庫県本部会員 | ||
| 公正取引協議会 | (公社)近畿地区不動産公正取引協議会加盟 | ||
| 取扱い物件情報 | 物件詳細へ | ||
※各種情報と現状に差異がある場合は、現状優先となります。問い合わせをすることで、より詳しい条件、情報を確認する事ができます。
提供:(株)Sumika(SUUMO経由)
この物件が気になったら掲載期限まであと10日
船丘ビルに条件(家賃・エリア)が近い物件一覧
| 写真 | 家賃 管理費等 | 敷金 礼金 | 間取り 専有面積 | 築年数 | 最寄り駅 所在地 | キープ | 詳細 |
|---|---|---|---|---|---|---|---|
アパート カーサ・ビアンカ(1LDK/2階) | |||||||
![]() | 5.9万円 2,000円 | 5.9万円 8万円 | 1LDK 38.25m2 | 築12年 | 北条鉄道北条線 北条町駅 徒歩19分 北条鉄道北条線 播磨横田駅 徒歩44分 北条鉄道北条線 長駅 徒歩68分 兵庫県加西市北条町古坂 | 詳細を見る | |
一戸建て 姫新線 播磨高岡駅 徒歩41分 築47年(5DK) | |||||||
![]() | 5.7万円 なし | 5万円 10万円 | 5DK 105.24m2 | 築47年 | 姫新線 播磨高岡駅 徒歩41分 播但線 野里駅 徒歩46分 姫新線 余部駅 徒歩57分 兵庫県姫路市田寺東1 | 詳細を見る | |
アパート エクセレンス今宿(1K/1階) | |||||||
![]() | 3.8万円 3,000円 | なし なし | 1K 20.46m2 | 築37年 | 姫新線 播磨高岡駅 徒歩10分 山陽電気鉄道本線 山陽姫路駅 徒歩35分 山陽電気鉄道本線 手柄駅 徒歩45分 兵庫県姫路市東今宿3 | 詳細を見る | |
マンション メゾン・アン・シャンテ(1DK/3階) | |||||||
![]() | 4.3万円 4,000円 | なし 5万円 | 1DK 30m2 | 築34年 | JR山陽本線 東加古川駅 徒歩16分 山陽電鉄本線 別府駅(兵庫) 徒歩24分 山陽電鉄本線 浜の宮駅 徒歩45分 兵庫県加古川市平岡町一色 | 詳細を見る | |
一戸建て 姫新線 播磨高岡駅 徒歩22分 築58年(3DK) | |||||||
![]() | 4.3万円 なし | 5万円 5万円 | 3DK 48.18m2 | 築58年 | 姫新線 播磨高岡駅 徒歩22分 兵庫県姫路市車崎2丁目 | 詳細を見る | |
アパート エステートピアセルベイユⅡ(1K/2階) | |||||||
![]() | 3.5万円 なし | なし なし | 1K 20m2 | 築29年 | 播但線 京口駅 徒歩17分 山陽電気鉄道本線 山陽姫路駅 徒歩18分 播但線 野里駅 徒歩19分 兵庫県姫路市八代 | 詳細を見る | |
アパート サンパレス高瀬(1K/1階) | |||||||
![]() | 3.3万円 なし | なし なし | 1K 19.8m2 | 築29年 | 山陽電鉄本線 高砂駅(兵庫) 徒歩10分 山陽電鉄本線 尾上の松駅 徒歩20分 山陽電鉄本線 荒井駅(兵庫) 徒歩22分 兵庫県高砂市高砂町高瀬町 | 詳細を見る | |
アパート エスポワール Ⅰ(2DK/1階) | |||||||
![]() | 4.2万円 2,800円 | なし なし | 2DK 46.06m2 | 築29年 | 山陽電気鉄道網干線 西飾磨駅 徒歩11分 山陽本線 英賀保駅 徒歩20分 山陽電気鉄道本線 亀山駅(兵庫) 徒歩27分 兵庫県姫路市飾磨区今在家7丁目 | 詳細を見る | |






