賃貸マンション
アークハイツ富田町の賃貸物件情報(1K/2階)
| 家賃 | 管理費等 | 敷金 | 礼金 | 間取り | 専有面積 |
|---|---|---|---|---|---|
| 4.6万円 | 4,000円 | 9.2万円 | 5.0599万円 | 1K | 27.9m2 |
入居決定でお祝い金最大100,000円
- 保証金
- -
- 償却・敷引
- -
- 築年数
- 築28年
- 所在階
- 2階
- 向き
- 南
Point
お車でご来店の際は、店舗前駐車場もしくは、周辺のコインパーキングをご利用いただければ、弊社の方でご精算させていただきます♪
提供:(株)良和ハウス岡山駅前店(SUUMO経由)

詳細情報 アークハイツ富田町
物件紹介
アークハイツ富田町は岡山電軌東山本線西川緑道公園駅から徒歩8分にあり、駅近で通勤通学に便利なマンションです。
このお部屋は2階以上に位置しているので、通行人や周囲の住人からの視線が気になりにくく、防犯面でも安心です。
人気の南向きのお部屋。また、フローリングなのでお掃除もラクラク。バス・トイレ別の仕様で、のんびりお風呂タイムも楽しめます。
通信設備面ではBSアンテナがありますので、おうち時間も充実するでしょう(別途工事、契約料が必要な場合あり)。
建物にはエレベーターがついているので、重い荷物があっても安心。
このお部屋は2階以上に位置しているので、通行人や周囲の住人からの視線が気になりにくく、防犯面でも安心です。
人気の南向きのお部屋。また、フローリングなのでお掃除もラクラク。バス・トイレ別の仕様で、のんびりお風呂タイムも楽しめます。
通信設備面ではBSアンテナがありますので、おうち時間も充実するでしょう(別途工事、契約料が必要な場合あり)。
建物にはエレベーターがついているので、重い荷物があっても安心。
お金・契約の情報
※「-」と表示されているものは、実際は料金が発生するものもございます。詳細はお問い合わせください。
| 家賃 | 4.6万円 | 管理費・共益費 | 4,000円 |
|---|---|---|---|
| 敷金 | 9.2万円 | 礼金 | 5.0599万円 |
| 入居決定でお祝い金最大100,000円 | |||
| 保証金 | - | 償却・敷引 | - |
| 住宅保険料 | - | 更新料 | - |
| 契約形態 | - | 契約期間 | - |
| 入居・引渡期間 | 即時 | 現況 | - |
| 契約備考 | 1K バストイレ別、バルコニー、エアコン、フローリング、室内洗濯置、南向き、温水洗浄便座、エレベーター、押入、即入居可、照明付、全居室洋室、単身者相談、全居室フローリング、2沿線利用可、クッションフロア、3駅以上利用可、駅徒歩10分以内、全居室8畳以上、プロパンガス、南面バルコニー、BS | ||
部屋の情報
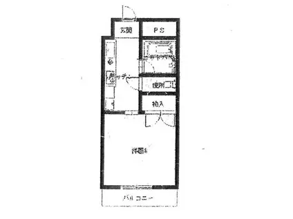
| 間取り | 1K | 専有面積 | 27.9m2 |
|---|---|---|---|
| 所在階 / 向き | 2階 / 南 | バルコニー面積 | - |
| 水道 / ガス | - | ||
| 設備 | バス・トイレ別、2階以上、エアコン、エレベーター、温水洗浄便座、南向き、バルコニー、フローリング、BSアンテナ、洗濯機:室内 | ||
| 当社物件ID | 1029537 | ||
建物の情報
| 建物名 | アークハイツ富田町 | ||
|---|---|---|---|
| 所在地 | 岡山県岡山市北区富田町 | ||
| 交通 | 岡山電軌東山本線 西川緑道公園駅 徒歩8分 岡山電軌東山本線 柳川駅 徒歩8分 JR山陽本線 岡山駅 徒歩10分 | ||
| 階数 | 7階建 | 総戸数 | - |
| 築年月 | 1998年03月 / 築28年 | エレベーター | あり |
| 駐車場 | なし | バイク置き場 | - |
| 駐輪場 | - | 管理人/管理会社 | - |
| 周辺環境 | その他 岡山市立岡山中央小学校(小学校)まで570m その他 岡山市立岡山後楽館中学校(中学校)まで505m その他 弓之町保育園(幼稚園・保育園)まで519m その他 岡山市立岡山後楽館高校(高校・高専)まで509m その他 岡山県庁(役所)まで1830m その他 岡山野田屋町郵便局(郵便局)まで257m | ||
| 建物種別 | マンション | 建物構造 | RC(鉄筋コンクリート) |
この部屋の取扱い不動産会社
| 会社名 | (株)良和ハウス岡山駅西口店(SUUMO経由) | ||
|---|---|---|---|
| 所在地 | 岡山県岡山市北区奉還町2-1-27 | 交通 | - |
| 営業時間 | 10時~18時 | 定休日 | 火曜日 |
| 免許番号 | 国土交通大臣9113 | 取引態様 | 仲介 |
| 不動産会社管理番号 | 100454804061 | 当社管理番号 | 89 |
| 所属団体 | (公社)岡山県宅地建物取引業協会会員 | ||
| 公正取引協議会 | 中国地区不動産公正取引協議会加盟 | ||
| 取扱い物件情報 | 物件詳細へ | ||
※各種情報と現状に差異がある場合は、現状優先となります。問い合わせをすることで、より詳しい条件、情報を確認する事ができます。
提供:(株)良和ハウス岡山駅西口店(SUUMO経由)
この物件が気になったら掲載期限まであと11日
アークハイツ富田町に条件(家賃・エリア)が近い物件一覧
| 写真 | 家賃 管理費等 | 敷金 礼金 | 間取り 専有面積 | 築年数 | 最寄り駅 所在地 | キープ | 詳細 |
|---|---|---|---|---|---|---|---|
マンション 黒住ビル(1K/3階) | |||||||
![]() | 2.8万円 2,000円 | なし 2.8万円 | 1K 21m2 | 築55年 | 吉備線 備前三門駅 徒歩10分 山陽本線 岡山駅 徒歩14分 岡山電軌清輝橋線 岡山駅前駅 徒歩18分 岡山県岡山市北区奉還町4丁目 | 詳細を見る | |
アパート アスティオ南方(1K/1階) | |||||||
![]() | 4.9万円 4,000円 | なし なし | 1K 21.92m2 | 築6年 | 津山線 法界院駅 徒歩16分 山陽本線 岡山駅 徒歩17分 岡山電軌清輝橋線 柳川駅 徒歩19分 岡山県岡山市北区南方4丁目 | 詳細を見る | |
アパート コスモハイツ(3DK/2階) | |||||||
![]() | 5.5万円 3,000円 | なし なし | 3DK 53.05m2 | 築37年 | 山陽本線 北長瀬駅 徒歩17分 吉備線 大安寺駅 徒歩34分 山陽本線 庭瀬駅 徒歩35分 岡山県岡山市北区田中 | 詳細を見る | |
マンション 神田K2スクエア(1K/3階) | |||||||
![]() | 3.7万円 5,000円 | なし なし | 1K 22.8m2 | 築30年 | 宇野線 大元駅 徒歩20分 岡山電軌清輝橋線 清輝橋駅 徒歩23分 岡山電軌清輝橋線 東中央町駅 徒歩24分 岡山県岡山市北区神田町2丁目 | 詳細を見る | |
マンション ユニエトワール岡山医大東(1LDK/10階) | |||||||
![]() | 5.65万円 5,000円 | 5万円 10万円 | 1LDK 39.2m2 | 築30年 | 岡山電軌清輝橋線 清輝橋駅 徒歩5分 岡山電軌清輝橋線 東中央町駅 徒歩9分 宇野線 大元駅 徒歩19分 岡山県岡山市北区清輝橋2丁目 | 詳細を見る | |
アパート サンハイム青江(1LDK/2階) | |||||||
![]() | 6.8万円 5,000円 | なし 6.8万円 | 1LDK 41.75m2 | 築12年 | 宇野線 大元駅 徒歩28分 宇野線 備前西市駅 徒歩29分 岡山電軌清輝橋線 清輝橋駅 徒歩29分 岡山県岡山市北区 | 詳細を見る | |
アパート サン・エスポアール(1K/2階) | |||||||
![]() | 3.9万円 3,500円 | 7.8万円 3.9万円 | 1K 26.49m2 | 築29年 | 津山線 法界院駅 徒歩16分 山陽本線 西川原駅 徒歩36分 津山線 備前原駅 徒歩43分 岡山県岡山市北区津島東4丁目 | 詳細を見る | |
アパート ニューエレガンス(2DK/2階) | |||||||
![]() | 4万円 2,000円 | なし なし | 2DK 49.28m2 | 築40年 | 宇野線 備前西市駅 徒歩15分 岡山県岡山市北区今8丁目 | 詳細を見る | |









