賃貸アパート
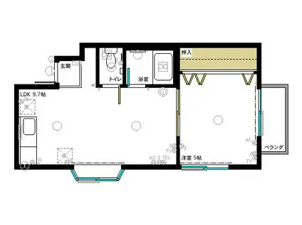
コーポ藤井の賃貸物件情報(1LDK/2階)
| 家賃 | 管理費等 | 敷金 | 礼金 | 間取り | 専有面積 |
|---|---|---|---|---|---|
| 3.7万円 | なし | 10万円 | なし | 1LDK | 30.6m2 |
入居決定でお祝い金最大100,000円
Point
洋室フローリング!
提供:ピタットハウス鳥取倉吉店(株)へいわ(SUUMO経由)

詳細情報 コーポ藤井
物件紹介
このお部屋は2階以上に位置しているので、通行人や周囲の住人からの視線が気になりにくく、防犯面でも安心です。
人気の南向きのお部屋。角部屋でもあるため、周囲の居住者の生活音も気になりにくい場所です。バス・トイレ別の仕様で、のんびりお風呂タイムも楽しめます。
ペット飼育の相談ができますので、あなたの大切な家族の一員も快適に暮らせるか、ぜひ確認してみてください。
人気の南向きのお部屋。角部屋でもあるため、周囲の居住者の生活音も気になりにくい場所です。バス・トイレ別の仕様で、のんびりお風呂タイムも楽しめます。
ペット飼育の相談ができますので、あなたの大切な家族の一員も快適に暮らせるか、ぜひ確認してみてください。
お金・契約の情報
※「-」と表示されているものは、実際は料金が発生するものもございます。詳細はお問い合わせください。
| 家賃 | 3.7万円 | 管理費・共益費 | なし |
|---|---|---|---|
| 敷金 | 10万円 | 礼金 | なし |
| 入居決定でお祝い金最大100,000円 | |||
| 保証金 | - | 償却・敷引 | - |
| 住宅保険料 | - | 更新料 | - |
| 保証会社利用 | 必須 | 保証会社名 | - |
| 保証会社費用 | - | 保証会社備考 | 保証会社利用必 その他 賃貸保証料として初回契約時に20000円のお支払いが必要。毎月400円の賃貸保証料が賃料と振替手数料300円(消費税別途要)と合算の上、毎月27日振替となります。 |
| 契約形態 | - | 契約期間 | - |
| 入居・引渡期間 | 相談 | 現況 | - |
| 入居可能条件 | ペット相談 | ||
| 契約備考 | 町内会費500円 1LDK ペット相談 損保【1.3万円2年】 バストイレ別、バルコニー、エアコン、ガスコンロ対応、室内洗濯置、角住戸、礼金不要、最上階、ペット相談、バス停徒歩3分以内、東南向き、プロパンガス | ||
部屋の情報
| 間取り | 1LDK | 専有面積 | 30.6m2 |
|---|---|---|---|
| 所在階 / 向き | 2階 / 南東 | バルコニー面積 | - |
| 水道 / ガス | - | ||
| 設備 | バス・トイレ別、2階以上、エアコン、南向き、角部屋、バルコニー、コンロ:ガス、洗濯機:室内 | ||
| 当社物件ID | 11970672 | ||
建物の情報
| 建物名 | コーポ藤井 | ||
|---|---|---|---|
| 所在地 | 鳥取県東伯郡三朝町大字大瀬 | ||
| 交通 | JR山陰本線 倉吉駅 バス乗車時間:20分 最寄りバス停で下車 徒歩3分 | ||
| 階数 | 2階建 | 総戸数 | 8戸 |
| 築年月 | 1998年02月 / 築28年 | エレベーター | - |
| 駐車場 | 空有 付無料 | バイク置き場 | - |
| 駐輪場 | - | 管理人/管理会社 | - |
| 周辺環境 | その他 ローソン三朝温泉店(コンビニ)まで565m その他 三朝町立三朝中学校(中学校)まで1061m その他 三朝町立西小学校(小学校)まで719m その他 三朝町立賀茂保育園(幼稚園・保育園)まで1063m その他 公益社団法人鳥取県中部医師会立三(病院)まで1803m その他 鳥取県立倉吉東高校(高校・高専)まで4594m | ||
| 建物種別 | アパート | 建物構造 | 木造 |
この部屋の取扱い不動産会社
| 会社名 | ピタットハウス鳥取倉吉店(株)へいわ(SUUMO経由) | ||
|---|---|---|---|
| 所在地 | 鳥取県倉吉市八屋 226-6 | 交通 | - |
| 営業時間 | 平日10~17時 土日祝 10:30~15:30 | 定休日 | 水曜日 |
| 免許番号 | 鳥取県知事464 | 取引態様 | 仲介 |
| 不動産会社管理番号 | 100472004253 | 当社管理番号 | 89 |
| 所属団体 | (公社)鳥取県宅地建物取引業協会会員 | ||
| 公正取引協議会 | 中国地区不動産公正取引協議会加盟 | ||
| 取扱い物件情報 | 物件詳細へ | ||
※各種情報と現状に差異がある場合は、現状優先となります。問い合わせをすることで、より詳しい条件、情報を確認する事ができます。
提供:ピタットハウス鳥取倉吉店(株)へいわ(SUUMO経由)
この物件が気になったら掲載期限まであと10日
コーポ藤井に条件(家賃・エリア)が近い物件一覧
| 写真 | 家賃 管理費等 | 敷金 礼金 | 間取り 専有面積 | 築年数 | 最寄り駅 所在地 | キープ | 詳細 |
|---|---|---|---|---|---|---|---|
マンション ふそうマンション天神(2DK/3階) | |||||||
![]() | 4.8万円 なし | 4.8万円 4.8万円 | 2DK 42.2m2 | 築39年 | 山陰本線 鳥取駅 徒歩10分 鳥取県鳥取市天神町 | 詳細を見る | |
マンション セレナールIZUMI(1K/3階) | |||||||
![]() | 3.8万円 4,000円 | なし 3.8万円 | 1K 26.1m2 | 築25年 | JR山陰本線 鳥取大学前駅 徒歩2分 JR山陰本線 湖山駅 徒歩18分 鳥取県鳥取市湖山町北 | 詳細を見る | |
アパート リシェシャトーイナバ(1K/4階) | |||||||
![]() | 2.7万円 2,000円 | 5万円 2.7万円 | 1K 21m2 | 築36年 | JR山陰本線 鳥取大学前駅 徒歩2分 JR山陰本線 湖山駅 徒歩17分 鳥取県鳥取市湖山町南 | 詳細を見る | |
マンション グレースマンション湖山(1K/2階) | |||||||
![]() | 3.3万円 2,000円 | 3.3万円 3.3万円 | 1K 24.6m2 | 築29年 | 山陰本線 湖山駅 徒歩2分 鳥取県鳥取市湖山町東5丁目 | 詳細を見る | |
マンション リードハイツ(1DK/3階) | |||||||
![]() | 4.5万円 3,000円 | 4.5万円 なし | 1DK 34.45m2 | 築27年 | 山陰本線 湖山駅 徒歩8分 鳥取県鳥取市湖山町南1丁目 | 詳細を見る | |
アパート グラナーテU(2K/2階) | |||||||
![]() | 4.6万円 2,000円 | なし 4.6万円 | 2K 35.5m2 | 築28年 | 鳥取県鳥取市大覚寺 | 詳細を見る | |
マンション コーポカステール(1K/2階) | |||||||
![]() | 3万円 3,200円 | 3万円 3万円 | 1K 23.4m2 | 築35年 | JR山陰本線 湖山駅 徒歩4分 鳥取県鳥取市湖山町東 | 詳細を見る | |
アパート センチュリー シバタ A(2DK/2階) | |||||||
![]() | 4.9万円 4,000円 | なし 4.9万円 | 2DK 50.38m2 | 築30年 | 因美線 鳥取駅 徒歩50分 鳥取県鳥取市国府町新町1丁目 | 詳細を見る | |









