賃貸マンション
ルミークアン用賀の賃貸物件情報(2LDK/5階)
| 家賃 | 管理費等 | 敷金 | 礼金 | 間取り | 専有面積 |
|---|---|---|---|---|---|
| 28.9万円 | 2万円 | なし | なし | 2LDK | 52.45m2 |
入居決定でお祝い金最大100,000円
Point
室内設備は浴室乾燥機・洗面化粧台など豊富に揃っており、過ごしやすいお部屋になっております。
提供:ハウスコム東神奈川株式会社 溝の口店

詳細情報 ルミークアン用賀
物件紹介
ルミークアン用賀は東急田園都市線用賀駅から徒歩7分にあり、駅近で通勤通学に便利なマンションです。
このお部屋は2階以上に位置しているので、通行人や周囲の住人からの視線が気になりにくく、防犯面でも安心。建物のエントランスはオートロックがついており、インターホンにはTVモニタもついているため、相手の顔を確認してから来客対応することができます。
人気の角部屋で周囲の居住者の生活音も気になりにくく、また、フローリングのお部屋なのでお掃除もラクラク。キッチンはシステムキッチン仕様になっていますので、お料理好きの方にもぴったり。バス・トイレは別なので、のんびりお風呂タイムも楽しめるでしょう。また、雨の日でも浴室乾燥機を使えば、お洗濯も問題ありません。
建物にはエレベーターがついているので、重い荷物があっても安心。共用部には宅配ボックスが設定されているので、不在の時にも荷物を受け取ることができます。
このお部屋は2階以上に位置しているので、通行人や周囲の住人からの視線が気になりにくく、防犯面でも安心。建物のエントランスはオートロックがついており、インターホンにはTVモニタもついているため、相手の顔を確認してから来客対応することができます。
人気の角部屋で周囲の居住者の生活音も気になりにくく、また、フローリングのお部屋なのでお掃除もラクラク。キッチンはシステムキッチン仕様になっていますので、お料理好きの方にもぴったり。バス・トイレは別なので、のんびりお風呂タイムも楽しめるでしょう。また、雨の日でも浴室乾燥機を使えば、お洗濯も問題ありません。
建物にはエレベーターがついているので、重い荷物があっても安心。共用部には宅配ボックスが設定されているので、不在の時にも荷物を受け取ることができます。
お金・契約の情報
※「-」と表示されているものは、実際は料金が発生するものもございます。詳細はお問い合わせください。
| 家賃 | 28.9万円 | 管理費・共益費 | 2万円 |
|---|---|---|---|
| 敷金 | なし | 礼金 | なし |
| 入居決定でお祝い金最大100,000円 | |||
| 保証金 | - | 償却・敷引 | - |
| 住宅保険料 | 1円 | 更新料 | - |
| その他費用 | 入居サポート:1.98万円 | ||
| 保証会社利用 | 必須 | 保証会社名 | - |
| 保証会社費用 | - | 保証会社備考 | 初回40~50%(次年度以降14000円〜) |
| 契約形態 | - | 契約期間 | 2年 |
| 入居・引渡期間 | 即時 | 現況 | - |
| 入居可能条件 | 2人入居可 | ||
| 契約備考 | 鍵交換費用:38500 その他設備/条件:室内洗濯機置き場、独立洗面台、クローゼット、シューズボックス | ||
部屋の情報
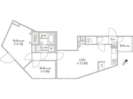
| 間取り | 2LDK | 専有面積 | 52.45m2 |
|---|---|---|---|
| 間取り詳細 | LDK(12.8帖)、洋室(4.3帖)、洋室(3帖) | ||
| 所在階 / 向き | 5階 / 南西 | バルコニー面積 | - |
| 水道 / ガス | 水道【公営】、ガス【都市】 | ||
| 設備 | バス・トイレ別、オートロック、テレビドアホン、宅配ボックス、浴室乾燥機、追い焚き、システムキッチン、エアコン、エレベーター、温水洗浄便座、角部屋、バルコニー、フローリング、洗髪洗面化粧台、3口コンロ、コンロ:ガス、シャワー、給湯 | ||
| 当社物件ID | 160330811 | ||
建物の情報
| 建物名 | ルミークアン用賀 | ||
|---|---|---|---|
| 所在地 | 東京都世田谷区玉川台1丁目 | ||
| 交通 | 東急田園都市線 用賀駅 徒歩7分 東急大井町線 上野毛駅 徒歩19分 | ||
| 階数 | 5階建 | 総戸数 | 30戸 |
| 築年月 | 2024年09月 / 築2年 | エレベーター | あり |
| 駐車場 | - | バイク置き場 | - |
| 駐輪場 | - | 管理人/管理会社 | - |
| 周辺環境 | その他 ドラッグストア その他 公園 その他 銀行 その他 * | ||
| 建物種別 | マンション | 建物構造 | RC(鉄筋コンクリート) |
この部屋の取扱い不動産会社
| 会社名 | ハウスコム西東京株式会社 渋谷店 | ||
|---|---|---|---|
| 所在地 | 東京都渋谷区30-4玉久ビル6階 | 交通 | - |
| 営業時間 | 10:00~18:00 | 定休日 | - |
| 免許番号 | 東京都知事(1)第108225号 | 取引態様 | 仲介 |
| 不動産会社管理番号 | HC2-5362441-505-0271 | 当社管理番号 | 468 |
| 所属団体 | 、 | ||
| 取扱い物件情報 | 物件詳細へ | ||
※各種情報と現状に差異がある場合は、現状優先となります。問い合わせをすることで、より詳しい条件、情報を確認する事ができます。
提供:ハウスコム西東京株式会社 渋谷店
この物件が気になったら掲載期限まであと4日
ルミークアン用賀に条件(家賃・エリア)が近い物件一覧
| 写真 | 家賃 管理費等 | 敷金 礼金 | 間取り 専有面積 | 築年数 | 最寄り駅 所在地 | キープ | 詳細 |
|---|---|---|---|---|---|---|---|
マンション ザ・パークハビオ大森町(2LDK/6階) | |||||||
![]() | 19.2万円 2.5万円 | 19.2万円 なし | 2LDK 40.39m2 | 築1年 | 京浜急行電鉄本線 大森町駅 徒歩3分 京浜急行電鉄本線 平和島駅 徒歩12分 東京都大田区大森中1丁目 | 詳細を見る | |
マンション SAKURA(2LDK/2階) | |||||||
![]() | 20.1万円 5,000円 | 20.1万円 なし | 2LDK 54.84m2 | 築5年 | 京急本線 梅屋敷駅(東京) 徒歩7分 京急本線 大森町駅 徒歩9分 東京都大田区大森中 | 詳細を見る | |
アパート VOX LILY(2LDK/1階) | |||||||
![]() | 20.3万円 4,000円 | 20.3万円 なし | 2LDK 56.47m2 | 築2年 | JR京浜東北線 蒲田駅 徒歩13分 東急池上線 蓮沼駅 徒歩15分 京急本線 梅屋敷駅(東京) 徒歩19分 東京都大田区西蒲田 | 詳細を見る | |
アパート フォレスタ世田谷(2LDK/2階) | |||||||
![]() | 18万円 1,000円 | 18万円 なし | 2LDK 47.7m2 | 築55年 | 東急池上線 雪が谷大塚駅 徒歩6分 東急東横線 田園調布駅 徒歩16分 東急目黒線 多摩川駅 徒歩16分 東京都世田谷区東玉川 | 詳細を見る | |
マンション RJRプレシア蒲田(2LDK/3階) | |||||||
![]() | 22万円 1.5万円 | 22万円 なし | 2LDK 41.82m2 | 新築 | JR京浜東北線 蒲田駅 徒歩10分 東急池上線 蒲田駅 徒歩11分 京急空港線 糀谷駅 徒歩29分 東京都大田区西蒲田 | 詳細を見る | |
マンション オカバ世田谷深沢ヘーベルメゾン(3LDK/3階) | |||||||
![]() | 28.6万円 1万円 | 14.3万円 28.6万円 | 3LDK 69.36m2 | 築1年 | 東急大井町線 等々力駅 徒歩16分 東急大井町線 上野毛駅 徒歩19分 東急大井町線 尾山台駅 徒歩21分 東京都世田谷区深沢 | 詳細を見る | |
マンション プレサンスOSAKA DOMECITYビーツ(1K/7階) | |||||||
![]() | 6.855万円 8,450円 | なし 8万円 | 1K 22.23m2 | 築7年 | 大阪メトロ中央線 九条駅(大阪メトロ) 徒歩1分 大阪メトロ長堀鶴見緑地 ドーム前千代崎駅 徒歩14分 大阪府大阪市西区九条2丁目 | 詳細を見る | |








