賃貸マンション
エストゥルース両国Ⅱの賃貸物件情報(1K/5階)
| 家賃 | 管理費等 | 敷金 | 礼金 | 間取り | 専有面積 |
|---|---|---|---|---|---|
| 11.25万円 | 1万円 | なし | なし | 1K | 25.77m2 |
入居決定でお祝い金最大100,000円
- 保証金
- 11.25万円
- 償却・敷引
- -
- 築年数
- 築6年
- 所在階
- 5階
- 向き
- 東
Point
敷金礼金0 ネット無料 設備充実の分譲賃貸マンションです
提供:株式会社サンコーホーム(賃貸スモッカ経由)

詳細情報 エストゥルース両国Ⅱ
物件紹介
エストゥルース両国Ⅱは東京都大江戸線両国駅から徒歩8分にあり、駅近で通勤通学に便利なマンションです。
このお部屋は2階以上に位置しているので通行人や周囲の住人からの視線が気になりにくく、建物のエントランスはオートロックがついているので防犯性が高くなっています。
フローリングのお部屋なのでお掃除もラクラク。キッチンはシステムキッチン仕様になっていますので、お料理好きの方にもぴったり。バス・トイレは別なので、のんびりお風呂タイムも楽しめるでしょう。また、雨の日でも浴室乾燥機を使えば、お洗濯も問題ありません。
通信設備面では、インターネット接続が可能です。また、BSアンテナ・CSアンテナもありますので、おうち時間も充実するでしょう(別途工事、契約料が必要な場合あり)。
建物にはエレベーターがついているので、重い荷物があっても安心。共用部には宅配ボックスが設定されているので、不在の時にも荷物を受け取ることができます。
このお部屋は2階以上に位置しているので通行人や周囲の住人からの視線が気になりにくく、建物のエントランスはオートロックがついているので防犯性が高くなっています。
フローリングのお部屋なのでお掃除もラクラク。キッチンはシステムキッチン仕様になっていますので、お料理好きの方にもぴったり。バス・トイレは別なので、のんびりお風呂タイムも楽しめるでしょう。また、雨の日でも浴室乾燥機を使えば、お洗濯も問題ありません。
通信設備面では、インターネット接続が可能です。また、BSアンテナ・CSアンテナもありますので、おうち時間も充実するでしょう(別途工事、契約料が必要な場合あり)。
建物にはエレベーターがついているので、重い荷物があっても安心。共用部には宅配ボックスが設定されているので、不在の時にも荷物を受け取ることができます。
お金・契約の情報
※「-」と表示されているものは、実際は料金が発生するものもございます。詳細はお問い合わせください。
| 家賃 | 11.25万円 | 管理費・共益費 | 1万円 |
|---|---|---|---|
| 敷金 | なし | 礼金 | なし |
| 入居決定でお祝い金最大100,000円 | |||
| 保証金 | 11.25万円 | 償却・敷引 | - |
| 住宅保険料 | 住宅保険料あり | 更新料 | - |
| 契約形態 | - | 契約期間 | 2年 |
| 入居・引渡期間 | 2026年03月中旬 | 現況 | 居住中 |
| 契約備考 | 初期費用のクレジットカード払いや各種分割払い可能です。諸条件ご相談ください。その他インターネット掲載物件は当店で併せてご紹介可能です 事務手数料(税別):10,000円 更新料:1ヶ月 保証会社:利用必須 月額保証料:総賃料の1%(最低1000円)※にじいろライフ利用時 別途 引落手数料500円(税別)※年更新料無 初回保証料:総賃料×50%※にじいろライフ利用時 その他設備/条件:セキュリティ会社加入済、防犯カメラ、分譲賃貸、コンロ2口以上、独立洗面台、TVドアホン、敷地内ゴミ置場 | ||
部屋の情報
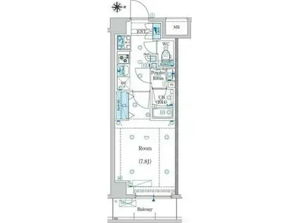
| 間取り | 1K | 専有面積 | 25.77m2 |
|---|---|---|---|
| 間取り詳細 | 洋室(7.8帖) | ||
| 所在階 / 向き | 5階 / 東 | バルコニー面積 | - |
| 水道 / ガス | ガス【都市】 | ||
| 設備 | バス・トイレ別、2階以上、オートロック、宅配ボックス、浴室乾燥機、インターネット対応、システムキッチン、エアコン、エレベーター、温水洗浄便座、バルコニー、フローリング、コンロ:ガス、CSアンテナ、BSアンテナ、洗濯機:室内 | ||
| 当社物件ID | 160307482 | ||
建物の情報
| 建物名 | エストゥルース両国Ⅱ | ||
|---|---|---|---|
| 所在地 | 東京都墨田区石原1丁目 | ||
| 交通 | 東京都大江戸線 両国駅 徒歩8分 東京都大江戸線 蔵前駅 徒歩10分 総武・中央緩行線 両国駅 徒歩13分 | ||
| 階数 | 7階建 | 総戸数 | - |
| 築年月 | 2020年08月 / 築6年 | エレベーター | あり |
| 駐車場 | - | バイク置き場 | - |
| 駐輪場 | - | 管理人/管理会社 | - |
| 建物種別 | マンション | 建物構造 | RC(鉄筋コンクリート) |
この部屋の取扱い不動産会社
| 会社名 | 株式会社サンコーホーム(賃貸スモッカ経由) | ||
|---|---|---|---|
| 所在地 | 東京都台東区上野5丁目23-8 キューアス御徒町ビル3F | 交通 | - |
| 営業時間 | - | 定休日 | - |
| 免許番号 | 東京都知事免許(2)第96594号 | 取引態様 | 仲介 |
| 不動産会社管理番号 | sankohome_120160010120284 | 当社管理番号 | 463 |
| 所属団体 | (公社)全国宅地建物取引業協会連合会\n公益社団法人首都圏不動産公正取引協議会 | ||
| 公正取引協議会 | (公社)全国宅地建物取引業保証協会 | ||
| 取扱い物件情報 | 物件詳細へ | ||
※各種情報と現状に差異がある場合は、現状優先となります。問い合わせをすることで、より詳しい条件、情報を確認する事ができます。
提供:株式会社サンコーホーム(賃貸スモッカ経由)
この物件が気になったら掲載期限まであと6日
エストゥルース両国Ⅱに条件(家賃・エリア)が近い物件一覧
| 写真 | 家賃 管理費等 | 敷金 礼金 | 間取り 専有面積 | 築年数 | 最寄り駅 所在地 | キープ | 詳細 |
|---|---|---|---|---|---|---|---|
マンション プレールドゥーク押上TOWER CITY(1K/7階) | |||||||
![]() | 9.6万円 8,000円 | なし 9.6万円 | 1K 27.74m2 | 築18年 | 東京都浅草線 押上駅 徒歩9分 東京地下鉄半蔵門線 押上駅 徒歩9分 東京都墨田区向島2丁目 | 詳細を見る | |
マンション グレイスフルリッチ(1LDK/3階) | |||||||
![]() | 12.5万円 6,500円 | なし 12.5万円 | 1LDK 39.66m2 | 築16年 | 東京地下鉄日比谷線 南千住駅 徒歩18分 東京地下鉄銀座線 浅草駅(東武・都営・メトロ) 徒歩20分 東京都台東区橋場1丁目 | 詳細を見る | |
マンション ブランシエスタ本所吾妻橋(1DK/3階) | |||||||
![]() | 12万円 1.2万円 | なし なし | 1DK 25.43m2 | 築4年 | 東京都浅草線 本所吾妻橋駅 徒歩3分 東京地下鉄銀座線 浅草駅(東武・都営・メトロ) 徒歩6分 東京地下鉄半蔵門線 押上駅 徒歩13分 東京都墨田区吾妻橋1丁目 | 詳細を見る | |
マンション あやめガーデン(2K/12階) | |||||||
![]() | 17.5万円 1万円 | 17.5万円 17.5万円 | 2K 42.26m2 | 築12年 | 東京メトロ日比谷線 築地駅 徒歩1分 東京メトロ有楽町線 新富町駅(東京) 徒歩6分 東京メトロ日比谷線 東銀座駅 徒歩6分 東京都中央区築地 | 詳細を見る | |
マンション ルーエ押上(1K/7階) | |||||||
![]() | 12.7万円 1万円 | 12.7万円 12.7万円 | 1K 25.01m2 | 築7年 | 東京地下鉄半蔵門線 押上駅 徒歩8分 総武本線 錦糸町駅 徒歩11分 総武・中央緩行線 錦糸町駅 徒歩11分 東京都墨田区横川2丁目 | 詳細を見る | |
マンション クラリティア浅草(1DK/5階) | |||||||
![]() | 14万円 1.5万円 | 14万円 なし | 1DK 25.46m2 | 築1年 | 東武伊勢崎・大師線 浅草駅(東武・都営・メトロ) 徒歩9分 東京都浅草線 浅草駅(東武・都営・メトロ) 徒歩10分 つくばエクスプレス 浅草駅(つくばEXP) 徒歩13分 東京都台東区浅草6丁目 | 詳細を見る | |
マンション CASA PIAZZA錦糸町(ワンルーム/4階) | |||||||
![]() | 9.3万円 1.2万円 | なし なし | ワンルーム 17.49m2 | 築4年 | 東京地下鉄半蔵門線 押上駅 徒歩7分 総武・中央緩行線 錦糸町駅 徒歩11分 東京都墨田区横川5丁目 | 詳細を見る | |
マンション メイクスデザイン茅場町(1K/6階) | |||||||
![]() | 12万円 1.5万円 | 12万円 12万円 | 1K 29.29m2 | 築19年 | 東京地下鉄日比谷線 茅場町駅 徒歩7分 東京地下鉄東西線 茅場町駅 徒歩7分 京葉線 八丁堀駅(東京) 徒歩8分 東京都中央区新川1丁目 | 詳細を見る | |









