賃貸マンション
ルビーマンションの賃貸物件情報(2LDK/2階)
| 家賃 | 管理費等 | 敷金 | 礼金 | 間取り | 専有面積 |
|---|---|---|---|---|---|
| 6.1万円 | 7,000円 | なし | 6.1万円 | 2LDK | 40m2 |
入居決定でお祝い金最大100,000円
- 保証金
- -
- 償却・敷引
- -
- 築年数
- 築39年
- 所在階
- 2階
- 向き
- 西
Point
その他、ペット・分譲・タワー・新築・SOHO・デザイナーズなど何でもご相談ください。天満橋谷町六丁目、中央区・北区・天王寺区・西区・福島区など市内中心部は谷町四丁目のツインホーム谷町店まで!
提供:ツインホーム(株)谷町店(SUUMO経由)

詳細情報 ルビーマンション
物件紹介
ルビーマンションは地下鉄千日前線新深江駅から徒歩4分にあり、駅近で通勤通学に便利なマンションです。
このお部屋は2階以上に位置しているので、通行人や周囲の住人からの視線が気になりにくく、防犯面でも安心です。
フローリングのお部屋なのでお掃除もラクラク。バス・トイレ別の仕様で、のんびりお風呂タイムも楽しめます。
通信設備面ではBSアンテナ・CSアンテナがあり、CATVにも対応しているので、おうち時間も充実するでしょう(別途工事、契約料が必要な場合あり)。
ペット飼育の相談ができますので、あなたの大切な家族の一員も快適に暮らせるか、ぜひ確認してみてください。
このお部屋は2階以上に位置しているので、通行人や周囲の住人からの視線が気になりにくく、防犯面でも安心です。
フローリングのお部屋なのでお掃除もラクラク。バス・トイレ別の仕様で、のんびりお風呂タイムも楽しめます。
通信設備面ではBSアンテナ・CSアンテナがあり、CATVにも対応しているので、おうち時間も充実するでしょう(別途工事、契約料が必要な場合あり)。
ペット飼育の相談ができますので、あなたの大切な家族の一員も快適に暮らせるか、ぜひ確認してみてください。
お金・契約の情報
※「-」と表示されているものは、実際は料金が発生するものもございます。詳細はお問い合わせください。
| 家賃 | 6.1万円 | 管理費・共益費 | 7,000円 |
|---|---|---|---|
| 敷金 | なし | 礼金 | 6.1万円 |
| 入居決定でお祝い金最大100,000円 | |||
| 保証金 | - | 償却・敷引 | - |
| 住宅保険料 | - | 更新料 | - |
| 保証会社利用 | 必須 | 保証会社名 | - |
| 保証会社費用 | - | 保証会社備考 | 保証会社利用必 ** |
| 契約形態 | - | 契約期間 | - |
| 入居・引渡期間 | 即時 | 現況 | - |
| 入居可能条件 | ペット相談 | ||
| 契約備考 | 2LDK 二人入居可/ペット相談 損保【要】 バストイレ別、バルコニー、エアコン、ガスコンロ対応、クロゼット、フローリング、陽当り良好、温水洗浄便座、洗面化粧台、2口コンロ、駐輪場、CATV、BS・CS、敷金不要、ペット相談、照明付、全居室収納、全居室洋室、単身者相談、二人入居相談、全居室フローリング、2沿線利用可、CS、眺望良好、クロゼット2ヶ所、2駅利用可、3駅以上利用可、3沿線以上利用可、駅徒歩5分以内、駅徒歩10分以内、全居室6畳以上、都市ガス、BS、礼金1ヶ月、保証会社利用可、IT重説対応物件、通風良好 | ||
部屋の情報
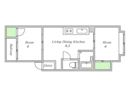
| 間取り | 2LDK | 専有面積 | 40m2 |
|---|---|---|---|
| 所在階 / 向き | 2階 / 西 | バルコニー面積 | - |
| 水道 / ガス | - | ||
| 設備 | バス・トイレ別、2階以上、エアコン、温水洗浄便座、バルコニー、フローリング、2口コンロ、コンロ:ガス、CATV、CSアンテナ、BSアンテナ | ||
| 当社物件ID | 158269207 | ||
建物の情報
| 建物名 | ルビーマンション | ||
|---|---|---|---|
| 所在地 | 大阪府大阪市東成区大今里南 | ||
| 交通 | 地下鉄千日前線 新深江駅 徒歩4分 近鉄大阪線 今里駅(近鉄) 徒歩5分 地下鉄中央線 深江橋駅 徒歩22分 | ||
| 階数 | 5階建 | 総戸数 | - |
| 築年月 | 1988年01月 / 築39年 | エレベーター | - |
| 駐車場 | なし | バイク置き場 | - |
| 駐輪場 | あり | 管理人/管理会社 | - |
| 周辺環境 | その他 マクドナルド 新深江店(飲食店)まで623m その他 chocoZAP(チョコザップ) 今里(その他)まで1023m その他 東成深江中郵便局(郵便局)まで1116m その他 大阪市立東成図書館(図書館)まで965m その他 東成区民センター(その他)まで976m その他 サイゼリヤ 北巽店(飲食店)まで1722m | ||
| 建物種別 | マンション | 建物構造 | 鉄骨造 |
この部屋の取扱い不動産会社
| 会社名 | ツインホーム(株)谷町店(SUUMO経由) | ||
|---|---|---|---|
| 所在地 | 大阪府大阪市中央区内本町1-1-8 | 交通 | - |
| 営業時間 | AM10:00~PM7:00 | 定休日 | なし |
| 免許番号 | 大阪府知事46704 | 取引態様 | 仲介 |
| 不動産会社管理番号 | 100445294145 | 当社管理番号 | 89 |
| 所属団体 | (公社)全日本不動産協会大阪府本部会員 | ||
| 公正取引協議会 | (公社)近畿地区不動産公正取引協議会加盟 | ||
| 取扱い物件情報 | 物件詳細へ | ||
※各種情報と現状に差異がある場合は、現状優先となります。問い合わせをすることで、より詳しい条件、情報を確認する事ができます。
提供:ツインホーム(株)谷町店(SUUMO経由)
この物件が気になったら掲載期限まであと10日
ルビーマンションに条件(家賃・エリア)が近い物件一覧
| 写真 | 家賃 管理費等 | 敷金 礼金 | 間取り 専有面積 | 築年数 | 最寄り駅 所在地 | キープ | 詳細 |
|---|---|---|---|---|---|---|---|
アパート クレストメゾン(1DK/2階) | |||||||
![]() | 6.7万円 3,000円 | なし 6.7万円 | 1DK 35.4m2 | 築1年 | 関西本線 久宝寺駅 徒歩17分 大阪府八尾市久宝寺1丁目 | 詳細を見る | |
マンション マンションはりげん鳳(1DK/4階) | |||||||
![]() | 7.7万円 7,000円 | 5万円 なし | 1DK 28.14m2 | 築6年 | 阪和線 鳳駅 徒歩2分 阪和線 津久野駅 徒歩24分 南海電鉄南海本線 羽衣駅 徒歩26分 大阪府堺市西区鳳東町1丁 | 詳細を見る | |
マンション プレリュード江坂(ワンルーム/5階) | |||||||
| 4.9万円 6,000円 | なし なし | ワンルーム 20.16m2 | 築28年 | 阪急電鉄千里線 関大前駅 徒歩11分 北大阪急行南北線 江坂駅 徒歩12分 北大阪急行南北線 緑地公園駅 徒歩14分 大阪府吹田市垂水町1丁目59-28 | 詳細を見る | ||
マンション KORE・YIELD千里丘(1DK/2階) | |||||||
| 8.5万円 1.1万円 | なし 8.5万円 | 1DK 26.53m2 | 築1年 | 阪急電鉄京都線 摂津市駅 徒歩10分 東海道本線 千里丘駅 徒歩11分 阪急電鉄京都線 正雀駅 徒歩15分 大阪府摂津市千里丘東5丁目未 | 詳細を見る | ||
マンション S-RESIDENCE堺BLAZE(1K/4階) | |||||||
![]() | 7.25万円 1万円 | なし なし | 1K 26.8m2 | 築1年 | 南海電鉄南海本線 堺駅 徒歩9分 南海電鉄高野線 堺東駅 徒歩15分 南海電鉄南海本線 七道駅 徒歩25分 大阪府堺市堺区熊野町東1丁 | 詳細を見る | |
アパート フジパレス向島町Ⅱ番館(1LDK/1階) | |||||||
![]() | 7.1万円 4,900円 | なし 13万円 | 1LDK 33m2 | 築2年 | 大阪市谷町線 大日駅 徒歩8分 京阪電気鉄道京阪線 門真市駅 徒歩14分 京阪電気鉄道京阪線 古川橋駅 徒歩16分 大阪府門真市向島町 | 詳細を見る | |
マンション マーブルコート(3DK/1階) | |||||||
![]() | 7.2万円 6,000円 | なし 10万円 | 3DK 58.55m2 | 築37年 | 京阪電気鉄道京阪線 門真市駅 徒歩7分 大阪モノレール本線 門真市駅 徒歩7分 大阪府門真市柳町 | 詳細を見る | |
アパート 東野マンション(3K/2階) | |||||||
![]() | 4.5万円 なし | なし 10万円 | 3K 35m2 | 築29年 | 京阪電気鉄道京阪線 古川橋駅 徒歩15分 京阪電気鉄道京阪線 大和田駅(大阪) 徒歩15分 大阪市長堀鶴見緑地 門真南駅 徒歩25分 大阪府門真市打越町 | 詳細を見る | |







