賃貸マンション
高輪ザ・レジデンスタワー棟の賃貸物件情報(3LDK/15階)
| 家賃 | 管理費等 | 敷金 | 礼金 | 間取り | 専有面積 |
|---|---|---|---|---|---|
| 46万円 | なし | 46万円 | 46万円 | 3LDK | 83.65m2 |
入居決定でお祝い金最大100,000円
- 保証金
- -
- 償却・敷引
- -
- 築年数
- 築21年
- 所在階
- 15階
- 向き
- 東
Point
☆初期費用クレジット決済もご相談ください◎オンライン内見・契約承ります☆
提供:(株)カムグラン(SUUMO経由)

詳細情報 高輪ザ・レジデンスタワー棟
物件紹介
高輪ザ・レジデンスタワー棟は都営浅草線高輪台駅から徒歩6分にあり、駅近で通勤通学に便利なマンションです。
このお部屋は2階以上に位置しているので、通行人や周囲の住人からの視線が気になりにくく、防犯面でも安心。建物のエントランスはオートロックがついており、インターホンにはTVモニタもついているため、相手の顔を確認してから来客対応することができます。
フローリングのお部屋なのでお掃除もラクラク。室内には人気のウォークインクローゼットがありますので、たくさんの荷物も効率的に収納ができます。キッチンはシステムキッチン仕様になっていますので、お料理好きの方にもぴったり。バス・トイレは別なので、のんびりお風呂タイムも楽しめるでしょう。また、雨の日でも浴室乾燥機を使えば、お洗濯も問題ありません。
通信設備面ではBSアンテナ・CSアンテナがあり、CATVにも対応しているので、おうち時間も充実するでしょう(別途工事、契約料が必要な場合あり)。
床暖房があり、冬も足元から暖かく快適に過ごすことができます。建物にはエレベーターがついているので、重い荷物があっても安心。共用部には宅配ボックスが設定されているので、不在の時にも荷物を受け取ることができます。
このお部屋は2階以上に位置しているので、通行人や周囲の住人からの視線が気になりにくく、防犯面でも安心。建物のエントランスはオートロックがついており、インターホンにはTVモニタもついているため、相手の顔を確認してから来客対応することができます。
フローリングのお部屋なのでお掃除もラクラク。室内には人気のウォークインクローゼットがありますので、たくさんの荷物も効率的に収納ができます。キッチンはシステムキッチン仕様になっていますので、お料理好きの方にもぴったり。バス・トイレは別なので、のんびりお風呂タイムも楽しめるでしょう。また、雨の日でも浴室乾燥機を使えば、お洗濯も問題ありません。
通信設備面ではBSアンテナ・CSアンテナがあり、CATVにも対応しているので、おうち時間も充実するでしょう(別途工事、契約料が必要な場合あり)。
床暖房があり、冬も足元から暖かく快適に過ごすことができます。建物にはエレベーターがついているので、重い荷物があっても安心。共用部には宅配ボックスが設定されているので、不在の時にも荷物を受け取ることができます。
お金・契約の情報
※「-」と表示されているものは、実際は料金が発生するものもございます。詳細はお問い合わせください。
| 家賃 | 46万円 | 管理費・共益費 | なし |
|---|---|---|---|
| 敷金 | 46万円 | 礼金 | 46万円 |
| 入居決定でお祝い金最大100,000円 | |||
| 保証金 | - | 償却・敷引 | - |
| 住宅保険料 | - | 更新料 | - |
| 保証会社利用 | 必須 | 保証会社名 | - |
| 保証会社費用 | - | 保証会社備考 | 保証会社利用必 初回契約時:50%、更新時:13,000円 |
| 契約形態 | - | 契約期間 | - |
| 入居・引渡期間 | - | 現況 | - |
| 契約備考 | 常駐管理 更新料 1ヶ月 3LDK 二人入居可/子供可 普通借家2年 損保【2.2万円2年】 バストイレ別、バルコニー、エアコン、ガスコンロ対応、クロゼット、フローリング、TVインターホン、浴室乾燥機、オートロック、室内洗濯置、陽当り良好、シューズボックス、システムキッチン、追焚機能浴室、温水洗浄便座、脱衣所、エレベーター、洗面所独立、洗面化粧台、駐輪場、宅配ボックス、CATV、BS・CS、対面式キッチン、防犯カメラ、24時間有人管理、分譲賃貸、グリル付、ウォークインクロゼット、保証人不要、二人入居相談、バイク置場、全居室フローリング、ガスレンジ付、LDK15畳以上、ディンプルキー、CS、床暖房、食器洗乾燥機、眺望良好、ダブルロックキー、ディスポーザー、24時間換気システム、L字型キッチン、オーブンレンジ、フロントサービス、耐震構造、3駅以上利用可、3沿線以上利用可、駅徒歩10分以内、タワー型マンション、高層階、24時間ゴミ出し可、敷地内ごみ置き場、専有面積25坪以上、和室、都市ガス、シューズWIC、BS、通風良好 入居日:'26年5月上旬 | ||
部屋の情報
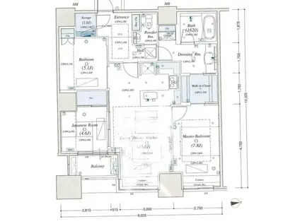
| 間取り | 3LDK | 専有面積 | 83.65m2 |
|---|---|---|---|
| 所在階 / 向き | 15階 / 東 | バルコニー面積 | - |
| 水道 / ガス | - | ||
| 設備 | バス・トイレ別、2階以上、オートロック、テレビドアホン、宅配ボックス、浴室乾燥機、ウォークインクローゼット、追い焚き、システムキッチン、エアコン、エレベーター、温水洗浄便座、バルコニー、フローリング、洗髪洗面化粧台、タワーマンション、床暖房、コンロ:ガス、CATV、CSアンテナ、BSアンテナ、洗濯機:室内 | ||
| 当社物件ID | 160550503 | ||
建物の情報
| 建物名 | 高輪ザ・レジデンスタワー棟 | ||
|---|---|---|---|
| 所在地 | 東京都港区高輪 | ||
| 交通 | 都営浅草線 高輪台駅 徒歩6分 東京メトロ南北線 白金台駅 徒歩8分 JR山手線 高輪ゲートウェイ駅 徒歩11分 | ||
| 階数 | 地下1地上47階建 | 総戸数 | - |
| 築年月 | 2005年10月 / 築21年 | エレベーター | あり |
| 駐車場 | 空有 40000円 | バイク置き場 | あり |
| 駐輪場 | あり | 管理人/管理会社 | - |
| 周辺環境 | その他 リンコス 高輪店(スーパー)まで1m その他 ローソン 白金台二丁目店(コンビニ)まで150m その他 ファミリーマート 高輪一丁目店(コンビニ)まで234m その他 ローソン 高輪三丁目店(コンビニ)まで271m その他 ツルハドラッグ 高輪台店(ドラッグストア)まで550m | ||
| 建物種別 | マンション | 建物構造 | RC(鉄筋コンクリート) |
この部屋の取扱い不動産会社
| 会社名 | (株)カムグラン(SUUMO経由) | ||
|---|---|---|---|
| 所在地 | 東京都港区麻布十番2-19-4Laniビル4F | 交通 | - |
| 営業時間 | 9:00-21:00 | 定休日 | なし |
| 免許番号 | 東京都知事113019 | 取引態様 | 仲介 |
| 不動産会社管理番号 | 100493400411 | 当社管理番号 | 89 |
| 所属団体 | (公社)東京都宅地建物取引業協会会員 | ||
| 公正取引協議会 | (公社)首都圏不動産公正取引協議会加盟 | ||
| 取扱い物件情報 | 物件詳細へ | ||
※各種情報と現状に差異がある場合は、現状優先となります。問い合わせをすることで、より詳しい条件、情報を確認する事ができます。
提供:(株)カムグラン(SUUMO経由)
この物件が気になったら掲載期限まであと11日
高輪ザ・レジデンスタワー棟に条件(家賃・エリア)が近い物件一覧
| 写真 | 家賃 管理費等 | 敷金 礼金 | 間取り 専有面積 | 築年数 | 最寄り駅 所在地 | キープ | 詳細 |
|---|---|---|---|---|---|---|---|
マンション BLUROCK神楽坂(2SLDK/3階) | |||||||
![]() | 45.1万円 1.5万円 | 45.1万円 なし | 2SLDK 73.34m2 | 築28年 | 東京都大江戸線 飯田橋駅 徒歩3分 東京都新宿区神楽坂3丁目 | 詳細を見る | |
マンション ザ・パークハビオ代々木(1LDK/3階) | |||||||
![]() | 30.8万円 2万円 | 30.8万円 なし | 1LDK 42.93m2 | 築1年 | 小田急線 南新宿駅 徒歩6分 小田急線 参宮橋駅 徒歩8分 JR山手線 代々木駅 徒歩10分 東京都渋谷区代々木 | 詳細を見る | |
マンション ザ・メイフェア(2LDK/7階) | |||||||
![]() | 35.5万円 1万円 | 35.5万円 35.5万円 | 2LDK 57.59m2 | 築1年 | 東京メトロ日比谷線 築地駅 徒歩1分 都営浅草線 東銀座駅 徒歩9分 JR山手線 有楽町駅 徒歩16分 東京都中央区築地 | 詳細を見る | |
マンション スターコート豊洲(3LDK/18階) | |||||||
![]() | 32万円 なし | 32万円 32万円 | 3LDK 80.42m2 | 築20年 | 東京メトロ有楽町線 豊洲駅 徒歩5分 新交通ゆりかもめ 豊洲駅 徒歩6分 東京都江東区豊洲 | 詳細を見る | |
マンション TS-COURT日本橋浜町(2LDK/6階) | |||||||
![]() | 30.5万円 2万円 | 30.5万円 なし | 2LDK 50.16m2 | 築3年 | 都営新宿線 浜町駅 徒歩3分 都営浅草線 東日本橋駅 徒歩6分 東京メトロ日比谷線 人形町駅 徒歩7分 東京都中央区日本橋浜町 | 詳細を見る | |
マンション WORLD TOWER RESIDENCE(1LDK/32階) | |||||||
![]() | 47万円 2万円 | 94万円 47万円 | 1LDK 42.96m2 | 築2年 | JR山手線 浜松町駅 徒歩2分 都営浅草線 大門駅(東京) 徒歩4分 新交通ゆりかもめ 竹芝駅 徒歩10分 東京都港区浜松町 | 詳細を見る | |
マンション MOMENTO SHIODOME(1LDK/20階) | |||||||
![]() | 31.4万円 1.5万円 | 31.4万円 31.4万円 | 1LDK 55.6m2 | 築16年 | 東京都大江戸線 汐留駅 徒歩3分 東京都港区東新橋2丁目 | 詳細を見る | |
マンション スカイズタワー&ガーデン(3LDK/20階) | |||||||
![]() | 39万円 1.5万円 | 39万円 39万円 | 3LDK 73.97m2 | 築12年 | 新交通ゆりかもめ 新豊洲駅 徒歩5分 新交通ゆりかもめ 市場前駅 徒歩12分 東京メトロ有楽町線 豊洲駅 徒歩13分 東京都江東区豊洲 | 詳細を見る | |









