賃貸マンション
マンションニュー池尻の賃貸物件情報(1LDK/2階)
| 家賃 | 管理費等 | 敷金 | 礼金 | 間取り | 専有面積 |
|---|---|---|---|---|---|
| 19.5万円 | 1.5万円 | 19.5万円 | 19.5万円 | 1LDK | 59.55m2 |
入居決定でお祝い金最大100,000円
Point
まずはお問い合わせ!
不動産会社は街のプロ、あなたに合った物件がきっと見つかります。
提供:日本デルタキャピタル(株)(SUUMO経由)

詳細情報 マンションニュー池尻
物件紹介
マンションニュー池尻は東急田園都市線池尻大橋駅から徒歩10分にあり、駅近で通勤通学に便利なマンションです。
このお部屋は2階以上に位置しているので、通行人や周囲の住人からの視線が気になりにくく、防犯面でも安心です。
こちらは楽器相談が可能な物件。楽器演奏をお考えの方はぜひ相談してみてください。フローリングのお部屋なのでお掃除もラクラク。キッチンはシステムキッチン仕様になっていますので、お料理好きの方にもぴったり。また、バス・トイレは別で、のんびりお風呂タイムも楽しめるでしょう。
通信設備面ではCATVに対応しているので、おうち時間も充実するでしょう(別途工事、契約料が必要な場合あり)。
建物にはエレベーターがついているので、重い荷物があっても安心。
このお部屋は2階以上に位置しているので、通行人や周囲の住人からの視線が気になりにくく、防犯面でも安心です。
こちらは楽器相談が可能な物件。楽器演奏をお考えの方はぜひ相談してみてください。フローリングのお部屋なのでお掃除もラクラク。キッチンはシステムキッチン仕様になっていますので、お料理好きの方にもぴったり。また、バス・トイレは別で、のんびりお風呂タイムも楽しめるでしょう。
通信設備面ではCATVに対応しているので、おうち時間も充実するでしょう(別途工事、契約料が必要な場合あり)。
建物にはエレベーターがついているので、重い荷物があっても安心。
お金・契約の情報
※「-」と表示されているものは、実際は料金が発生するものもございます。詳細はお問い合わせください。
| 家賃 | 19.5万円 | 管理費・共益費 | 1.5万円 |
|---|---|---|---|
| 敷金 | 19.5万円 | 礼金 | 19.5万円 |
| 入居決定でお祝い金最大100,000円 | |||
| 保証金 | - | 償却・敷引 | - |
| 住宅保険料 | - | 更新料 | - |
| 保証会社利用 | 必須 | 保証会社名 | - |
| 保証会社費用 | - | 保証会社備考 | 保証会社利用必 (株)アルテロック初回総賃料50%次年度より毎年総賃料10% |
| 契約形態 | 定期借家 | 契約期間 | 2年 |
| 入居・引渡期間 | 即時 | 現況 | - |
| 入居可能条件 | 楽器相談 | ||
| 契約備考 | 東急バス三宿駅バス1分三宿停歩1分/巡回管理/リフォームあり 1LDK 単身者可/二人入居可/子供可/楽器相談/事務所利用不可 定期借家2年 損保【2.4万円2年】 バストイレ別、エアコン、フローリング、室内洗濯置、システムキッチン、追焚機能浴室、温水洗浄便座、エレベーター、CATV、防犯カメラ、2駅利用可、駅徒歩10分以内 | ||
部屋の情報
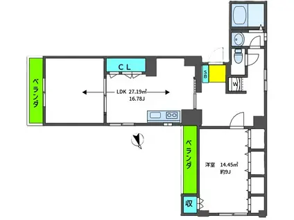
| 間取り | 1LDK | 専有面積 | 59.55m2 |
|---|---|---|---|
| 所在階 / 向き | 2階 / 東 | バルコニー面積 | 5m2 |
| 水道 / ガス | - | ||
| 設備 | バス・トイレ別、2階以上、追い焚き、システムキッチン、エアコン、エレベーター、温水洗浄便座、バルコニー、フローリング、CATV、洗濯機:室内 | ||
| 当社物件ID | 29699255 | ||
建物の情報
| 建物名 | マンションニュー池尻 | ||
|---|---|---|---|
| 所在地 | 東京都世田谷区池尻 | ||
| 交通 | 東急田園都市線 池尻大橋駅 徒歩10分 東急田園都市線 三軒茶屋駅 徒歩11分 | ||
| 階数 | 13階建 | 総戸数 | - |
| 築年月 | 1971年09月 / 築55年 | エレベーター | あり |
| 駐車場 | なし | バイク置き場 | - |
| 駐輪場 | - | 管理人/管理会社 | - |
| 周辺環境 | その他 オーケー池尻大橋店(スーパー)まで345m その他 スーパーオオゼキ池尻店(スーパー)まで422m その他 テンプル大学ジャパンキャンパス(大学・短大)まで960m その他 ローソン池尻三宿通店(コンビニ)まで184m その他 東邦大学医療センター大橋病院(病院)まで848m その他 私立昭和女子大学(大学・短大)まで710m | ||
| 建物種別 | マンション | 建物構造 | SRC(鉄骨鉄筋コンクリート) |
この部屋の取扱い不動産会社
| 会社名 | 日本デルタキャピタル(株)(SUUMO経由) | ||
|---|---|---|---|
| 所在地 | 東京都目黒区東山3-4-9 | 交通 | - |
| 営業時間 | 10時~17時30分 | 定休日 | 火曜・水曜 |
| 免許番号 | 東京都知事80291 | 取引態様 | 仲介 |
| 不動産会社管理番号 | 100488323411 | 当社管理番号 | 89 |
| 所属団体 | (公社)全日本不動産協会東京都本部会員 | ||
| 公正取引協議会 | (公社)首都圏不動産公正取引協議会加盟 | ||
| 取扱い物件情報 | 物件詳細へ | ||
※各種情報と現状に差異がある場合は、現状優先となります。問い合わせをすることで、より詳しい条件、情報を確認する事ができます。
提供:日本デルタキャピタル(株)(SUUMO経由)
この物件が気になったら掲載期限まであと10日
マンションニュー池尻に条件(家賃・エリア)が近い物件一覧
| 写真 | 家賃 管理費等 | 敷金 礼金 | 間取り 専有面積 | 築年数 | 最寄り駅 所在地 | キープ | 詳細 |
|---|---|---|---|---|---|---|---|
アパート SEED SAVE 南蒲田(2DK/2階) | |||||||
![]() | 13.1万円 3,000円 | 13.1万円 13.1万円 | 2DK 39.99m2 | 築3年 | 京浜急行電鉄空港線 糀谷駅 徒歩5分 京浜急行電鉄本線 京急蒲田駅 徒歩15分 東京都大田区南蒲田3丁目 | 詳細を見る | |
アパート フォレスタ世田谷(2LDK/2階) | |||||||
![]() | 18万円 1,000円 | 18万円 なし | 2LDK 47.7m2 | 築55年 | 東急池上線 雪が谷大塚駅 徒歩6分 東急東横線 田園調布駅 徒歩16分 東急目黒線 多摩川駅 徒歩16分 東京都世田谷区東玉川 | 詳細を見る | |
一戸建て 京浜急行電鉄本線 梅屋敷駅(東京) 徒歩9分 築25年(3LDK) | |||||||
![]() | 20万円 なし | 20万円 20万円 | 3LDK 80.82m2 | 築25年 | 京浜急行電鉄本線 梅屋敷駅(東京) 徒歩9分 京浜東北・根岸線 蒲田駅 徒歩10分 東京都大田区大森西7丁目 | 詳細を見る | |
マンション 本間ビル(3LDK/4階) | |||||||
![]() | 18万円 5,000円 | 18万円 18万円 | 3LDK 75m2 | 築47年 | 京浜急行電鉄本線 京急蒲田駅 徒歩5分 京浜急行電鉄空港線 糀谷駅 徒歩10分 東京都大田区南蒲田1丁目 | 詳細を見る | |
タウンハウス 大田菜園長屋(2LDK) | |||||||
![]() | 15.4万円 5,000円 | 15.4万円 23.1万円 | 2LDK 52.17m2 | 築10年 | 京浜急行電鉄本線 雑色駅 徒歩8分 京浜急行電鉄本線 六郷土手駅 徒歩13分 東京都大田区東六郷3丁目 | 詳細を見る | |
マンション ピュア・ダイジン(1LDK/2階) | |||||||
![]() | 11.7万円 5,000円 | 11.7万円 11.7万円 | 1LDK 42.49m2 | 築14年 | 京浜急行電鉄本線 梅屋敷駅(東京) 徒歩14分 京浜急行電鉄本線 大森町駅 徒歩16分 東京都大田区大森東4丁目 | 詳細を見る | |
マンション メゾンド・シャンテ(1LDK/1階) | |||||||
![]() | 15万円 3,000円 | 15万円 15万円 | 1LDK 40.05m2 | 築4年 | 京浜急行電鉄本線 梅屋敷駅(東京) 徒歩6分 京浜急行電鉄本線 京急蒲田駅 徒歩13分 東京都大田区蒲田2丁目 | 詳細を見る | |
マンション メゾンドボナール(1DK/4階) | |||||||
![]() | 12万円 3,000円 | 12万円 なし | 1DK 32.48m2 | 築29年 | 京浜東北・根岸線 蒲田駅 徒歩10分 京浜急行電鉄本線 京急蒲田駅 徒歩10分 東京都大田区蒲田3丁目 | 詳細を見る | |









