賃貸アパート
テラス金町の賃貸物件情報(1K/2階)
| 家賃 | 管理費等 | 敷金 | 礼金 | 間取り | 専有面積 |
|---|---|---|---|---|---|
| 6.7万円 | 4,000円 | なし | 6.7万円 | 1K | 13.78m2 |
入居決定でお祝い金最大100,000円
Point
室内設備は洗面化粧台・浴室乾燥機などが揃っており、とても充実しています。
提供:(株)SUNSアキバエステート上野アメ横店(SUUMO経由)

詳細情報 テラス金町
物件紹介
テラス金町はJR常磐線金町駅から徒歩9分にあり、駅近で通勤通学に便利なアパートです。
このお部屋は2階以上に位置しているので、通行人や周囲の住人からの視線が気になりにくく、防犯面でも安心。インターホンにはTVモニタもついているため、相手の顔を確認してから来客対応することができます。
おしゃれなデザイナーズ物件!キッチンはシステムキッチン仕様になっていますので、お料理好きの方にもぴったり。また、バス・トイレは別で、のんびりお風呂タイムも楽しめるでしょう。
通信設備面では、インターネットが無料で使えるので、月々の出費を抑えられるのも魅力です(別途工事等が必要な場合あり)。
共用部には宅配ボックスが設定されているので、不在の時にも荷物を受け取ることができます。
このお部屋は2階以上に位置しているので、通行人や周囲の住人からの視線が気になりにくく、防犯面でも安心。インターホンにはTVモニタもついているため、相手の顔を確認してから来客対応することができます。
おしゃれなデザイナーズ物件!キッチンはシステムキッチン仕様になっていますので、お料理好きの方にもぴったり。また、バス・トイレは別で、のんびりお風呂タイムも楽しめるでしょう。
通信設備面では、インターネットが無料で使えるので、月々の出費を抑えられるのも魅力です(別途工事等が必要な場合あり)。
共用部には宅配ボックスが設定されているので、不在の時にも荷物を受け取ることができます。
お金・契約の情報
※「-」と表示されているものは、実際は料金が発生するものもございます。詳細はお問い合わせください。
| 家賃 | 6.7万円 | 管理費・共益費 | 4,000円 |
|---|---|---|---|
| 敷金 | なし | 礼金 | 6.7万円 |
| 入居決定でお祝い金最大100,000円 | |||
| 保証金 | - | 償却・敷引 | - |
| 住宅保険料 | 1円 | 更新料 | - |
| その他費用 | インターネット開通費:1.65万円、16500円:、24時間サポート:1.98万円 | ||
| 保証会社利用 | 必須 | 保証会社名 | - |
| 保証会社費用 | - | 保証会社備考 | 初回保証料:30%〜50% |
| 契約形態 | - | 契約期間 | 2年 |
| 入居・引渡期間 | 2025年12月上旬 | 現況 | - |
| 入居可能条件 | 事務所不可、楽器不可、ペット不可 | ||
| 契約備考 | 短期解約違約金有 エアコンクリーニング費 13200円 室内除菌・消臭費 19800円 月額(町会費 300円) 室内清掃費用:38500 その他設備/条件:室内洗濯機置き場、防犯カメラ | ||
部屋の情報
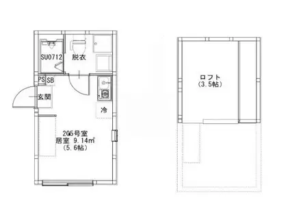
| 間取り | 1K | 専有面積 | 13.78m2 |
|---|---|---|---|
| 所在階 / 向き | 2階 / 南 | バルコニー面積 | - |
| 水道 / ガス | 水道【公営】、ガス【プロパン】 | ||
| 設備 | バス・トイレ別、テレビドアホン、宅配ボックス、インターネット対応、エアコン、温水洗浄便座、フローリング、ロフトあり、コンロ:ガス、インターネット使用料無料、シャワー、給湯、1口コンロ | ||
| 当社物件ID | 159719627 | ||
建物の情報
| 建物名 | テラス金町 | ||
|---|---|---|---|
| 所在地 | 東京都葛飾区東金町6丁目 | ||
| 交通 | 千代田・常磐緩行線 金町駅 徒歩10分 京成電鉄金町線 京成金町駅 徒歩10分 | ||
| 階数 | 2階建 | 総戸数 | - |
| 築年月 | 2025年11月 / 新築(築1年) | エレベーター | - |
| 駐車場 | なし | バイク置き場 | - |
| 駐輪場 | - | 管理人/管理会社 | - |
| 周辺環境 | 小学校 長門小学校 徒歩39分(3115m) その他 ドラッグストア その他 公園 その他 銀行 その他 * | ||
| 建物種別 | アパート | 建物構造 | 木造 |
この部屋の取扱い不動産会社
| 会社名 | ハウスコム東東京株式会社 北千住店 | ||
|---|---|---|---|
| 所在地 | 東京都足立区3-11NSビル1階 | 交通 | - |
| 営業時間 | 10:00~18:00 | 定休日 | - |
| 免許番号 | 東京都知事(1)第108283号 | 取引態様 | 仲介 |
| 不動産会社管理番号 | HC2-5194668-205-0138 | 当社管理番号 | 468 |
| 所属団体 | 、 | ||
| 取扱い物件情報 | 物件詳細へ | ||
※各種情報と現状に差異がある場合は、現状優先となります。問い合わせをすることで、より詳しい条件、情報を確認する事ができます。
提供:ハウスコム東東京株式会社 北千住店
この物件が気になったら掲載期限まであと5日
テラス金町に条件(家賃・エリア)が近い物件一覧
| 写真 | 家賃 管理費等 | 敷金 礼金 | 間取り 専有面積 | 築年数 | 最寄り駅 所在地 | キープ | 詳細 |
|---|---|---|---|---|---|---|---|
マンション 錦糸町コクーン(1K/2階) | |||||||
![]() | 10.5万円 5,800円 | なし 21万円 | 1K 27.42m2 | 築6年 | 東京都新宿線 菊川駅(東京) 徒歩8分 総武・中央緩行線 錦糸町駅 徒歩13分 東京都大江戸線 両国駅 徒歩15分 東京都墨田区緑4丁目 | 詳細を見る | |
マンション サンライズコーポ(ワンルーム/3階) | |||||||
![]() | 8.7万円 5,000円 | 8.7万円 なし | ワンルーム 21.26m2 | 築40年 | 東京都浅草線 本所吾妻橋駅 徒歩4分 東京地下鉄銀座線 浅草駅(東武・都営・メトロ) 徒歩8分 東京都墨田区東駒形3丁目 | 詳細を見る | |
マンション ファーストプレイス菊川(1K/10階) | |||||||
![]() | 8.5万円 8,000円 | 8.5万円 8.5万円 | 1K 20.02m2 | 築18年 | 都営新宿線 菊川駅(東京) 徒歩2分 都営大江戸線 森下駅(東京) 徒歩11分 東京メトロ半蔵門線 清澄白河駅 徒歩11分 東京都墨田区菊川 | 詳細を見る | |
マンション リガーレ本所吾妻橋(1K/6階) | |||||||
![]() | 8.5万円 1万円 | 8.5万円 8.5万円 | 1K 22.12m2 | 築20年 | 東京都浅草線 本所吾妻橋駅 徒歩8分 東京都大江戸線 蔵前駅 徒歩10分 東京都大江戸線 両国駅 徒歩13分 東京都墨田区本所2丁目 | 詳細を見る | |
マンション GRANDE菊川(1K/2階) | |||||||
![]() | 10.2万円 1万円 | 10.2万円 10.2万円 | 1K 25.06m2 | 築7年 | 東京都新宿線 菊川駅(東京) 徒歩4分 東京都大江戸線 森下駅(東京) 徒歩10分 総武・中央緩行線 錦糸町駅 徒歩23分 東京都墨田区菊川2丁目 | 詳細を見る | |
マンション メイクスデザイン両国サウス(1K/5階) | |||||||
![]() | 10.1万円 1.2万円 | 10.1万円 10.1万円 | 1K 26.2m2 | 築9年 | JR総武線 両国駅 徒歩11分 都営浅草線 本所吾妻橋駅 徒歩12分 東京メトロ半蔵門線 錦糸町駅 徒歩14分 東京都墨田区石原 | 詳細を見る | |
マンション 千歳プラザ(ワンルーム/7階) | |||||||
![]() | 7.3万円 5,000円 | 7.3万円 なし | ワンルーム 20.72m2 | 築34年 | 東京都大江戸線 森下駅(東京) 徒歩4分 東京都新宿線 森下駅(東京) 徒歩4分 総武・中央緩行線 両国駅 徒歩10分 東京都墨田区千歳3丁目 | 詳細を見る | |
マンション ウインベル錦糸町第3(ワンルーム/10階) | |||||||
![]() | 7.1万円 5,000円 | 7.1万円 なし | ワンルーム 18.38m2 | 築34年 | 東京都大江戸線 両国駅 徒歩12分 総武・中央緩行線 錦糸町駅 徒歩15分 東京都墨田区石原3丁目 | 詳細を見る | |








