賃貸マンション
ズーム信濃町の賃貸物件情報(ワンルーム/9階)
| 家賃 | 管理費等 | 敷金 | 礼金 | 間取り | 専有面積 |
|---|---|---|---|---|---|
| 16.6万円 | 1.5万円 | 16.6万円 | 16.6万円 | ワンルーム | 29.48m2 |
入居決定でお祝い金最大100,000円
- 保証金
- -
- 償却・敷引
- -
- 築年数
- 築1年
- 所在階
- 9階
- 向き
- 東
Point
ペットを飼っていいか相談できます。これからペットを飼いたいと思っている方にもおすすめです。24時間ゴミ出し可なので、ゴミが溜まったらすぐ捨てられる為お部屋を衛生的に保てます。インターネットが使い放題♪
提供:恵比寿不動産 都心チーム(株)ライフアドバンス(SUUMO経由)

詳細情報 ズーム信濃町
物件紹介
ズーム信濃町は東京メトロ丸ノ内線四谷三丁目駅から徒歩6分にあり、駅近で通勤通学に便利なマンションです。
このお部屋は2階以上に位置しているので、通行人や周囲の住人からの視線が気になりにくく、防犯面でも安心。建物のエントランスはオートロックがついており、インターホンにはTVモニタもついているため、相手の顔を確認してから来客対応することができます。
おしゃれなデザイナーズ物件!人気の角部屋で周囲の居住者の生活音も気になりにくく、また、フローリングのお部屋なのでお掃除もラクラク。キッチンはシステムキッチン仕様になっていますので、お料理好きの方にもぴったり。バス・トイレは別なので、のんびりお風呂タイムも楽しめるでしょう。また、雨の日でも浴室乾燥機を使えば、お洗濯も問題ありません。
通信設備面では、インターネットが無料で使えるので、月々の出費を抑えられるのも魅力です(別途工事等が必要な場合あり)。
床暖房があり、冬も足元から暖かく快適に過ごすことができます。建物にはエレベーターがついているので、重い荷物があっても安心。共用部には宅配ボックスが設定されているので、不在の時にも荷物を受け取ることができます。また、ペット飼育の相談ができますので、あなたの大切な家族の一員も快適に暮らせるか、ぜひ確認してみてください。
このお部屋は2階以上に位置しているので、通行人や周囲の住人からの視線が気になりにくく、防犯面でも安心。建物のエントランスはオートロックがついており、インターホンにはTVモニタもついているため、相手の顔を確認してから来客対応することができます。
おしゃれなデザイナーズ物件!人気の角部屋で周囲の居住者の生活音も気になりにくく、また、フローリングのお部屋なのでお掃除もラクラク。キッチンはシステムキッチン仕様になっていますので、お料理好きの方にもぴったり。バス・トイレは別なので、のんびりお風呂タイムも楽しめるでしょう。また、雨の日でも浴室乾燥機を使えば、お洗濯も問題ありません。
通信設備面では、インターネットが無料で使えるので、月々の出費を抑えられるのも魅力です(別途工事等が必要な場合あり)。
床暖房があり、冬も足元から暖かく快適に過ごすことができます。建物にはエレベーターがついているので、重い荷物があっても安心。共用部には宅配ボックスが設定されているので、不在の時にも荷物を受け取ることができます。また、ペット飼育の相談ができますので、あなたの大切な家族の一員も快適に暮らせるか、ぜひ確認してみてください。
お金・契約の情報
※「-」と表示されているものは、実際は料金が発生するものもございます。詳細はお問い合わせください。
| 家賃 | 16.6万円 | 管理費・共益費 | 1.5万円 |
|---|---|---|---|
| 敷金 | 16.6万円 | 礼金 | 16.6万円 |
| 入居決定でお祝い金最大100,000円 | |||
| 保証金 | - | 償却・敷引 | - |
| 住宅保険料 | - | 更新料 | - |
| 保証会社利用 | 必須 | 保証会社名 | リクルートフォレントインシュア |
| 保証会社費用 | - | 保証会社備考 | オリコフォレントインシュア利用必 トーシンライフ、、/保証料:初回=賃料等×50%、月額=賃料等×1% |
| 契約形態 | - | 契約期間 | - |
| 入居・引渡期間 | 即時 | 現況 | - |
| 入居可能条件 | ペット相談 | ||
| 契約備考 | 更新料新賃料(ヶ月):1.00ヶ月、家財保険+付帯サービス(税込):1735円/月 ワンルーム 二人入居可/ペット相談 普通借家2年 バストイレ別、バルコニー、エアコン、ガスコンロ対応、クロゼット、フローリング、TVインターホン、浴室乾燥機、オートロック、室内洗濯置、シューズボックス、システムキッチン、追焚機能浴室、角住戸、温水洗浄便座、エレベーター、洗面所独立、2口コンロ、駐輪場、宅配ボックス、外壁タイル張り、即入居可、2面採光、防犯カメラ、ペット相談、照明付、分譲賃貸、オートバス、グリル付、敷金1ヶ月、二人入居相談、バイク置場、デザイナーズ、ネット専用回線、ネット使用料不要、床暖房、トランクルーム、保証金不要、築2年以内、24時間換気システム、人感照明センサー、3駅以上利用可、3沿線以上利用可、駅徒歩5分以内、24時間ゴミ出し可、都市ガス、オートライト、マルチメディアコンセント、礼金1ヶ月、初期費用カード決済可 | ||
部屋の情報
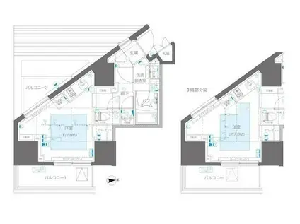
| 間取り | ワンルーム | 専有面積 | 29.48m2 |
|---|---|---|---|
| 所在階 / 向き | 9階 / 東 | バルコニー面積 | 4m2 |
| 水道 / ガス | - | ||
| 設備 | バス・トイレ別、2階以上、オートロック、テレビドアホン、宅配ボックス、浴室乾燥機、追い焚き、インターネット対応、システムキッチン、エアコン、エレベーター、温水洗浄便座、角部屋、バルコニー、フローリング、トランクルーム、洗髪洗面化粧台、床暖房、2口コンロ、コンロ:ガス、デザイナーズ、インターネット使用料無料、洗濯機:室内 | ||
| 当社物件ID | 159976725 | ||
建物の情報
| 建物名 | ズーム信濃町 | ||
|---|---|---|---|
| 所在地 | 東京都新宿区左門町 | ||
| 交通 | 東京メトロ丸ノ内線 四谷三丁目駅 徒歩6分 JR中央線 信濃町駅 徒歩9分 都営大江戸線 国立競技場駅 徒歩15分 | ||
| 階数 | 13階建 | 総戸数 | - |
| 築年月 | 2025年07月 / 築1年 | エレベーター | あり |
| 駐車場 | なし | バイク置き場 | あり |
| 駐輪場 | あり | 管理人/管理会社 | - |
| 周辺環境 | その他 コモレモール(ショッピングセンター)まで1310m その他 MARUSHO総本店(スーパー)まで400m その他 セブンイレブン新宿信濃町店(コンビニ)まで80m その他 サンドラッグCVS四谷三丁目店(ドラッグストア)まで300m その他 ソメヤ家具新宿店(ソメイユ東京)(ホームセンター)まで430m その他 新宿マルイメン(ショッピングセンター)まで1860m | ||
| 建物種別 | マンション | 建物構造 | RC(鉄筋コンクリート) |
この部屋の取扱い不動産会社
| 会社名 | 恵比寿不動産 恵比寿店(株)ライフアドバンス(SUUMO経由) | ||
|---|---|---|---|
| 所在地 | 東京都渋谷区東3-25-11 TOKYUREIT恵比寿ビル7階 | 交通 | - |
| 営業時間 | 10時~19時 | 定休日 | 水曜日 |
| 免許番号 | 東京都知事97301 | 取引態様 | 仲介 |
| 不動産会社管理番号 | 100475719059 | 当社管理番号 | 89 |
| 所属団体 | (公社)全日本不動産協会東京都本部会員 | ||
| 公正取引協議会 | (公社)首都圏不動産公正取引協議会加盟 | ||
| 取扱い物件情報 | 物件詳細へ | ||
※各種情報と現状に差異がある場合は、現状優先となります。問い合わせをすることで、より詳しい条件、情報を確認する事ができます。
提供:恵比寿不動産 恵比寿店(株)ライフアドバンス(SUUMO経由)
この物件が気になったら掲載期限まであと10日
ズーム信濃町に条件(家賃・エリア)が近い物件一覧
| 写真 | 家賃 管理費等 | 敷金 礼金 | 間取り 専有面積 | 築年数 | 最寄り駅 所在地 | キープ | 詳細 |
|---|---|---|---|---|---|---|---|
マンション ZOOM日本橋馬喰町(1K/8階) | |||||||
![]() | 13.1万円 9,000円 | 13.1万円 13.1万円 | 1K 26.09m2 | 築8年 | 総武本線 馬喰町駅 徒歩2分 東京都新宿線 馬喰横山駅 徒歩3分 東京都浅草線 東日本橋駅 徒歩3分 東京都千代田区東神田1丁目 | 詳細を見る | |
マンション アーバンコア本郷(1K/2階) | |||||||
![]() | 15.4万円 1万円 | 15.4万円 なし | 1K 25.39m2 | 築6年 | 東京地下鉄丸ノ内線 本郷三丁目駅 徒歩4分 総武・中央緩行線 水道橋駅 徒歩9分 東京地下鉄丸ノ内線 御茶ノ水駅 徒歩10分 東京都文京区本郷2丁目 | 詳細を見る | |
マンション R-STYLE文京小石川(ワンルーム/7階) | |||||||
![]() | 22.2万円 1.9万円 | なし なし | ワンルーム 42.54m2 | 築13年 | 東京地下鉄有楽町線 江戸川橋駅 徒歩9分 東京都文京区水道2丁目 | 詳細を見る | |
マンション レジディア神田岩本町(ワンルーム/4階) | |||||||
![]() | 16.2万円 2万円 | 16.2万円 16.2万円 | ワンルーム 30.97m2 | 築22年 | 東京都新宿線 岩本町駅 徒歩3分 東京地下鉄日比谷線 秋葉原駅 徒歩5分 中央本線 神田駅(東京) 徒歩7分 東京都千代田区岩本町2丁目 | 詳細を見る | |
マンション QU4TTRO ARCA 九段(1K/4階) | |||||||
![]() | 17.5万円 1万円 | 17.5万円 なし | 1K 29.33m2 | 築7年 | 東京地下鉄東西線 九段下駅 徒歩2分 総武・中央緩行線 飯田橋駅 徒歩8分 東京都三田線 水道橋駅 徒歩8分 東京都千代田区九段北1丁目 | 詳細を見る | |
マンション ジオエント本郷三丁目(1SLDK/12階) | |||||||
![]() | 26.5万円 1.5万円 | 26.5万円 なし | 1SLDK 40.06m2 | 築2年 | 東京地下鉄丸ノ内線 本郷三丁目駅 徒歩4分 東京都三田線 水道橋駅 徒歩8分 東京地下鉄丸ノ内線 御茶ノ水駅 徒歩9分 東京都文京区本郷3丁目 | 詳細を見る | |
マンション ライジングプレイス秋葉原(1K/4階) | |||||||
![]() | 13.5万円 1.5万円 | なし 13.5万円 | 1K 30.29m2 | 築19年 | 東京都新宿線 岩本町駅 徒歩4分 山手線 秋葉原駅 徒歩9分 総武本線 馬喰町駅 徒歩9分 東京都千代田区東神田2丁目 | 詳細を見る | |
マンション ALIVIO 千石(1K/4階) | |||||||
![]() | 11.5万円 1万円 | なし なし | 1K 27.38m2 | 築2年 | 東京都三田線 千石駅 徒歩8分 東京地下鉄丸ノ内線 茗荷谷駅 徒歩15分 東京都三田線 白山駅(東京) 徒歩15分 東京都文京区千石2丁目 | 詳細を見る | |








