賃貸アパート
アーバングレイス五反野Iの賃貸物件情報(1K/3階)
| 家賃 | 管理費等 | 敷金 | 礼金 | 間取り | 専有面積 |
|---|---|---|---|---|---|
| 6.5万円 | 4,000円 | なし | なし | 1K | 17.95m2 |
入居決定でお祝い金最大100,000円
- 保証金
- 3.3万円
- 償却・敷引
- -
- 築年数
- 築1年
- 所在階
- 3階
- 向き
- 北西
Point
グッドリビングでは、新築、築浅、リノベーション、貸家戸建、分譲賃貸、ペット可、デザイナーズ、UR賃貸、など多数用意しております。カード決済、初期費用の分割も可能です。1月から3月は無休で営業致します。
提供:スムラボ (有)スムラボ(SUUMO経由)

詳細情報 アーバングレイス五反野I
物件紹介
アーバングレイス五反野Iは東武伊勢崎線五反野駅から徒歩10分にあり、駅近で通勤通学に便利なアパートです。
このお部屋は2階以上に位置しているので、通行人や周囲の住人からの視線が気になりにくく、防犯面でも安心。建物のエントランスはオートロックがついており、インターホンにはTVモニタもついているため、相手の顔を確認してから来客対応することができます。
キッチンはシステムキッチン仕様になっていますので、お料理好きの方にもぴったり。バス・トイレは別なので、のんびりお風呂タイムも楽しめるでしょう。また、雨の日でも浴室乾燥機を使えば、お洗濯も問題ありません。
通信設備面では、インターネットが無料で使えるので、月々の出費を抑えられるのも魅力です。また、BSアンテナもありますので、おうち時間も充実するでしょう(別途工事、BSの契約料等が必要な場合あり)。
このお部屋は2階以上に位置しているので、通行人や周囲の住人からの視線が気になりにくく、防犯面でも安心。建物のエントランスはオートロックがついており、インターホンにはTVモニタもついているため、相手の顔を確認してから来客対応することができます。
キッチンはシステムキッチン仕様になっていますので、お料理好きの方にもぴったり。バス・トイレは別なので、のんびりお風呂タイムも楽しめるでしょう。また、雨の日でも浴室乾燥機を使えば、お洗濯も問題ありません。
通信設備面では、インターネットが無料で使えるので、月々の出費を抑えられるのも魅力です。また、BSアンテナもありますので、おうち時間も充実するでしょう(別途工事、BSの契約料等が必要な場合あり)。
お金・契約の情報
※「-」と表示されているものは、実際は料金が発生するものもございます。詳細はお問い合わせください。
| 家賃 | 6.5万円 | 管理費・共益費 | 4,000円 |
|---|---|---|---|
| 敷金 | なし | 礼金 | なし |
| 入居決定でお祝い金最大100,000円 | |||
| 保証金 | 3.3万円 | 償却・敷引 | - |
| 住宅保険料 | - | 更新料 | - |
| 保証会社利用 | 必須 | 保証会社名 | - |
| 保証会社費用 | - | 保証会社備考 | 保証会社利用必 初回保証料、総家賃の50% 以降10,000円/年、550円/月 |
| 契約形態 | - | 契約期間 | - |
| 入居・引渡期間 | 即時 | 現況 | - |
| 契約備考 | 五反野の最大の魅力は子育て環境です。風俗街、飲屋街はないので治安もよく、幼稚園・保育園、小学校、公園などが多くありますので、ファミリー層に人気を頂いているエリアです。注目を集めている北千住からも千住大橋を超えてすぐの所に位置しておりますが、家賃相場も北千住に比べてお安くご入居でき、駅前のスーパーに加え八百屋、卸問屋などでお安く野菜が購入できます。伊勢崎線は日比谷線直通なので都内にもアクセス良好 合計5.28万円(内訳:クリーニング費用33000円 鍵交換費用19800円) 24サポート月額1320円 1K 損保【2万円2年】 バストイレ別、エアコン、ガスコンロ対応、クロゼット、フローリング、浴室乾燥機、オートロック、室内洗濯置、温水洗浄便座、光ファイバー、即入居可、閑静な住宅地、最上階、敷金不要、ロフト、保証人不要、駅まで平坦、ネット使用料不要、築2年以内、3駅以上利用可、駅徒歩10分以内、敷地内ごみ置き場、都市ガス、BS、通風良好 | ||
部屋の情報
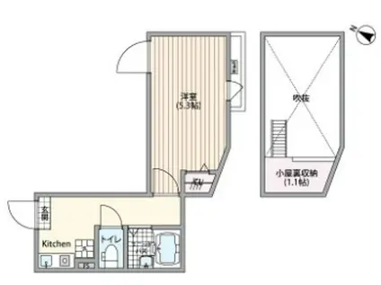
| 間取り | 1K | 専有面積 | 17.95m2 |
|---|---|---|---|
| 所在階 / 向き | 3階 / 北西 | バルコニー面積 | - |
| 水道 / ガス | - | ||
| 設備 | バス・トイレ別、2階以上、オートロック、浴室乾燥機、インターネット対応、エアコン、温水洗浄便座、フローリング、ロフトあり、コンロ:ガス、BSアンテナ、インターネット使用料無料、洗濯機:室内 | ||
| 当社物件ID | 158844606 | ||
建物の情報
| 建物名 | アーバングレイス五反野I | ||
|---|---|---|---|
| 所在地 | 東京都足立区梅田 | ||
| 交通 | 東武伊勢崎線 五反野駅 徒歩10分 東武伊勢崎線 梅島駅 徒歩12分 東武伊勢崎線 小菅駅 徒歩23分 | ||
| 階数 | 3階建 | 総戸数 | 12戸 |
| 築年月 | 2025年06月 / 築1年 | エレベーター | - |
| 駐車場 | 近隣 240m22000円 | バイク置き場 | - |
| 駐輪場 | - | 管理人/管理会社 | - |
| 周辺環境 | その他 セブン-イレブン(コンビニ)まで500m その他 オリンピック(スーパー)まで400m その他 梅田病院(病院)まで160m その他 足立区立弥生小学校(小学校)まで550m | ||
| 建物種別 | アパート | 建物構造 | 木造 |
この部屋の取扱い不動産会社
| 会社名 | (株)グッドリビング北千住店(SUUMO経由) | ||
|---|---|---|---|
| 所在地 | 東京都足立区千住2-22 | 交通 | - |
| 営業時間 | 9時30分から19時00分 | 定休日 | 1月~3月は定休日なし |
| 免許番号 | 東京都知事92240 | 取引態様 | 仲介 |
| 不動産会社管理番号 | 100441452506 | 当社管理番号 | 89 |
| 所属団体 | (公社)全日本不動産協会東京都本部会員 | ||
| 公正取引協議会 | (公社)首都圏不動産公正取引協議会加盟 | ||
| 取扱い物件情報 | 物件詳細へ | ||
※各種情報と現状に差異がある場合は、現状優先となります。問い合わせをすることで、より詳しい条件、情報を確認する事ができます。
提供:(株)グッドリビング北千住店(SUUMO経由)
この物件が気になったら掲載期限まであと11日
アーバングレイス五反野Iに条件(家賃・エリア)が近い物件一覧
| 写真 | 家賃 管理費等 | 敷金 礼金 | 間取り 専有面積 | 築年数 | 最寄り駅 所在地 | キープ | 詳細 |
|---|---|---|---|---|---|---|---|
アパート 藤荘(ワンルーム/1階) | |||||||
![]() | 4.4万円 1,000円 | 4.4万円 4.4万円 | ワンルーム 15m2 | 築52年 | 東京メトロ南北線 赤羽岩淵駅 徒歩8分 JR京浜東北線 赤羽駅 徒歩11分 東京メトロ南北線 志茂駅 徒歩16分 東京都北区岩淵町 | 詳細を見る | |
アパート プラザ・ドゥ・ブラハーム(1K/1階) | |||||||
![]() | 4.5万円 なし | なし なし | 1K 12.96m2 | 築39年 | 東武伊勢崎線 五反野駅 徒歩10分 東京メトロ千代田線 綾瀬駅 徒歩12分 つくばエクスプレス 青井駅 徒歩14分 東京都足立区西綾瀬 | 詳細を見る | |
アパート ハーモニーテラス西ヶ原III(ワンルーム/2階) | |||||||
![]() | 6.45万円 3,500円 | なし 3.23万円 | ワンルーム 10.53m2 | 築5年 | 都電荒川線 滝野川一丁目駅 徒歩4分 都営三田線 西巣鴨駅 徒歩9分 東京メトロ南北線 西ケ原駅 徒歩10分 東京都北区西ケ原 | 詳細を見る | |
マンション Kハイム(1K/2階) | |||||||
![]() | 8.47万円 3,300円 | 16.94万円 8.47万円 | 1K 29.64m2 | 築29年 | 東武伊勢崎線 西新井駅 徒歩3分 東京都足立区西新井栄町 | 詳細を見る | |
アパート ソフィア佐野A(1K/2階) | |||||||
![]() | 4.2万円 3,000円 | なし なし | 1K 14.42m2 | 築40年 | 東京地下鉄千代田線 北綾瀬駅 徒歩22分 東京都足立区佐野2丁目 | 詳細を見る | |
マンション アヴァンセクール町屋(1K/3階) | |||||||
![]() | 8.4万円 9,000円 | 8.4万円 8.4万円 | 1K 20.5m2 | 築16年 | 京成本線 新三河島駅 徒歩3分 東京メトロ千代田線 町屋駅 徒歩7分 JR山手線 西日暮里駅 徒歩15分 東京都荒川区荒川 | 詳細を見る | |
マンション サンアイガーデン見沼代親水公園(1K/6階) | |||||||
![]() | 7.7万円 5,800円 | なし 9.7万円 | 1K 25.69m2 | 築6年 | 日暮里・舎人ライナー 見沼代親水公園駅 徒歩2分 東京都足立区舎人 | 詳細を見る | |
マンション ランドマーク平田(3DK/3階) | |||||||
![]() | 9.4万円 3,000円 | 9.4万円 9.4万円 | 3DK 51.15m2 | 築34年 | つくばエクスプレス 青井駅 徒歩6分 東武伊勢崎線 五反野駅 徒歩18分 東京メトロ千代田線 北綾瀬駅 徒歩23分 東京都足立区青井 | 詳細を見る | |








