賃貸アパート
エクセルピア七辻の賃貸物件情報(ワンルーム/1階)
| 家賃 | 管理費等 | 敷金 | 礼金 | 間取り | 専有面積 |
|---|---|---|---|---|---|
| 5.8万円 | 3,000円 | 11.6万円 | なし | ワンルーム | 24.3m2 |
入居決定でお祝い金最大100,000円
- 保証金
- -
- 償却・敷引
- -
- 築年数
- 築34年
- 所在階
- 1階
- 向き
- 南
Point
室内設備は照明付き・CATV・エアコンなどが揃っているので、快適に過ごしやすいお部屋になります。「エクセルピア七辻」の物件情報をお探しならお気軽にお問い合わせ下さい。
提供:(株)KENTY不動産蒲田東口店(SUUMO経由)

詳細情報 エクセルピア七辻
物件紹介
エクセルピア七辻は京急空港線糀谷駅から徒歩10分にあり、駅近で通勤通学に便利なアパートです。
通信設備面では、インターネット接続が可能です。また、CATVにも対応しているので、おうち時間も充実するでしょう(別途工事、契約料が必要な場合あり)。
通信設備面では、インターネット接続が可能です。また、CATVにも対応しているので、おうち時間も充実するでしょう(別途工事、契約料が必要な場合あり)。
お金・契約の情報
※「-」と表示されているものは、実際は料金が発生するものもございます。詳細はお問い合わせください。
| 家賃 | 5.8万円 | 管理費・共益費 | 3,000円 |
|---|---|---|---|
| 敷金 | 11.6万円 | 礼金 | なし |
| 入居決定でお祝い金最大100,000円 | |||
| 保証金 | - | 償却・敷引 | - |
| 住宅保険料 | - | 更新料 | - |
| 保証会社利用 | 必須 | 保証会社名 | - |
| 保証会社費用 | - | 保証会社備考 | 保証会社利用必 初回保証料50%・更新料10,000円/年・振替手数料400円別途税 |
| 契約形態 | - | 契約期間 | - |
| 入居・引渡期間 | 即時 | 現況 | - |
| 契約備考 | 新生活、オシャレなワンルームで楽しく快適な暮らしを実現。駅より徒歩10分で帰宅できる、快適な環境が魅力的な物件です。幅広い方に好評のフローリング張りのアパートとなっています。静かに生活できる角部屋のお部屋の紹介はこちらとなっております。室内設備はCATV・エアコン・照明付きなどが揃っているので、快適に過ごしやすいお部屋になります。こだわりポイント満載のエクセルピア七辻。 合計2.2万円(内訳:鍵交換代2.2万円) 更新料 新賃料1.00ヶ月分 ワンルーム 事務所利用不可 普通借家2年 損保【2.15万円2年】 エアコン、ガスコンロ対応、フローリング、南向き、角住戸、CATV、即入居可、礼金不要、閑静な住宅地、照明付、ロフト、全居室洋室、保証人不要、2沿線利用可、保証金不要、2駅利用可、3駅以上利用可、3沿線以上利用可、駅徒歩10分以内、都市ガス | ||
部屋の情報
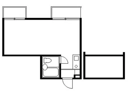
| 間取り | ワンルーム | 専有面積 | 24.3m2 |
|---|---|---|---|
| 所在階 / 向き | 1階 / 南 | バルコニー面積 | - |
| 水道 / ガス | - | ||
| 設備 | エアコン、南向き、角部屋、フローリング、ロフトあり、コンロ:ガス、CATV | ||
| 当社物件ID | 29739701 | ||
建物の情報
| 建物名 | エクセルピア七辻 | ||
|---|---|---|---|
| 所在地 | 東京都大田区萩中 | ||
| 交通 | 京急空港線 糀谷駅 徒歩10分 京急本線 京急蒲田駅 徒歩15分 JR京浜東北線 蒲田駅 バス乗車時間:12分 最寄りバス停で下車 徒歩3分 | ||
| 階数 | 2階建 | 総戸数 | - |
| 築年月 | 1992年12月 / 築34年 | エレベーター | - |
| 駐車場 | なし | バイク置き場 | - |
| 駐輪場 | - | 管理人/管理会社 | - |
| 周辺環境 | その他 ローソン・スリーエフ 蒲田消防署前店(コンビニ)まで545m その他 第五相模湯(その他)まで650m その他 ステーキハンバーグ&サラダバー けん 蒲田店(飲食店)まで560m その他 さわやか信用金庫六郷支店(銀行)まで686m その他 ココス 大田萩中店(飲食店)まで766m その他 ドリームコーヒー南六郷店(飲食店)まで627m | ||
| 建物種別 | アパート | 建物構造 | 木造 |
この部屋の取扱い不動産会社
| 会社名 | (株)KENTY不動産蒲田本店(SUUMO経由) | ||
|---|---|---|---|
| 所在地 | 東京都大田区西蒲田7-46-5 | 交通 | - |
| 営業時間 | 9:00~18:00 | 定休日 | なし |
| 免許番号 | 国土交通大臣10546 | 取引態様 | 仲介 |
| 不動産会社管理番号 | 100470268164 | 当社管理番号 | 89 |
| 所属団体 | (公社)全日本不動産協会東京都本部会員 | ||
| 公正取引協議会 | (公社)首都圏不動産公正取引協議会加盟 | ||
| 取扱い物件情報 | 物件詳細へ | ||
※各種情報と現状に差異がある場合は、現状優先となります。問い合わせをすることで、より詳しい条件、情報を確認する事ができます。
提供:(株)KENTY不動産蒲田本店(SUUMO経由)
この物件が気になったら掲載期限まであと10日
エクセルピア七辻に条件(家賃・エリア)が近い物件一覧
| 写真 | 家賃 管理費等 | 敷金 礼金 | 間取り 専有面積 | 築年数 | 最寄り駅 所在地 | キープ | 詳細 |
|---|---|---|---|---|---|---|---|
マンション ラトレールエスポワール(1K/3階) | |||||||
![]() | 9.1万円 3,000円 | 9.1万円 9.1万円 | 1K 24.6m2 | 築23年 | 東急多摩川線 下丸子駅 徒歩4分 東急多摩川線 武蔵新田駅 徒歩14分 東急池上線 千鳥町駅 徒歩14分 東京都大田区下丸子 | 詳細を見る | |
アパート M SONIA KUGAHARA(ワンルーム/1階) | |||||||
![]() | 9.3万円 3,000円 | 9.3万円 13.95万円 | ワンルーム 24.57m2 | 築1年 | 東急池上線 久が原駅 徒歩8分 東急池上線 御嶽山駅 徒歩9分 東急多摩川線 鵜の木駅 徒歩13分 東京都大田区西嶺町 | 詳細を見る | |
アパート パールハイツ(ワンルーム/2階) | |||||||
![]() | 5.6万円 2,000円 | 5.6万円 なし | ワンルーム 16.97m2 | 築16年 | 東急池上線 蓮沼駅 徒歩10分 JR京浜東北線 蒲田駅 徒歩12分 東急池上線 池上駅 徒歩16分 東京都大田区西蒲田 | 詳細を見る | |
マンション ドゥーエ西大島(1K/5階) | |||||||
![]() | 9.2万円 7,000円 | 9.2万円 9.2万円 | 1K 20.52m2 | 築20年 | 都営新宿線 西大島駅 徒歩6分 都営新宿線 住吉駅(東京) 徒歩10分 東京メトロ半蔵門線 住吉駅(東京) 徒歩10分 東京都江東区大島 | 詳細を見る | |
マンション ラ・ルーナ(1K/3階) | |||||||
![]() | 9.2万円 3,000円 | 9.2万円 なし | 1K 28.13m2 | 築15年 | 京急本線 梅屋敷駅(東京) 徒歩9分 JR京浜東北線 蒲田駅 徒歩13分 京急本線 京急蒲田駅 徒歩13分 東京都大田区蒲田 | 詳細を見る | |
マンション メゾンプレジール(1K/1階) | |||||||
![]() | 7.2万円 2,000円 | 7.2万円 なし | 1K 20.83m2 | 築22年 | 京浜東北・根岸線 蒲田駅 徒歩15分 東急池上線 池上駅 徒歩21分 東京都大田区中央8丁目 | 詳細を見る | |
マンション ベルシード大島(1K/4階) | |||||||
![]() | 9.1万円 1.5万円 | なし 9.1万円 | 1K 25.48m2 | 築3年 | 東京都新宿線 大島駅(東京) 徒歩10分 東京都江東区北砂5丁目 | 詳細を見る | |







