賃貸マンション
エビスファーストプレイスの賃貸物件情報(1K/11階)
| 家賃 | 管理費等 | 敷金 | 礼金 | 間取り | 専有面積 |
|---|---|---|---|---|---|
| 16万円 | 5,000円 | 48万円 | 32万円 | 1K | 30.56m2 |
入居決定でお祝い金最大100,000円
- 保証金
- -
- 償却・敷引
- 16万円
- 築年数
- 築19年
- 所在階
- 11階
- 向き
- -
Point
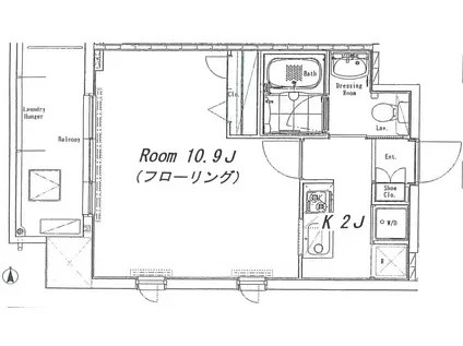
バストイレ別・独立洗面台・宅配BOX等の設備充実の1Kタイプ。住居はもちろんオフィスや美容系店舗もご相談可能です。
提供:(株)きふね(SUUMO経由)

詳細情報 エビスファーストプレイス
物件紹介
エビスファーストプレイスはJR山手線恵比寿駅から徒歩4分にあり、駅近で通勤通学に便利なマンションです。
このお部屋は2階以上に位置しているので、通行人や周囲の住人からの視線が気になりにくく、防犯面でも安心。建物のエントランスはオートロックがついており、インターホンにはTVモニタもついているため、相手の顔を確認してから来客対応することができます。
フローリングのお部屋なのでお掃除もラクラク。キッチンはシステムキッチン仕様になっていますので、お料理好きの方にもぴったり。バス・トイレは別なので、のんびりお風呂タイムも楽しめるでしょう。また、雨の日でも浴室乾燥機を使えば、お洗濯も問題ありません。
建物にはエレベーターがついているので、重い荷物があっても安心。共用部には宅配ボックスが設定されているので、不在の時にも荷物を受け取ることができます。
このお部屋は2階以上に位置しているので、通行人や周囲の住人からの視線が気になりにくく、防犯面でも安心。建物のエントランスはオートロックがついており、インターホンにはTVモニタもついているため、相手の顔を確認してから来客対応することができます。
フローリングのお部屋なのでお掃除もラクラク。キッチンはシステムキッチン仕様になっていますので、お料理好きの方にもぴったり。バス・トイレは別なので、のんびりお風呂タイムも楽しめるでしょう。また、雨の日でも浴室乾燥機を使えば、お洗濯も問題ありません。
建物にはエレベーターがついているので、重い荷物があっても安心。共用部には宅配ボックスが設定されているので、不在の時にも荷物を受け取ることができます。
お金・契約の情報
※「-」と表示されているものは、実際は料金が発生するものもございます。詳細はお問い合わせください。
| 家賃 | 16万円 | 管理費・共益費 | 5,000円 |
|---|---|---|---|
| 敷金 | 48万円 | 礼金 | 32万円 |
| 入居決定でお祝い金最大100,000円 | |||
| 保証金 | - | 償却・敷引 | 16万円 |
| 住宅保険料 | - | 更新料 | - |
| 保証会社利用 | 必須 | 保証会社名 | 日本セーフティー |
| 保証会社費用 | - | 保証会社備考 | 日本セーフティー利用必 初回保証料50% 月額保証料800円 月額手数料330円 |
| 契約形態 | - | 契約期間 | - |
| 入居・引渡期間 | 即時 | 現況 | - |
| 入居可能条件 | 事務所可 | ||
| 契約備考 | 通勤管理/民泊不可 合計4.95万円(内訳:鍵交換:1.65万円害虫駆除・予防費用3.3万円) 退去時室内クリーニング費用・エアコン洗浄借主負担 1K 事務所利用相談 普通借家2年 損保【1.8万円2年】 バストイレ別、バルコニー、エアコン、クロゼット、フローリング、シャワー付洗面台、TVインターホン、浴室乾燥機、オートロック、室内洗濯置、シューズボックス、システムキッチン、追焚機能浴室、温水洗浄便座、エレベーター、洗面化粧台、2口コンロ、宅配ボックス、即入居可、保証人不要、全居室フローリング、2沿線利用可、眺望良好、ダブルロックキー、事務所相談、24時間換気システム、2駅利用可、3駅以上利用可、3沿線以上利用可、駅徒歩5分以内、駅徒歩10分以内、敷地内ごみ置き場、日勤管理、都市ガス、三面鏡付洗面化粧台 | ||
部屋の情報
| 間取り | 1K | 専有面積 | 30.56m2 |
|---|---|---|---|
| 所在階 / 向き | 11階 / - | バルコニー面積 | - |
| 水道 / ガス | - | ||
| 設備 | バス・トイレ別、2階以上、オートロック、テレビドアホン、宅配ボックス、浴室乾燥機、追い焚き、システムキッチン、エアコン、エレベーター、温水洗浄便座、バルコニー、フローリング、2口コンロ、洗濯機:室内 | ||
| 当社物件ID | 160108894 | ||
建物の情報
| 建物名 | エビスファーストプレイス | ||
|---|---|---|---|
| 所在地 | 東京都渋谷区恵比寿 | ||
| 交通 | JR山手線 恵比寿駅 徒歩4分 東京メトロ日比谷線 恵比寿駅 徒歩5分 東急東横線 代官山駅 徒歩15分 | ||
| 階数 | 13階建 | 総戸数 | - |
| 築年月 | 2007年08月 / 築19年 | エレベーター | あり |
| 駐車場 | なし | バイク置き場 | - |
| 駐輪場 | - | 管理人/管理会社 | - |
| 周辺環境 | その他 アトレ恵比寿(ショッピングセンター)まで419m その他 セブンイレブン渋谷恵比寿1丁目南店(コンビニ)まで247m その他 ビオセボン恵比寿店(スーパー)まで280m その他 ファミリーマート恵比寿四丁目店(コンビニ)まで207m その他 マツモトキヨシ恵比寿駅東口店(ドラッグストア)まで414m その他 成城石井アトレ恵比寿店(スーパー)まで419m | ||
| 建物種別 | マンション | 建物構造 | RC(鉄筋コンクリート) |
この部屋の取扱い不動産会社
| 会社名 | (株)きふね(SUUMO経由) | ||
|---|---|---|---|
| 所在地 | 東京都渋谷区恵比寿1-22-3 | 交通 | - |
| 営業時間 | AM10:00~PM6:30 | 定休日 | 土日、祝祭日 |
| 免許番号 | 東京都知事74166 | 取引態様 | 仲介 |
| 不動産会社管理番号 | 100479796896 | 当社管理番号 | 89 |
| 所属団体 | (公社)全日本不動産協会東京都本部会員 | ||
| 公正取引協議会 | (公社)首都圏不動産公正取引協議会加盟 | ||
| 取扱い物件情報 | 物件詳細へ | ||
※各種情報と現状に差異がある場合は、現状優先となります。問い合わせをすることで、より詳しい条件、情報を確認する事ができます。
提供:(株)きふね(SUUMO経由)
この物件が気になったら掲載期限まであと10日
エビスファーストプレイスに条件(家賃・エリア)が近い物件一覧
| 写真 | 家賃 管理費等 | 敷金 礼金 | 間取り 専有面積 | 築年数 | 最寄り駅 所在地 | キープ | 詳細 |
|---|---|---|---|---|---|---|---|
マンション オアーゼ品川レジデンス(1K/5階) | |||||||
![]() | 12.8万円 1万円 | 12.8万円 12.8万円 | 1K 25.24m2 | 築6年 | りんかい線 品川シーサイド駅 徒歩4分 京急本線 青物横丁駅 徒歩8分 京急本線 鮫洲駅 徒歩11分 東京都品川区東品川 | 詳細を見る | |
マンション 第2成城島田マンション(2DK/1階) | |||||||
![]() | 14万円 5,000円 | なし なし | 2DK 43.78m2 | 築25年 | 小田急線 成城学園前駅 徒歩8分 小田急線 祖師ケ谷大蔵駅 徒歩20分 京王線 仙川駅 徒歩31分 東京都世田谷区成城 | 詳細を見る | |
マンション グランドコンシェルジュ広尾(ワンルーム/8階) | |||||||
![]() | 13.5万円 5,000円 | 13.5万円 13.5万円 | ワンルーム 26.36m2 | 築18年 | 東京メトロ日比谷線 広尾駅 徒歩10分 東京メトロ南北線 白金高輪駅 徒歩14分 JR山手線 恵比寿駅 徒歩15分 東京都港区白金 | 詳細を見る | |
マンション J.GRAN COURT 品川西大井ウエスト(2LDK/3階) | |||||||
![]() | 20.4万円 2万円 | 20.4万円 なし | 2LDK 41.11m2 | 築3年 | JR横須賀線 西大井駅 徒歩7分 湘南新宿ライン宇須 西大井駅 徒歩7分 東京都品川区西大井 | 詳細を見る | |
マンション HEATHGATE DAIZAWA(1LDK/1階) | |||||||
![]() | 16.2万円 6,000円 | 16.2万円 24.3万円 | 1LDK 40.44m2 | 築8年 | 東急田園都市線 三軒茶屋駅 徒歩13分 京王井の頭線 下北沢駅 徒歩15分 東急世田谷線 若林駅(東京) 徒歩15分 東京都世田谷区代沢 | 詳細を見る | |
アパート セレスティア中野上高田(2LDK/2階) | |||||||
![]() | 25.5万円 1.5万円 | なし 51万円 | 2LDK 62.65m2 | 新築 | 東京都大江戸線 落合南長崎駅 徒歩12分 東京都中野区上高田5丁目 | 詳細を見る | |







/105x80-f1-q70-wp1)