賃貸マンション
レジディア恵比寿IIの賃貸物件情報(1K/10階)
| 家賃 | 管理費等 | 敷金 | 礼金 | 間取り | 専有面積 |
|---|---|---|---|---|---|
| 18万円 | 1.5万円 | なし | なし | 1K | 29.44m2 |
入居決定でお祝い金最大100,000円
- 保証金
- -
- 償却・敷引
- -
- 築年数
- 築20年
- 所在階
- 10階
- 向き
- 南
Point
まずはお問い合わせ!
不動産会社は街のプロ、あなたに合った物件がきっと見つかります。
提供:シェルビー不動産(株)ROGER ROOM(SUUMO経由)

詳細情報 レジディア恵比寿II
物件紹介
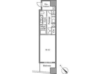
レジディア恵比寿IIは東京メトロ日比谷線恵比寿駅から徒歩4分にあり、駅近で通勤通学に便利なマンションです。
このお部屋は2階以上に位置しているので、通行人や周囲の住人からの視線が気になりにくく、防犯面でも安心。建物のエントランスはオートロックがついており、インターホンにはTVモニタもついているため、相手の顔を確認してから来客対応することができます。
人気の南向きのお部屋。また、フローリングなのでお掃除もラクラク。キッチンはシステムキッチン仕様になっていますので、お料理好きの方にもぴったり。バス・トイレは別なので、のんびりお風呂タイムも楽しめるでしょう。また、雨の日でも浴室乾燥機を使えば、お洗濯も問題ありません。
建物にはエレベーターがついているので、重い荷物があっても安心。共用部には宅配ボックスが設定されているので、不在の時にも荷物を受け取ることができます。
このお部屋は2階以上に位置しているので、通行人や周囲の住人からの視線が気になりにくく、防犯面でも安心。建物のエントランスはオートロックがついており、インターホンにはTVモニタもついているため、相手の顔を確認してから来客対応することができます。
人気の南向きのお部屋。また、フローリングなのでお掃除もラクラク。キッチンはシステムキッチン仕様になっていますので、お料理好きの方にもぴったり。バス・トイレは別なので、のんびりお風呂タイムも楽しめるでしょう。また、雨の日でも浴室乾燥機を使えば、お洗濯も問題ありません。
建物にはエレベーターがついているので、重い荷物があっても安心。共用部には宅配ボックスが設定されているので、不在の時にも荷物を受け取ることができます。
お金・契約の情報
※「-」と表示されているものは、実際は料金が発生するものもございます。詳細はお問い合わせください。
| 家賃 | 18万円 | 管理費・共益費 | 1.5万円 |
|---|---|---|---|
| 敷金 | なし | 礼金 | なし |
| 入居決定でお祝い金最大100,000円 | |||
| 保証金 | - | 償却・敷引 | - |
| 住宅保険料 | - | 更新料 | - |
| 保証会社利用 | 必須 | 保証会社名 | - |
| 保証会社費用 | - | 保証会社備考 | 保証会社利用必 初回契約時:40%、更新時:10 000円、月額:1 000円 |
| 契約形態 | - | 契約期間 | - |
| 入居・引渡期間 | 相談 | 現況 | - |
| 契約備考 | ※敷金0:個人限定※1年未満解約時、賃料1ヶ月分の違約金有り※保証会社利用必須※大手法人契約の場合は敷金2ヶ月※セカンドハウス利用不可 合計2.2万円(内訳:鍵交換代2.2万円) 更新料 新賃料1.00ヶ月分 1K 普通借家2年 損保【2.15万円2年】 バストイレ別、エアコン、クロゼット、フローリング、TVインターホン、浴室乾燥機、オートロック、室内洗濯置、システムキッチン、追焚機能浴室、温水洗浄便座、エレベーター、洗面所独立、洗面化粧台、駐輪場、宅配ボックス、外壁タイル張り、防犯カメラ、仲介手数料不要、バイク置場、敷地内ごみ置き場 | ||
部屋の情報
| 間取り | 1K | 専有面積 | 29.44m2 |
|---|---|---|---|
| 所在階 / 向き | 10階 / 南 | バルコニー面積 | - |
| 水道 / ガス | - | ||
| 設備 | バス・トイレ別、2階以上、オートロック、テレビドアホン、宅配ボックス、浴室乾燥機、追い焚き、システムキッチン、エアコン、エレベーター、温水洗浄便座、南向き、フローリング、洗髪洗面化粧台、洗濯機:室内 | ||
| 当社物件ID | 160105307 | ||
建物の情報
| 建物名 | レジディア恵比寿II | ||
|---|---|---|---|
| 所在地 | 東京都渋谷区恵比寿西 | ||
| 交通 | 東京メトロ日比谷線 恵比寿駅 徒歩4分 東急東横線 代官山駅 徒歩5分 JR山手線 恵比寿駅 徒歩6分 | ||
| 階数 | 15階建 | 総戸数 | - |
| 築年月 | 2006年01月 / 築20年 | エレベーター | あり |
| 駐車場 | なし | バイク置き場 | あり |
| 駐輪場 | あり | 管理人/管理会社 | - |
| 周辺環境 | その他 ピーコックストア 恵比寿南店(スーパー)まで304m その他 ピーコックストア 恵比寿店(スーパー)まで384m その他 セブンイレブン 渋谷恵比寿南3丁目店(コンビニ)まで89m その他 ナチュラルローソン 恵比寿南三丁目店(コンビニ)まで185m その他 ファミリーマート 恵比寿南三丁目店(コンビニ)まで211m | ||
| 建物種別 | マンション | 建物構造 | RC(鉄筋コンクリート) |
この部屋の取扱い不動産会社
| 会社名 | シェルビー不動産(株)ROGER ROOM(SUUMO経由) | ||
|---|---|---|---|
| 所在地 | 東京都渋谷区渋谷3-18-10大野ビル5階 | 交通 | - |
| 営業時間 | 10:00~22:00 | 定休日 | なし |
| 免許番号 | 東京都知事110173 | 取引態様 | 仲介 |
| 不動産会社管理番号 | 100479682882 | 当社管理番号 | 89 |
| 所属団体 | (公社)東京都宅地建物取引業協会会員 | ||
| 公正取引協議会 | (公社)首都圏不動産公正取引協議会加盟 | ||
| 取扱い物件情報 | 物件詳細へ | ||
※各種情報と現状に差異がある場合は、現状優先となります。問い合わせをすることで、より詳しい条件、情報を確認する事ができます。
提供:シェルビー不動産(株)ROGER ROOM(SUUMO経由)
この物件が気になったら掲載期限まであと10日
レジディア恵比寿IIに条件(家賃・エリア)が近い物件一覧
| 写真 | 家賃 管理費等 | 敷金 礼金 | 間取り 専有面積 | 築年数 | 最寄り駅 所在地 | キープ | 詳細 |
|---|---|---|---|---|---|---|---|
マンション カスタリア目黒 1階(1SLDK/1階) | |||||||
![]() | 26.9万円 8,000円 | 26.9万円 なし | 1SLDK 59.55m2 | 築26年 | 東急東横線 中目黒駅 徒歩15分 JR山手線 目黒駅 徒歩16分 JR山手線 恵比寿駅 徒歩18分 東京都目黒区目黒 | 詳細を見る | |
マンション クリオラモード学芸大学I(1LDK/1階) | |||||||
![]() | 19.5万円 1.3万円 | なし なし | 1LDK 40.25m2 | 築2年 | 東急東横線 学芸大学駅 徒歩11分 東急東横線 祐天寺駅 徒歩13分 東京メトロ日比谷線 中目黒駅 徒歩23分 東京都目黒区中央町 | 詳細を見る | |
マンション ヴェルデ・ビュー二子玉川(1LDK/2階) | |||||||
![]() | 16万円 4,000円 | 16万円 32万円 | 1LDK 46.65m2 | 築13年 | 東急大井町線 上野毛駅 徒歩11分 東急田園都市線 二子玉川駅 徒歩17分 東急大井町線 等々力駅 徒歩19分 東京都世田谷区野毛 | 詳細を見る | |
マンション フレンシア外苑西 Ⅰ(ワンルーム/6階) | |||||||
![]() | 23万円 なし | 23万円 23万円 | ワンルーム 34.43m2 | 築18年 | 東京都大江戸線 国立競技場駅 徒歩4分 東京都渋谷区千駄ヶ谷1丁目 | 詳細を見る | |
アパート クレイノコーポ新井(1K/1階) | |||||||
![]() | 12.2万円 5,500円 | なし 12.2万円 | 1K 31.51m2 | 築9年 | 京王電鉄京王線 幡ケ谷駅 徒歩13分 東京都中野区南台2丁目 | 詳細を見る | |
マンション ジオエント白金台(1K/3階) | |||||||
![]() | 14.9万円 1万円 | 14.9万円 14.9万円 | 1K 20.65m2 | 築1年 | 山手線 目黒駅 徒歩7分 東京地下鉄南北線 白金台駅 徒歩8分 東京都港区白金台3丁目 | 詳細を見る | |
アパート ステートPLUS(1LDK/1階) | |||||||
![]() | 13.6万円 6,000円 | 13.6万円 13.6万円 | 1LDK 34.78m2 | 築54年 | 東京都新宿線 曙橋駅 徒歩5分 東京都大江戸線 若松河田駅 徒歩8分 東京都新宿区住吉町 | 詳細を見る | |
マンション ALTERNA北品川(1LDK/13階) | |||||||
![]() | 19.3万円 1.5万円 | なし なし | 1LDK 41m2 | 築3年 | 京急本線 新馬場駅 徒歩6分 京急本線 北品川駅 徒歩10分 りんかい線 天王洲アイル駅 徒歩13分 東京都品川区北品川 | 詳細を見る | |





/105x80-f1-q70-wp1)



