賃貸アパート
HERO YAMAHANA1の賃貸物件情報(1LDK/3階)
| 家賃 | 管理費等 | 敷金 | 礼金 | 間取り | 専有面積 |
|---|---|---|---|---|---|
| 6.6万円 | 4,000円 | 6.6万円 | なし | 1LDK | 38.54m2 |
入居決定でお祝い金最大100,000円
- 保証金
- -
- 償却・敷引
- -
- 築年数
- 新築
- 所在階
- 3階
- 向き
- 北
- 交通
- 札幌市電 西線11条駅 徒歩2分
札幌市電 西線14条駅 徒歩8分
札幌市電 西線9条旭山公園通駅 徒歩9分
- 所在地
- 北海道札幌市中央区南十二条西
HERO YAMAHANA1
[地図を表示]
Point
札幌市電「西線11条」徒歩2分♪2026年7月完成の新築物件!エアコン・ネット無料の1LDKの募集を開始しました(^_^)/38平米以上・システムキッチン・ウォシュレット・浴室乾燥機・宅配ボックス☆
提供:ビッグ桑園店(株)パワー・ステーション(SUUMO経由)

詳細情報 HERO YAMAHANA1
物件紹介
HERO YAMAHANA1は札幌市電西線11条駅から徒歩2分にあり、駅近で通勤通学に便利なアパートです。
このお部屋は2階以上に位置しているので、通行人や周囲の住人からの視線が気になりにくく、防犯面でも安心。建物のエントランスはオートロックがついており、インターホンにはTVモニタもついているため、相手の顔を確認してから来客対応することができます。
おしゃれなデザイナーズ物件!人気の角部屋。周囲の居住者の生活音も気になりにくい場所です。また、室内にはウォークインクローゼットがありますので、たくさんの荷物も効率的に収納ができます。キッチンはシステムキッチン仕様になっていますので、お料理好きの方にもぴったり。バス・トイレは別なので、のんびりお風呂タイムも楽しめるでしょう。また、雨の日でも浴室乾燥機を使えば、お洗濯も問題ありません。
通信設備面では、インターネットが無料で使えるので、月々の出費を抑えられるのも魅力です(別途工事等が必要な場合あり)。
また、こちらはガス暖房が可能な物件。ガスファンヒーターの使用も考えている方にはおすすめです。共用部には宅配ボックスが設定されているので、不在の時にも荷物を受け取ることができます。
このお部屋は2階以上に位置しているので、通行人や周囲の住人からの視線が気になりにくく、防犯面でも安心。建物のエントランスはオートロックがついており、インターホンにはTVモニタもついているため、相手の顔を確認してから来客対応することができます。
おしゃれなデザイナーズ物件!人気の角部屋。周囲の居住者の生活音も気になりにくい場所です。また、室内にはウォークインクローゼットがありますので、たくさんの荷物も効率的に収納ができます。キッチンはシステムキッチン仕様になっていますので、お料理好きの方にもぴったり。バス・トイレは別なので、のんびりお風呂タイムも楽しめるでしょう。また、雨の日でも浴室乾燥機を使えば、お洗濯も問題ありません。
通信設備面では、インターネットが無料で使えるので、月々の出費を抑えられるのも魅力です(別途工事等が必要な場合あり)。
また、こちらはガス暖房が可能な物件。ガスファンヒーターの使用も考えている方にはおすすめです。共用部には宅配ボックスが設定されているので、不在の時にも荷物を受け取ることができます。
お金・契約の情報
※「-」と表示されているものは、実際は料金が発生するものもございます。詳細はお問い合わせください。
| 家賃 | 6.6万円 | 管理費・共益費 | 4,000円 |
|---|---|---|---|
| 敷金 | 6.6万円 | 礼金 | なし |
| 入居決定でお祝い金最大100,000円 | |||
| 保証金 | - | 償却・敷引 | - |
| 住宅保険料 | - | 更新料 | - |
| 契約形態 | - | 契約期間 | - |
| 入居・引渡期間 | - | 現況 | - |
| 契約備考 | 巡回管理 合計6.16万円(内訳:エアコン清掃料27500円 退去時清掃料34100円) 町内会費月額300円ホット24hサービス月額1705円 1LDK 単身者可/二人入居可 普通借家2年 損保【要】 バストイレ別、エアコン、クロゼット、シャワー付洗面台、TVインターホン、浴室乾燥機、室内洗濯置、陽当り良好、シューズボックス、システムキッチン、角住戸、温水洗浄便座、脱衣所、洗面所独立、洗面化粧台、2口コンロ、駐輪場、宅配ボックス、光ファイバー、礼金不要、独立型キッチン、照明付、全居室洋室、ウォークインクロゼット、保証人不要、単身者相談、二人入居相談、デザイナーズ、ネット専用回線、ネット使用料不要、眺望良好、築2年以内、築3年以内、学生相談、2駅利用可、3駅以上利用可、路面電車沿線、駅徒歩5分以内、駅徒歩10分以内、バス停徒歩3分以内、敷地内ごみ置き場、築5年以内、LDK12畳以上、保証会社利用可、IT重説対応物件、初期費用カード決済可、通風良好 入居日:'26年7月上旬 | ||
部屋の情報
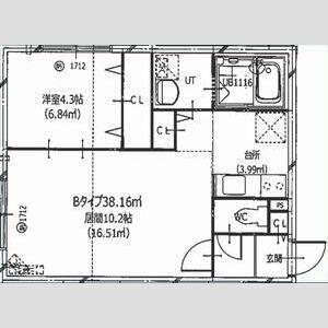
| 間取り | 1LDK | 専有面積 | 38.54m2 |
|---|---|---|---|
| 所在階 / 向き | 3階 / 北 | バルコニー面積 | - |
| 水道 / ガス | - | ||
| 設備 | バス・トイレ別、2階以上、テレビドアホン、宅配ボックス、浴室乾燥機、ウォークインクローゼット、インターネット対応、システムキッチン、エアコン、温水洗浄便座、角部屋、洗髪洗面化粧台、2口コンロ、デザイナーズ、インターネット使用料無料、洗濯機:室内 | ||
| 当社物件ID | 160170536 | ||
建物の情報
| 建物名 | HERO YAMAHANA1 | ||
|---|---|---|---|
| 所在地 | 北海道札幌市中央区南十二条西 | ||
| 交通 | 札幌市電 西線11条駅 徒歩2分 札幌市電 西線14条駅 徒歩8分 札幌市電 西線9条旭山公園通駅 徒歩9分 | ||
| 階数 | 4階建 | 総戸数 | 19戸 |
| 築年月 | 2026年07月 / 新築 | エレベーター | - |
| 駐車場 | 空有 14300円 | バイク置き場 | - |
| 駐輪場 | あり | 管理人/管理会社 | - |
| 周辺環境 | その他 ゴルフ5南13条店(ショッピングセンター)まで698m その他 スーパーアークス山鼻店(スーパー)まで543m その他 セイコーマートとらや店(コンビニ)まで277m その他 ツルハドラッグ南14条店(ドラッグストア)まで378m その他 医療法人社団慶愛会札幌花園病院(病院)まで610m その他 山鼻郵便局(郵便局)まで850m | ||
| 建物種別 | アパート | 建物構造 | RC(鉄筋コンクリート) |
この部屋の取扱い不動産会社
| 会社名 | ビッグ桑園店(株)パワー・ステーション(SUUMO経由) | ||
|---|---|---|---|
| 所在地 | 北海道札幌市中央区北十条西15-1-6 クリーンリバー桑園駅前1号棟1階 | 交通 | - |
| 営業時間 | 10:00~19:00 | 定休日 | 水曜日 |
| 免許番号 | 北海道知事石狩6414 | 取引態様 | 仲介 |
| 不動産会社管理番号 | 100506651464 | 当社管理番号 | 89 |
| 所属団体 | (公社)全日本不動産協会北海道本部会員 | ||
| 公正取引協議会 | (一社)北海道不動産公正取引協議会加盟 | ||
| 取扱い物件情報 | 物件詳細へ | ||
※各種情報と現状に差異がある場合は、現状優先となります。問い合わせをすることで、より詳しい条件、情報を確認する事ができます。
提供:ビッグ桑園店(株)パワー・ステーション(SUUMO経由)
この物件が気になったら掲載期限まであと9日
HERO YAMAHANA1に条件(家賃・エリア)が近い物件一覧
| 写真 | 家賃 管理費等 | 敷金 礼金 | 間取り 専有面積 | 築年数 | 最寄り駅 所在地 | キープ | 詳細 |
|---|---|---|---|---|---|---|---|
マンション ビンゴ1ST(2LDK/2階) | |||||||
![]() | 7.35万円 3,500円 | なし なし | 2LDK 48.51m2 | 築17年 | 札幌市東西線 西11丁目駅 徒歩14分 北海道札幌市中央区南六条西13丁目 | 詳細を見る | |
マンション デイトナ(2LDK/5階) | |||||||
![]() | 8.9万円 5,000円 | なし なし | 2LDK 57.19m2 | 築6年 | 北海道千歳市豊里3丁目 | 詳細を見る | |
アパート 三上ハイツ(3LDK/1階) | |||||||
![]() | 6万円 なし | なし なし | 3LDK 72.87m2 | 築38年 | 北海道小樽市長橋1丁目 | 詳細を見る | |
マンション プレミエール南13条(2LDK/2階) | |||||||
![]() | 6.5万円 2,000円 | なし なし | 2LDK 57m2 | 築32年 | 札幌市電 西線14条駅 徒歩10分 地下鉄東西線 円山公園駅 徒歩23分 地下鉄東西線 西18丁目駅 徒歩24分 北海道札幌市中央区南十三条西 | 詳細を見る | |
マンション LE・ESTⅤ(1DK/1階) | |||||||
![]() | 4.3万円 6,000円 | 4.3万円 なし | 1DK 27m2 | 築25年 | 札幌市東西線 西11丁目駅 徒歩6分 北海道札幌市中央区北一条西8丁目 | 詳細を見る | |
アパート 緑ヶ丘テラス(2LDK/2階) | |||||||
![]() | 7.95万円 5,600円 | なし 7.95万円 | 2LDK 58.85m2 | 新築 | 北海道北広島市大曲緑ヶ丘5丁目 | 詳細を見る | |
アパート レオパレス 野幌(1K/2階) | |||||||
![]() | 4.4万円 6,500円 | なし なし | 1K 23.18m2 | 築18年 | 函館本線 野幌駅 徒歩21分 北海道江別市野幌住吉町 | 詳細を見る | |
アパート レオパレス ルミエール(1K/2階) | |||||||
![]() | 4.3万円 6,500円 | なし なし | 1K 23.18m2 | 築22年 | 函館本線 江別駅 徒歩10分 北海道江別市一番町 | 詳細を見る | |

/105x80-f1-q70-wp1)
/105x80-f1-q70-wp1)
/105x80-f1-q70-wp1)

/105x80-f1-q70-wp1)
/105x80-f1-q70-wp1)
/105x80-f1-q70-wp1)
/105x80-f1-q70-wp1)