賃貸マンション
ザ・パークハビオ江古田の賃貸物件情報(1LDK/14階)
| 家賃 | 管理費等 | 敷金 | 礼金 | 間取り | 専有面積 |
|---|---|---|---|---|---|
| 20.9万円 | 2万円 | 20.9万円 | なし | 1LDK | 41.3m2 |
入居決定でお祝い金最大100,000円
Point
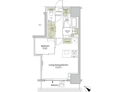
収納はシューズボックス・クロゼットなどが備え付けられているので、衣類や日用品の収納に重宝します。
提供:ランドアーク(株)江古田支店(SUUMO経由)

詳細情報 ザ・パークハビオ江古田
物件紹介
ザ・パークハビオ江古田は西武池袋・豊島線江古田駅から徒歩2分にあり、駅近で通勤通学に便利なマンションです。
このお部屋は2階以上に位置しているので、通行人や周囲の住人からの視線が気になりにくく、防犯面でも安心。建物のエントランスはオートロックがついており、インターホンにはTVモニタもついているため、相手の顔を確認してから来客対応することができます。
こちらは楽器相談が可能な物件。楽器演奏をお考えの方はぜひ相談してみてください。人気の南向き・フローリングのお部屋。室内にはウォークインクローゼットがありますので、たくさんの荷物も効率的に収納ができます。キッチンはシステムキッチン仕様になっていますので、お料理好きの方にもぴったり。バス・トイレは別なので、のんびりお風呂タイムも楽しめるでしょう。また、雨の日でも浴室乾燥機を使えば、お洗濯も問題ありません。
通信設備面では、インターネット接続が可能です。また、BSアンテナ・CSアンテナがありCATVにも対応しているので、おうち時間も充実するでしょう(別途工事、契約料が必要な場合あり)。
建物にはエレベーターがついているので、重い荷物があっても安心。共用部には宅配ボックスが設定されているので、不在の時にも荷物を受け取ることができます。また、ペット飼育の相談ができますので、あなたの大切な家族の一員も快適に暮らせるか、ぜひ確認してみてください。
コンビニまで徒歩7分の場所にあり、日用品や食料品のお買い物にも便利です。
このお部屋は2階以上に位置しているので、通行人や周囲の住人からの視線が気になりにくく、防犯面でも安心。建物のエントランスはオートロックがついており、インターホンにはTVモニタもついているため、相手の顔を確認してから来客対応することができます。
こちらは楽器相談が可能な物件。楽器演奏をお考えの方はぜひ相談してみてください。人気の南向き・フローリングのお部屋。室内にはウォークインクローゼットがありますので、たくさんの荷物も効率的に収納ができます。キッチンはシステムキッチン仕様になっていますので、お料理好きの方にもぴったり。バス・トイレは別なので、のんびりお風呂タイムも楽しめるでしょう。また、雨の日でも浴室乾燥機を使えば、お洗濯も問題ありません。
通信設備面では、インターネット接続が可能です。また、BSアンテナ・CSアンテナがありCATVにも対応しているので、おうち時間も充実するでしょう(別途工事、契約料が必要な場合あり)。
建物にはエレベーターがついているので、重い荷物があっても安心。共用部には宅配ボックスが設定されているので、不在の時にも荷物を受け取ることができます。また、ペット飼育の相談ができますので、あなたの大切な家族の一員も快適に暮らせるか、ぜひ確認してみてください。
コンビニまで徒歩7分の場所にあり、日用品や食料品のお買い物にも便利です。
お金・契約の情報
※「-」と表示されているものは、実際は料金が発生するものもございます。詳細はお問い合わせください。
| 家賃 | 20.9万円 | 管理費・共益費 | 2万円 |
|---|---|---|---|
| 敷金 | 20.9万円 | 礼金 | なし |
| 入居決定でお祝い金最大100,000円 | |||
| 保証金 | - | 償却・敷引 | - |
| 住宅保険料 | 1円 | 更新料 | - |
| 保証会社利用 | 必須 | 保証会社名 | - |
| 保証会社費用 | - | 保証会社備考 | 賃料等合計額の50% 2年目以降:1年毎1万円(個人) |
| 契約形態 | - | 契約期間 | 2年 |
| 入居・引渡期間 | 2026年02月上旬 | 現況 | 未完成 |
| 入居可能条件 | 事務所可、2人入居可、楽器可、ペット可 | ||
| 契約備考 | ペット飼育時条件変更有 その他設備/条件:室内洗濯機置き場、ごみ出し24時間OK、独立洗面台、防犯カメラ、ルームシェア不可、クローゼット、シューズボックス | ||
部屋の情報
| 間取り | 1LDK | 専有面積 | 41.3m2 |
|---|---|---|---|
| 所在階 / 向き | 14階 / 南西 | バルコニー面積 | - |
| 水道 / ガス | 水道【公営】、ガス【都市】 | ||
| 設備 | バス・トイレ別、オートロック、テレビドアホン、宅配ボックス、浴室乾燥機、ウォークインクローゼット、追い焚き、システムキッチン、カウンターキッチン、エアコン、エレベーター、温水洗浄便座、バルコニー、フローリング、洗髪洗面化粧台、コンロ:ガス、CSアンテナ、BSアンテナ、シャワー、給湯 | ||
| 当社物件ID | 160107575 | ||
建物の情報
| 建物名 | ザ・パークハビオ江古田 | ||
|---|---|---|---|
| 所在地 | 東京都練馬区旭丘1丁目 | ||
| 交通 | 西武池袋・豊島線 江古田駅 徒歩2分 東京都大江戸線 新江古田駅 徒歩7分 | ||
| 階数 | 14階建 | 総戸数 | - |
| 築年月 | 2026年01月 / 新築 | エレベーター | あり |
| 駐車場 | 空有 3.52万円/月 | バイク置き場 | あり |
| 駐輪場 | あり | 管理人/管理会社 | - |
| 周辺環境 | コンビニ 徒歩7分(530m) 販売店 徒歩14分(1053m) その他 ドラッグストア その他 公園 その他 銀行 その他 * | ||
| 建物種別 | マンション | 建物構造 | RC(鉄筋コンクリート) |
この部屋の取扱い不動産会社
| 会社名 | ハウスコム東東京株式会社 池袋西口店 | ||
|---|---|---|---|
| 所在地 | 東京都豊島区19-6松長ビル2階 | 交通 | - |
| 営業時間 | 10:00~18:00 | 定休日 | - |
| 免許番号 | 東京都知事(1)第108283号 | 取引態様 | 仲介 |
| 不動産会社管理番号 | HC2-5304294-1405-0113 | 当社管理番号 | 468 |
| 所属団体 | 、 | ||
| 取扱い物件情報 | 物件詳細へ | ||
※各種情報と現状に差異がある場合は、現状優先となります。問い合わせをすることで、より詳しい条件、情報を確認する事ができます。
提供:ハウスコム東東京株式会社 池袋西口店
この物件が気になったら掲載期限まであと4日
ザ・パークハビオ江古田の空き部屋一覧
全部で22の空き部屋があります。
ザ・パークハビオ江古田に条件(家賃・エリア)が近い物件一覧
| 写真 | 家賃 管理費等 | 敷金 礼金 | 間取り 専有面積 | 築年数 | 最寄り駅 所在地 | キープ | 詳細 |
|---|---|---|---|---|---|---|---|
マンション STR中板橋駅前ビル(1LDK/3階) | |||||||
![]() | 13万円 5,000円 | 13万円 13万円 | 1LDK 47.2m2 | 築46年 | 東武東上線 中板橋駅 徒歩6分 東武東上線 大山駅(東京) 徒歩11分 東武東上線 ときわ台駅(東京) 徒歩17分 東京都板橋区仲町 | 詳細を見る | |
マンション レジデンス向山(3LDK/2階) | |||||||
![]() | 14.5万円 5,000円 | 29万円 14.5万円 | 3LDK 70.46m2 | 築33年 | 西武池袋線 中村橋駅 徒歩7分 都営大江戸線 豊島園駅 徒歩17分 西武池袋線 富士見台駅 徒歩18分 東京都練馬区向山 | 詳細を見る | |
マンション メインステージ浮間舟渡(1LDK/3階) | |||||||
![]() | 13.85万円 1.5万円 | なし 13.85万円 | 1LDK 37.38m2 | 築1年 | 埼京線 浮間舟渡駅 徒歩9分 東京都三田線 蓮根駅 徒歩17分 東京都板橋区舟渡3丁目 | 詳細を見る | |
アパート セレスティア松が丘(3LDK/1階) | |||||||
![]() | 24.7万円 6,000円 | なし なし | 3LDK 59.02m2 | 築1年 | 西武鉄道新宿線 新井薬師前駅 徒歩7分 西武鉄道新宿線 沼袋駅 徒歩7分 東京都中野区松が丘2丁目 | 詳細を見る | |
アパート アイコート新江古田(2LDK/1階) | |||||||
![]() | 14.5万円 4,000円 | 14.5万円 14.5万円 | 2LDK 45.13m2 | 築5年 | 都営大江戸線 新江古田駅 徒歩4分 西武池袋線 江古田駅 徒歩12分 西武新宿線 沼袋駅 徒歩17分 東京都中野区江原町 | 詳細を見る | |
一戸建て 東京地下鉄方南支線 方南町駅 徒歩9分 築48年(4K) | |||||||
![]() | 21.5万円 5,000円 | なし なし | 4K 72.5m2 | 築48年 | 東京地下鉄方南支線 方南町駅 徒歩9分 京王電鉄井の頭線 永福町駅 徒歩17分 東京都杉並区和泉4丁目 | 詳細を見る | |
アパート メゾンヒカリ(1LDK/2階) | |||||||
![]() | 13.2万円 4,400円 | なし 16万円 | 1LDK 51.64m2 | 新築 | 東京都大江戸線 光が丘駅 徒歩19分 東京都練馬区谷原1丁目 | 詳細を見る | |
アパート LA VIE RADIEUSE(2LDK/2階) | |||||||
![]() | 27.5万円 5,000円 | 27.5万円 27.5万円 | 2LDK 79.32m2 | 築1年 | 京王井の頭線 久我山駅 徒歩9分 京王井の頭線 三鷹台駅 徒歩9分 JR中央線 西荻窪駅 徒歩20分 東京都杉並区久我山 | 詳細を見る | |









