賃貸マンション
ザ・パークハビオ江古田の賃貸物件情報(1LDK/14階)
| 家賃 | 管理費等 | 敷金 | 礼金 | 間取り | 専有面積 |
|---|---|---|---|---|---|
| 24.9万円 | 2.5万円 | 24.9万円 | なし | 1LDK | 50.98m2 |
入居決定でお祝い金最大100,000円
Point
収納はシューズボックス・クロゼットなどが備え付けられているので、衣類や日用品の収納に重宝します。
提供:三菱地所ハウスネット(株)首都圏リーシング部(SUUMO経由)

詳細情報 ザ・パークハビオ江古田
物件紹介
ザ・パークハビオ江古田は西武池袋・豊島線江古田駅から徒歩2分にあり、駅近で通勤通学に便利なマンションです。
このお部屋は2階以上に位置しているので、通行人や周囲の住人からの視線が気になりにくく、防犯面でも安心。建物のエントランスはオートロックがついており、インターホンにはTVモニタもついているため、相手の顔を確認してから来客対応することができます。
こちらは楽器相談が可能な物件。楽器演奏をお考えの方はぜひ相談してみてください。人気の南向き・フローリングのお部屋。角部屋でもあるため、周囲の居住者の生活音も気になりにくい場所です。室内にはウォークインクローゼットがありますので、たくさんの荷物も効率的に収納ができます。キッチンはシステムキッチン仕様になっていますので、お料理好きの方にもぴったり。バス・トイレは別なので、のんびりお風呂タイムも楽しめるでしょう。また、雨の日でも浴室乾燥機を使えば、お洗濯も問題ありません。
通信設備面では、インターネット接続が可能です。また、BSアンテナ・CSアンテナがありCATVにも対応しているので、おうち時間も充実するでしょう(別途工事、契約料が必要な場合あり)。
建物にはエレベーターがついているので、重い荷物があっても安心。共用部には宅配ボックスが設定されているので、不在の時にも荷物を受け取ることができます。また、ペット飼育の相談ができますので、あなたの大切な家族の一員も快適に暮らせるか、ぜひ確認してみてください。
コンビニまで徒歩7分の場所にあり、日用品や食料品のお買い物にも便利です。
このお部屋は2階以上に位置しているので、通行人や周囲の住人からの視線が気になりにくく、防犯面でも安心。建物のエントランスはオートロックがついており、インターホンにはTVモニタもついているため、相手の顔を確認してから来客対応することができます。
こちらは楽器相談が可能な物件。楽器演奏をお考えの方はぜひ相談してみてください。人気の南向き・フローリングのお部屋。角部屋でもあるため、周囲の居住者の生活音も気になりにくい場所です。室内にはウォークインクローゼットがありますので、たくさんの荷物も効率的に収納ができます。キッチンはシステムキッチン仕様になっていますので、お料理好きの方にもぴったり。バス・トイレは別なので、のんびりお風呂タイムも楽しめるでしょう。また、雨の日でも浴室乾燥機を使えば、お洗濯も問題ありません。
通信設備面では、インターネット接続が可能です。また、BSアンテナ・CSアンテナがありCATVにも対応しているので、おうち時間も充実するでしょう(別途工事、契約料が必要な場合あり)。
建物にはエレベーターがついているので、重い荷物があっても安心。共用部には宅配ボックスが設定されているので、不在の時にも荷物を受け取ることができます。また、ペット飼育の相談ができますので、あなたの大切な家族の一員も快適に暮らせるか、ぜひ確認してみてください。
コンビニまで徒歩7分の場所にあり、日用品や食料品のお買い物にも便利です。
お金・契約の情報
※「-」と表示されているものは、実際は料金が発生するものもございます。詳細はお問い合わせください。
| 家賃 | 24.9万円 | 管理費・共益費 | 2.5万円 |
|---|---|---|---|
| 敷金 | 24.9万円 | 礼金 | なし |
| 入居決定でお祝い金最大100,000円 | |||
| 保証金 | - | 償却・敷引 | - |
| 住宅保険料 | 1円 | 更新料 | - |
| 保証会社利用 | 必須 | 保証会社名 | - |
| 保証会社費用 | - | 保証会社備考 | 賃料等合計額の50% 2年目以降:1年毎1万円(個人) |
| 契約形態 | - | 契約期間 | 2年 |
| 入居・引渡期間 | 2026年02月上旬 | 現況 | 未完成 |
| 入居可能条件 | 事務所可、2人入居可、楽器可、ペット可 | ||
| 契約備考 | ペット飼育時条件変更有 その他設備/条件:室内洗濯機置き場、ごみ出し24時間OK、独立洗面台、防犯カメラ、ルームシェア不可、クローゼット、シューズボックス | ||
部屋の情報
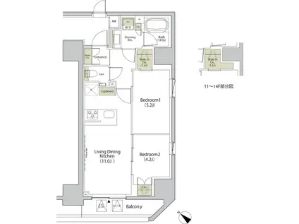
| 間取り | 1LDK | 専有面積 | 50.98m2 |
|---|---|---|---|
| 所在階 / 向き | 14階 / 南西 | バルコニー面積 | - |
| 水道 / ガス | 水道【公営】、ガス【都市】 | ||
| 設備 | バス・トイレ別、オートロック、テレビドアホン、宅配ボックス、浴室乾燥機、ウォークインクローゼット、追い焚き、システムキッチン、カウンターキッチン、エアコン、エレベーター、温水洗浄便座、バルコニー、フローリング、洗髪洗面化粧台、コンロ:ガス、CSアンテナ、BSアンテナ、シャワー、給湯 | ||
| 当社物件ID | 160107574 | ||
建物の情報
| 建物名 | ザ・パークハビオ江古田 | ||
|---|---|---|---|
| 所在地 | 東京都練馬区旭丘1丁目 | ||
| 交通 | 西武池袋・豊島線 江古田駅 徒歩2分 東京都大江戸線 新江古田駅 徒歩7分 | ||
| 階数 | 14階建 | 総戸数 | - |
| 築年月 | 2026年01月 / 新築 | エレベーター | あり |
| 駐車場 | 空有 3.52万円/月 | バイク置き場 | あり |
| 駐輪場 | あり | 管理人/管理会社 | - |
| 周辺環境 | コンビニ 徒歩7分(530m) 販売店 徒歩14分(1053m) その他 ドラッグストア その他 公園 その他 銀行 その他 * | ||
| 建物種別 | マンション | 建物構造 | RC(鉄筋コンクリート) |
この部屋の取扱い不動産会社
| 会社名 | ハウスコム東東京株式会社 成増店 | ||
|---|---|---|---|
| 所在地 | 東京都板橋区3-11成増アクト2 1階 | 交通 | - |
| 営業時間 | 10:00~18:00 | 定休日 | - |
| 免許番号 | 東京都知事(1)第108283号 | 取引態様 | 仲介 |
| 不動産会社管理番号 | HC2-5304294-1406-0109 | 当社管理番号 | 468 |
| 所属団体 | 、 | ||
| 取扱い物件情報 | 物件詳細へ | ||
※各種情報と現状に差異がある場合は、現状優先となります。問い合わせをすることで、より詳しい条件、情報を確認する事ができます。
提供:ハウスコム東東京株式会社 成増店
この物件が気になったら掲載期限まであと4日
ザ・パークハビオ江古田の空き部屋一覧
全部で22の空き部屋があります。
ザ・パークハビオ江古田に条件(家賃・エリア)が近い物件一覧
| 写真 | 家賃 管理費等 | 敷金 礼金 | 間取り 専有面積 | 築年数 | 最寄り駅 所在地 | キープ | 詳細 |
|---|---|---|---|---|---|---|---|
マンション スカイテラス南大塚(2SLDK/2階) | |||||||
![]() | 29.4万円 1万円 | なし 58.8万円 | 2SLDK 68.52m2 | 新築 | 東京メトロ丸ノ内線 新大塚駅 徒歩4分 JR山手線 大塚駅(東京) 徒歩5分 東京都豊島区南大塚 | 詳細を見る | |
マンション ドミール北池袋(1DK/3階) | |||||||
![]() | 16.3万円 1万円 | 16.3万円 なし | 1DK 47.7m2 | 築33年 | 東武鉄道東上線 大山駅(東京) 徒歩10分 東京都板橋区中丸町 | 詳細を見る | |
マンション TKS中野新橋(1LDK/4階) | |||||||
![]() | 16.1万円 1万円 | 16.1万円 なし | 1LDK 34.7m2 | 築1年 | 東京地下鉄方南支線 中野新橋駅 徒歩4分 東京都中野区弥生町2丁目 | 詳細を見る | |
マンション SーRESIDENCE高井戸イースト(1LDK/5階) | |||||||
![]() | 19.9万円 1.5万円 | なし 19.9万円 | 1LDK 41.4m2 | 築1年 | 京王井の頭線 高井戸駅 徒歩3分 京王井の頭線 富士見ケ丘駅 徒歩14分 京王井の頭線 浜田山駅 徒歩17分 東京都杉並区高井戸東 | 詳細を見る | |
マンション DOLCI中野富士見町(2LDK/4階) | |||||||
![]() | 16.4万円 1万円 | 16.4万円 16.4万円 | 2LDK 36.25m2 | 築1年 | 東京メトロ丸ノ内線 中野富士見町駅 徒歩5分 東京メトロ丸ノ内線 中野新橋駅 徒歩7分 東京メトロ丸ノ内線 新中野駅 徒歩13分 東京都中野区弥生町 | 詳細を見る | |
アパート SUONARE(1LDK/2階) | |||||||
![]() | 15.8万円 3,000円 | 15.8万円 15.8万円 | 1LDK 42.23m2 | 築4年 | JR中央線 高円寺駅 徒歩8分 東京メトロ丸ノ内線 東高円寺駅 徒歩8分 東京メトロ丸ノ内線 新高円寺駅 徒歩8分 東京都杉並区高円寺南 | 詳細を見る | |
アパート D-PRECIOUS武蔵野(2LDK/1階) | |||||||
![]() | 19.7万円 6,000円 | なし 39.4万円 | 2LDK 52.99m2 | 新築 | JR総武線 三鷹駅 徒歩16分 JR中央線 吉祥寺駅 徒歩29分 西武新宿線 東伏見駅 徒歩33分 東京都武蔵野市西久保 | 詳細を見る | |
マンション シティハウス中野レジデンス(2LDK/7階) | |||||||
![]() | 27万円 なし | 54万円 27万円 | 2LDK 55.41m2 | 築13年 | JR中央線 中野駅(東京) 徒歩11分 東京メトロ東西線 中野駅(東京) 徒歩11分 JR総武線 中野駅(東京) 徒歩11分 東京都中野区新井 | 詳細を見る | |









