賃貸アパート
ドゥハウスの賃貸物件情報(2LDK/3階)
| 家賃 | 管理費等 | 敷金 | 礼金 | 間取り | 専有面積 |
|---|---|---|---|---|---|
| 5万円 | 2,000円 | なし | なし | 2LDK | 57.1m2 |
入居決定でお祝い金最大100,000円
- 保証金
- -
- 償却・敷引
- -
- 築年数
- 築23年
- 所在階
- 3階
- 向き
- 南東
- 交通
- 所在地
- 石川県小松市今江町
ドゥハウス
[地図を表示]
Point
融雪装置付きの駐車場で雪の日も安心です◎ガスヒーター無料貸出し!!※1年未満で解約の場合、短期解約金がかかります。
提供:(株)レント(SUUMO経由)

詳細情報 ドゥハウス
物件紹介
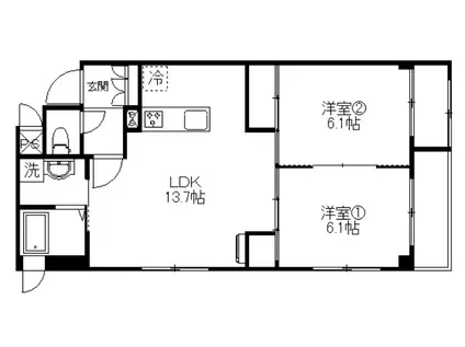
このお部屋は2階以上に位置しているので、通行人や周囲の住人からの視線が気になりにくく、防犯面でも安心。インターホンにはTVモニタもついているため、相手の顔を確認してから来客対応することができます。
人気の南向き・フローリングのお部屋。角部屋でもあるため、周囲の居住者の生活音も気になりにくい場所です。キッチンはシステムキッチン仕様になっていますので、お料理好きの方にもぴったり。また、バス・トイレは別で、のんびりお風呂タイムも楽しめるでしょう。
通信設備面ではBSアンテナがありますので、おうち時間も充実するでしょう(別途工事、契約料が必要な場合あり)。
人気の南向き・フローリングのお部屋。角部屋でもあるため、周囲の居住者の生活音も気になりにくい場所です。キッチンはシステムキッチン仕様になっていますので、お料理好きの方にもぴったり。また、バス・トイレは別で、のんびりお風呂タイムも楽しめるでしょう。
通信設備面ではBSアンテナがありますので、おうち時間も充実するでしょう(別途工事、契約料が必要な場合あり)。
お金・契約の情報
※「-」と表示されているものは、実際は料金が発生するものもございます。詳細はお問い合わせください。
| 家賃 | 5万円 | 管理費・共益費 | 2,000円 |
|---|---|---|---|
| 敷金 | なし | 礼金 | なし |
| 入居決定でお祝い金最大100,000円 | |||
| 保証金 | - | 償却・敷引 | - |
| 住宅保険料 | - | 更新料 | - |
| 保証会社利用 | 必須 | 保証会社名 | 日本賃貸保証 |
| 保証会社費用 | - | 保証会社備考 | 日本賃貸保証利用必 初回保証料:月額賃料等の50% 月額保証料:月額賃料等の1.0% |
| 契約形態 | - | 契約期間 | - |
| 入居・引渡期間 | - | 現況 | - |
| 契約備考 | 町費 月額500円 2LDK 普通借家2年 損保【1.8万円2年】 バストイレ別、ガスコンロ対応、クロゼット、フローリング、TVインターホン、室内洗濯置、陽当り良好、シューズボックス、システムキッチン、角住戸、温水洗浄便座、駐輪場、礼金不要、最上階、3口以上コンロ、照明付、駐車2台可、仲手0.55ヶ月、エアコン2台、眺望良好、浴室に窓、サンルーム、全居室6畳以上、プロパンガス、洗面所にドア、南面バルコニー、BS、全室照明付、通風良好 入居日:'26年4月下旬 | ||
部屋の情報
| 間取り | 2LDK | 専有面積 | 57.1m2 |
|---|---|---|---|
| 所在階 / 向き | 3階 / 南東 | バルコニー面積 | 3m2 |
| 水道 / ガス | - | ||
| 設備 | バス・トイレ別、2階以上、テレビドアホン、システムキッチン、エアコン、温水洗浄便座、南向き、角部屋、バルコニー、フローリング、2口コンロ、コンロ:ガス、BSアンテナ、洗濯機:室内 | ||
| 当社物件ID | 40567585 | ||
建物の情報
| 建物名 | ドゥハウス | ||
|---|---|---|---|
| 所在地 | 石川県小松市今江町 | ||
| 交通 | - | ||
| 階数 | 3階建 | 総戸数 | 9戸 |
| 築年月 | 2003年07月 / 築23年 | エレベーター | - |
| 駐車場 | 空有 3000円/駐2台可 | バイク置き場 | - |
| 駐輪場 | あり | 管理人/管理会社 | - |
| 周辺環境 | その他 株式会社カエツ(その他)まで1m その他 クスリのアオキ 今江店(ドラッグストア)まで125m その他 Aコープ 今江店(スーパー)まで234m その他 カーブス 小松今江(その他)まで187m その他 業務スーパー 小松今江店(スーパー)まで188m その他 小松今江郵便局(郵便局)まで235m | ||
| 建物種別 | アパート | 建物構造 | 鉄骨造 |
この部屋の取扱い不動産会社
| 会社名 | (株)レント(SUUMO経由) | ||
|---|---|---|---|
| 所在地 | 石川県能美市寺井町 よ20-1 | 交通 | - |
| 営業時間 | 午前9時00分~午後5時00分 | 定休日 | 毎週水曜日、平日の祝日 |
| 免許番号 | 石川県知事3278 | 取引態様 | 仲介 |
| 不動産会社管理番号 | 100493976758 | 当社管理番号 | 89 |
| 所属団体 | (公社)石川県宅地建物取引業協会会員 | ||
| 公正取引協議会 | 北陸不動産公正取引協議会加盟 | ||
| 取扱い物件情報 | 物件詳細へ | ||
※各種情報と現状に差異がある場合は、現状優先となります。問い合わせをすることで、より詳しい条件、情報を確認する事ができます。
提供:(株)レント(SUUMO経由)
この物件が気になったら掲載期限まであと10日
ドゥハウスに条件(家賃・エリア)が近い物件一覧
| 写真 | 家賃 管理費等 | 敷金 礼金 | 間取り 専有面積 | 築年数 | 最寄り駅 所在地 | キープ | 詳細 |
|---|---|---|---|---|---|---|---|
マンション サンベール(3LDK/1階) | |||||||
![]() | 7万円 5,000円 | なし なし | 3LDK 71.37m2 | 築35年 | IRいしかわ鉄道 加賀温泉駅 徒歩49分 石川県加賀市山代温泉 | 詳細を見る | |
アパート サンライズ ヴィラ(1K/1階) | |||||||
![]() | 5.2万円 4,500円 | なし 10.4万円 | 1K 32.24m2 | 築19年 | IRいしかわ鉄道 小松駅 徒歩10分 石川県小松市 | 詳細を見る | |
アパート レオパレス大領(1K/2階) | |||||||
![]() | 4.9万円 4,500円 | なし 4.9万円 | 1K 23.18m2 | 築19年 | 石川県小松市大領町 | 詳細を見る | |
マンション 山背台マンション(3DK/3階) | |||||||
![]() | 4.7万円 3,000円 | 4.7万円 なし | 3DK 61.12m2 | 築45年 | IRいしかわ鉄道 加賀温泉駅 徒歩53分 石川県加賀市山代温泉山背台 | 詳細を見る | |
アパート コーポライラック(ワンルーム/1階) | |||||||
![]() | 3万円 2,000円 | なし なし | ワンルーム 25m2 | 築29年 | 石川県小松市八幡 | 詳細を見る | |
アパート SH・ブランシェヒカル(1LDK/1階) | |||||||
![]() | 5.3万円 4,500円 | なし 5.3万円 | 1LDK 52.55m2 | 築22年 | IRいしかわ鉄道 小舞子駅 徒歩50分 石川県能美市粟生町 | 詳細を見る | |
マンション サクセス加賀(2LDK/4階) | |||||||
![]() | 4.1万円 4,000円 | なし なし | 2LDK 57.74m2 | 築44年 | IRいしかわ鉄道 動橋駅 徒歩43分 石川県加賀市七日市町 | 詳細を見る | |
アパート レオパレスコンフォール動橋II(1K/2階) | |||||||
![]() | 5.7万円 4,500円 | なし なし | 1K 22.7m2 | 築24年 | IRいしかわ鉄道 動橋駅 徒歩3分 石川県加賀市動橋町 | 詳細を見る | |









