賃貸アパート
レオパレスファンタジアⅡの賃貸物件情報(1K/2階)
| 家賃 | 管理費等 | 敷金 | 礼金 | 間取り | 専有面積 |
|---|---|---|---|---|---|
| 6.4万円 | 4,000円 | なし | 6.4万円 | 1K | 26.08m2 |
入居決定でお祝い金最大100,000円
Point
まずはお問い合わせ!
不動産会社は街のプロ、あなたに合った物件がきっと見つかります。
提供:ハウスコム静岡株式会社 富士店

詳細情報 レオパレスファンタジアⅡ
物件紹介
レオパレスファンタジアⅡは東海道本線富士駅から徒歩18分にあるアパートです。
このお部屋は2階以上に位置しているので、通行人や周囲の住人からの視線が気になりにくく、防犯面でも安心。インターホンにはTVモニタもついているため、相手の顔を確認してから来客対応することができます。
バス・トイレ別の仕様で、のんびりお風呂タイムも楽しめます。
通信設備面では、インターネット接続が可能です(別途工事、契約料が必要な場合あり)。
共用部には宅配ボックスが設定されているので、不在の時にも荷物を受け取ることができます。
コンビニまで徒歩8分の場所にあり、日用品や食料品のお買い物にも便利です。
このお部屋は2階以上に位置しているので、通行人や周囲の住人からの視線が気になりにくく、防犯面でも安心。インターホンにはTVモニタもついているため、相手の顔を確認してから来客対応することができます。
バス・トイレ別の仕様で、のんびりお風呂タイムも楽しめます。
通信設備面では、インターネット接続が可能です(別途工事、契約料が必要な場合あり)。
共用部には宅配ボックスが設定されているので、不在の時にも荷物を受け取ることができます。
コンビニまで徒歩8分の場所にあり、日用品や食料品のお買い物にも便利です。
お金・契約の情報
※「-」と表示されているものは、実際は料金が発生するものもございます。詳細はお問い合わせください。
| 家賃 | 6.4万円 | 管理費・共益費 | 4,000円 |
|---|---|---|---|
| 敷金 | なし | 礼金 | 6.4万円 |
| 入居決定でお祝い金最大100,000円 | |||
| 保証金 | - | 償却・敷引 | - |
| 住宅保険料 | 1円 | 更新料 | - |
| その他費用 | 抗菌施工(任意):2.376万円 | ||
| 保証会社利用 | 必須 | 保証会社名 | - |
| 保証会社費用 | - | 保証会社備考 | 保証料:82190円(契約内容により100〜120%で変動有)※記載金額は120%の場合 |
| 契約形態 | - | 契約期間 | - |
| 入居・引渡期間 | 2026年01月下旬 | 現況 | - |
| 契約備考 | 鍵交換費10450円、抗菌施工(任意)18040円から23760円(税込)、環境維持費540円/月 月額(環境維持費 550円) 鍵交換費用:16500 室内清掃費用:41800 その他設備/条件:室内洗濯機置き場 | ||
部屋の情報
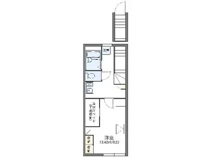
| 間取り | 1K | 専有面積 | 26.08m2 |
|---|---|---|---|
| 所在階 / 向き | 2階 / - | バルコニー面積 | - |
| 水道 / ガス | - | ||
| 設備 | バス・トイレ別、テレビドアホン、宅配ボックス、光ファイバー対応、エアコン、温水洗浄便座、コンロ:電気 | ||
| 当社物件ID | 3163066 | ||
建物の情報
| 建物名 | レオパレスファンタジアⅡ | ||
|---|---|---|---|
| 所在地 | 静岡県富士市本市場 | ||
| 交通 | 東海道本線 富士駅 徒歩18分 | ||
| 階数 | 2階建 | 総戸数 | 22戸 |
| 築年月 | 2005年11月 / 築21年 | エレベーター | - |
| 駐車場 | 空有 6,050円/月 | バイク置き場 | - |
| 駐輪場 | - | 管理人/管理会社 | - |
| 周辺環境 | コンビニ 徒歩8分(629m) その他 ドラッグストア その他 公園 その他 銀行 その他 * | ||
| 建物種別 | アパート | 建物構造 | 木造 |
この部屋の取扱い不動産会社
| 会社名 | ハウスコム静岡株式会社 富士店 | ||
|---|---|---|---|
| 所在地 | 静岡県富士市220-7 | 交通 | - |
| 営業時間 | 10:00~18:00 | 定休日 | - |
| 免許番号 | 静岡県知事(1)第14629号 | 取引態様 | 仲介 |
| 不動産会社管理番号 | HC5-1837296-203-0215 | 当社管理番号 | 468 |
| 所属団体 | 、 | ||
| 取扱い物件情報 | 物件詳細へ | ||
※各種情報と現状に差異がある場合は、現状優先となります。問い合わせをすることで、より詳しい条件、情報を確認する事ができます。
提供:ハウスコム静岡株式会社 富士店
この物件が気になったら掲載期限まであと4日
レオパレスファンタジアⅡに条件(家賃・エリア)が近い物件一覧
| 写真 | 家賃 管理費等 | 敷金 礼金 | 間取り 専有面積 | 築年数 | 最寄り駅 所在地 | キープ | 詳細 |
|---|---|---|---|---|---|---|---|
アパート ソレーユミツムロA(2DK/1階) | |||||||
![]() | 4.8万円 1,000円 | なし なし | 2DK 39.04m2 | 築35年 | JR身延線 富士宮駅 徒歩26分 JR身延線 源道寺駅 徒歩27分 JR身延線 西富士宮駅 徒歩37分 静岡県富士宮市小泉 | 詳細を見る | |
アパート HEIM BELL(1K/2階) | |||||||
![]() | 4.5万円 4,000円 | なし なし | 1K 27.16m2 | 築19年 | 東海道本線 富士駅 徒歩13分 静岡県富士市平垣本町 | 詳細を見る | |
マンション 杉山パレス(3DK/4階) | |||||||
![]() | 5.8万円 なし | 5.8万円 なし | 3DK 61.24m2 | 築30年 | 静岡鉄道静岡清水線 狐ケ崎駅 徒歩18分 静岡県静岡市清水区能島 | 詳細を見る | |
アパート ピースフル リビング(1LDK/1階) | |||||||
![]() | 6.2万円 2,800円 | なし 6.2万円 | 1LDK 40.1m2 | 築1年 | 静岡県静岡市葵区昭府 | 詳細を見る | |
マンション コアパレス安西(1DK/3階) | |||||||
![]() | 5万円 3,000円 | なし なし | 1DK 25.92m2 | 築32年 | 静岡鉄道静岡清水線 新静岡駅 徒歩21分 東海道本線 静岡駅 徒歩23分 静岡県静岡市葵区安西1丁目 | 詳細を見る | |
マンション エクセルK(2LDK/3階) | |||||||
![]() | 6万円 3,000円 | なし なし | 2LDK 56.96m2 | 築36年 | 静岡鉄道静岡清水線 桜橋駅(静岡) 徒歩7分 静岡鉄道静岡清水線 入江岡駅 徒歩10分 静岡県静岡市清水区鶴舞町 | 詳細を見る | |
アパート フローラII 三園(1LDK/1階) | |||||||
![]() | 5.2万円 5,000円 | なし 6万円 | 1LDK 34.9m2 | 築10年 | JR身延線 富士宮駅 徒歩28分 JR身延線 西富士宮駅 徒歩30分 JR身延線 源道寺駅 徒歩41分 静岡県富士宮市三園平 | 詳細を見る | |
アパート ドムスT(1LDK/3階) | |||||||
![]() | 5.5万円 6,000円 | なし なし | 1LDK 43.94m2 | 築12年 | 静岡県沼津市志下 | 詳細を見る | |









