賃貸アパート
メゾンドプルーン北山の賃貸物件情報(1LDK/1階)
| 家賃 | 管理費等 | 敷金 | 礼金 | 間取り | 専有面積 |
|---|---|---|---|---|---|
| 8.3万円 | 3,000円 | なし | なし | 1LDK | 48.21m2 |
入居決定でお祝い金最大100,000円
- 保証金
- -
- 償却・敷引
- -
- 築年数
- 新築
- 所在階
- 1階
- 向き
- 南
Point
仙山線『北山駅』まで徒歩6分◎スーパー・コンビニも徒歩圏内◎IHコンロ・独立洗面台など嬉しい設備付き★
提供:(株)平和住宅情報センター仙台駅東口店(SUUMO経由)

詳細情報 メゾンドプルーン北山
物件紹介
メゾンドプルーン北山はJR仙山線北山駅から徒歩6分にあり、駅近で通勤通学に便利なアパートです。
このお部屋のインターホンにはTVモニタがついているため、相手の顔を確認してから来客対応することができます。
人気の南向きのお部屋。また、フローリングなのでお掃除もラクラク。バス・トイレ別の仕様で、のんびりお風呂タイムも楽しめます。
通信設備面では、インターネットが無料で使えるので、月々の出費を抑えられるのも魅力です(別途工事等が必要な場合あり)。
共用部には宅配ボックスが設定されているので、不在の時にも荷物を受け取ることができます。
このお部屋のインターホンにはTVモニタがついているため、相手の顔を確認してから来客対応することができます。
人気の南向きのお部屋。また、フローリングなのでお掃除もラクラク。バス・トイレ別の仕様で、のんびりお風呂タイムも楽しめます。
通信設備面では、インターネットが無料で使えるので、月々の出費を抑えられるのも魅力です(別途工事等が必要な場合あり)。
共用部には宅配ボックスが設定されているので、不在の時にも荷物を受け取ることができます。
お金・契約の情報
※「-」と表示されているものは、実際は料金が発生するものもございます。詳細はお問い合わせください。
| 家賃 | 8.3万円 | 管理費・共益費 | 3,000円 |
|---|---|---|---|
| 敷金 | なし | 礼金 | なし |
| 入居決定でお祝い金最大100,000円 | |||
| 保証金 | - | 償却・敷引 | - |
| 住宅保険料 | - | 更新料 | - |
| 保証会社利用 | 必須 | 保証会社名 | - |
| 保証会社費用 | - | 保証会社備考 | 保証会社利用必 月額賃料合計(その他費用含む)×100% |
| 契約形態 | - | 契約期間 | - |
| 入居・引渡期間 | - | 現況 | - |
| 契約備考 | 仙台市地下鉄南北線北四番丁駅徒歩25分/2026年2月完成予定の新築アパート★ 合計3.85万円(内訳:鍵交換費:22000円/その他:16500円) 1LDK 損保【要】 バストイレ別、エアコン、シャワー付洗面台、TVインターホン、南向き、洗面所独立、洗面化粧台、宅配ボックス、IHクッキングヒーター、全居室フローリング、2沿線利用可、ネット使用料不要、築2年以内、3駅以上利用可、駅徒歩10分以内、全居室8畳以上、プロパンガス、南面バルコニー、敷金・礼金不要 入居日:'26年2月初旬 | ||
部屋の情報
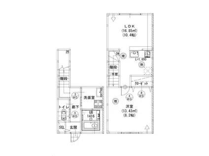
| 間取り | 1LDK | 専有面積 | 48.21m2 |
|---|---|---|---|
| 所在階 / 向き | 1階 / 南 | バルコニー面積 | - |
| 水道 / ガス | - | ||
| 設備 | バス・トイレ別、テレビドアホン、宅配ボックス、インターネット対応、エアコン、南向き、バルコニー、フローリング、洗髪洗面化粧台、コンロ:IH、インターネット使用料無料 | ||
| 当社物件ID | 160171361 | ||
建物の情報
| 建物名 | メゾンドプルーン北山 | ||
|---|---|---|---|
| 所在地 | 宮城県仙台市青葉区北山 | ||
| 交通 | JR仙山線 北山駅(宮城) 徒歩6分 JR仙山線 東北福祉大前駅 徒歩17分 仙台市地下鉄南北線 北仙台駅 徒歩18分 | ||
| 階数 | 2階建 | 総戸数 | - |
| 築年月 | 2026年02月 / 新築 | エレベーター | - |
| 駐車場 | なし | バイク置き場 | - |
| 駐輪場 | - | 管理人/管理会社 | - |
| 周辺環境 | その他 セブンイレブン仙台三条町店(コンビニ)まで329m その他 一般財団法人みやぎ静心会国見台病院(病院)まで1202m その他 和敬保育園(幼稚園・保育園)まで629m その他 認定こども園TOBINOKO(幼稚園・保育園)まで1025m その他 仙台市立荒巻小学校(小学校)まで746m その他 西友木町店(スーパー)まで1167m | ||
| 建物種別 | アパート | 建物構造 | 木造 |
この部屋の取扱い不動産会社
| 会社名 | (株)平和住宅情報センター仙台駅東口店(SUUMO経由) | ||
|---|---|---|---|
| 所在地 | 宮城県仙台市宮城野区元寺小路 300-1 | 交通 | - |
| 営業時間 | 9:30~17:30 | 定休日 | 無休 |
| 免許番号 | 宮城県知事3606 | 取引態様 | 仲介 |
| 不動産会社管理番号 | 100481501852 | 当社管理番号 | 89 |
| 所属団体 | (公社)全日本不動産協会宮城県本部会員 | ||
| 公正取引協議会 | 東北地区不動産公正取引協議会加盟 | ||
| 取扱い物件情報 | 物件詳細へ | ||
※各種情報と現状に差異がある場合は、現状優先となります。問い合わせをすることで、より詳しい条件、情報を確認する事ができます。
提供:(株)平和住宅情報センター仙台駅東口店(SUUMO経由)
この物件が気になったら掲載期限まであと10日
メゾンドプルーン北山に条件(家賃・エリア)が近い物件一覧
| 写真 | 家賃 管理費等 | 敷金 礼金 | 間取り 専有面積 | 築年数 | 最寄り駅 所在地 | キープ | 詳細 |
|---|---|---|---|---|---|---|---|
マンション ロイヤルパークス仙台青葉通(1LDK/12階) | |||||||
![]() | 12.3万円 1万円 | 12.3万円 12.3万円 | 1LDK 34.05m2 | 築1年 | 仙台市地下鉄東西線 大町西公園駅 徒歩3分 仙台市地下鉄東西線 青葉通一番町駅 徒歩6分 仙台市地下鉄東西線 国際センター駅(宮城) 徒歩14分 宮城県仙台市青葉区大町 | 詳細を見る | |
アパート グランドール川内I(1DK/1階) | |||||||
![]() | 6.2万円 3,500円 | なし なし | 1DK 30.38m2 | 築2年 | 仙台市地下鉄東西線 川内駅(宮城) 徒歩4分 仙台市地下鉄東西線 国際センター駅(宮城) 徒歩14分 宮城県仙台市青葉区川内亀岡町 | 詳細を見る | |
アパート クオーレ福沢町(1K/3階) | |||||||
![]() | 5.9万円 3,000円 | なし 5.9万円 | 1K 24.38m2 | 新築 | JR仙山線 東照宮駅 徒歩9分 仙台市地下鉄南北線 北四番丁駅 徒歩22分 JR東北本線 仙台駅 徒歩23分 宮城県仙台市青葉区福沢町 | 詳細を見る | |
アパート アヴァンセ栗生(1LDK/1階) | |||||||
![]() | 6万円 2,300円 | なし 6万円 | 1LDK 46.35m2 | 築20年 | JR仙山線 陸前落合駅 徒歩10分 宮城県仙台市青葉区落合 | 詳細を見る | |
アパート メープルハウスII(2DK/1階) | |||||||
![]() | 5万円 3,000円 | なし なし | 2DK 42m2 | 築40年 | JR仙山線 東照宮駅 徒歩11分 JR仙石線 榴ケ岡駅 徒歩18分 仙台市地下鉄南北線 仙台駅 徒歩23分 宮城県仙台市青葉区小田原 | 詳細を見る | |
アパート クレイノエスポワール ソフィア(1K/1階) | |||||||
![]() | 5.8万円 4,000円 | なし 8.7万円 | 1K 25.89m2 | 築10年 | 東北本線 利府駅 徒歩4分 宮城県宮城郡利府町中央3丁目 | 詳細を見る | |
マンション ソレイユ多賀城(3K/3階) | |||||||
![]() | 5万円 3,000円 | なし なし | 3K 48.7m2 | 築44年 | 仙石線 下馬駅 徒歩6分 宮城県多賀城市伝上山3丁目 | 詳細を見る | |
アパート レオパレスGOODWAVE(1K/2階) | |||||||
![]() | 5.1万円 4,000円 | なし なし | 1K 26.08m2 | 築21年 | 宮城県宮城郡七ヶ浜町遠山宮城郡七ケ浜町遠山2丁目 | 詳細を見る | |









