賃貸マンション
京都市東西線 東野駅(京都) 徒歩12分 7階建 築30年の賃貸物件情報(3LDK/6階)
| 家賃 | 管理費等 | 敷金 | 礼金 | 間取り | 専有面積 |
|---|---|---|---|---|---|
| 11万円 | なし | 11万円 | 11万円 | 3LDK | 69.28m2 |
入居決定でお祝い金最大100,000円
Point
お部屋探しのアドバイザー 京都市山科区 音羽エリアの分譲賃貸マンションです。
提供:株式会社 京都ライフ 丹波橋店(賃貸スモッカ経由)

詳細情報 京都市東西線 東野駅(京都) 徒歩12分 7階建 築30年
物件紹介
京都市東西線東野駅から徒歩12分にあるマンションです。
このお部屋は2階以上に位置しているので通行人や周囲の住人からの視線が気になりにくく、建物のエントランスはオートロックがついているので防犯性が高くなっています。
フローリングのお部屋なのでお掃除もラクラク。キッチンはシステムキッチン仕様になっていますので、お料理好きの方にもぴったり。また、バス・トイレは別で、のんびりお風呂タイムも楽しめるでしょう。
通信設備面では、インターネット接続が可能です(別途工事、契約料が必要な場合あり)。
建物にはエレベーターがついているので、重い荷物があっても安心。
このお部屋は2階以上に位置しているので通行人や周囲の住人からの視線が気になりにくく、建物のエントランスはオートロックがついているので防犯性が高くなっています。
フローリングのお部屋なのでお掃除もラクラク。キッチンはシステムキッチン仕様になっていますので、お料理好きの方にもぴったり。また、バス・トイレは別で、のんびりお風呂タイムも楽しめるでしょう。
通信設備面では、インターネット接続が可能です(別途工事、契約料が必要な場合あり)。
建物にはエレベーターがついているので、重い荷物があっても安心。
お金・契約の情報
※「-」と表示されているものは、実際は料金が発生するものもございます。詳細はお問い合わせください。
| 家賃 | 11万円 | 管理費・共益費 | なし |
|---|---|---|---|
| 敷金 | 11万円 | 礼金 | 11万円 |
| 入居決定でお祝い金最大100,000円 | |||
| 保証金 | - | 償却・敷引 | - |
| 住宅保険料 | 住宅保険料あり | 更新料 | - |
| 契約形態 | - | 契約期間 | 2年 |
| 入居・引渡期間 | 2026年01月中旬 | 現況 | 賃貸中 |
| 契約備考 | JR、京阪、地下鉄のトリプルアクセス。更新料ナシです。コンビニ、スーパーなど近くにあって便利ですよ。 更新料:1ヶ月 保証会社:利用必須 初回:月額賃料等の50%、更新時:1.3万円/1年(初回保証料 総賃料120% 更新保証料なしプランあり) その他設備/条件:分譲賃貸、独立洗面台、TVドアホン | ||
部屋の情報
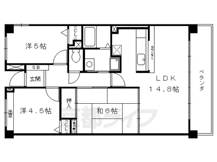
| 間取り | 3LDK | 専有面積 | 69.28m2 |
|---|---|---|---|
| 間取り詳細 | 洋室(4.5帖)、洋室(5帖)、和室(6帖)、LDK(14帖) | ||
| 所在階 / 向き | 6階 / 東 | バルコニー面積 | - |
| 水道 / ガス | ガス【都市】 | ||
| 設備 | バス・トイレ別、2階以上、オートロック、インターネット対応、システムキッチン、カウンターキッチン、エレベーター、バルコニー、フローリング、洗濯機:室内 | ||
| 当社物件ID | 160101884 | ||
建物の情報
| 建物名 | 京都市東西線 東野駅(京都) 徒歩12分 7階建 築30年 | ||
|---|---|---|---|
| 所在地 | 京都府京都市山科区音羽森廻り町 | ||
| 交通 | 京都市東西線 東野駅(京都) 徒歩12分 東海道本線 山科駅 徒歩15分 | ||
| 階数 | 7階建 | 総戸数 | - |
| 築年月 | 1996年06月 / 築30年 | エレベーター | あり |
| 駐車場 | - | バイク置き場 | - |
| 駐輪場 | あり | 管理人/管理会社 | - |
| 建物種別 | マンション | 建物構造 | RC(鉄筋コンクリート) |
この部屋の取扱い不動産会社
| 会社名 | 株式会社 京都ライフ 丹波橋店(賃貸スモッカ経由) | ||
|---|---|---|---|
| 所在地 | 京都市伏見区京町北7丁目1-4 | 交通 | - |
| 営業時間 | - | 定休日 | - |
| 免許番号 | 京都府知事(11)第6353号 | 取引態様 | 仲介 |
| 不動産会社管理番号 | kyotolife_17211-605-05 | 当社管理番号 | 463 |
| 所属団体 | 京都府宅地建物取引業協会\n公益社団法人近畿地区不動産公正取引協議会 | ||
| 公正取引協議会 | 全国宅地建物取引業保証協会 | ||
| 取扱い物件情報 | 物件詳細へ | ||
※各種情報と現状に差異がある場合は、現状優先となります。問い合わせをすることで、より詳しい条件、情報を確認する事ができます。
提供:株式会社 京都ライフ 丹波橋店(賃貸スモッカ経由)
この物件が気になったら掲載期限まであと5日
京都市東西線 東野駅(京都) 徒歩12分 7階建 築30年に条件(家賃・エリア)が近い物件一覧
| 写真 | 家賃 管理費等 | 敷金 礼金 | 間取り 専有面積 | 築年数 | 最寄り駅 所在地 | キープ | 詳細 |
|---|---|---|---|---|---|---|---|
アパート リブリ・長岡京(1K/2階) | |||||||
![]() | 6.6万円 4,000円 | なし 6.6万円 | 1K 26.08m2 | 築7年 | 阪急京都線 長岡天神駅 徒歩9分 JR東海道本線 長岡京駅 徒歩19分 阪急京都線 西向日駅 徒歩22分 京都府長岡京市長岡 | 詳細を見る | |
マンション 奈良線 新田駅(京都) 徒歩5分 築5年(1SLDK/4階) | |||||||
![]() | 12.1万円 5,000円 | なし 24.2万円 | 1SLDK 60.14m2 | 築5年 | 奈良線 新田駅(京都) 徒歩5分 近鉄京都線 大久保駅(京都) 徒歩7分 京都府宇治市大久保町 | 詳細を見る | |
マンション ココクレメント2(1LDK/5階) | |||||||
![]() | 7万円 6,600円 | なし なし | 1LDK 38.91m2 | 築1年 | JR山陰本線 亀岡駅 徒歩5分 JR山陰本線 馬堀駅 徒歩31分 JR山陰本線 並河駅 徒歩51分 京都府亀岡市亀岡駅北 | 詳細を見る | |
アパート 東海道本線 山科駅 徒歩13分 築20年(2LDK/2階) | |||||||
![]() | 8.8万円 7,000円 | なし 8.8万円 | 2LDK 57.24m2 | 築20年 | 東海道本線 山科駅 徒歩13分 京都市東西線 山科駅 徒歩13分 京都府京都市山科区音羽前出町 | 詳細を見る | |
マンション 京都市東西線 椥辻駅 徒歩17分 築30年(1LDK/6階) | |||||||
![]() | 6.8万円 6,500円 | なし 6.8万円 | 1LDK 36.2m2 | 築30年 | 京都市東西線 椥辻駅 徒歩17分 京都市東西線 小野駅(京都) 徒歩25分 京都府京都市山科区西野山射庭ノ上町 | 詳細を見る | |
マンション 京都市東西線 椥辻駅 徒歩7分 築1年(2LDK/4階) | |||||||
![]() | 13万円 8,000円 | 13万円 13万円 | 2LDK 49.4m2 | 築1年 | 京都市東西線 椥辻駅 徒歩7分 京都市東西線 東野駅(京都) 徒歩19分 京都府京都市山科区椥辻番所ケ口町 | 詳細を見る | |
アパート 京阪電気鉄道京阪線 石清水八幡宮駅 徒歩6分 築1年(1LDK/2階) | |||||||
![]() | 8.9万円 8,000円 | なし 8.9万円 | 1LDK 46.87m2 | 築1年 | 京阪電気鉄道京阪線 石清水八幡宮駅 徒歩6分 京阪電気鉄道京阪線 橋本駅(京都) 徒歩23分 京都府八幡市八幡科手 | 詳細を見る | |
アパート 京都市東西線 小野駅(京都) 徒歩9分 築2年(1LDK/1階) | |||||||
![]() | 6.6万円 4,000円 | なし 7万円 | 1LDK 34.83m2 | 築2年 | 京都市東西線 小野駅(京都) 徒歩9分 京都市東西線 椥辻駅 徒歩9分 京都府京都市山科区勧修寺平田町町 | 詳細を見る | |









