賃貸マンション
リアン横濱宮田町の賃貸物件情報(2LDK/2階)
| 家賃 | 管理費等 | 敷金 | 礼金 | 間取り | 専有面積 |
|---|---|---|---|---|---|
| 21.5万円 | 5,000円 | なし | 21.5万円 | 2LDK | 67m2 |
入居決定でお祝い金最大100,000円
- 保証金
- -
- 償却・敷引
- -
- 築年数
- 築1年
- 所在階
- 2階
- 向き
- -
Point
お電話でのお問い合わせは8時30分から20時まで可能です!お気軽にフリーダイヤルまでご連絡ください♪◇webでのお申し込みも対応可能です◇
提供:(株)ネクストライフ横浜店(SUUMO経由)

詳細情報 リアン横濱宮田町
物件紹介
リアン横濱宮田町は相鉄本線天王町駅から徒歩8分にあり、駅近で通勤通学に便利なマンションです。
このお部屋は2階以上に位置しているので、通行人や周囲の住人からの視線が気になりにくく、防犯面でも安心。建物のエントランスはオートロックがついており、インターホンにはTVモニタもついているため、相手の顔を確認してから来客対応することができます。
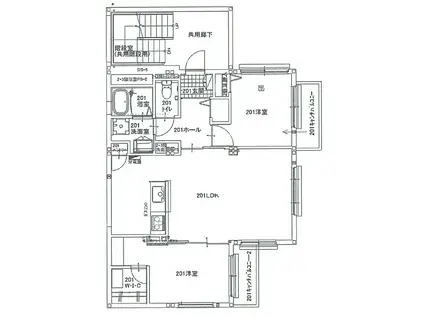
人気の角部屋。周囲の居住者の生活音も気になりにくい場所です。また、室内にはウォークインクローゼットがありますので、たくさんの荷物も効率的に収納ができます。キッチンはシステムキッチン仕様になっていますので、お料理好きの方にもぴったり。バス・トイレは別なので、のんびりお風呂タイムも楽しめるでしょう。また、雨の日でも浴室乾燥機を使えば、お洗濯も問題ありません。
通信設備面ではCATVに対応しているので、おうち時間も充実するでしょう(別途工事、契約料が必要な場合あり)。
共用部には宅配ボックスが設定されているので、不在の時にも荷物を受け取ることができます。
このお部屋は2階以上に位置しているので、通行人や周囲の住人からの視線が気になりにくく、防犯面でも安心。建物のエントランスはオートロックがついており、インターホンにはTVモニタもついているため、相手の顔を確認してから来客対応することができます。
人気の角部屋。周囲の居住者の生活音も気になりにくい場所です。また、室内にはウォークインクローゼットがありますので、たくさんの荷物も効率的に収納ができます。キッチンはシステムキッチン仕様になっていますので、お料理好きの方にもぴったり。バス・トイレは別なので、のんびりお風呂タイムも楽しめるでしょう。また、雨の日でも浴室乾燥機を使えば、お洗濯も問題ありません。
通信設備面ではCATVに対応しているので、おうち時間も充実するでしょう(別途工事、契約料が必要な場合あり)。
共用部には宅配ボックスが設定されているので、不在の時にも荷物を受け取ることができます。
お金・契約の情報
※「-」と表示されているものは、実際は料金が発生するものもございます。詳細はお問い合わせください。
| 家賃 | 21.5万円 | 管理費・共益費 | 5,000円 |
|---|---|---|---|
| 敷金 | なし | 礼金 | 21.5万円 |
| 入居決定でお祝い金最大100,000円 | |||
| 保証金 | - | 償却・敷引 | - |
| 住宅保険料 | - | 更新料 | - |
| 保証会社利用 | 必須 | 保証会社名 | - |
| 保証会社費用 | - | 保証会社備考 | 保証会社利用必 初回保証料:月額総賃料の50%、月額保証料:月額総賃料の2% |
| 契約形態 | - | 契約期間 | - |
| 入居・引渡期間 | - | 現況 | - |
| 契約備考 | 火災保険料:1050円/月リロレント24+:16500円/2年修繕費:215000円◆お持ちのクレジットカードで初期費用の決済が可能です◆初期費用のお見積り等、お気軽にお問い合わせくださいませ◆◆ 更新料 新賃料1.00ヶ月分 2LDK 普通借家2年 損保【要】 バストイレ別、バルコニー、エアコン、ガスコンロ対応、クロゼット、シャワー付洗面台、TVインターホン、浴室乾燥機、オートロック、室内洗濯置、シューズボックス、システムキッチン、追焚機能浴室、角住戸、温水洗浄便座、脱衣所、洗面所独立、洗面化粧台、駐輪場、宅配ボックス、CATV、2面採光、敷金不要、3口以上コンロ、対面式キッチン、グリル付、ウォークインクロゼット、エアコン2台、LDK15畳以上、築2年以内、2駅利用可、3駅以上利用可、駅徒歩10分以内、都市ガス、初期費用カード決済可 入居日:'26年3月上旬 | ||
部屋の情報
| 間取り | 2LDK | 専有面積 | 67m2 |
|---|---|---|---|
| 所在階 / 向き | 2階 / - | バルコニー面積 | - |
| 水道 / ガス | - | ||
| 設備 | バス・トイレ別、2階以上、オートロック、テレビドアホン、宅配ボックス、浴室乾燥機、ウォークインクローゼット、追い焚き、システムキッチン、エアコン、温水洗浄便座、角部屋、バルコニー、洗髪洗面化粧台、2口コンロ、コンロ:ガス、CATV、洗濯機:室内 | ||
| 当社物件ID | 160482152 | ||
建物の情報
| 建物名 | リアン横濱宮田町 | ||
|---|---|---|---|
| 所在地 | 神奈川県横浜市保土ケ谷区宮田町 | ||
| 交通 | 相鉄本線 天王町駅 徒歩8分 相鉄本線 西横浜駅 徒歩10分 相鉄本線 星川駅(神奈川) 徒歩13分 | ||
| 階数 | 3階建 | 総戸数 | - |
| 築年月 | 2026年02月 / 築1年 | エレベーター | - |
| 駐車場 | なし | バイク置き場 | - |
| 駐輪場 | あり | 管理人/管理会社 | - |
| 周辺環境 | その他 ロイヤルホスト 洪福寺店(飲食店)まで231m その他 スーパーマルセン(スーパー)まで193m その他 まいばすけっと 洪福寺前店(スーパー)まで307m その他 ローソンストア100 保土ヶ谷天王町一丁目店(コンビニ)まで313m その他 イオン天王町ショッピングセンター(ショッピングセンター)まで443m | ||
| 建物種別 | マンション | 建物構造 | 鉄骨造 |
この部屋の取扱い不動産会社
| 会社名 | (株)ネクストライフ新横浜店(SUUMO経由) | ||
|---|---|---|---|
| 所在地 | 神奈川県横浜市港北区新横浜2-5-19 AXIS SHINYOKOHAMA6階 | 交通 | - |
| 営業時間 | 10:00~18:30(電話8:30~20:00) | 定休日 | 年末年始 |
| 免許番号 | 国土交通大臣8175 | 取引態様 | 仲介 |
| 不動産会社管理番号 | 100490778900 | 当社管理番号 | 89 |
| 所属団体 | (公社)神奈川県宅地建物取引業協会会員 | ||
| 公正取引協議会 | (公社)首都圏不動産公正取引協議会加盟 | ||
| 取扱い物件情報 | 物件詳細へ | ||
※各種情報と現状に差異がある場合は、現状優先となります。問い合わせをすることで、より詳しい条件、情報を確認する事ができます。
提供:(株)ネクストライフ新横浜店(SUUMO経由)
この物件が気になったら掲載期限まであと10日
リアン横濱宮田町に条件(家賃・エリア)が近い物件一覧
| 写真 | 家賃 管理費等 | 敷金 礼金 | 間取り 専有面積 | 築年数 | 最寄り駅 所在地 | キープ | 詳細 |
|---|---|---|---|---|---|---|---|
マンション リカ・アイナ(2LDK/1階) | |||||||
![]() | 16.2万円 5,000円 | 16.2万円 32.4万円 | 2LDK 62.98m2 | 新築 | 小田急線 向ケ丘遊園駅 徒歩14分 JR南武線 中野島駅 徒歩15分 小田急線 登戸駅 徒歩18分 神奈川県川崎市多摩区登戸 | 詳細を見る | |
マンション 登戸メゾン東棟(3LDK/4階) | |||||||
![]() | 28.2万円 1.4万円 | 28.2万円 28.2万円 | 3LDK 85.28m2 | 新築 | JR南武線 中野島駅 徒歩14分 小田急線 向ケ丘遊園駅 徒歩17分 JR南武線 登戸駅 徒歩19分 神奈川県川崎市多摩区登戸 | 詳細を見る | |
マンション COURT BLANCHE(1LDK/6階) | |||||||
![]() | 14万円 1.5万円 | なし なし | 1LDK 29.11m2 | 築9年 | JR南武線 武蔵新城駅 徒歩8分 JR南武線 武蔵中原駅 徒歩10分 神奈川県川崎市中原区上小田中 | 詳細を見る | |
マンション ヘーベルヴィレッジ南林間サンボナール(2LDK/3階) | |||||||
![]() | 17.8万円 2.9万円 | 35.6万円 17.8万円 | 2LDK 57.25m2 | 新築 | 小田急江ノ島線 南林間駅 徒歩5分 小田急江ノ島線 鶴間駅 徒歩11分 東急田園都市線 中央林間駅 徒歩22分 神奈川県大和市南林間 | 詳細を見る | |
マンション 横須賀中央レジデンス(3LDK/3階) | |||||||
![]() | 23.5万円 1.5万円 | 23.5万円 なし | 3LDK 67.68m2 | 築1年 | 京急本線 横須賀中央駅 徒歩4分 京急本線 汐入駅 徒歩13分 京急本線 県立大学駅 徒歩21分 神奈川県横須賀市大滝町 | 詳細を見る | |
マンション 鎌倉市台メゾン北棟(2LDK/2階) | |||||||
![]() | 15万円 1万円 | 15万円 15万円 | 2LDK 55.89m2 | 新築 | JR横須賀線 北鎌倉駅 徒歩13分 湘南モノレール 富士見町駅(神奈川) 徒歩17分 JR東海道本線 大船駅 徒歩20分 神奈川県鎌倉市台 | 詳細を見る | |
マンション イースト SEDONA(1LDK/4階) | |||||||
![]() | 13.2万円 1.25万円 | 13.2万円 なし | 1LDK 41.48m2 | 築1年 | JR南武線 中野島駅 徒歩15分 小田急線 向ケ丘遊園駅 徒歩16分 小田急線 登戸駅 徒歩20分 神奈川県川崎市多摩区登戸 | 詳細を見る | |








