賃貸マンション
リベール西片の賃貸物件情報(1K/5階)
| 家賃 | 管理費等 | 敷金 | 礼金 | 間取り | 専有面積 |
|---|---|---|---|---|---|
| 11.4万円 | 8,000円 | 11.4万円 | 11.4万円 | 1K | 25.28m2 |
入居決定でお祝い金最大100,000円
- 保証金
- -
- 償却・敷引
- -
- 築年数
- 築7年
- 所在階
- 5階
- 向き
- -
Point
★契約金のクレジットカード(VISA・Master・JCB・AMEX・DINERS)でのお支払い、分割が可能でございます。(お客様のカードの限度額、設定にもよります。)★
提供:(株)CLCコーポレーション王子店(SUUMO経由)

詳細情報 リベール西片
物件紹介
リベール西片は東京メトロ南北線東大前駅から徒歩5分にあり、駅近で通勤通学に便利なマンションです。
このお部屋は2階以上に位置しているので、通行人や周囲の住人からの視線が気になりにくく、防犯面でも安心。建物のエントランスはオートロックがついており、インターホンにはTVモニタもついているため、相手の顔を確認してから来客対応することができます。
フローリングのお部屋なのでお掃除もラクラク。キッチンはシステムキッチン仕様になっていますので、お料理好きの方にもぴったり。また、バス・トイレは別で、のんびりお風呂タイムも楽しめるでしょう。
通信設備面では、インターネット接続が可能です(別途工事、契約料が必要な場合あり)。
建物にはエレベーターがついているので、重い荷物があっても安心。共用部には宅配ボックスが設定されているので、不在の時にも荷物を受け取ることができます。
このお部屋は2階以上に位置しているので、通行人や周囲の住人からの視線が気になりにくく、防犯面でも安心。建物のエントランスはオートロックがついており、インターホンにはTVモニタもついているため、相手の顔を確認してから来客対応することができます。
フローリングのお部屋なのでお掃除もラクラク。キッチンはシステムキッチン仕様になっていますので、お料理好きの方にもぴったり。また、バス・トイレは別で、のんびりお風呂タイムも楽しめるでしょう。
通信設備面では、インターネット接続が可能です(別途工事、契約料が必要な場合あり)。
建物にはエレベーターがついているので、重い荷物があっても安心。共用部には宅配ボックスが設定されているので、不在の時にも荷物を受け取ることができます。
お金・契約の情報
※「-」と表示されているものは、実際は料金が発生するものもございます。詳細はお問い合わせください。
| 家賃 | 11.4万円 | 管理費・共益費 | 8,000円 |
|---|---|---|---|
| 敷金 | 11.4万円 | 礼金 | 11.4万円 |
| 入居決定でお祝い金最大100,000円 | |||
| 保証金 | - | 償却・敷引 | - |
| 住宅保険料 | - | 更新料 | - |
| 保証会社利用 | 必須 | 保証会社名 | - |
| 保証会社費用 | - | 保証会社備考 | 保証会社利用必 初回保証委託料、総賃料の50%・継続保証料1年ごとに1万円 |
| 契約形態 | - | 契約期間 | - |
| 入居・引渡期間 | 相談 | 現況 | - |
| 契約備考 | ★お部屋探しはCLCコーポレーションにお任せ下さい(^_)☆ 1K 普通借家2年 損保【要】 バストイレ別、バルコニー、エアコン、クロゼット、フローリング、シャワー付洗面台、TVインターホン、オートロック、室内洗濯置、シューズボックス、システムキッチン、温水洗浄便座、脱衣所、エレベーター、洗面所独立、洗面化粧台、駐輪場、宅配ボックス、閑静な住宅地、IHクッキングヒーター、敷金1ヶ月、ネット専用回線、3駅以上利用可、3沿線以上利用可、駅徒歩5分以内、敷地内ごみ置き場、都市ガス、洗面所にドア、礼金1ヶ月、IT重説対応物件、初期費用カード決済可 | ||
部屋の情報
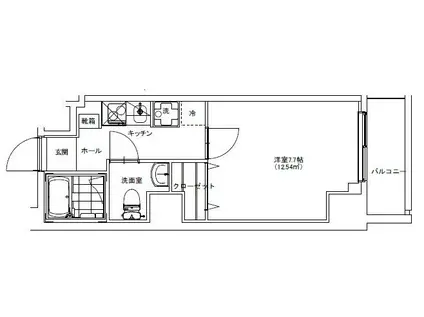
| 間取り | 1K | 専有面積 | 25.28m2 |
|---|---|---|---|
| 所在階 / 向き | 5階 / - | バルコニー面積 | - |
| 水道 / ガス | - | ||
| 設備 | バス・トイレ別、2階以上、オートロック、テレビドアホン、宅配ボックス、インターネット対応、システムキッチン、エアコン、エレベーター、温水洗浄便座、バルコニー、フローリング、洗髪洗面化粧台、コンロ:IH、洗濯機:室内 | ||
| 当社物件ID | 29857582 | ||
建物の情報
| 建物名 | リベール西片 | ||
|---|---|---|---|
| 所在地 | 東京都文京区西片 | ||
| 交通 | 東京メトロ南北線 東大前駅 徒歩5分 都営三田線 白山駅(東京) 徒歩7分 東京メトロ千代田線 根津駅 徒歩15分 | ||
| 階数 | 10階建 | 総戸数 | - |
| 築年月 | 2019年06月 / 築7年 | エレベーター | あり |
| 駐車場 | なし | バイク置き場 | - |
| 駐輪場 | あり | 管理人/管理会社 | - |
| 周辺環境 | その他 ドン・キホーテ 後楽園店(ショッピングセンター)まで1538m その他 メトロ・エム後楽園(ショッピングセンター)まで1524m その他 谷中ぎんざ(ショッピングセンター)まで1725m その他 TSUTAYA 茗荷谷店(ショッピングセンター)まで2052m その他 ドン・キホーテ 上野店(ショッピングセンター)まで2168m その他 まいばすけっと 文京東大前店(スーパー)まで335m | ||
| 建物種別 | マンション | 建物構造 | RC(鉄筋コンクリート) |
この部屋の取扱い不動産会社
| 会社名 | (株)CLCコーポレーション王子店(SUUMO経由) | ||
|---|---|---|---|
| 所在地 | 東京都北区王子1-5-1 | 交通 | - |
| 営業時間 | 10:00~18:30 | 定休日 | 火曜日(1月~3月は無休) |
| 免許番号 | 東京都知事83270 | 取引態様 | 仲介 |
| 不動産会社管理番号 | 100480277885 | 当社管理番号 | 89 |
| 所属団体 | (公社)全日本不動産協会東京都本部会員 | ||
| 公正取引協議会 | (公社)首都圏不動産公正取引協議会加盟 | ||
| 取扱い物件情報 | 物件詳細へ | ||
※各種情報と現状に差異がある場合は、現状優先となります。問い合わせをすることで、より詳しい条件、情報を確認する事ができます。
提供:(株)CLCコーポレーション王子店(SUUMO経由)
この物件が気になったら掲載期限まであと10日
リベール西片に条件(家賃・エリア)が近い物件一覧
| 写真 | 家賃 管理費等 | 敷金 礼金 | 間取り 専有面積 | 築年数 | 最寄り駅 所在地 | キープ | 詳細 |
|---|---|---|---|---|---|---|---|
マンション パストラーレ三ノ輪(1K/1階) | |||||||
![]() | 9.6万円 7,000円 | 9.6万円 9.6万円 | 1K 31.14m2 | 築26年 | 東京メトロ日比谷線 三ノ輪駅 徒歩6分 東京メトロ日比谷線 入谷駅(東京) 徒歩16分 JR常磐線 南千住駅 徒歩18分 東京都荒川区東日暮里 | 詳細を見る | |
マンション コンフォリア東上野(ワンルーム/11階) | |||||||
![]() | 16.1万円 8,000円 | 16.1万円 なし | ワンルーム 25.16m2 | 築2年 | 東京地下鉄銀座線 稲荷町駅(東京) 徒歩3分 山手線 上野駅 徒歩9分 東京都台東区東上野6丁目 | 詳細を見る | |
マンション パークアクシス文京ステージ(1K/1階) | |||||||
![]() | 13.3万円 8,000円 | 13.3万円 13.3万円 | 1K 29.29m2 | 築21年 | 東京地下鉄有楽町線 江戸川橋駅 徒歩5分 東京地下鉄丸ノ内線 茗荷谷駅 徒歩15分 総武・中央緩行線 飯田橋駅 徒歩17分 東京都文京区水道2丁目 | 詳細を見る | |
マンション レジデンス小石川(1K/1階) | |||||||
![]() | 11万円 5,800円 | なし 16.5万円 | 1K 32.94m2 | 築12年 | 東京都三田線 春日駅(東京) 徒歩4分 東京地下鉄南北線 後楽園駅 徒歩5分 東京地下鉄丸ノ内線 後楽園駅 徒歩7分 東京都文京区小石川2丁目 | 詳細を見る | |
マンション スカイコート蔵前Ⅱ(1K/10階) | |||||||
![]() | 13.2万円 8,000円 | 13.2万円 なし | 1K 25.57m2 | 築9年 | 東京都大江戸線 新御徒町駅 徒歩5分 東京都浅草線 蔵前駅 徒歩9分 東京地下鉄日比谷線 仲御徒町駅 徒歩11分 東京都台東区三筋1丁目 | 詳細を見る | |
マンション 西川ビル(1K/6階) | |||||||
![]() | 9万円 7,000円 | なし なし | 1K 24.45m2 | 築21年 | 東京地下鉄千代田線 西日暮里駅 徒歩2分 山手線 西日暮里駅 徒歩3分 京成電鉄本線 新三河島駅 徒歩12分 東京都荒川区西日暮里5丁目 | 詳細を見る | |
マンション タスキSMART浅草橋(ワンルーム/4階) | |||||||
![]() | 9.5万円 1万円 | なし なし | ワンルーム 20.68m2 | 築4年 | 東京都浅草線 浅草橋駅 徒歩4分 東京都浅草線 蔵前駅 徒歩9分 総武本線 馬喰町駅 徒歩9分 東京都台東区柳橋2丁目 | 詳細を見る | |
マンション NIDO MINOWA(1LDK/10階) | |||||||
![]() | 16.3万円 1.5万円 | なし なし | 1LDK 35.2m2 | 築1年 | 東京都荒川線 三ノ輪橋駅 徒歩4分 東京地下鉄日比谷線 三ノ輪駅 徒歩6分 常磐線 南千住駅 徒歩15分 東京都台東区三ノ輪1丁目 | 詳細を見る | |









