賃貸マンション
プレサンスロジェ天王寺ザ・レジデンスの賃貸物件情報(3LDK/4階)
| 家賃 | 管理費等 | 敷金 | 礼金 | 間取り | 専有面積 |
|---|---|---|---|---|---|
| 20万円 | なし | なし | 20万円 | 3LDK | 60.07m2 |
入居決定でお祝い金最大100,000円
- 保証金
- -
- 償却・敷引
- -
- 築年数
- 築2年
- 所在階
- 4階
- 向き
- 東
- 交通
- JR大阪環状線 天王寺駅 徒歩9分
地下鉄谷町線 四天王寺前夕陽ケ丘駅 徒歩9分
地下鉄御堂筋線 天王寺駅 徒歩9分
- 所在地
- 大阪府大阪市天王寺区大道
プレサンスロジェ天王寺ザ・レジデンス
[地図を表示]
Point
2030年11月末までの定期借家契約です。複数沿線利用可能な好立地と使いやすい間取りが魅力です♪分譲マンションならではの設備も充実!大阪市のお部屋探しはピタットハウス大正店にお任せください!
提供:ピタットハウス大正店(株)住まい流通(SUUMO経由)

詳細情報 プレサンスロジェ天王寺ザ・レジデンス
物件紹介
プレサンスロジェ天王寺ザ・レジデンスはJR大阪環状線天王寺駅から徒歩9分にあり、駅近で通勤通学に便利なマンションです。
このお部屋は2階以上に位置しているので、通行人や周囲の住人からの視線が気になりにくく、防犯面でも安心です。
このお部屋は2階以上に位置しているので、通行人や周囲の住人からの視線が気になりにくく、防犯面でも安心です。
お金・契約の情報
※「-」と表示されているものは、実際は料金が発生するものもございます。詳細はお問い合わせください。
| 家賃 | 20万円 | 管理費・共益費 | なし |
|---|---|---|---|
| 敷金 | なし | 礼金 | 20万円 |
| 入居決定でお祝い金最大100,000円 | |||
| 保証金 | - | 償却・敷引 | - |
| 住宅保険料 | - | 更新料 | - |
| 契約形態 | 定期借家 | 契約期間 | 2030年11月まで |
| 入居・引渡期間 | 即時 | 現況 | - |
| 契約備考 | バイク置場代1円/駐輪場代1円 3LDK 定期借家西暦2030年11月まで 損保【要】 駐輪場、即入居可、敷金不要、バイク置場、築2年以内、3沿線以上利用可、駅徒歩10分以内 | ||
部屋の情報
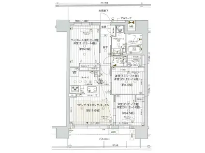
| 間取り | 3LDK | 専有面積 | 60.07m2 |
|---|---|---|---|
| 所在階 / 向き | 4階 / 東 | バルコニー面積 | 11m2 |
| 水道 / ガス | - | ||
| 設備 | 2階以上、バルコニー | ||
| 当社物件ID | 160206818 | ||
建物の情報
| 建物名 | プレサンスロジェ天王寺ザ・レジデンス | ||
|---|---|---|---|
| 所在地 | 大阪府大阪市天王寺区大道 | ||
| 交通 | JR大阪環状線 天王寺駅 徒歩9分 地下鉄谷町線 四天王寺前夕陽ケ丘駅 徒歩9分 地下鉄御堂筋線 天王寺駅 徒歩9分 | ||
| 階数 | 14階建 | 総戸数 | 52戸 |
| 築年月 | 2024年02月 / 築2年 | エレベーター | - |
| 駐車場 | 空有 1円 | バイク置き場 | あり |
| 駐輪場 | あり | 管理人/管理会社 | - |
| 周辺環境 | その他 私立四天王寺中学校(中学校)まで388m その他 認定こども園天王寺幼稚園(幼稚園・保育園)まで535m その他 私立四天王寺高校(高校・高専)まで351m その他 大阪市天王寺区役所(役所)まで998m その他 大阪四天王寺郵便局(郵便局)まで273m その他 大阪市立天王寺小学校(小学校)まで316m | ||
| 建物種別 | マンション | 建物構造 | RC(鉄筋コンクリート) |
この部屋の取扱い不動産会社
| 会社名 | ピタットハウス大正店(株)住まい流通(SUUMO経由) | ||
|---|---|---|---|
| 所在地 | 大阪府大阪市大正区三軒家西1-16-4 | 交通 | - |
| 営業時間 | 10:00~19:00 | 定休日 | 年末年始 |
| 免許番号 | 大阪府知事61638 | 取引態様 | 仲介 |
| 不動産会社管理番号 | 100482561494 | 当社管理番号 | 89 |
| 所属団体 | (公社)全日本不動産協会大阪府本部会員 | ||
| 公正取引協議会 | (公社)近畿地区不動産公正取引協議会加盟 | ||
| 取扱い物件情報 | 物件詳細へ | ||
※各種情報と現状に差異がある場合は、現状優先となります。問い合わせをすることで、より詳しい条件、情報を確認する事ができます。
提供:ピタットハウス大正店(株)住まい流通(SUUMO経由)
この物件が気になったら掲載期限まであと10日
プレサンスロジェ天王寺ザ・レジデンスに条件(家賃・エリア)が近い物件一覧
| 写真 | 家賃 管理費等 | 敷金 礼金 | 間取り 専有面積 | 築年数 | 最寄り駅 所在地 | キープ | 詳細 |
|---|---|---|---|---|---|---|---|
マンション 千里山東一番館(3LDK/2階) | |||||||
| 12万円 8,000円 | 5万円 28万円 | 3LDK 68.86m2 | 築30年 | 阪急電鉄千里線 千里山駅 徒歩12分 阪急電鉄千里線 関大前駅 徒歩18分 阪急電鉄千里線 豊津駅(大阪) 徒歩27分 大阪府吹田市千里山東4丁目11-1 | 詳細を見る | ||
アパート ラ・ベル・メール鳳(2LDK/3階) | |||||||
![]() | 12.3万円 6,500円 | なし 12.3万円 | 2LDK 62.67m2 | 築2年 | 阪和線 鳳駅 徒歩14分 阪和線 津久野駅 徒歩15分 南海電鉄南海本線 浜寺公園駅 徒歩19分 大阪府堺市西区鳳北町8丁 | 詳細を見る | |
マンション アーバンパーク緑地公園(3LDK/4階) | |||||||
| 15.6万円 8,000円 | 15.6万円 15.6万円 | 3LDK 80.12m2 | 築37年 | 北大阪急行南北線 緑地公園駅 徒歩8分 阪急電鉄千里線 千里山駅 徒歩15分 阪急電鉄千里線 関大前駅 徒歩23分 大阪府吹田市千里山西4丁目37-7 | 詳細を見る | ||
一戸建て 阪和線 津久野駅 徒歩2分 築22年(5LDK) | |||||||
![]() | 12.5万円 なし | 12.5万円 25万円 | 5LDK 93.14m2 | 築22年 | 阪和線 津久野駅 徒歩2分 阪和線 上野芝駅 徒歩15分 阪和線 鳳駅 徒歩24分 大阪府堺市西区津久野町2丁 | 詳細を見る | |
マンション VEINZ SUITA(2LDK/6階) | |||||||
| 13.9万円 8,000円 | なし 27.8万円 | 2LDK 48.46m2 | 新築 | 東海道本線 吹田駅(JR) 徒歩6分 阪急電鉄千里線 吹田駅(阪急) 徒歩14分 阪急電鉄京都線 相川駅 徒歩20分 大阪府吹田市片山町1丁目13-5 | 詳細を見る | ||
アパート ラ ヴィータ鳳(2LDK/2階) | |||||||
![]() | 13.6万円 6,500円 | なし 20.4万円 | 2LDK 64.5m2 | 築1年 | 阪和線 鳳駅 徒歩4分 阪和線 富木駅 徒歩16分 阪和線 東羽衣駅 徒歩17分 大阪府堺市西区鳳中町4丁 | 詳細を見る | |
マンション ヴェルドミール(3LDK/2階) | |||||||
| 13.5万円 5,500円 | なし 13.5万円 | 3LDK 60.31m2 | 築30年 | 阪急電鉄京都線 摂津市駅 徒歩6分 東海道本線 千里丘駅 徒歩12分 大阪モノレール本線 摂津駅 徒歩20分 大阪府摂津市庄屋2丁目3-16 | 詳細を見る | ||




