賃貸マンション
ラグジュアリーアパートメント三ノ輪の賃貸物件情報(1K/2階)
| 家賃 | 管理費等 | 敷金 | 礼金 | 間取り | 専有面積 |
|---|---|---|---|---|---|
| 10.4万円 | 5,000円 | なし | 10.4万円 | 1K | 26.18m2 |
入居決定でお祝い金最大100,000円
- 保証金
- -
- 償却・敷引
- -
- 築年数
- 築21年
- 所在階
- 2階
- 向き
- 西
Point
当社は1度もご来店頂かなくても自宅にいながらお部屋探し~ご契約~鍵渡しまでワンストップで対応致します。まずはご相談ください!
提供:フォーディールーム 秋葉原店(株)Four D(SUUMO経由)

詳細情報 ラグジュアリーアパートメント三ノ輪
物件紹介
ラグジュアリーアパートメント三ノ輪は東京メトロ日比谷線三ノ輪駅から徒歩1分にあり、駅近で通勤通学に便利なマンションです。
このお部屋は2階以上に位置しているので、通行人や周囲の住人からの視線が気になりにくく、防犯面でも安心。建物のエントランスはオートロックがついており、インターホンにはTVモニタもついているため、相手の顔を確認してから来客対応することができます。
おしゃれなデザイナーズ物件!人気の角部屋で周囲の居住者の生活音も気になりにくく、また、フローリングのお部屋なのでお掃除もラクラク。キッチンはシステムキッチン仕様になっていますので、お料理好きの方にもぴったり。バス・トイレは別なので、のんびりお風呂タイムも楽しめるでしょう。また、雨の日でも浴室乾燥機を使えば、お洗濯も問題ありません。
通信設備面では、インターネットが無料で使えるので、月々の出費を抑えられるのも魅力です。また、BSアンテナ・CSアンテナがありCATVにも対応しているので、おうち時間も充実するでしょう(別途工事、BS・CS・CATVの契約料等が必要な場合あり)。
建物にはエレベーターがついているので、重い荷物があっても安心。共用部には宅配ボックスが設定されているので、不在の時にも荷物を受け取ることができます。また、ペット飼育の相談ができますので、あなたの大切な家族の一員も快適に暮らせるか、ぜひ確認してみてください。
このお部屋は2階以上に位置しているので、通行人や周囲の住人からの視線が気になりにくく、防犯面でも安心。建物のエントランスはオートロックがついており、インターホンにはTVモニタもついているため、相手の顔を確認してから来客対応することができます。
おしゃれなデザイナーズ物件!人気の角部屋で周囲の居住者の生活音も気になりにくく、また、フローリングのお部屋なのでお掃除もラクラク。キッチンはシステムキッチン仕様になっていますので、お料理好きの方にもぴったり。バス・トイレは別なので、のんびりお風呂タイムも楽しめるでしょう。また、雨の日でも浴室乾燥機を使えば、お洗濯も問題ありません。
通信設備面では、インターネットが無料で使えるので、月々の出費を抑えられるのも魅力です。また、BSアンテナ・CSアンテナがありCATVにも対応しているので、おうち時間も充実するでしょう(別途工事、BS・CS・CATVの契約料等が必要な場合あり)。
建物にはエレベーターがついているので、重い荷物があっても安心。共用部には宅配ボックスが設定されているので、不在の時にも荷物を受け取ることができます。また、ペット飼育の相談ができますので、あなたの大切な家族の一員も快適に暮らせるか、ぜひ確認してみてください。
お金・契約の情報
※「-」と表示されているものは、実際は料金が発生するものもございます。詳細はお問い合わせください。
| 家賃 | 10.4万円 | 管理費・共益費 | 5,000円 |
|---|---|---|---|
| 敷金 | なし | 礼金 | 10.4万円 |
| 入居決定でお祝い金最大100,000円 | |||
| 保証金 | - | 償却・敷引 | - |
| 住宅保険料 | - | 更新料 | - |
| 保証会社利用 | 必須 | 保証会社名 | - |
| 保証会社費用 | - | 保証会社備考 | 保証会社利用必 賃貸保証料:0.50ヶ月 初回保証料:総賃料の50% (年間保証料:15000円)引落手数料:330円/月 |
| 契約形態 | - | 契約期間 | - |
| 入居・引渡期間 | - | 現況 | - |
| 入居可能条件 | ペット相談 | ||
| 契約備考 | つくばエクスプレス南千住駅徒歩14分/一部費用クレジット決済可能!詳しくは、お問い合わせくださいませ。 合計13.6万円(内訳:鍵交換代:33000円/室内清掃費用:70000円/24時間サポート代:16500円/抗菌:16500円) 更新料新賃料(ヶ月):1.00ヶ月 1K 単身者可/二人入居可/ペット相談 普通借家2年 損保【2.2万円2年】 バストイレ別、バルコニー、エアコン、ガスコンロ対応、クロゼット、フローリング、シャワー付洗面台、TVインターホン、浴室乾燥機、オートロック、室内洗濯置、シューズボックス、システムキッチン、追焚機能浴室、角住戸、温水洗浄便座、脱衣所、エレベーター、洗面所独立、洗面化粧台、2口コンロ、宅配ボックス、CATV、光ファイバー、外壁タイル張り、2面採光、BS・CS、敷金不要、防犯カメラ、独立型キッチン、ペット相談、全居室洋室、保証人不要、単身者相談、二人入居相談、全居室フローリング、駅まで平坦、ネット使用料不要、保証金不要、24時間換気システム、クロゼット2ヶ所、平坦地、3駅以上利用可、3沿線以上利用可、駅徒歩5分以内、24時間ゴミ出し可、敷地内ごみ置き場、都市ガス、玄関収納、高速ネット対応、LAN、礼金1ヶ月、IT重説対応物件、初期費用カード決済可 敷金積み増し【ペット飼育の場合敷金1ヶ月(総額)】 入居日:'25年12月中旬 | ||
部屋の情報
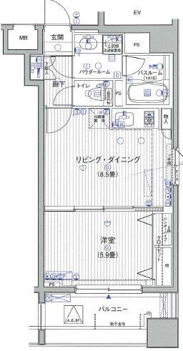
| 間取り | 1K | 専有面積 | 26.18m2 |
|---|---|---|---|
| 所在階 / 向き | 2階 / 西 | バルコニー面積 | - |
| 水道 / ガス | - | ||
| 設備 | バス・トイレ別、2階以上、オートロック、テレビドアホン、宅配ボックス、浴室乾燥機、追い焚き、インターネット対応、システムキッチン、エアコン、エレベーター、温水洗浄便座、角部屋、バルコニー、フローリング、洗髪洗面化粧台、2口コンロ、コンロ:ガス、CATV、CSアンテナ、BSアンテナ、インターネット使用料無料、洗濯機:室内 | ||
| 当社物件ID | 138650360 | ||
建物の情報
| 建物名 | ラグジュアリーアパートメント三ノ輪 | ||
|---|---|---|---|
| 所在地 | 東京都台東区三ノ輪 | ||
| 交通 | 東京メトロ日比谷線 三ノ輪駅 徒歩2分 都電荒川線 三ノ輪橋駅 徒歩6分 JR常磐線 南千住駅 徒歩14分 | ||
| 階数 | 9階建 | 総戸数 | - |
| 築年月 | 2005年07月 / 築21年 | エレベーター | あり |
| 駐車場 | なし | バイク置き場 | - |
| 駐輪場 | - | 管理人/管理会社 | - |
| 周辺環境 | その他 ワイズマート(24H)(スーパー)まで180m その他 サンクス(コンビニ)まで180m その他 ローソン(コンビニ)まで290m その他 台東区病院(病院)まで700m その他 セブンイレブン(コンビニ)まで120m その他 オリンピック(スーパー)まで410m | ||
| 建物種別 | マンション | 建物構造 | RC(鉄筋コンクリート) |
この部屋の取扱い不動産会社
| 会社名 | (株)タウンハウジング東京 浅草店(SUUMO経由) | ||
|---|---|---|---|
| 所在地 | 東京都台東区雷門2-18-15 TSビル2階 | 交通 | - |
| 営業時間 | AM10:00~PM7:00 | 定休日 | 水曜日 |
| 免許番号 | 国土交通大臣9926 | 取引態様 | 仲介 |
| 不動産会社管理番号 | 100472928183 | 当社管理番号 | 89 |
| 所属団体 | (公社)東京都宅地建物取引業協会会員 | ||
| 公正取引協議会 | (公社)首都圏不動産公正取引協議会加盟 | ||
| 取扱い物件情報 | 物件詳細へ | ||
※各種情報と現状に差異がある場合は、現状優先となります。問い合わせをすることで、より詳しい条件、情報を確認する事ができます。
提供:(株)タウンハウジング東京 浅草店(SUUMO経由)
この物件が気になったら掲載期限まであと10日
ラグジュアリーアパートメント三ノ輪に条件(家賃・エリア)が近い物件一覧
| 写真 | 家賃 管理費等 | 敷金 礼金 | 間取り 専有面積 | 築年数 | 最寄り駅 所在地 | キープ | 詳細 |
|---|---|---|---|---|---|---|---|
マンション メインステージ茅場町(1K/3階) | |||||||
![]() | 9万円 1万円 | 9万円 9万円 | 1K 22.12m2 | 築27年 | 東京地下鉄日比谷線 茅場町駅 徒歩8分 京葉線 八丁堀駅(東京) 徒歩8分 東京地下鉄半蔵門線 水天宮前駅 徒歩10分 東京都中央区新川1丁目 | 詳細を見る | |
マンション ECLUSE(1K/2階) | |||||||
![]() | 9.4万円 6,500円 | 9.4万円 9.4万円 | 1K 22.2m2 | 築22年 | 東京都大江戸線 新御徒町駅 徒歩1分 東京地下鉄銀座線 稲荷町駅(東京) 徒歩5分 山手線 上野駅 徒歩12分 東京都台東区元浅草1丁目 | 詳細を見る | |
マンション シーズンフラッツ押上サウス(1K/8階) | |||||||
![]() | 12.3万円 1万円 | なし なし | 1K 25.11m2 | 築4年 | 東京地下鉄半蔵門線 押上駅 徒歩4分 総武・中央緩行線 錦糸町駅 徒歩14分 東京都墨田区業平4丁目 | 詳細を見る | |
マンション ヴィラクレール浅草(1K/3階) | |||||||
![]() | 10.3万円 1万円 | 10.3万円 10.3万円 | 1K 25.18m2 | 築4年 | 東武伊勢崎・大師線 浅草駅(東武・都営・メトロ) 徒歩13分 東京地下鉄銀座線 浅草駅(東武・都営・メトロ) 徒歩14分 東京都浅草線 浅草駅(東武・都営・メトロ) 徒歩14分 東京都台東区浅草6丁目 | 詳細を見る | |
マンション クレイシアIDZ上野(1DK/2階) | |||||||
![]() | 11.3万円 1.2万円 | 11.3万円 11.3万円 | 1DK 25.3m2 | 築2年 | 東京地下鉄日比谷線 入谷駅(東京) 徒歩4分 山手線 上野駅 徒歩9分 東京地下鉄銀座線 稲荷町駅(東京) 徒歩9分 東京都台東区北上野2丁目 | 詳細を見る | |
マンション GENOVIA浅草Ⅶ(1K/6階) | |||||||
![]() | 10万円 1万円 | なし なし | 1K 25.41m2 | 築3年 | 東武伊勢崎・大師線 浅草駅(東武・都営・メトロ) 徒歩15分 東京地下鉄銀座線 浅草駅(東武・都営・メトロ) 徒歩17分 東京都浅草線 浅草駅(東武・都営・メトロ) 徒歩19分 東京都台東区今戸2丁目 | 詳細を見る | |
マンション リバーレ浅草ウエスト(1K/13階) | |||||||
![]() | 11.7万円 6,000円 | 11.7万円 11.7万円 | 1K 24.76m2 | 築10年 | 東京地下鉄銀座線 田原町駅(東京) 徒歩2分 東京都大江戸線 蔵前駅 徒歩9分 東京地下鉄銀座線 稲荷町駅(東京) 徒歩9分 東京都台東区寿2丁目 | 詳細を見る | |
マンション ルーブル文京音羽(1K/11階) | |||||||
![]() | 8.5万円 9,000円 | なし 8.5万円 | 1K 20.67m2 | 築26年 | 東京地下鉄有楽町線 江戸川橋駅 徒歩3分 東京地下鉄有楽町線 護国寺駅 徒歩7分 東京地下鉄丸ノ内線 茗荷谷駅 徒歩15分 東京都文京区音羽1丁目 | 詳細を見る | |








