賃貸アパート
エルメゾン伏見 D棟の賃貸物件情報(2LDK/1階)
| 家賃 | 管理費等 | 敷金 | 礼金 | 間取り | 専有面積 |
|---|---|---|---|---|---|
| 9万円 | 6,000円 | 9万円 | 18万円 | 2LDK | 52.25m2 |
入居決定でお祝い金最大100,000円
- 保証金
- -
- 償却・敷引
- -
- 築年数
- 築16年
- 所在階
- 1階
- 向き
- 南
Point
2LDKでペット飼育。 伏見駅近くの2LDK。ペット仕様の物件です。
提供:株式会社 京都ライフ 伏見桃山店(賃貸スモッカ経由)

詳細情報 エルメゾン伏見 D棟
物件紹介
エルメゾン伏見 D棟は近鉄京都線伏見駅から徒歩1分にあり、駅近で通勤通学に便利なアパートです。
このお部屋のインターホンにはTVモニタがついているため、相手の顔を確認してから来客対応することができます。
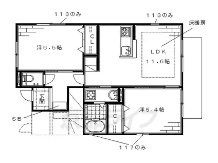
人気の南向き・フローリングのお部屋。角部屋でもあるため、周囲の居住者の生活音も気になりにくい場所です。キッチンはシステムキッチン仕様になっていますので、お料理好きの方にもぴったり。バス・トイレは別なので、のんびりお風呂タイムも楽しめるでしょう。また、雨の日でも浴室乾燥機を使えば、お洗濯も問題ありません。
通信設備面では、インターネット接続が可能です(別途工事、契約料が必要な場合あり)。
床暖房があり、冬も足元から暖かく快適に過ごすことができます。ペット飼育の相談ができますので、あなたの大切な家族の一員も快適に暮らせるか、ぜひ確認してみてください。
このお部屋のインターホンにはTVモニタがついているため、相手の顔を確認してから来客対応することができます。
人気の南向き・フローリングのお部屋。角部屋でもあるため、周囲の居住者の生活音も気になりにくい場所です。キッチンはシステムキッチン仕様になっていますので、お料理好きの方にもぴったり。バス・トイレは別なので、のんびりお風呂タイムも楽しめるでしょう。また、雨の日でも浴室乾燥機を使えば、お洗濯も問題ありません。
通信設備面では、インターネット接続が可能です(別途工事、契約料が必要な場合あり)。
床暖房があり、冬も足元から暖かく快適に過ごすことができます。ペット飼育の相談ができますので、あなたの大切な家族の一員も快適に暮らせるか、ぜひ確認してみてください。
お金・契約の情報
※「-」と表示されているものは、実際は料金が発生するものもございます。詳細はお問い合わせください。
| 家賃 | 9万円 | 管理費・共益費 | 6,000円 |
|---|---|---|---|
| 敷金 | 9万円 | 礼金 | 18万円 |
| 入居決定でお祝い金最大100,000円 | |||
| 保証金 | - | 償却・敷引 | - |
| 住宅保険料 | 住宅保険料あり | 更新料 | - |
| 契約形態 | - | 契約期間 | 2年 |
| 入居・引渡期間 | 2026年04月下旬 | 現況 | 賃貸中 |
| 契約備考 | 2011年2月完成の築浅2LDKです。近鉄伏見駅まですぐ(徒歩1分)。京阪、近鉄のダブルアクセス。嬉しい3点セパレートに浴室乾燥機、システムキッチン、温水洗浄便座など充実の設備。防犯カメラ、TVホンでセキュリティも安心です。コンビニ、スーパーなど近くにあって便利ですよ。光ファイバー対応しています。ペットも相談可能です。 ファイテック(消火剤):4,950円 アルコール殺菌・消毒:22,000円 更新料:1ヶ月 その他設備/条件:1階の物件、コンロ2口以上、独立洗面台、TVドアホン | ||
部屋の情報
| 間取り | 2LDK | 専有面積 | 52.25m2 |
|---|---|---|---|
| 間取り詳細 | 洋室(6.5帖)、洋室(5.4帖)、LDK(11.6帖) | ||
| 所在階 / 向き | 1階 / 南 | バルコニー面積 | - |
| 水道 / ガス | ガス【都市】 | ||
| 設備 | バス・トイレ別、浴室乾燥機、インターネット対応、システムキッチン、カウンターキッチン、エアコン、温水洗浄便座、南向き、角部屋、バルコニー、フローリング、床暖房、コンロ:ガス、洗濯機:室内、タイル張り | ||
| 当社物件ID | 12393979 | ||
建物の情報
| 建物名 | エルメゾン伏見 D棟 | ||
|---|---|---|---|
| 所在地 | 京都府京都市伏見区深草柴田屋敷町 | ||
| 交通 | 近鉄京都線 伏見駅(京都) 徒歩1分 京阪電気鉄道京阪線 墨染駅 徒歩11分 | ||
| 階数 | 2階建 | 総戸数 | - |
| 築年月 | 2011年02月 / 築16年 | エレベーター | - |
| 駐車場 | - | バイク置き場 | あり |
| 駐輪場 | あり | 管理人/管理会社 | - |
| 建物種別 | アパート | 建物構造 | 軽量鉄骨造 |
この部屋の取扱い不動産会社
| 会社名 | 株式会社 京都ライフ 丹波橋店(賃貸スモッカ経由) | ||
|---|---|---|---|
| 所在地 | 京都市伏見区京町北7丁目1-4 | 交通 | - |
| 営業時間 | - | 定休日 | - |
| 免許番号 | 京都府知事(11)第6353号 | 取引態様 | 仲介 |
| 不動産会社管理番号 | kyotolife_47026-113 | 当社管理番号 | 463 |
| 所属団体 | 京都府宅地建物取引業協会\n公益社団法人近畿地区不動産公正取引協議会 | ||
| 公正取引協議会 | 全国宅地建物取引業保証協会 | ||
| 取扱い物件情報 | 物件詳細へ | ||
※各種情報と現状に差異がある場合は、現状優先となります。問い合わせをすることで、より詳しい条件、情報を確認する事ができます。
提供:株式会社 京都ライフ 丹波橋店(賃貸スモッカ経由)
この物件が気になったら掲載期限まであと6日
エルメゾン伏見 D棟に条件(家賃・エリア)が近い物件一覧
| 写真 | 家賃 管理費等 | 敷金 礼金 | 間取り 専有面積 | 築年数 | 最寄り駅 所在地 | キープ | 詳細 |
|---|---|---|---|---|---|---|---|
一戸建て 京阪電気鉄道京阪線 鳥羽街道駅 徒歩6分 築91年(5K) | |||||||
![]() | 9万円 なし | 9万円 9万円 | 5K 127.6m2 | 築91年 | 京阪電気鉄道京阪線 鳥羽街道駅 徒歩6分 奈良線 稲荷駅 徒歩9分 京都府京都市伏見区深草願成町 | 詳細を見る | |
一戸建て 京阪電気鉄道京阪線 墨染駅 徒歩2分 築62年(2DK) | |||||||
![]() | 9.8万円 なし | 9.8万円 9.8万円 | 2DK 54.76m2 | 築62年 | 京阪電気鉄道京阪線 墨染駅 徒歩2分 奈良線 JR藤森駅 徒歩12分 京都府京都市伏見区深草北新町 | 詳細を見る | |
アパート MAISON DE GLYCINE(1LDK/2階) | |||||||
![]() | 6.9万円 6,000円 | なし 6.9万円 | 1LDK 29.16m2 | 築4年 | 京阪電気鉄道京阪線 藤森駅 徒歩7分 京阪電気鉄道京阪線 龍谷大前深草駅 徒歩7分 奈良線 稲荷駅 徒歩10分 京都府京都市伏見区深草西出町 | 詳細を見る | |
アパート ハイダウェイ両替町(2LDK/1階) | |||||||
![]() | 14万円 8,000円 | なし 16万円 | 2LDK 60.21m2 | 新築 | 近鉄京都線 伏見駅(京都) 徒歩7分 京阪電気鉄道京阪線 丹波橋駅 徒歩7分 近鉄京都線 近鉄丹波橋駅 徒歩9分 京都府京都市伏見区 | 詳細を見る | |
マンション ΑPRIZEⅦ(1K/2階) | |||||||
![]() | 6万円 7,000円 | 6万円 6万円 | 1K 25.33m2 | 築29年 | 阪急電鉄京都線 長岡天神駅 徒歩5分 東海道本線 長岡京駅 徒歩15分 京都府長岡京市長岡1丁目 | 詳細を見る | |
アパート 奈良線 桃山駅 徒歩9分 築2年(1DK/1階) | |||||||
![]() | 6.6万円 5,000円 | 3万円 なし | 1DK 31.18m2 | 築2年 | 奈良線 桃山駅 徒歩9分 京阪電気鉄道宇治線 観月橋駅 徒歩9分 京都府京都市伏見区桃山町泰長老 | 詳細を見る | |
アパート 奈良線 新田駅(京都) 徒歩11分 築17年(1K/2階) | |||||||
![]() | 6.9万円 7,000円 | なし 6.9万円 | 1K 22.35m2 | 築17年 | 奈良線 新田駅(京都) 徒歩11分 近鉄京都線 大久保駅(京都) 徒歩14分 京都府宇治市広野町桐生谷 | 詳細を見る | |
マンション 近鉄京都線 伊勢田駅 徒歩13分 築11年(1LDK/3階) | |||||||
![]() | 7.5万円 6,500円 | 7.5万円 7.5万円 | 1LDK 46.34m2 | 築11年 | 近鉄京都線 伊勢田駅 徒歩13分 近鉄京都線 大久保駅(京都) 徒歩19分 京都府宇治市神明 | 詳細を見る | |








