賃貸マンション
DEUX TOURS ウエストの賃貸物件情報(2LDK/52階)
| 家賃 | 管理費等 | 敷金 | 礼金 | 間取り | 専有面積 |
|---|---|---|---|---|---|
| 110万円 | 3万円 | 110万円 | 110万円 | 2LDK | 100.2m2 |
入居決定でお祝い金最大100,000円
- 保証金
- -
- 償却・敷引
- -
- 築年数
- 築11年
- 所在階
- 52階
- 向き
- 南
Point
オンライン相談・内見・IT重説に対応!契約書も郵送や電子となり来店不要でご契約まで可能です!初期費用のクレジット決済も可能です!創業47年の信頼と直営139店舗のネットワークでサポート致します!
提供:(株)タウンハウジング東京 浜松町店(SUUMO経由)

詳細情報 DEUX TOURS ウエスト
物件紹介
DEUX TOURS ウエストは都営大江戸線勝どき駅から徒歩9分にあり、駅近で通勤通学に便利なマンションです。
このお部屋は2階以上に位置しているので、通行人や周囲の住人からの視線が気になりにくく、防犯面でも安心。建物のエントランスはオートロックがついており、インターホンにはTVモニタもついているため、相手の顔を確認してから来客対応することができます。
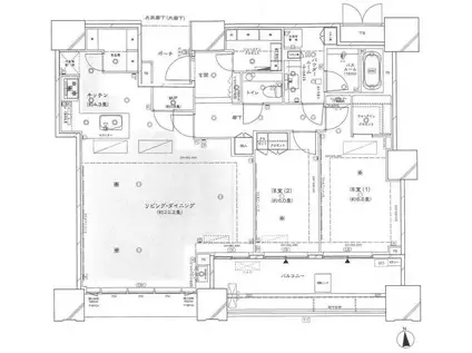
人気の南向き・フローリングのお部屋。室内にはウォークインクローゼットがありますので、たくさんの荷物も効率的に収納ができます。キッチンはシステムキッチン仕様になっていますので、お料理好きの方にもぴったり。バス・トイレは別なので、のんびりお風呂タイムも楽しめるでしょう。また、雨の日でも浴室乾燥機を使えば、お洗濯も問題ありません。
通信設備面では、インターネット接続が可能です(別途工事、契約料が必要な場合あり)。
床暖房があり、冬も足元から暖かく快適に過ごすことができます。建物にはエレベーターがついているので、重い荷物があっても安心。共用部には宅配ボックスが設定されているので、不在の時にも荷物を受け取ることができます。
このお部屋は2階以上に位置しているので、通行人や周囲の住人からの視線が気になりにくく、防犯面でも安心。建物のエントランスはオートロックがついており、インターホンにはTVモニタもついているため、相手の顔を確認してから来客対応することができます。
人気の南向き・フローリングのお部屋。室内にはウォークインクローゼットがありますので、たくさんの荷物も効率的に収納ができます。キッチンはシステムキッチン仕様になっていますので、お料理好きの方にもぴったり。バス・トイレは別なので、のんびりお風呂タイムも楽しめるでしょう。また、雨の日でも浴室乾燥機を使えば、お洗濯も問題ありません。
通信設備面では、インターネット接続が可能です(別途工事、契約料が必要な場合あり)。
床暖房があり、冬も足元から暖かく快適に過ごすことができます。建物にはエレベーターがついているので、重い荷物があっても安心。共用部には宅配ボックスが設定されているので、不在の時にも荷物を受け取ることができます。
お金・契約の情報
※「-」と表示されているものは、実際は料金が発生するものもございます。詳細はお問い合わせください。
| 家賃 | 110万円 | 管理費・共益費 | 3万円 |
|---|---|---|---|
| 敷金 | 110万円 | 礼金 | 110万円 |
| 入居決定でお祝い金最大100,000円 | |||
| 保証金 | - | 償却・敷引 | - |
| 住宅保険料 | - | 更新料 | - |
| 保証会社利用 | 必須 | 保証会社名 | 全保連 |
| 保証会社費用 | - | 保証会社備考 | 全保連利用必 賃貸保証料:0.50ヶ月 |
| 契約形態 | 定期借家 | 契約期間 | 3年 |
| 入居・引渡期間 | 即時 | 現況 | - |
| 契約備考 | ゆりかもめ豊洲駅徒歩28分/初期費用クレジット決済可/IT重説対応/オンライン相談・内見可/短期解約違約金あり/禁煙住戸 2LDK 単身者可/二人入居可/子供可 定期借家3年 損保【2万円2年】 バストイレ別、バルコニー、ガスコンロ対応、クロゼット、フローリング、TVインターホン、浴室乾燥機、オートロック、室内洗濯置、シューズボックス、システムキッチン、南向き、追焚機能浴室、温水洗浄便座、脱衣所、エレベーター、洗面所独立、洗面化粧台、宅配ボックス、光ファイバー、即入居可、最上階、3口以上コンロ、対面式キッチン、防犯カメラ、全居室収納、24時間有人管理、分譲賃貸、オートバス、グリル付、全居室洋室、ウォークインクロゼット、保証人不要、敷金1ヶ月、全居室フローリング、浄水器、床暖房、食器洗乾燥機、トランクルーム、ダブルロックキー、保証金不要、L字型キッチン、納戸、ペット専用設備、エレベーター2基、タワー型マンション、24時間ゴミ出し可、敷地内ごみ置き場、LDK25畳以上、都市ガス、洗面所にドア、南面バルコニー、シューズWIC、天井高シューズクロゼット、玄関収納、高速ネット対応、マルチメディアコンセント、礼金1ヶ月、IT重説対応物件、初期費用カード決済可 | ||
部屋の情報
| 間取り | 2LDK | 専有面積 | 100.2m2 |
|---|---|---|---|
| 所在階 / 向き | 52階 / 南 | バルコニー面積 | - |
| 水道 / ガス | - | ||
| 設備 | バス・トイレ別、2階以上、オートロック、テレビドアホン、宅配ボックス、浴室乾燥機、ウォークインクローゼット、追い焚き、インターネット対応、システムキッチン、エレベーター、温水洗浄便座、南向き、バルコニー、フローリング、トランクルーム、洗髪洗面化粧台、タワーマンション、床暖房、2口コンロ、コンロ:ガス、洗濯機:室内 | ||
| 当社物件ID | 160301695 | ||
建物の情報
| 建物名 | DEUX TOURS ウエスト | ||
|---|---|---|---|
| 所在地 | 東京都中央区晴海 | ||
| 交通 | 都営大江戸線 勝どき駅 徒歩9分 都営大江戸線 月島駅 徒歩15分 新交通ゆりかもめ 新豊洲駅 徒歩20分 | ||
| 階数 | 地下1地上52階建 | 総戸数 | - |
| 築年月 | 2015年12月 / 築11年 | エレベーター | あり |
| 駐車場 | 空有 33000円 | バイク置き場 | - |
| 駐輪場 | - | 管理人/管理会社 | - |
| 周辺環境 | その他 マルエツ晴海三丁目店(スーパー)まで5m その他 東武ストア晴海三丁目店(スーパー)まで300m その他 セブンイレブン晴海3丁目店(コンビニ)まで80m その他 どらっぐぱぱす(ドラッグストア)まで140m その他 ららテラス HARUMI FLAG(ショッピングセンター)まで490m その他 晴海こども園(幼稚園・保育園)まで760m | ||
| 建物種別 | マンション | 建物構造 | RC(鉄筋コンクリート) |
この部屋の取扱い不動産会社
| 会社名 | (株)タウンハウジング東京 浜松町店(SUUMO経由) | ||
|---|---|---|---|
| 所在地 | 東京都港区芝大門2-3-2 第2大吉ビル1階 | 交通 | - |
| 営業時間 | AM10:00~PM7:00 | 定休日 | 水曜日 |
| 免許番号 | 国土交通大臣9926 | 取引態様 | 仲介 |
| 不動産会社管理番号 | 100485494651 | 当社管理番号 | 89 |
| 所属団体 | (公社)東京都宅地建物取引業協会会員 | ||
| 公正取引協議会 | (公社)首都圏不動産公正取引協議会加盟 | ||
| 取扱い物件情報 | 物件詳細へ | ||
※各種情報と現状に差異がある場合は、現状優先となります。問い合わせをすることで、より詳しい条件、情報を確認する事ができます。
提供:(株)タウンハウジング東京 浜松町店(SUUMO経由)
この物件が気になったら掲載期限まであと10日
DEUX TOURS ウエストに条件(家賃・エリア)が近い物件一覧
| 写真 | 家賃 管理費等 | 敷金 礼金 | 間取り 専有面積 | 築年数 | 最寄り駅 所在地 | キープ | 詳細 |
|---|---|---|---|---|---|---|---|
マンション ザ・パークハウス元麻布(3LDK/3階) | |||||||
![]() | 68万円 2万円 | 136万円 68万円 | 3LDK 90.58m2 | 築14年 | 東京メトロ南北線 麻布十番駅 徒歩9分 東京メトロ日比谷線 広尾駅 徒歩12分 東京メトロ日比谷線 六本木駅 徒歩12分 東京都港区元麻布 | 詳細を見る | |
マンション プレミエール一番町(2LDK/10階) | |||||||
![]() | 77.2万円 2万円 | 77.2万円 77.2万円 | 2LDK 95.08m2 | 築19年 | 東京メトロ半蔵門線 半蔵門駅 徒歩2分 東京メトロ有楽町線 麹町駅 徒歩8分 東京都千代田区一番町 | 詳細を見る | |
マンション 三田ガーデンヒルズ(3LDK/9階) | |||||||
![]() | 165万円 なし | なし 165万円 | 3LDK 108.86m2 | 築1年 | 東京メトロ南北線 麻布十番駅 徒歩5分 都営大江戸線 赤羽橋駅 徒歩5分 都営三田線 三田駅(東京) 徒歩11分 東京都港区三田 | 詳細を見る | |
マンション ザ・ウエストミンスター六本木(2SLDK/4階) | |||||||
![]() | 110万円 なし | 220万円 110万円 | 2SLDK 117.35m2 | 築23年 | 都営大江戸線 麻布十番駅 徒歩7分 東京メトロ日比谷線 六本木駅 徒歩8分 東京メトロ千代田線 乃木坂駅 徒歩16分 東京都港区六本木 | 詳細を見る | |
マンション 虎ノ門ヒルズ レジデンシャルタワー(1LDK/25階) | |||||||
![]() | 77万円 なし | 308万円 なし | 1LDK 60.23m2 | 築5年 | 東京メトロ日比谷線 神谷町駅 徒歩6分 東京メトロ銀座線 虎ノ門駅 徒歩6分 東京都港区愛宕 | 詳細を見る | |
マンション 麻布台ヒルズレジデンス(1SLDK/8階) | |||||||
![]() | 77万円 なし | 154万円 なし | 1SLDK 63.57m2 | 築1年 | 東京メトロ南北線 六本木一丁目駅 徒歩1分 東京メトロ日比谷線 神谷町駅 徒歩7分 都営大江戸線 六本木駅 徒歩10分 東京都港区麻布台 | 詳細を見る | |
マンション ザ・パークハウス グラン 三番町(3LDK/15階) | |||||||
![]() | 105万円 なし | 210万円 105万円 | 3LDK 116.72m2 | 築12年 | 東京メトロ半蔵門線 半蔵門駅 徒歩5分 都営新宿線 市ケ谷駅 徒歩10分 東京メトロ有楽町線 麹町駅 徒歩10分 東京都千代田区三番町 | 詳細を見る | |








