賃貸マンション
パークコート浜離宮ザタワーの賃貸物件情報(3LDK/20階)
| 家賃 | 管理費等 | 敷金 | 礼金 | 間取り | 専有面積 |
|---|---|---|---|---|---|
| 100万円 | なし | 200万円 | 100万円 | 3LDK | 100.8m2 |
入居決定でお祝い金最大100,000円
- 保証金
- -
- 償却・敷引
- 100万円
- 築年数
- 築7年
- 所在階
- 20階
- 向き
- 南東
Point
☆ピアホームは港区・渋谷区特化型☆ オンライン内見・契約実施中! 初期費用クレカ決済もご相談ください◎
提供:THE RooM 金城シティハウジング(株)(SUUMO経由)

詳細情報 パークコート浜離宮ザタワー
物件紹介
パークコート浜離宮ザタワーはJR山手線浜松町駅から徒歩5分にあり、駅近で通勤通学に便利なマンションです。
このお部屋は2階以上に位置しているので、通行人や周囲の住人からの視線が気になりにくく、防犯面でも安心。建物のエントランスはオートロックがついており、インターホンにはTVモニタもついているため、相手の顔を確認してから来客対応することができます。
人気の南向き・フローリングのお部屋。角部屋でもあるため、周囲の居住者の生活音も気になりにくい場所です。室内にはウォークインクローゼットがありますので、たくさんの荷物も効率的に収納ができます。キッチンはシステムキッチン仕様になっていますので、お料理好きの方にもぴったり。バス・トイレは別なので、のんびりお風呂タイムも楽しめるでしょう。また、雨の日でも浴室乾燥機を使えば、お洗濯も問題ありません。
通信設備面では、インターネットが無料で使えるので、月々の出費を抑えられるのも魅力です。また、BSアンテナ・CSアンテナがありCATVにも対応しているので、おうち時間も充実するでしょう(別途工事、BS・CS・CATVの契約料等が必要な場合あり)。
床暖房があり、冬も足元から暖かく快適に過ごすことができます。建物にはエレベーターがついているので、重い荷物があっても安心。共用部には宅配ボックスが設定されているので、不在の時にも荷物を受け取ることができます。また、ペット飼育の相談ができますので、あなたの大切な家族の一員も快適に暮らせるか、ぜひ確認してみてください。
このお部屋は2階以上に位置しているので、通行人や周囲の住人からの視線が気になりにくく、防犯面でも安心。建物のエントランスはオートロックがついており、インターホンにはTVモニタもついているため、相手の顔を確認してから来客対応することができます。
人気の南向き・フローリングのお部屋。角部屋でもあるため、周囲の居住者の生活音も気になりにくい場所です。室内にはウォークインクローゼットがありますので、たくさんの荷物も効率的に収納ができます。キッチンはシステムキッチン仕様になっていますので、お料理好きの方にもぴったり。バス・トイレは別なので、のんびりお風呂タイムも楽しめるでしょう。また、雨の日でも浴室乾燥機を使えば、お洗濯も問題ありません。
通信設備面では、インターネットが無料で使えるので、月々の出費を抑えられるのも魅力です。また、BSアンテナ・CSアンテナがありCATVにも対応しているので、おうち時間も充実するでしょう(別途工事、BS・CS・CATVの契約料等が必要な場合あり)。
床暖房があり、冬も足元から暖かく快適に過ごすことができます。建物にはエレベーターがついているので、重い荷物があっても安心。共用部には宅配ボックスが設定されているので、不在の時にも荷物を受け取ることができます。また、ペット飼育の相談ができますので、あなたの大切な家族の一員も快適に暮らせるか、ぜひ確認してみてください。
お金・契約の情報
※「-」と表示されているものは、実際は料金が発生するものもございます。詳細はお問い合わせください。
| 家賃 | 100万円 | 管理費・共益費 | なし |
|---|---|---|---|
| 敷金 | 200万円 | 礼金 | 100万円 |
| 入居決定でお祝い金最大100,000円 | |||
| 保証金 | - | 償却・敷引 | 100万円 |
| 住宅保険料 | - | 更新料 | - |
| 保証会社利用 | 必須 | 保証会社名 | - |
| 保証会社費用 | - | 保証会社備考 | 保証会社利用必 【ジェイリース】初回保証料:月額賃料等の50% 月額保証料1000~1200円 |
| 契約形態 | - | 契約期間 | - |
| 入居・引渡期間 | 即時 | 現況 | - |
| 入居可能条件 | ペット相談 | ||
| 契約備考 | 常駐管理/※短期解約時、違約金が発生する場合がございます。※同タイプ・別階の内観写真を掲載している場合があります。図面と現況が異なる場合は現況を優先いたします。 【バイク置場】3000円/月【駐輪場】200~1000円/月◆ペット飼育時:敷金1ヶ月追加・2ヶ月分償却室内消毒:16500円(任意)更新事務手数料:5500円 3LDK 二人入居可/ペット相談 損保【2.4万円2年】 バストイレ別、バルコニー、エアコン、クロゼット、フローリング、TVインターホン、浴室乾燥機、オートロック、室内洗濯置、陽当り良好、シューズボックス、システムキッチン、追焚機能浴室、角住戸、温水洗浄便座、エレベーター、洗面所独立、2口コンロ、駐輪場、宅配ボックス、CATV、光ファイバー、対面式キッチン、防犯カメラ、ペット相談、分譲賃貸、オートバス、保証人不要、二人入居相談、バイク置場、全居室フローリング、2面バルコニー、ディンプルキー、CS、ネット使用料不要、トランクルーム、ディスポーザー、3方角住戸、タワー型マンション、24時間ゴミ出し可、敷地内ごみ置き場、自走式駐車場、都市ガス、BS、高速ネット対応、初期費用カード決済可 | ||
部屋の情報
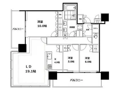
| 間取り | 3LDK | 専有面積 | 100.8m2 |
|---|---|---|---|
| 所在階 / 向き | 20階 / 南東 | バルコニー面積 | - |
| 水道 / ガス | - | ||
| 設備 | バス・トイレ別、2階以上、オートロック、テレビドアホン、宅配ボックス、浴室乾燥機、追い焚き、インターネット対応、システムキッチン、エアコン、エレベーター、温水洗浄便座、南向き、角部屋、バルコニー、フローリング、トランクルーム、洗髪洗面化粧台、タワーマンション、2口コンロ、CATV、CSアンテナ、BSアンテナ、インターネット使用料無料、洗濯機:室内 | ||
| 当社物件ID | 30003203 | ||
建物の情報
| 建物名 | パークコート浜離宮ザタワー | ||
|---|---|---|---|
| 所在地 | 東京都港区浜松町 | ||
| 交通 | 都営浅草線 大門駅(東京) 徒歩5分 JR山手線 浜松町駅 徒歩5分 都営大江戸線 汐留駅 徒歩8分 | ||
| 階数 | 37階建 | 総戸数 | - |
| 築年月 | 2019年02月 / 築7年 | エレベーター | あり |
| 駐車場 | なし | バイク置き場 | あり |
| 駐輪場 | あり | 管理人/管理会社 | - |
| 周辺環境 | その他 セブン-イレブン 中央区役所前店(コンビニ)まで1884m その他 まいばすけっと 築地2丁目店(スーパー)まで1701m その他 東京都済生会中央病院(病院)まで1356m その他 御成門小学校(小学校)まで709m その他 御成門中学校(中学校)まで652m | ||
| 建物種別 | マンション | 建物構造 | RC(鉄筋コンクリート) |
この部屋の取扱い不動産会社
| 会社名 | SEG(株)PeerHome新橋店(SUUMO経由) | ||
|---|---|---|---|
| 所在地 | 東京都港区西新橋1-5-10 TJ内幸町ビル10階 | 交通 | - |
| 営業時間 | 9:00-18:30 | 定休日 | - |
| 免許番号 | 東京都知事103362 | 取引態様 | 仲介 |
| 不動産会社管理番号 | 100481874299 | 当社管理番号 | 89 |
| 取扱い物件情報 | 物件詳細へ | ||
※各種情報と現状に差異がある場合は、現状優先となります。問い合わせをすることで、より詳しい条件、情報を確認する事ができます。
提供:SEG(株)PeerHome新橋店(SUUMO経由)
この物件が気になったら掲載期限まであと11日
パークコート浜離宮ザタワーに条件(家賃・エリア)が近い物件一覧
| 写真 | 家賃 管理費等 | 敷金 礼金 | 間取り 専有面積 | 築年数 | 最寄り駅 所在地 | キープ | 詳細 |
|---|---|---|---|---|---|---|---|
マンション プレステージレジデンス白金長者丸 PRESTIGE RESIDENCE(1LDK/2階) | |||||||
![]() | 150万円 なし | 450万円 なし | 1LDK 203.6m2 | 築8年 | 都営三田線 目黒駅 徒歩7分 東京メトロ南北線 白金台駅 徒歩17分 JR山手線 恵比寿駅 徒歩19分 東京都品川区上大崎 | 詳細を見る | |
マンション レセーヌ白金長者丸(2LDK/3階) | |||||||
![]() | 93万円 5万円 | 186万円 93万円 | 2LDK 157.25m2 | 築16年 | 山手線 目黒駅 徒歩13分 東京地下鉄南北線 白金台駅 徒歩15分 東京都品川区上大崎2丁目 | 詳細を見る | |
マンション ドゥーエ西麻布II(2LDK/14階) | |||||||
![]() | 63万円 1.5万円 | 63万円 63万円 | 2LDK 88.36m2 | 築23年 | 東京メトロ日比谷線 六本木駅 徒歩13分 東京メトロ日比谷線 広尾駅 徒歩14分 東京メトロ千代田線 表参道駅 徒歩15分 東京都港区西麻布 | 詳細を見る | |
マンション THE CONOE 三田綱町(2LDK/3階) | |||||||
![]() | 88万円 なし | 88万円 88万円 | 2LDK 107.16m2 | 築9年 | 東京メトロ南北線 麻布十番駅 徒歩8分 都営大江戸線 赤羽橋駅 徒歩9分 都営三田線 三田駅(東京) 徒歩14分 東京都港区三田 | 詳細を見る | |
マンション オフィスニューガイア浜松町NO.17(2LDK/11階) | |||||||
![]() | 90万円 なし | 90万円 90万円 | 2LDK 125.26m2 | 築33年 | 都営三田線 三田駅(東京) 徒歩9分 新交通ゆりかもめ 日の出駅 徒歩10分 都営三田線 芝公園駅 徒歩11分 東京都港区芝 | 詳細を見る | |
マンション ザ・ウエストミンスター六本木(2SLDK/4階) | |||||||
![]() | 120万円 なし | 240万円 120万円 | 2SLDK 117.35m2 | 築23年 | 都営大江戸線 麻布十番駅 徒歩7分 東京メトロ日比谷線 六本木駅 徒歩8分 東京メトロ千代田線 乃木坂駅 徒歩16分 東京都港区六本木 | 詳細を見る | |
マンション グラントレゾール広尾(2LDK/1階) | |||||||
![]() | 70万円 なし | 70万円 なし | 2LDK 117.81m2 | 築15年 | 東京メトロ日比谷線 広尾駅 徒歩8分 東京メトロ南北線 白金台駅 徒歩15分 JR山手線 恵比寿駅 徒歩15分 東京都渋谷区恵比寿 | 詳細を見る | |
マンション 赤坂タワーレジデンスTOP OF THE HILL(1LDK/17階) | |||||||
![]() | 60万円 なし | 60万円 60万円 | 1LDK 66.13m2 | 築18年 | 東京メトロ千代田線 赤坂駅(東京) 徒歩4分 東京メトロ銀座線 溜池山王駅 徒歩4分 東京メトロ南北線 溜池山王駅 徒歩4分 東京都港区赤坂 | 詳細を見る | |








