賃貸アパート
南雪谷1丁目 車庫付アパート2の賃貸物件情報(3DK/2階)
| 家賃 | 管理費等 | 敷金 | 礼金 | 間取り | 専有面積 |
|---|---|---|---|---|---|
| 14万円 | 5,000円 | 14万円 | 14万円 | 3DK | 56.73m2 |
入居決定でお祝い金最大100,000円
Point
まずはお問い合わせ!
不動産会社は街のプロ、あなたに合った物件がきっと見つかります。
提供:(有)大井ハウジング(SUUMO経由)

詳細情報 南雪谷1丁目 車庫付アパート2
物件紹介
南雪谷1丁目 車庫付アパート2は東急池上線雪が谷大塚駅から徒歩6分にあり、駅近で通勤通学に便利なアパートです。
このお部屋は2階以上に位置しているので、通行人や周囲の住人からの視線が気になりにくく、防犯面でも安心です。
フローリングのお部屋なのでお掃除もラクラク。バス・トイレ別の仕様で、のんびりお風呂タイムも楽しめます。
このお部屋は2階以上に位置しているので、通行人や周囲の住人からの視線が気になりにくく、防犯面でも安心です。
フローリングのお部屋なのでお掃除もラクラク。バス・トイレ別の仕様で、のんびりお風呂タイムも楽しめます。
お金・契約の情報
※「-」と表示されているものは、実際は料金が発生するものもございます。詳細はお問い合わせください。
| 家賃 | 14万円 | 管理費・共益費 | 5,000円 |
|---|---|---|---|
| 敷金 | 14万円 | 礼金 | 14万円 |
| 入居決定でお祝い金最大100,000円 | |||
| 保証金 | - | 償却・敷引 | - |
| 住宅保険料 | - | 更新料 | - |
| 保証会社利用 | 必須 | 保証会社名 | - |
| 保証会社費用 | - | 保証会社備考 | 保証会社利用必 宅建ブレインズ 50%or70% |
| 契約形態 | - | 契約期間 | - |
| 入居・引渡期間 | 即時 | 現況 | - |
| 契約備考 | 3DK 普通借家2年 損保【1.8万円2年】 バストイレ別、洗面所独立、駐輪場、即入居可、最上階、独立型キッチン、駐車場1台無料、バイク置場、2沿線利用可、1フロア1住戸、一部フローリング、エアコン4台、2駅利用可、敷地内ごみ置き場、都市ガス | ||
部屋の情報
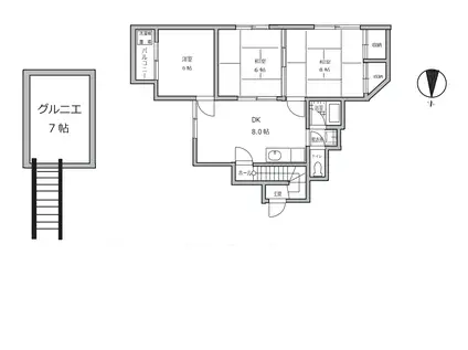
| 間取り | 3DK | 専有面積 | 56.73m2 |
|---|---|---|---|
| 所在階 / 向き | 2階 / 東 | バルコニー面積 | - |
| 水道 / ガス | - | ||
| 設備 | バス・トイレ別、2階以上、エアコン、フローリング、洗髪洗面化粧台 | ||
| 当社物件ID | 160523900 | ||
建物の情報
| 建物名 | 南雪谷1丁目 車庫付アパート2 | ||
|---|---|---|---|
| 所在地 | 東京都大田区南雪谷 | ||
| 交通 | 東急池上線 雪が谷大塚駅 徒歩6分 | ||
| 階数 | 2階建 | 総戸数 | - |
| 築年月 | 1988年03月 / 築39年 | エレベーター | - |
| 駐車場 | なし | バイク置き場 | あり |
| 駐輪場 | あり | 管理人/管理会社 | - |
| 周辺環境 | その他 さわやか信用金庫雪谷支店(銀行)まで318m その他 まいばすけっと石川台駅南店(スーパー)まで356m その他 スギ薬局雪谷店(ドラッグストア)まで334m その他 セブンイレブン大田区東雪谷店(コンビニ)まで273m その他 ドラッグセイムス石川台店(ドラッグストア)まで357m その他 バーミヤン雪ケ谷大塚駅前店(飲食店)まで459m | ||
| 建物種別 | アパート | 建物構造 | 木造 |
この部屋の取扱い不動産会社
| 会社名 | (有)大井ハウジング(SUUMO経由) | ||
|---|---|---|---|
| 所在地 | 東京都品川区大井1-16-2 ブリリア大井町ラヴィアンタワー112 | 交通 | - |
| 営業時間 | 10:00~18:30 | 定休日 | 水曜日 |
| 免許番号 | 東京都知事83238 | 取引態様 | 仲介 |
| 不動産会社管理番号 | 100492441920 | 当社管理番号 | 89 |
| 所属団体 | (公社)東京都宅地建物取引業協会会員 | ||
| 公正取引協議会 | (公社)首都圏不動産公正取引協議会加盟 | ||
| 取扱い物件情報 | 物件詳細へ | ||
※各種情報と現状に差異がある場合は、現状優先となります。問い合わせをすることで、より詳しい条件、情報を確認する事ができます。
提供:(有)大井ハウジング(SUUMO経由)
この物件が気になったら掲載期限まであと9日
南雪谷1丁目 車庫付アパート2に条件(家賃・エリア)が近い物件一覧
| 写真 | 家賃 管理費等 | 敷金 礼金 | 間取り 専有面積 | 築年数 | 最寄り駅 所在地 | キープ | 詳細 |
|---|---|---|---|---|---|---|---|
マンション SAKURA(2LDK/2階) | |||||||
![]() | 19.5万円 5,000円 | 19.5万円 19.5万円 | 2LDK 54.84m2 | 築5年 | 京急本線 梅屋敷駅(東京) 徒歩7分 京急本線 大森町駅 徒歩9分 東京都大田区大森中 | 詳細を見る | |
マンション ビクトワールササガワ(1K/2階) | |||||||
![]() | 8.4万円 5,000円 | 8.4万円 なし | 1K 19.44m2 | 築26年 | 京浜東北・根岸線 蒲田駅 徒歩2分 京浜急行電鉄本線 京急蒲田駅 徒歩10分 東京都大田区蒲田5丁目 | 詳細を見る | |
マンション RR HIRANO(1LDK/3階) | |||||||
![]() | 21万円 なし | 42万円 21万円 | 1LDK 56.21m2 | 築35年 | 東京メトロ半蔵門線 清澄白河駅 徒歩9分 都営大江戸線 清澄白河駅 徒歩9分 東京メトロ東西線 門前仲町駅 徒歩16分 東京都江東区平野 | 詳細を見る | |
アパート SEED SAVE PETIRASU BREEZE(1LDK/1階) | |||||||
![]() | 10.4万円 1万円 | 20.8万円 10.4万円 | 1LDK 32.95m2 | 新築 | 東京モノレール羽田 昭和島駅 徒歩12分 京浜急行電鉄本線 大森町駅 徒歩18分 東京都大田区大森東5丁目 | 詳細を見る | |
アパート サン ヴィータ(1K/1階) | |||||||
![]() | 9万円 5,000円 | 9万円 18万円 | 1K 21.6m2 | 築6年 | 京浜急行電鉄本線 京急蒲田駅 徒歩6分 京浜急行電鉄本線 梅屋敷駅(東京) 徒歩10分 東京都大田区蒲田3丁目 | 詳細を見る | |
マンション グランディール(1K/4階) | |||||||
![]() | 9.6万円 5,000円 | 9.6万円 なし | 1K 25.02m2 | 築22年 | 京浜急行電鉄本線 大森町駅 徒歩5分 京浜急行電鉄本線 梅屋敷駅(東京) 徒歩9分 東京都大田区大森中1丁目 | 詳細を見る | |
マンション ロサルバ大森(2DK/4階) | |||||||
![]() | 15.6万円 7,000円 | 15.6万円 31.2万円 | 2DK 50.48m2 | 築23年 | 京浜急行電鉄本線 大森町駅 徒歩8分 京浜急行電鉄本線 梅屋敷駅(東京) 徒歩8分 東京都大田区大森西3丁目 | 詳細を見る | |








