賃貸マンション
パレット御池の賃貸物件情報(2DK/3階)
| 家賃 | 管理費等 | 敷金 | 礼金 | 間取り | 専有面積 |
|---|---|---|---|---|---|
| 6.6万円 | 8,500円 | 10万円 | 13万円 | 2DK | 47.03m2 |
入居決定でお祝い金最大100,000円
Point
駅3分、大型バイク可 地下鉄の駅まで徒歩3分、大型バイク駐輪可 (空き要確認)
提供:株式会社ホーム・ライフ(賃貸スモッカ経由)

詳細情報 パレット御池
物件紹介
パレット御池は京都市東西線西大路御池駅から徒歩2分にあり、駅近で通勤通学に便利なマンションです。
このお部屋は2階以上に位置しているので、通行人や周囲の住人からの視線が気になりにくく、防犯面でも安心。インターホンにはTVモニタもついているため、相手の顔を確認してから来客対応することができます。
人気の角部屋で周囲の居住者の生活音も気になりにくく、また、フローリングのお部屋なのでお掃除もラクラク。バス・トイレ別の仕様で、のんびりお風呂タイムも楽しめます。
通信設備面では、インターネット接続が可能です。また、BSアンテナ・CSアンテナがありCATVにも対応しているので、おうち時間も充実するでしょう(別途工事、契約料が必要な場合あり)。
建物にはエレベーターがついているので、重い荷物があっても安心。
このお部屋は2階以上に位置しているので、通行人や周囲の住人からの視線が気になりにくく、防犯面でも安心。インターホンにはTVモニタもついているため、相手の顔を確認してから来客対応することができます。
人気の角部屋で周囲の居住者の生活音も気になりにくく、また、フローリングのお部屋なのでお掃除もラクラク。バス・トイレ別の仕様で、のんびりお風呂タイムも楽しめます。
通信設備面では、インターネット接続が可能です。また、BSアンテナ・CSアンテナがありCATVにも対応しているので、おうち時間も充実するでしょう(別途工事、契約料が必要な場合あり)。
建物にはエレベーターがついているので、重い荷物があっても安心。
お金・契約の情報
※「-」と表示されているものは、実際は料金が発生するものもございます。詳細はお問い合わせください。
| 家賃 | 6.6万円 | 管理費・共益費 | 8,500円 |
|---|---|---|---|
| 敷金 | 10万円 | 礼金 | 13万円 |
| 入居決定でお祝い金最大100,000円 | |||
| 保証金 | - | 償却・敷引 | - |
| 住宅保険料 | 住宅保険料あり | 更新料 | - |
| 契約形態 | - | 契約期間 | 2年 |
| 入居・引渡期間 | 即時 | 現況 | 空室 |
| 契約備考 | 更新料:2ヶ月 その他設備/条件:独立洗面台、TVドアホン、即入居可 | ||
部屋の情報
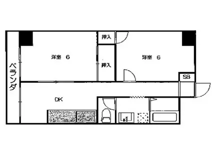
| 間取り | 2DK | 専有面積 | 47.03m2 |
|---|---|---|---|
| 間取り詳細 | 洋室(6帖)、洋室(6帖)、DK(6帖) | ||
| 所在階 / 向き | 3階 / 西 | バルコニー面積 | - |
| 水道 / ガス | ガス【都市】 | ||
| 設備 | バス・トイレ別、2階以上、インターネット対応、エアコン、エレベーター、温水洗浄便座、バルコニー、フローリング、CSアンテナ、BSアンテナ、洗濯機:室内 | ||
| 当社物件ID | 29918168 | ||
建物の情報
| 建物名 | パレット御池 | ||
|---|---|---|---|
| 所在地 | 京都府京都市中京区西ノ京東中合町 | ||
| 交通 | 京都市東西線 西大路御池駅 徒歩2分 山陰本線 円町駅 徒歩8分 | ||
| 階数 | 9階建 | 総戸数 | - |
| 築年月 | 1980年06月 / 築46年 | エレベーター | あり |
| 駐車場 | - | バイク置き場 | - |
| 駐輪場 | あり | 管理人/管理会社 | - |
| 建物種別 | マンション | 建物構造 | SRC(鉄骨鉄筋コンクリート) |
この部屋の取扱い不動産会社
| 会社名 | 株式会社 京都ライフ 二条駅前店(賃貸スモッカ経由) | ||
|---|---|---|---|
| 所在地 | 京都市中京区西ノ京職司町72 ウエストフィールド1階 | 交通 | - |
| 営業時間 | - | 定休日 | - |
| 免許番号 | 京都府知事(11)第6353号 | 取引態様 | 仲介 |
| 不動産会社管理番号 | kyotolife_059B9-310 | 当社管理番号 | 463 |
| 所属団体 | 京都府宅地建物取引業協会\n公益社団法人近畿地区不動産公正取引協議会 | ||
| 公正取引協議会 | 全国宅地建物取引業保証協会 | ||
| 取扱い物件情報 | 物件詳細へ | ||
※各種情報と現状に差異がある場合は、現状優先となります。問い合わせをすることで、より詳しい条件、情報を確認する事ができます。
提供:株式会社 京都ライフ 二条駅前店(賃貸スモッカ経由)
この物件が気になったら掲載期限まであと6日
パレット御池に条件(家賃・エリア)が近い物件一覧
| 写真 | 家賃 管理費等 | 敷金 礼金 | 間取り 専有面積 | 築年数 | 最寄り駅 所在地 | キープ | 詳細 |
|---|---|---|---|---|---|---|---|
アパート GRAMM奥海印寺 イースト(2LDK/2階) | |||||||
![]() | 10.08万円 8,000円 | なし なし | 2LDK 57.37m2 | 築1年 | 阪急京都線 長岡天神駅 徒歩27分 阪急京都線 西山天王山駅 徒歩27分 JR東海道本線 長岡京駅 徒歩38分 京都府長岡京市奥海印寺八戸木 | 詳細を見る | |
アパート 阪急電鉄京都線 西院駅(阪急) 徒歩9分 築1年(1LDK/2階) | |||||||
![]() | 8.5万円 5,000円 | なし 8万円 | 1LDK 29.75m2 | 築1年 | 阪急電鉄京都線 西院駅(阪急) 徒歩9分 山陰本線 丹波口駅 徒歩13分 京都府京都市中京区壬生下溝町 | 詳細を見る | |
アパート 山陰本線 円町駅 徒歩6分 築23年(1K/2階) | |||||||
![]() | 5.3万円 3,000円 | なし なし | 1K 24m2 | 築23年 | 山陰本線 円町駅 徒歩6分 京都市東西線 二条駅 徒歩15分 京都府京都市中京区西ノ京北壺井町 | 詳細を見る | |
マンション 阪急電鉄京都線 西院駅(阪急) 徒歩3分 新築(1LDK/2階) | |||||||
![]() | 10.15万円 1万円 | なし なし | 1LDK 32.6m2 | 新築 | 阪急電鉄京都線 西院駅(阪急) 徒歩3分 京都市東西線 西大路御池駅 徒歩14分 京都府京都市中京区壬生西土居ノ内町 | 詳細を見る | |
マンション 奈良線 宇治駅(JR) 徒歩3分 築38年(1DK/1階) | |||||||
![]() | 5.4万円 4,000円 | 5.4万円 5.4万円 | 1DK 38.4m2 | 築38年 | 奈良線 宇治駅(JR) 徒歩3分 京阪電気鉄道宇治線 宇治駅(京阪) 徒歩11分 京都府宇治市宇治 | 詳細を見る | |
マンション 山陰本線 円町駅 徒歩2分 新築(1DK/6階) | |||||||
![]() | 8.07万円 9,010円 | なし 8.971万円 | 1DK 28.16m2 | 新築 | 山陰本線 円町駅 徒歩2分 京都市東西線 西大路御池駅 徒歩10分 京都府京都市中京区西ノ京南円町 | 詳細を見る | |
マンション 京阪電気鉄道宇治線 木幡駅(京阪) 徒歩5分 築34年(2SDK/1階) | |||||||
![]() | 10万円 5,000円 | なし なし | 2SDK 66.85m2 | 築34年 | 京阪電気鉄道宇治線 木幡駅(京阪) 徒歩5分 奈良線 木幡駅(JR) 徒歩8分 京都府宇治市木幡町西浦 | 詳細を見る | |
マンション 京都市烏丸線 烏丸御池駅 徒歩2分 築37年(1K/8階) | |||||||
![]() | 8.75万円 9,500円 | 26.25万円 なし | 1K 38.48m2 | 築37年 | 京都市烏丸線 烏丸御池駅 徒歩2分 京都市烏丸線 四条駅(京都市営) 徒歩7分 京都府京都市中京区梅忠町 | 詳細を見る | |








