賃貸マンション
レシオ苅原の賃貸物件情報(2LDK/6階)
| 家賃 | 管理費等 | 敷金 | 礼金 | 間取り | 専有面積 |
|---|---|---|---|---|---|
| 5.5万円 | 2,000円 | なし | 5.5万円 | 2LDK | 59.11m2 |
入居決定でお祝い金最大100,000円
- 保証金
- -
- 償却・敷引
- -
- 築年数
- 築38年
- 所在階
- 6階
- 向き
- 南
Point
洗面化粧台が付いているので、歯ブラシやドライヤーなどをまとめて収納できます。共用部にはエレベータ・バイク置場などが揃っております。こちらの物件は閑静な住宅地にあります。
提供:イースマイルJR久留米店(株)スリーエイチ(SUUMO経由)

詳細情報 レシオ苅原
物件紹介
レシオ苅原はJR久大本線南久留米駅から徒歩15分にあるマンションです。
このお部屋は2階以上に位置しているので、通行人や周囲の住人からの視線が気になりにくく、防犯面でも安心。インターホンにはTVモニタもついているため、相手の顔を確認してから来客対応することができます。
人気の南向きのお部屋。また、フローリングなのでお掃除もラクラク。キッチンはシステムキッチン仕様になっていますので、お料理好きの方にもぴったり。また、バス・トイレは別で、のんびりお風呂タイムも楽しめるでしょう。
通信設備面では、インターネットが無料で使えるので、月々の出費を抑えられるのも魅力です(別途工事等が必要な場合あり)。
建物にはエレベーターがついているので、重い荷物があっても安心。
このお部屋は2階以上に位置しているので、通行人や周囲の住人からの視線が気になりにくく、防犯面でも安心。インターホンにはTVモニタもついているため、相手の顔を確認してから来客対応することができます。
人気の南向きのお部屋。また、フローリングなのでお掃除もラクラク。キッチンはシステムキッチン仕様になっていますので、お料理好きの方にもぴったり。また、バス・トイレは別で、のんびりお風呂タイムも楽しめるでしょう。
通信設備面では、インターネットが無料で使えるので、月々の出費を抑えられるのも魅力です(別途工事等が必要な場合あり)。
建物にはエレベーターがついているので、重い荷物があっても安心。
お金・契約の情報
※「-」と表示されているものは、実際は料金が発生するものもございます。詳細はお問い合わせください。
| 家賃 | 5.5万円 | 管理費・共益費 | 2,000円 |
|---|---|---|---|
| 敷金 | なし | 礼金 | 5.5万円 |
| 入居決定でお祝い金最大100,000円 | |||
| 保証金 | - | 償却・敷引 | - |
| 住宅保険料 | - | 更新料 | - |
| 保証会社利用 | 必須 | 保証会社名 | - |
| 保証会社費用 | - | 保証会社備考 | 保証会社利用必 初回:月額総賃料の100% ナップ賃貸保証株式会社(口座振替 330円/月) ※契約者や条件によっては、内容が変更になる場合があります。 |
| 契約形態 | - | 契約期間 | - |
| 入居・引渡期間 | 即時 | 現況 | - |
| 契約備考 | 合計1.92万円(内訳:町費(年払い)0.6万円鍵交換代1.32万円) 2LDK 二人入居可/子供可 普通借家1年 損保【要】 バストイレ別、バルコニー、ガスコンロ対応、クロゼット、フローリング、シャワー付洗面台、TVインターホン、室内洗濯置、陽当り良好、シューズボックス、システムキッチン、南向き、温水洗浄便座、脱衣所、エレベーター、洗面所独立、洗面化粧台、駐輪場、即入居可、閑静な住宅地、2面採光、最上階、敷金不要、3口以上コンロ、出窓、グリル付、全居室洋室、二人入居相談、バイク置場、全居室フローリング、ガスレンジ付、2沿線利用可、LDK15畳以上、ネット専用回線、駅まで平坦、ネット使用料不要、キッチンに窓、内装リフォーム済、緑豊かな住宅地、眺望良好、保証金不要、クロゼット2ヶ所、平坦地、南面リビング、2駅利用可、3駅以上利用可、プロパンガス、シャワールーム、洗面所にドア、南面バルコニー、礼金1ヶ月、保証会社利用可、初期費用カード決済可、通風良好 | ||
部屋の情報
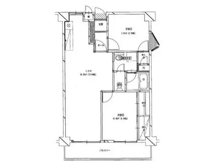
| 間取り | 2LDK | 専有面積 | 59.11m2 |
|---|---|---|---|
| 所在階 / 向き | 6階 / 南 | バルコニー面積 | - |
| 水道 / ガス | - | ||
| 設備 | バス・トイレ別、2階以上、テレビドアホン、インターネット対応、システムキッチン、エレベーター、温水洗浄便座、南向き、バルコニー、フローリング、洗髪洗面化粧台、2口コンロ、コンロ:ガス、インターネット使用料無料、洗濯機:室内 | ||
| 当社物件ID | 127247465 | ||
建物の情報
| 建物名 | レシオ苅原 | ||
|---|---|---|---|
| 所在地 | 福岡県久留米市国分町 | ||
| 交通 | JR久大本線 南久留米駅 徒歩15分 JR久大本線 久留米高校前駅 徒歩15分 西鉄天神大牟田線 花畑駅 徒歩21分 | ||
| 階数 | 6階建 | 総戸数 | - |
| 築年月 | 1989年03月 / 築38年 | エレベーター | あり |
| 駐車場 | 空有 3000円/駐2台可 | バイク置き場 | あり |
| 駐輪場 | あり | 管理人/管理会社 | - |
| 周辺環境 | その他 ジョイフル 苅原店(飲食店)まで24m その他 ファミリーマート久留米八軒屋店(コンビニ)まで582m その他 GEO久留米諏訪野店(レンタルビデオ)まで784m その他 しあわせるーむ保育所(幼稚園・保育園)まで728m その他 DCMダイキ上津店(その他)まで828m その他 福岡銀行 国分支店(銀行)まで882m | ||
| 建物種別 | マンション | 建物構造 | RC(鉄筋コンクリート) |
この部屋の取扱い不動産会社
| 会社名 | イースマイルJR久留米店(株)スリーエイチ(SUUMO経由) | ||
|---|---|---|---|
| 所在地 | 福岡県久留米市中央町 1-1 久留米ヒルズモール105-2 | 交通 | - |
| 営業時間 | 9:30~18:30 | 定休日 | なし |
| 免許番号 | 福岡県知事18562 | 取引態様 | 仲介 |
| 不動産会社管理番号 | 100493682437 | 当社管理番号 | 89 |
| 所属団体 | (公社)福岡県宅地建物取引業協会会員 | ||
| 公正取引協議会 | (一社)九州不動産公正取引協議会加盟 | ||
| 取扱い物件情報 | 物件詳細へ | ||
※各種情報と現状に差異がある場合は、現状優先となります。問い合わせをすることで、より詳しい条件、情報を確認する事ができます。
提供:イースマイルJR久留米店(株)スリーエイチ(SUUMO経由)
この物件が気になったら掲載期限まであと11日
レシオ苅原に条件(家賃・エリア)が近い物件一覧
| 写真 | 家賃 管理費等 | 敷金 礼金 | 間取り 専有面積 | 築年数 | 最寄り駅 所在地 | キープ | 詳細 |
|---|---|---|---|---|---|---|---|
アパート 鹿児島本線 羽犬塚駅 徒歩26分 築19年(2LDK/2階) | |||||||
![]() | 4万円 2,500円 | なし 4万円 | 2LDK 58.86m2 | 築19年 | 鹿児島本線 羽犬塚駅 徒歩26分 鹿児島本線 西牟田駅 徒歩31分 福岡県筑後市大字熊野 | 詳細を見る | |
アパート 鹿児島本線 羽犬塚駅 徒歩13分 築8年(1LDK/1階) | |||||||
![]() | 4.9万円 1,800円 | なし 4.9万円 | 1LDK 52.38m2 | 築8年 | 鹿児島本線 羽犬塚駅 徒歩13分 鹿児島本線 筑後船小屋駅 徒歩38分 福岡県筑後市大字野町 | 詳細を見る | |
アパート 広川426ガーデンシティ(1LDK/1階) | |||||||
![]() | 4.4万円 2,000円 | なし なし | 1LDK 35.42m2 | 築8年 | JR鹿児島本線 西牟田駅 徒歩25分 JR鹿児島本線 荒木駅 徒歩49分 JR鹿児島本線 羽犬塚駅 徒歩64分 福岡県八女郡広川町大字一條 | 詳細を見る | |
アパート サンマリノ吉田C棟(1K/2階) | |||||||
![]() | 3.4万円 2,000円 | なし 5万円 | 1K 33m2 | 築16年 | JR鹿児島本線 羽犬塚駅 徒歩80分 福岡県八女市吉田 | 詳細を見る | |
アパート フルーブ・レゾネートE(ワンルーム/1階) | |||||||
![]() | 3.8万円 2,300円 | なし 3.8万円 | ワンルーム 32.9m2 | 築19年 | 福岡県大川市大字北古賀 | 詳細を見る | |
アパート アルハンブラ一番館(2LDK/2階) | |||||||
![]() | 4.85万円 1,360円 | なし なし | 2LDK 57.22m2 | 築21年 | 西鉄天神大牟田線 蒲池駅(福岡) 徒歩71分 西鉄天神大牟田線 矢加部駅 徒歩72分 福岡県大川市大字榎津 | 詳細を見る | |
アパート ロードプレイス(1K/2階) | |||||||
![]() | 3.5万円 なし | なし なし | 1K 23.18m2 | 築34年 | 福岡県大川市大字道海島 | 詳細を見る | |
アパート エル・スールC棟(2LDK/1階) | |||||||
![]() | 6.3万円 3,500円 | なし なし | 2LDK 60.13m2 | 築16年 | 鹿児島本線 羽犬塚駅 徒歩25分 鹿児島本線 西牟田駅 徒歩42分 福岡県筑後市大字前津 | 詳細を見る | |









