賃貸マンション
BSマンションの賃貸物件情報(1LDK/4階)
| 家賃 | 管理費等 | 敷金 | 礼金 | 間取り | 専有面積 |
|---|---|---|---|---|---|
| 5.7万円 | 3,000円 | 5.7万円 | なし | 1LDK | 41.7m2 |
入居決定でお祝い金最大100,000円
Point
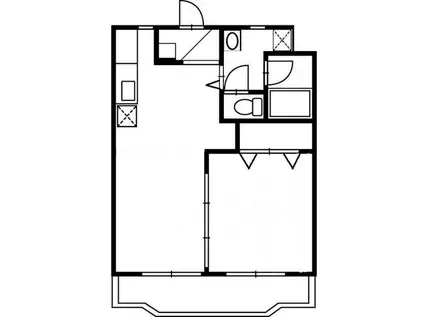
収納はシューズボックス・クロゼットなど豊富なので、広々と空間を利用することも可能です。忙しい朝でも鏡を見ながらサッと身支度を整えることができる独立洗面台があります。
提供:いい部屋ネット大東建託リーシング(株)掛川店(SUUMO経由)

詳細情報 BSマンション
物件紹介
BSマンションはJR東海道本線島田駅から徒歩10分にあり、駅近で通勤通学に便利なマンションです。
このお部屋は2階以上に位置しているので、通行人や周囲の住人からの視線が気になりにくく、防犯面でも安心。インターホンにはTVモニタもついているため、相手の顔を確認してから来客対応することができます。
人気の南向きのお部屋。また、フローリングなのでお掃除もラクラク。バス・トイレ別の仕様で、のんびりお風呂タイムも楽しめます。
通信設備面ではCATVに対応しているので、おうち時間も充実するでしょう(別途工事、契約料が必要な場合あり)。
このお部屋は2階以上に位置しているので、通行人や周囲の住人からの視線が気になりにくく、防犯面でも安心。インターホンにはTVモニタもついているため、相手の顔を確認してから来客対応することができます。
人気の南向きのお部屋。また、フローリングなのでお掃除もラクラク。バス・トイレ別の仕様で、のんびりお風呂タイムも楽しめます。
通信設備面ではCATVに対応しているので、おうち時間も充実するでしょう(別途工事、契約料が必要な場合あり)。
お金・契約の情報
※「-」と表示されているものは、実際は料金が発生するものもございます。詳細はお問い合わせください。
| 家賃 | 5.7万円 | 管理費・共益費 | 3,000円 |
|---|---|---|---|
| 敷金 | 5.7万円 | 礼金 | なし |
| 入居決定でお祝い金最大100,000円 | |||
| 保証金 | - | 償却・敷引 | - |
| 住宅保険料 | - | 更新料 | - |
| 保証会社利用 | 必須 | 保証会社名 | - |
| 保証会社費用 | - | 保証会社備考 | 保証会社利用必 初回:月額賃料総額の50% 月々:月額賃料総額の1.5% |
| 契約形態 | - | 契約期間 | - |
| 入居・引渡期間 | - | 現況 | - |
| 契約備考 | 合計4.65万円(内訳:入居時保証料3万円くらしーど241.65万円) 月次保証料 900円(月額) 1LDK 事務所利用不可 損保【1.2万円1年】 バストイレ別、バルコニー、エアコン、クロゼット、フローリング、TVインターホン、室内洗濯置、シューズボックス、追焚機能浴室、温水洗浄便座、脱衣所、洗面所独立、洗面化粧台、駐輪場、CATV、礼金不要、最上階、照明付、駐車場1台無料、全居室洋室、敷金1ヶ月、全居室フローリング、クッションフロア、上階無し、LDK12畳以上、全居室6畳以上、都市ガス、IT重説対応物件、初期費用カード決済可 入居日:'26年3月下旬 | ||
部屋の情報
| 間取り | 1LDK | 専有面積 | 41.7m2 |
|---|---|---|---|
| 所在階 / 向き | 4階 / 南 | バルコニー面積 | - |
| 水道 / ガス | - | ||
| 設備 | バス・トイレ別、2階以上、テレビドアホン、追い焚き、エアコン、温水洗浄便座、南向き、バルコニー、フローリング、洗髪洗面化粧台、CATV、洗濯機:室内 | ||
| 当社物件ID | 657869 | ||
建物の情報
| 建物名 | BSマンション | ||
|---|---|---|---|
| 所在地 | 静岡県島田市南 | ||
| 交通 | JR東海道本線 島田駅(静岡) 徒歩11分 | ||
| 階数 | 4階建 | 総戸数 | 12戸 |
| 築年月 | 1996年09月 / 築30年 | エレベーター | - |
| 駐車場 | 空有 付無料 | バイク置き場 | - |
| 駐輪場 | あり | 管理人/管理会社 | - |
| 周辺環境 | その他 セブンイレブン島田駅南店(コンビニ)まで703m その他 アピタ島田店(ショッピングセンター)まで574m その他 ジャンボエンチョー島田店(ホームセンター)まで990m その他 ウエルシア島田御仮屋店(ドラッグストア)まで1602m その他 島田市民病院(病院)まで2108m その他 島田市役所(役所)まで1145m | ||
| 建物種別 | マンション | 建物構造 | RC(鉄筋コンクリート) |
この部屋の取扱い不動産会社
| 会社名 | いい部屋ネット大東建託リーシング(株)藤枝店(SUUMO経由) | ||
|---|---|---|---|
| 所在地 | 静岡県藤枝市小石川町3-18-38 | 交通 | - |
| 営業時間 | 10:00~12:30/13:30~18:00 | 定休日 | 火曜日・水曜日 |
| 免許番号 | 国土交通大臣9120 | 取引態様 | 仲介 |
| 不動産会社管理番号 | 100491305604 | 当社管理番号 | 89 |
| 所属団体 | (公財)日本賃貸住宅管理協会会員 | ||
| 公正取引協議会 | (公社)首都圏不動産公正取引協議会加盟 | ||
| 取扱い物件情報 | 物件詳細へ | ||
※各種情報と現状に差異がある場合は、現状優先となります。問い合わせをすることで、より詳しい条件、情報を確認する事ができます。
提供:いい部屋ネット大東建託リーシング(株)藤枝店(SUUMO経由)
この物件が気になったら掲載期限まであと11日
BSマンションに条件(家賃・エリア)が近い物件一覧
| 写真 | 家賃 管理費等 | 敷金 礼金 | 間取り 専有面積 | 築年数 | 最寄り駅 所在地 | キープ | 詳細 |
|---|---|---|---|---|---|---|---|
マンション フォルクローレペルシュ(1DK/3階) | |||||||
![]() | 4.7万円 3,000円 | 4.7万円 なし | 1DK 25.92m2 | 築34年 | 静岡県静岡市駿河区高松1丁目 | 詳細を見る | |
マンション イルマーレ(1DK/3階) | |||||||
![]() | 4.8万円 2,000円 | 4.8万円 なし | 1DK 30.71m2 | 築22年 | 静岡県静岡市駿河区下川原南 | 詳細を見る | |
マンション メゾンサンパティーク(1LDK/2階) | |||||||
![]() | 5.7万円 2,000円 | 5.7万円 なし | 1LDK 43.6m2 | 築16年 | JR東海道本線 清水駅(静岡) 徒歩25分 静岡鉄道静岡清水線 新清水駅 徒歩33分 静岡県静岡市清水区袖師町 | 詳細を見る | |
マンション ヴィオラ七間町(ワンルーム/3階) | |||||||
![]() | 7.9万円 なし | 7.9万円 7.9万円 | ワンルーム 32.04m2 | 築11年 | 東海道本線 静岡駅 徒歩14分 静岡鉄道静岡清水線 新静岡駅 徒歩14分 静岡県静岡市葵区七間町 | 詳細を見る | |
マンション リヴィエールI(1DK/4階) | |||||||
![]() | 4.4万円 2,000円 | 4.4万円 なし | 1DK 25.5m2 | 築28年 | 東海道本線 安倍川駅 徒歩31分 静岡県静岡市駿河区向敷地 | 詳細を見る | |
マンション トラストII(2LDK/3階) | |||||||
![]() | 5.5万円 3,000円 | 5.5万円 なし | 2LDK 50.85m2 | 築35年 | 静岡県静岡市清水区八坂北 | 詳細を見る | |
マンション グランクールI(2LDK/3階) | |||||||
![]() | 6.5万円 3,000円 | 6.5万円 なし | 2LDK 58.49m2 | 築23年 | 東海道本線 静岡駅 徒歩64分 静岡県静岡市葵区上伝馬 | 詳細を見る | |
マンション マノワール(1DK/2階) | |||||||
![]() | 3.9万円 2,000円 | 3.9万円 なし | 1DK 25.92m2 | 築31年 | 静岡鉄道静岡清水線 狐ケ崎駅 徒歩35分 静岡県静岡市清水区押切 | 詳細を見る | |

/105x80-f1-q70-wp1)






