賃貸マンション
ヒルヴィスタ三滝の賃貸物件情報(2LDK/4階)
| 家賃 | 管理費等 | 敷金 | 礼金 | 間取り | 専有面積 |
|---|---|---|---|---|---|
| 5.6万円 | 3,000円 | 5.6万円 | 5.6万円 | 2LDK | 46.53m2 |
入居決定でお祝い金最大100,000円
Point
お部屋の見学、来店のご予約はお気軽にお申し付けください。
提供:アパマンショップ紙屋町店

詳細情報 ヒルヴィスタ三滝
物件紹介
ヒルヴィスタ三滝はJR可部線三滝駅から徒歩12分にあるマンションです。
このお部屋は2階以上に位置しているので、通行人や周囲の住人からの視線が気になりにくく、防犯面でも安心。建物のエントランスはオートロックがついており、インターホンにはTVモニタもついているため、相手の顔を確認してから来客対応することができます。
おしゃれなデザイナーズ物件!人気の南向き・フローリングのお部屋。角部屋でもあるため、周囲の居住者の生活音も気になりにくい場所です。バス・トイレ別の仕様で、のんびりお風呂タイムも楽しめます。
通信設備面では、インターネットが無料で使えるので、月々の出費を抑えられるのも魅力です(別途工事等が必要な場合あり)。
ペット飼育の相談ができますので、あなたの大切な家族の一員も快適に暮らせるか、ぜひ確認してみてください。
このお部屋は2階以上に位置しているので、通行人や周囲の住人からの視線が気になりにくく、防犯面でも安心。建物のエントランスはオートロックがついており、インターホンにはTVモニタもついているため、相手の顔を確認してから来客対応することができます。
おしゃれなデザイナーズ物件!人気の南向き・フローリングのお部屋。角部屋でもあるため、周囲の居住者の生活音も気になりにくい場所です。バス・トイレ別の仕様で、のんびりお風呂タイムも楽しめます。
通信設備面では、インターネットが無料で使えるので、月々の出費を抑えられるのも魅力です(別途工事等が必要な場合あり)。
ペット飼育の相談ができますので、あなたの大切な家族の一員も快適に暮らせるか、ぜひ確認してみてください。
お金・契約の情報
※「-」と表示されているものは、実際は料金が発生するものもございます。詳細はお問い合わせください。
| 家賃 | 5.6万円 | 管理費・共益費 | 3,000円 |
|---|---|---|---|
| 敷金 | 5.6万円 | 礼金 | 5.6万円 |
| 入居決定でお祝い金最大100,000円 | |||
| 保証金 | - | 償却・敷引 | - |
| 住宅保険料 | - | 更新料 | - |
| 保証会社利用 | 必須 | 保証会社名 | 全保連 |
| 保証会社費用 | - | 保証会社備考 | 毎年プラン(50%・毎年更新料要)or初回のみプラン(80%) |
| 契約形態 | - | 契約期間 | 2年 |
| 入居・引渡期間 | 相談 | 現況 | - |
| 入居可能条件 | 2人入居可、ペット可 | ||
| 契約備考 | リノベーションペット可(賃料2,000円・敷金1ヶ月 鍵交換費用(税込) 5500円 | ||
部屋の情報
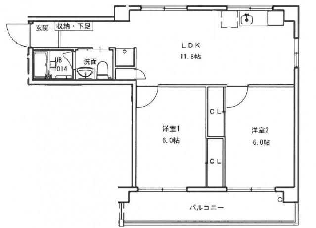
| 間取り | 2LDK | 専有面積 | 46.53m2 |
|---|---|---|---|
| 間取り詳細 | LDK(11.8帖)、洋室(6帖)、洋室(6帖) | ||
| 所在階 / 向き | 4階 / 南 | バルコニー面積 | - |
| 水道 / ガス | ガス【プロパン】 | ||
| 設備 | バス・トイレ別、オートロック、テレビドアホン、追い焚き、インターネット対応、温水洗浄便座、角部屋、バルコニー、インターネット使用料無料、シャワー、給湯、洗濯機:室内 | ||
| 当社物件ID | 7852205 | ||
建物の情報
| 建物名 | ヒルヴィスタ三滝 | ||
|---|---|---|---|
| 所在地 | 広島県広島市西区三滝本町1丁目 | ||
| 交通 | 可部線 三滝駅 徒歩13分 | ||
| 階数 | 5階建 | 総戸数 | 23戸 |
| 築年月 | 1974年09月 / 築52年 | エレベーター | - |
| 駐車場 | 空有 6,600円/月 | バイク置き場 | - |
| 駐輪場 | あり | 管理人/管理会社 | - |
| 周辺環境 | その他 ピュアークック己斐上店 徒歩26分(2059m) その他 広島三篠郵便局 徒歩22分(1689m) その他 広島己斐上四郵便局 徒歩29分(2304m) その他 ローソン 徒歩30分(2383m) その他 フジ三篠店 徒歩25分(1959m) その他 広島信用金庫中広支店 徒歩37分(2896m) その他 ファミリーマート楠木町三丁目店 徒歩28分(2190m) その他 (株)エブリイ/楠木店 徒歩30分(2344m) | ||
| 建物種別 | マンション | 建物構造 | RC(鉄筋コンクリート) |
この部屋の取扱い不動産会社
| 会社名 | アパマンショップ八丁堀店 | ||
|---|---|---|---|
| 所在地 | 広島県広島市中区鉄砲町 8-15キシモトビル1F | 交通 | 広島電鉄本線八丁堀から徒歩1分 |
| 営業時間 | 10:00〜18:00 | 定休日 | - |
| 免許番号 | 国土交通大臣(4)7268 | 取引態様 | 仲介 |
| 不動産会社管理番号 | 100894464 | 当社管理番号 | 4 |
| 所属団体 | (公社)広島県宅地建物取引業協会 | ||
| 公正取引協議会 | 中国地区不動産公正取引協議会加盟 | ||
| 取扱い物件情報 | 物件詳細へ | ||
※各種情報と現状に差異がある場合は、現状優先となります。問い合わせをすることで、より詳しい条件、情報を確認する事ができます。
提供:アパマンショップ八丁堀店
この物件が気になったら掲載期限まであと8日
ヒルヴィスタ三滝に条件(家賃・エリア)が近い物件一覧
| 写真 | 家賃 管理費等 | 敷金 礼金 | 間取り 専有面積 | 築年数 | 最寄り駅 所在地 | キープ | 詳細 |
|---|---|---|---|---|---|---|---|
マンション エトワール西村(1K/4階) | |||||||
![]() | 4.4万円 なし | 4.4万円 なし | 1K 26.46m2 | 築31年 | アストラムライン 城北駅 徒歩7分 可部線 横川駅(広島) 徒歩7分 広島県広島市西区楠木町1丁目 | 詳細を見る | |
マンション NEWS壱番館(1K/4階) | |||||||
![]() | 4.1万円 なし | 12.3万円 なし | 1K 20.46m2 | 築34年 | 山陽本線 横川駅(広島) 徒歩4分 広島県広島市西区三篠町1丁目 | 詳細を見る | |
マンション FKビル(1K/8階) | |||||||
![]() | 4.2万円 なし | 4.2万円 4.2万円 | 1K 21.3m2 | 築36年 | 可部線 横川駅(広島) 徒歩5分 広島県広島市西区楠木町1丁目 | 詳細を見る | |
マンション エミネンスオクダ(1K/9階) | |||||||
![]() | 4.5万円 3,000円 | 4.5万円 なし | 1K 23.37m2 | 築29年 | 山陽本線 横川駅(広島) 徒歩2分 広島県広島市西区横川町3丁目 | 詳細を見る | |
一戸建て 山陽本線 西広島駅 徒歩24分 築49年(3DK) | |||||||
![]() | 4.5万円 なし | 13.5万円 なし | 3DK 70.38m2 | 築49年 | 山陽本線 西広島駅 徒歩24分 可部線 三滝駅 徒歩37分 広島電鉄宮島線 広電西広島駅(己斐) 徒歩43分 広島県広島市西区己斐大迫3丁目 | 詳細を見る | |





