賃貸マンション
リブリアドニスの賃貸物件情報(1K/3階)
| 家賃 | 管理費等 | 敷金 | 礼金 | 間取り | 専有面積 |
|---|---|---|---|---|---|
| 8.5万円 | 4,000円 | なし | 8.5万円 | 1K | 26.08m2 |
入居決定でお祝い金最大100,000円
- 保証金
- -
- 償却・敷引
- -
- 築年数
- 築14年
- 所在階
- 3階
- 向き
- 南
Point
お電話でのお問い合わせは8時30分から20時まで可能です!お気軽にフリーダイヤルまでご連絡ください♪◇webでのお申し込みも対応可能です◇
提供:(株)ネクストライフ横浜店(SUUMO経由)

詳細情報 リブリアドニス
物件紹介
リブリアドニスは東急東横線大倉山駅から徒歩12分にあるマンションです。
このお部屋は2階以上に位置しているので、通行人や周囲の住人からの視線が気になりにくく、防犯面でも安心。建物のエントランスはオートロックがついており、インターホンにはTVモニタもついているため、相手の顔を確認してから来客対応することができます。
人気の南向きのお部屋。また、フローリングなのでお掃除もラクラク。キッチンはシステムキッチン仕様になっていますので、お料理好きの方にもぴったり。バス・トイレは別なので、のんびりお風呂タイムも楽しめるでしょう。また、雨の日でも浴室乾燥機を使えば、お洗濯も問題ありません。
通信設備面では、インターネット接続が可能です(別途工事、契約料が必要な場合あり)。
このお部屋は2階以上に位置しているので、通行人や周囲の住人からの視線が気になりにくく、防犯面でも安心。建物のエントランスはオートロックがついており、インターホンにはTVモニタもついているため、相手の顔を確認してから来客対応することができます。
人気の南向きのお部屋。また、フローリングなのでお掃除もラクラク。キッチンはシステムキッチン仕様になっていますので、お料理好きの方にもぴったり。バス・トイレは別なので、のんびりお風呂タイムも楽しめるでしょう。また、雨の日でも浴室乾燥機を使えば、お洗濯も問題ありません。
通信設備面では、インターネット接続が可能です(別途工事、契約料が必要な場合あり)。
お金・契約の情報
※「-」と表示されているものは、実際は料金が発生するものもございます。詳細はお問い合わせください。
| 家賃 | 8.5万円 | 管理費・共益費 | 4,000円 |
|---|---|---|---|
| 敷金 | なし | 礼金 | 8.5万円 |
| 入居決定でお祝い金最大100,000円 | |||
| 保証金 | - | 償却・敷引 | - |
| 住宅保険料 | - | 更新料 | - |
| 保証会社利用 | 必須 | 保証会社名 | - |
| 保証会社費用 | - | 保証会社備考 | 保証会社利用必 初回保証料:月額総賃料の100%、月額保証料:月額総賃料の1.1% |
| 契約形態 | 定期借家 | 契約期間 | 2年 |
| 入居・引渡期間 | - | 現況 | - |
| 契約備考 | 口座振替手数料:330円/月鍵交換費:24200円リブリクラブ:7700円/2年室内消毒代:16500円クリーニング費:契約時41800円再契約料:新賃料の1ヶ月分短期解約違約金:1年未満の解約で総賃料1ヶ月分◆お持ちのクレジットカードで初期費用の決済が可能です◆初期費用のお見積り等、お気軽にお問い合わせくださいませ◆◆ 1K 単身者限定 定期借家2年 損保【1.9万円2年】 バストイレ別、バルコニー、エアコン、ガスコンロ対応、クロゼット、フローリング、TVインターホン、浴室乾燥機、オートロック、室内洗濯置、シューズボックス、システムキッチン、南向き、温水洗浄便座、脱衣所、洗面所独立、洗面化粧台、2口コンロ、駐輪場、光ファイバー、最上階、敷金不要、照明付、2沿線利用可、ダブルロックキー、2駅利用可、3駅以上利用可、上階無し、セキュリティ会社加入済、プロパンガス、初期費用カード決済可 入居日:'26年2月中旬 | ||
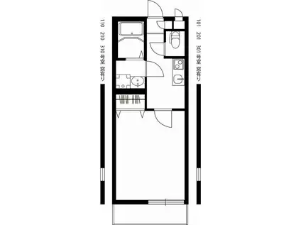
部屋の情報
| 間取り | 1K | 専有面積 | 26.08m2 |
|---|---|---|---|
| 所在階 / 向き | 3階 / 南 | バルコニー面積 | - |
| 水道 / ガス | - | ||
| 設備 | バス・トイレ別、2階以上、オートロック、テレビドアホン、浴室乾燥機、インターネット対応、システムキッチン、エアコン、温水洗浄便座、南向き、バルコニー、フローリング、洗髪洗面化粧台、2口コンロ、コンロ:ガス、洗濯機:室内 | ||
| 当社物件ID | 160013876 | ||
建物の情報
| 建物名 | リブリアドニス | ||
|---|---|---|---|
| 所在地 | 神奈川県横浜市港北区樽町 | ||
| 交通 | 東急東横線 大倉山駅(神奈川) 徒歩12分 東急東横線 綱島駅 徒歩14分 JR横浜線 菊名駅 徒歩28分 | ||
| 階数 | 3階建 | 総戸数 | - |
| 築年月 | 2012年05月 / 築14年 | エレベーター | - |
| 駐車場 | なし | バイク置き場 | - |
| 駐輪場 | あり | 管理人/管理会社 | - |
| 周辺環境 | その他 ローソンスリーエフ港北樽町2丁目店(コンビニ)まで379m その他 まいばすけっと港北樽町(スーパー)まで499m その他 すき家綱島樽町店(飲食店)まで625m その他 セブンイレブン樽町2丁目店(コンビニ)まで499m その他 デニーズ横浜樽町店(飲食店)まで609m その他 サイゼリヤ綱島樽町店(飲食店)まで644m | ||
| 建物種別 | マンション | 建物構造 | 鉄骨造 |
この部屋の取扱い不動産会社
| 会社名 | (株)ネクストライフ立川店(SUUMO経由) | ||
|---|---|---|---|
| 所在地 | 東京都立川市柴崎町3-8-1 NACビル5階 | 交通 | - |
| 営業時間 | 10:00~18:30(電話8:30~21:00) | 定休日 | 年末年始を除き無休 |
| 免許番号 | 国土交通大臣8175 | 取引態様 | 仲介 |
| 不動産会社管理番号 | 100476910915 | 当社管理番号 | 89 |
| 所属団体 | (公社)東京都宅地建物取引業協会会員 | ||
| 公正取引協議会 | (公社)首都圏不動産公正取引協議会加盟 | ||
| 取扱い物件情報 | 物件詳細へ | ||
※各種情報と現状に差異がある場合は、現状優先となります。問い合わせをすることで、より詳しい条件、情報を確認する事ができます。
提供:(株)ネクストライフ立川店(SUUMO経由)
この物件が気になったら掲載期限まであと10日
リブリアドニスに条件(家賃・エリア)が近い物件一覧
| 写真 | 家賃 管理費等 | 敷金 礼金 | 間取り 専有面積 | 築年数 | 最寄り駅 所在地 | キープ | 詳細 |
|---|---|---|---|---|---|---|---|
マンション レオパレスリヴェール(1K/1階) | |||||||
![]() | 8.8万円 5,500円 | なし 8.8万円 | 1K 20.81m2 | 築17年 | 京浜急行電鉄大師線 小島新田駅 徒歩4分 神奈川県川崎市川崎区江川2丁目 | 詳細を見る | |
マンション プレミール野比(1K/2階) | |||||||
![]() | 5.2万円 2,000円 | 5.2万円 なし | 1K 25m2 | 築24年 | 京急久里浜線 YRP野比駅 徒歩11分 京急久里浜線 京急久里浜駅 徒歩29分 神奈川県横須賀市野比 | 詳細を見る | |
アパート サンライズ レジデンス(1K/1階) | |||||||
![]() | 6.4万円 3,500円 | なし 7.4万円 | 1K 27.88m2 | 築10年 | JR横須賀線 衣笠駅 徒歩5分 神奈川県横須賀市衣笠栄町 | 詳細を見る | |
マンション ジャスティス(1K/1階) | |||||||
![]() | 5.8万円 4,500円 | 5.8万円 2.9万円 | 1K 26.68m2 | 築17年 | 小田急電鉄小田原線 柿生駅 徒歩11分 神奈川県川崎市麻生区上麻生7丁目 | 詳細を見る | |
マンション 第2アイランドハイツ(1K/4階) | |||||||
![]() | 5.5万円 なし | 5.5万円 5.5万円 | 1K 29.49m2 | 築47年 | 小田急電鉄江ノ島線 南林間駅 徒歩5分 神奈川県大和市林間1丁目 | 詳細を見る | |
マンション パークハイムK(ワンルーム/3階) | |||||||
![]() | 5.1万円 なし | 5.1万円 5.1万円 | ワンルーム 16m2 | 築34年 | 南武線 鹿島田駅 徒歩12分 横須賀線 新川崎駅 徒歩19分 神奈川県川崎市幸区古市場2丁目 | 詳細を見る | |
アパート アザーレ・パッシオ中央林間(1K/1階) | |||||||
![]() | 7.4万円 4,000円 | 7.4万円 7.4万円 | 1K 19.01m2 | 新築 | 東急田園都市線 中央林間駅 徒歩5分 小田急江ノ島線 南林間駅 徒歩15分 東急田園都市線 つきみ野駅 徒歩24分 神奈川県大和市中央林間 | 詳細を見る | |
マンション 横浜ハートヒルズ(ワンルーム/3階) | |||||||
![]() | 7.5万円 5,000円 | なし なし | ワンルーム 25.77m2 | 築13年 | 横浜線 菊名駅 徒歩12分 東急東横線 妙蓮寺駅 徒歩13分 神奈川県横浜市港北区菊名3丁目 | 詳細を見る | |








