賃貸マンション
GENOVIA北池袋SKYGARDENの賃貸物件情報(2K/3階)
| 家賃 | 管理費等 | 敷金 | 礼金 | 間取り | 専有面積 |
|---|---|---|---|---|---|
| 16万円 | 1万円 | なし | なし | 2K | 31.51m2 |
入居決定でお祝い金最大100,000円
- 保証金
- -
- 償却・敷引
- -
- 築年数
- 築1年
- 所在階
- 3階
- 向き
- 北西
Point
初期費用の一部クレジットカード決済可!IT重説もできます、ご相談ください。オンライン内見相談可能!お電話ください。
提供:(株)タウンハウジング東京 駒込店(SUUMO経由)

詳細情報 GENOVIA北池袋SKYGARDEN
物件紹介
GENOVIA北池袋SKYGARDENはJR埼京線板橋駅から徒歩5分にあり、駅近で通勤通学に便利なマンションです。
このお部屋は2階以上に位置しているので、通行人や周囲の住人からの視線が気になりにくく、防犯面でも安心。建物のエントランスはオートロックがついており、インターホンにはTVモニタもついているため、相手の顔を確認してから来客対応することができます。
おしゃれなデザイナーズ物件!フローリングのお部屋なのでお掃除もラクラク。キッチンはシステムキッチン仕様になっていますので、お料理好きの方にもぴったり。バス・トイレは別なので、のんびりお風呂タイムも楽しめるでしょう。また、雨の日でも浴室乾燥機を使えば、お洗濯も問題ありません。
通信設備面では、インターネットが無料で使えるので、月々の出費を抑えられるのも魅力です。また、BSアンテナ・CSアンテナもありますので、おうち時間も充実するでしょう(別途工事、BS・CSの契約料等が必要な場合あり)。
建物にはエレベーターがついているので、重い荷物があっても安心。共用部には宅配ボックスが設定されているので、不在の時にも荷物を受け取ることができます。また、ペット飼育の相談ができますので、あなたの大切な家族の一員も快適に暮らせるか、ぜひ確認してみてください。
このお部屋は2階以上に位置しているので、通行人や周囲の住人からの視線が気になりにくく、防犯面でも安心。建物のエントランスはオートロックがついており、インターホンにはTVモニタもついているため、相手の顔を確認してから来客対応することができます。
おしゃれなデザイナーズ物件!フローリングのお部屋なのでお掃除もラクラク。キッチンはシステムキッチン仕様になっていますので、お料理好きの方にもぴったり。バス・トイレは別なので、のんびりお風呂タイムも楽しめるでしょう。また、雨の日でも浴室乾燥機を使えば、お洗濯も問題ありません。
通信設備面では、インターネットが無料で使えるので、月々の出費を抑えられるのも魅力です。また、BSアンテナ・CSアンテナもありますので、おうち時間も充実するでしょう(別途工事、BS・CSの契約料等が必要な場合あり)。
建物にはエレベーターがついているので、重い荷物があっても安心。共用部には宅配ボックスが設定されているので、不在の時にも荷物を受け取ることができます。また、ペット飼育の相談ができますので、あなたの大切な家族の一員も快適に暮らせるか、ぜひ確認してみてください。
お金・契約の情報
※「-」と表示されているものは、実際は料金が発生するものもございます。詳細はお問い合わせください。
| 家賃 | 16万円 | 管理費・共益費 | 1万円 |
|---|---|---|---|
| 敷金 | なし | 礼金 | なし |
| 入居決定でお祝い金最大100,000円 | |||
| 保証金 | - | 償却・敷引 | - |
| 住宅保険料 | - | 更新料 | - |
| 保証会社利用 | 必須 | 保証会社名 | - |
| 保証会社費用 | - | 保証会社備考 | 保証会社利用必 一番手「RBI」初回保証料:40%(ペット飼育時60%) 外国籍:100%+外国籍サポート年間10,800円 (※審査により変更有・要確認) 外国籍家賃:クレカQR決済可(既存の保証料+2%/ |
| 契約形態 | - | 契約期間 | - |
| 入居・引渡期間 | 即時 | 現況 | - |
| 入居可能条件 | ペット相談 | ||
| 契約備考 | 豊島区・板橋区・北区でのお部屋探しはタウンハウジング板橋店にお任せください。 合計3.85万円(内訳:室内清掃費用:38500円) 更新料新賃料(ヶ月):1.00ヶ月 2K 学生希望/二人入居可/ペット相談/ルームシェア相談 普通借家2年 損保【2万円2年】 バストイレ別、エアコン、ガスコンロ対応、クロゼット、フローリング、TVインターホン、浴室乾燥機、オートロック、室内洗濯置、シューズボックス、システムキッチン、温水洗浄便座、エレベーター、洗面所独立、2口コンロ、宅配ボックス、即入居可、礼金不要、敷金不要、防犯カメラ、ペット相談、保証人不要、二人入居相談、ネット使用料不要、保証金不要、ルームシェア相談、セキュリティ会社加入済、都市ガス、敷金・礼金不要 | ||
部屋の情報
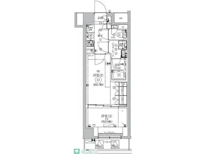
| 間取り | 2K | 専有面積 | 31.51m2 |
|---|---|---|---|
| 所在階 / 向き | 3階 / 北西 | バルコニー面積 | 3m2 |
| 水道 / ガス | - | ||
| 設備 | バス・トイレ別、2階以上、オートロック、テレビドアホン、宅配ボックス、浴室乾燥機、インターネット対応、システムキッチン、エアコン、エレベーター、温水洗浄便座、バルコニー、フローリング、洗髪洗面化粧台、2口コンロ、コンロ:ガス、インターネット使用料無料、洗濯機:室内 | ||
| 当社物件ID | 159906745 | ||
建物の情報
| 建物名 | GENOVIA北池袋SKYGARDEN | ||
|---|---|---|---|
| 所在地 | 東京都北区滝野川 | ||
| 交通 | JR埼京線 板橋駅 徒歩5分 都営三田線 西巣鴨駅 徒歩9分 都営三田線 新板橋駅 徒歩10分 | ||
| 階数 | 6階建 | 総戸数 | 40戸 |
| 築年月 | 2025年10月 / 築1年 | エレベーター | あり |
| 駐車場 | なし | バイク置き場 | - |
| 駐輪場 | - | 管理人/管理会社 | - |
| 周辺環境 | その他 コモディイイダ滝野川店(スーパー)まで120m その他 まいばすけっと板橋駅南店(スーパー)まで300m その他 ローソン滝野川7丁目店(コンビニ)まで340m その他 セブンイレブン滝の川6丁目店(コンビニ)まで330m その他 マツモトキヨシ滝野川市場通り店(ドラッグストア)まで100m その他 どらっぐぱぱす滝野川店(ドラッグストア)まで300m | ||
| 建物種別 | マンション | 建物構造 | RC(鉄筋コンクリート) |
この部屋の取扱い不動産会社
| 会社名 | (株)タウンハウジング東京 池袋西口店(SUUMO経由) | ||
|---|---|---|---|
| 所在地 | 東京都豊島区西池袋1-14-3 IL CENTRO TEATRO1階 | 交通 | - |
| 営業時間 | AM10:00~PM7:00 | 定休日 | 水曜日 |
| 免許番号 | 国土交通大臣9926 | 取引態様 | 仲介 |
| 不動産会社管理番号 | 100475077450 | 当社管理番号 | 89 |
| 所属団体 | (公社)東京都宅地建物取引業協会会員 | ||
| 公正取引協議会 | (公社)首都圏不動産公正取引協議会加盟 | ||
| 取扱い物件情報 | 物件詳細へ | ||
※各種情報と現状に差異がある場合は、現状優先となります。問い合わせをすることで、より詳しい条件、情報を確認する事ができます。
提供:(株)タウンハウジング東京 池袋西口店(SUUMO経由)
この物件が気になったら掲載期限まであと10日
GENOVIA北池袋SKYGARDENに条件(家賃・エリア)が近い物件一覧
| 写真 | 家賃 管理費等 | 敷金 礼金 | 間取り 専有面積 | 築年数 | 最寄り駅 所在地 | キープ | 詳細 |
|---|---|---|---|---|---|---|---|
マンション ルフレ プレミアム町屋(2K/6階) | |||||||
![]() | 14万円 1.5万円 | なし 14万円 | 2K 31.16m2 | 築4年 | 東京メトロ千代田線 町屋駅 徒歩3分 都電荒川線 町屋駅前駅 徒歩3分 京成本線 新三河島駅 徒歩14分 東京都荒川区町屋 | 詳細を見る | |
マンション 浮間パークサイドハイツ(1LDK/1階) | |||||||
![]() | 14万円 5,000円 | なし なし | 1LDK 55.94m2 | 築29年 | 埼京線 浮間舟渡駅 徒歩7分 埼京線 北赤羽駅 徒歩16分 東京都北区浮間2丁目 | 詳細を見る | |
マンション プレセダンヒルズ北千住(1K/6階) | |||||||
![]() | 10.2万円 5,000円 | なし 10.2万円 | 1K 21.56m2 | 築11年 | JR常磐線 北千住駅 徒歩5分 京成本線 千住大橋駅 徒歩16分 東武伊勢崎線 牛田駅(東京) 徒歩22分 東京都足立区千住寿町 | 詳細を見る | |
一戸建て 東京地下鉄南北線 本駒込駅 徒歩9分 築24年(2SLDK) | |||||||
![]() | 23万円 なし | 46万円 23万円 | 2SLDK 79.75m2 | 築24年 | 東京地下鉄南北線 本駒込駅 徒歩9分 東京都文京区千駄木5丁目 | 詳細を見る | |
マンション コンフォリア高島平(3LDK/7階) | |||||||
![]() | 21.4万円 1.5万円 | 21.4万円 なし | 3LDK 75.6m2 | 築31年 | 都営三田線 高島平駅 徒歩10分 都営三田線 新高島平駅 徒歩18分 都営三田線 西台駅 徒歩22分 東京都板橋区新河岸 | 詳細を見る | |
マンション VISTA要町(ワンルーム/4階) | |||||||
![]() | 11.8万円 1万円 | なし なし | ワンルーム 22.89m2 | 築1年 | 東京メトロ副都心線 要町駅 徒歩8分 東京メトロ副都心線 千川駅 徒歩8分 西武池袋線 椎名町駅 徒歩12分 東京都豊島区千早 | 詳細を見る | |
マンション スカイテラス南大塚(1LDK/3階) | |||||||
![]() | 22.1万円 1万円 | なし 44.2万円 | 1LDK 54.07m2 | 築1年 | 東京メトロ丸ノ内線 新大塚駅 徒歩3分 JR山手線 大塚駅(東京) 徒歩5分 東京都豊島区南大塚 | 詳細を見る | |
マンション ブールバード白山(2DK/6階) | |||||||
![]() | 25万円 1万円 | 25万円 25万円 | 2DK 54.04m2 | 築2年 | 都営三田線 千石駅 徒歩7分 都営三田線 白山駅(東京) 徒歩8分 東京メトロ南北線 本駒込駅 徒歩11分 東京都文京区白山 | 詳細を見る | |




/105x80-f1-q70-wp1)



