賃貸マンション
近鉄京都線 東寺駅 徒歩7分 5階建 築37年の賃貸物件情報(2LDK/3階)
| 家賃 | 管理費等 | 敷金 | 礼金 | 間取り | 専有面積 |
|---|---|---|---|---|---|
| 7.1万円 | 9,000円 | 7.1万円 | なし | 2LDK | 44.23m2 |
入居決定でお祝い金最大100,000円
Point
ペット可ファミリー物件 世界遺産の東寺が目の前、夜のライトアップも見られます。
提供:株式会社 京都ライフ 伏見桃山店(賃貸スモッカ経由)

詳細情報 近鉄京都線 東寺駅 徒歩7分 5階建 築37年
物件紹介
近鉄京都線東寺駅から徒歩7分にあり、駅近で通勤通学に便利なマンションです。
このお部屋は2階以上に位置しているので通行人や周囲の住人からの視線が気になりにくく、建物のエントランスはオートロックがついているので防犯性が高くなっています。
人気の南向き・フローリングのお部屋。角部屋でもあるため、周囲の居住者の生活音も気になりにくい場所です。バス・トイレ別の仕様で、のんびりお風呂タイムも楽しめます。
通信設備面では、インターネット接続が可能です。また、BSアンテナがありCATVにも対応しているので、おうち時間も充実するでしょう(別途工事、契約料が必要な場合あり)。
建物にはエレベーターがついているので、重い荷物があっても安心。共用部には宅配ボックスが設定されているので、不在の時にも荷物を受け取ることができます。
このお部屋は2階以上に位置しているので通行人や周囲の住人からの視線が気になりにくく、建物のエントランスはオートロックがついているので防犯性が高くなっています。
人気の南向き・フローリングのお部屋。角部屋でもあるため、周囲の居住者の生活音も気になりにくい場所です。バス・トイレ別の仕様で、のんびりお風呂タイムも楽しめます。
通信設備面では、インターネット接続が可能です。また、BSアンテナがありCATVにも対応しているので、おうち時間も充実するでしょう(別途工事、契約料が必要な場合あり)。
建物にはエレベーターがついているので、重い荷物があっても安心。共用部には宅配ボックスが設定されているので、不在の時にも荷物を受け取ることができます。
お金・契約の情報
※「-」と表示されているものは、実際は料金が発生するものもございます。詳細はお問い合わせください。
| 家賃 | 7.1万円 | 管理費・共益費 | 9,000円 |
|---|---|---|---|
| 敷金 | 7.1万円 | 礼金 | なし |
| 入居決定でお祝い金最大100,000円 | |||
| 保証金 | - | 償却・敷引 | - |
| 住宅保険料 | 住宅保険料あり | 更新料 | - |
| 契約形態 | - | 契約期間 | 2年 |
| 入居・引渡期間 | 即時 | 現況 | 空室 |
| 契約備考 | 近鉄東寺駅まで徒歩8分の2LDKマンションです。近鉄、地下鉄のダブルアクセス。礼金ナシです。嬉しい3点セパレートなど充実の設備。オートロックでセキュリティも安心です。コンビニ、スーパーなど近くにあって便利ですよ。光ファイバー対応しています。ペットも相談可能です。 更新料:1ヶ月 その他設備/条件:独立洗面台、即入居可 | ||
部屋の情報
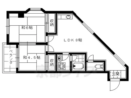
| 間取り | 2LDK | 専有面積 | 44.23m2 |
|---|---|---|---|
| 間取り詳細 | 和室(6帖)、和室(4.5帖)、LDK(8帖) | ||
| 所在階 / 向き | 3階 / 南 | バルコニー面積 | - |
| 水道 / ガス | ガス【都市】 | ||
| 設備 | バス・トイレ別、2階以上、オートロック、宅配ボックス、インターネット対応、エアコン、エレベーター、南向き、角部屋、バルコニー、フローリング、CATV、BSアンテナ、出窓、洗濯機:室内 | ||
| 当社物件ID | 159550032 | ||
建物の情報
| 建物名 | 近鉄京都線 東寺駅 徒歩7分 5階建 築37年 | ||
|---|---|---|---|
| 所在地 | 京都府京都市南区四ツ塚町 | ||
| 交通 | 近鉄京都線 東寺駅 徒歩7分 東海道本線 京都駅 徒歩20分 | ||
| 階数 | 5階建 | 総戸数 | - |
| 築年月 | 1989年03月 / 築37年 | エレベーター | あり |
| 駐車場 | - | バイク置き場 | - |
| 駐輪場 | あり | 管理人/管理会社 | - |
| 建物種別 | マンション | 建物構造 | RC(鉄筋コンクリート) |
この部屋の取扱い不動産会社
| 会社名 | 株式会社 京都ライフ 伏見桃山店(賃貸スモッカ経由) | ||
|---|---|---|---|
| 所在地 | 京都市伏見区観音寺町215-1 CONNECT桃山2F | 交通 | - |
| 営業時間 | - | 定休日 | - |
| 免許番号 | 京都府知事(11)第6353号 | 取引態様 | 仲介 |
| 不動産会社管理番号 | kyotolife_01140-310-25 | 当社管理番号 | 463 |
| 所属団体 | 京都府宅地建物取引業協会\n公益社団法人近畿地区不動産公正取引協議会 | ||
| 公正取引協議会 | 全国宅地建物取引業保証協会 | ||
| 取扱い物件情報 | 物件詳細へ | ||
※各種情報と現状に差異がある場合は、現状優先となります。問い合わせをすることで、より詳しい条件、情報を確認する事ができます。
提供:株式会社 京都ライフ 伏見桃山店(賃貸スモッカ経由)
この物件が気になったら掲載期限まであと5日
近鉄京都線 東寺駅 徒歩7分 5階建 築37年に条件(家賃・エリア)が近い物件一覧
| 写真 | 家賃 管理費等 | 敷金 礼金 | 間取り 専有面積 | 築年数 | 最寄り駅 所在地 | キープ | 詳細 |
|---|---|---|---|---|---|---|---|
アパート 近鉄京都線 伊勢田駅 徒歩10分 築28年(1K/1階) | |||||||
![]() | 5.2万円 7,000円 | なし 5.2万円 | 1K 20.28m2 | 築28年 | 近鉄京都線 伊勢田駅 徒歩10分 近鉄京都線 小倉駅(京都) 徒歩12分 京都府宇治市伊勢田町若林 | 詳細を見る | |
マンション 京都市烏丸線 十条駅(京都市営) 徒歩2分 築28年(ワンルーム/2階) | |||||||
![]() | 5.4万円 6,000円 | なし 5.4万円 | ワンルーム 34.08m2 | 築28年 | 京都市烏丸線 十条駅(京都市営) 徒歩2分 東海道本線 京都駅 徒歩15分 京都府京都市南区東九条河辺町 | 詳細を見る | |
マンション 京都市烏丸線 十条駅(京都市営) 徒歩4分 新築(1LDK/7階) | |||||||
![]() | 9.65万円 8,470円 | なし なし | 1LDK 32.56m2 | 新築 | 京都市烏丸線 十条駅(京都市営) 徒歩4分 東海道本線 京都駅 徒歩14分 京都府京都市南区東九条柳下町 | 詳細を見る | |
アパート レオパレス五箇庄(1K/1階) | |||||||
![]() | 5.9万円 7,000円 | なし 5.9万円 | 1K 22.35m2 | 築19年 | 奈良線 黄檗駅(JR) 徒歩14分 京阪電気鉄道宇治線 黄檗駅(京阪) 徒歩14分 京都府宇治市五ケ庄 | 詳細を見る | |
マンション 東海道本線 桂川駅(京都) 徒歩10分 築6年(1LDK/3階) | |||||||
![]() | 8万円 6,000円 | 8万円 16万円 | 1LDK 34.4m2 | 築6年 | 東海道本線 桂川駅(京都) 徒歩10分 阪急電鉄京都線 洛西口駅 徒歩20分 京都府京都市南区 | 詳細を見る | |
マンション 近鉄京都線 東寺駅 徒歩3分 築8年(1K/2階) | |||||||
![]() | 7.1万円 6,000円 | なし なし | 1K 27m2 | 築8年 | 近鉄京都線 東寺駅 徒歩3分 東海道本線 京都駅 徒歩18分 京都府京都市南区西九条開ケ町 | 詳細を見る | |
アパート 京阪電気鉄道京阪線 鳥羽街道駅 徒歩5分 築1年(1LDK/2階) | |||||||
![]() | 10.5万円 8,000円 | なし 21万円 | 1LDK 49.64m2 | 築1年 | 京阪電気鉄道京阪線 鳥羽街道駅 徒歩5分 東海道本線 京都駅 徒歩25分 京都府京都市東山区福稲下高松町 | 詳細を見る | |
アパート 京阪電気鉄道京阪線 樟葉駅 徒歩25分 築9年(1LDK/2階) | |||||||
![]() | 7.5万円 8,000円 | なし 10万円 | 1LDK 33.61m2 | 築9年 | 京阪電気鉄道京阪線 樟葉駅 徒歩25分 京阪電気鉄道京阪線 橋本駅(京都) 徒歩34分 京都府八幡市男山石城 | 詳細を見る | |









