賃貸アパート
ドミール和合の賃貸物件情報(1LDK/1階)
| 家賃 | 管理費等 | 敷金 | 礼金 | 間取り | 専有面積 |
|---|---|---|---|---|---|
| 5.5万円 | なし | 11万円 | なし | 1LDK | 40.92m2 |
入居決定でお祝い金最大100,000円
Point
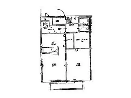
バス・トイレ別/収納1間/シャワー付洗面台と便利な設備もバッチリですよバス:48和合西徒歩5分の物件情報です。対面式キッチン/ガスキッチン/カウンターキッチンで毎日のお料理もはかどりますよ。
提供:いい部屋ネット大東建託リーシング(株)磐田店(SUUMO経由)

詳細情報 ドミール和合
物件紹介
ドミール和合は遠州鉄道曳馬駅から徒歩37分にあるアパートです。
このお部屋のインターホンにはTVモニタがついているため、相手の顔を確認してから来客対応することができます。
人気の南向き・フローリングのお部屋。角部屋でもあるため、周囲の居住者の生活音も気になりにくい場所です。室内にはウォークインクローゼットがありますので、たくさんの荷物も効率的に収納ができます。キッチンはシステムキッチン仕様になっていますので、お料理好きの方にもぴったり。また、バス・トイレは別で、のんびりお風呂タイムも楽しめるでしょう。
通信設備面では、インターネットが無料で使えるので、月々の出費を抑えられるのも魅力です。また、CATVにも対応しているので、おうち時間も充実するでしょう(別途工事、CATVの契約料等が必要な場合あり)。
共用部には宅配ボックスが設定されているので、不在の時にも荷物を受け取ることができます。
このお部屋のインターホンにはTVモニタがついているため、相手の顔を確認してから来客対応することができます。
人気の南向き・フローリングのお部屋。角部屋でもあるため、周囲の居住者の生活音も気になりにくい場所です。室内にはウォークインクローゼットがありますので、たくさんの荷物も効率的に収納ができます。キッチンはシステムキッチン仕様になっていますので、お料理好きの方にもぴったり。また、バス・トイレは別で、のんびりお風呂タイムも楽しめるでしょう。
通信設備面では、インターネットが無料で使えるので、月々の出費を抑えられるのも魅力です。また、CATVにも対応しているので、おうち時間も充実するでしょう(別途工事、CATVの契約料等が必要な場合あり)。
共用部には宅配ボックスが設定されているので、不在の時にも荷物を受け取ることができます。
お金・契約の情報
※「-」と表示されているものは、実際は料金が発生するものもございます。詳細はお問い合わせください。
| 家賃 | 5.5万円 | 管理費・共益費 | なし |
|---|---|---|---|
| 敷金 | 11万円 | 礼金 | なし |
| 入居決定でお祝い金最大100,000円 | |||
| 保証金 | - | 償却・敷引 | - |
| 住宅保険料 | - | 更新料 | - |
| 保証会社利用 | 必須 | 保証会社名 | オリコ |
| 保証会社費用 | - | 保証会社備考 | オリコ利用必 保証会社オリコ 初回利用料金16,500円 |
| 契約形態 | - | 契約期間 | - |
| 入居・引渡期間 | - | 現況 | - |
| 契約備考 | ※掲載写真は、反転タイプの別部屋写真です。 合計0.68万円(内訳:自治会費/年6000円/入会金400円/消防費400円) 1LDK 普通借家2年 損保【2万円2年】 バストイレ別、バルコニー、エアコン、クロゼット、シャワー付洗面台、TVインターホン、室内洗濯置、陽当り良好、角住戸、温水洗浄便座、脱衣所、洗面所独立、宅配ボックス、CATV、2面採光、対面式キッチン、全居室収納、ウォークインクロゼット、南西角住戸、収納1間半、敷金2ヶ月、保証金不要、クロゼット2ヶ所、プロパンガス 入居日:'26年4月下旬 | ||
部屋の情報
| 間取り | 1LDK | 専有面積 | 40.92m2 |
|---|---|---|---|
| 所在階 / 向き | 1階 / - | バルコニー面積 | - |
| 水道 / ガス | - | ||
| 設備 | バス・トイレ別、テレビドアホン、宅配ボックス、ウォークインクローゼット、エアコン、温水洗浄便座、角部屋、バルコニー、洗髪洗面化粧台、CATV、洗濯機:室内 | ||
| 当社物件ID | 160572930 | ||
建物の情報
| 建物名 | ドミール和合 | ||
|---|---|---|---|
| 所在地 | 静岡県浜松市中央区和合町 | ||
| 交通 | 遠州鉄道 助信駅 徒歩43分 | ||
| 階数 | 2階建 | 総戸数 | - |
| 築年月 | 2006年07月 / 築20年 | エレベーター | - |
| 駐車場 | 空有 付無料 | バイク置き場 | - |
| 駐輪場 | - | 管理人/管理会社 | - |
| 周辺環境 | その他 主婦の店 浜松富塚北店(スーパー)まで750m その他 ファミリーマート浜松和合店(コンビニ)まで729m その他 ローソン 浜松富塚北店(コンビニ)まで816m その他 杏林堂薬局和合店(ドラッグストア)まで1117m | ||
| 建物種別 | アパート | 建物構造 | 軽量鉄骨造 |
この部屋の取扱い不動産会社
| 会社名 | (株)アライブお部屋探しサポートデスク(SUUMO経由) | ||
|---|---|---|---|
| 所在地 | 静岡県浜松市中央区城北3-1-35 | 交通 | - |
| 営業時間 | 9時~18時 | 定休日 | 無し |
| 免許番号 | 静岡県知事10395 | 取引態様 | 仲介 |
| 不動産会社管理番号 | 100502519768 | 当社管理番号 | 89 |
| 所属団体 | (公社)静岡県宅地建物取引業協会会員 | ||
| 公正取引協議会 | 東海不動産公正取引協議会加盟 | ||
| 取扱い物件情報 | 物件詳細へ | ||
※各種情報と現状に差異がある場合は、現状優先となります。問い合わせをすることで、より詳しい条件、情報を確認する事ができます。
提供:(株)アライブお部屋探しサポートデスク(SUUMO経由)
この物件が気になったら掲載期限まであと10日
ドミール和合に条件(家賃・エリア)が近い物件一覧
| 写真 | 家賃 管理費等 | 敷金 礼金 | 間取り 専有面積 | 築年数 | 最寄り駅 所在地 | キープ | 詳細 |
|---|---|---|---|---|---|---|---|
マンション ラフォーレ向平(2LDK/2階) | |||||||
![]() | 5.5万円 3,000円 | 11万円 なし | 2LDK 50.58m2 | 築31年 | 遠州鉄道 遠州病院駅 徒歩39分 静岡県浜松市中央区富塚町 | 詳細を見る | |
マンション エクセルシア(1LDK/3階) | |||||||
![]() | 6.9万円 3,000円 | なし なし | 1LDK 43.8m2 | 築18年 | 遠州鉄道 助信駅 徒歩25分 静岡県浜松市中央区和合町 | 詳細を見る | |


