賃貸マンション
リテラス川崎ウエストの賃貸物件情報(1LDK/4階)
| 家賃 | 管理費等 | 敷金 | 礼金 | 間取り | 専有面積 |
|---|---|---|---|---|---|
| 16.4万円 | 1.8万円 | 16.4万円 | なし | 1LDK | 41.88m2 |
入居決定でお祝い金最大100,000円
- 保証金
- -
- 償却・敷引
- -
- 築年数
- 築1年
- 所在階
- 4階
- 向き
- 南西
Point
◆トランクルーム込みの賃料となります。◆短期解約違約金:2年未満1ヵ月◆最新の空室状況/内見のご予約/お申込はいえらぶBBをご確認ください。◆内見開始日前の申込:先行申込のみ申込可
提供:(株)シーラ(SUUMO経由)

詳細情報 リテラス川崎ウエスト
物件紹介
リテラス川崎ウエストはJR南武線八丁畷駅から徒歩4分にあり、駅近で通勤通学に便利なマンションです。
このお部屋は2階以上に位置しているので、通行人や周囲の住人からの視線が気になりにくく、防犯面でも安心。建物のエントランスはオートロックがついており、インターホンにはTVモニタもついているため、相手の顔を確認してから来客対応することができます。
人気の南向きのお部屋。また、フローリングなのでお掃除もラクラク。キッチンはシステムキッチン仕様になっていますので、お料理好きの方にもぴったり。バス・トイレは別なので、のんびりお風呂タイムも楽しめるでしょう。また、雨の日でも浴室乾燥機を使えば、お洗濯も問題ありません。
通信設備面では、インターネットが無料で使えるので、月々の出費を抑えられるのも魅力です(別途工事等が必要な場合あり)。
建物にはエレベーターがついているので、重い荷物があっても安心。共用部には宅配ボックスが設定されているので、不在の時にも荷物を受け取ることができます。
このお部屋は2階以上に位置しているので、通行人や周囲の住人からの視線が気になりにくく、防犯面でも安心。建物のエントランスはオートロックがついており、インターホンにはTVモニタもついているため、相手の顔を確認してから来客対応することができます。
人気の南向きのお部屋。また、フローリングなのでお掃除もラクラク。キッチンはシステムキッチン仕様になっていますので、お料理好きの方にもぴったり。バス・トイレは別なので、のんびりお風呂タイムも楽しめるでしょう。また、雨の日でも浴室乾燥機を使えば、お洗濯も問題ありません。
通信設備面では、インターネットが無料で使えるので、月々の出費を抑えられるのも魅力です(別途工事等が必要な場合あり)。
建物にはエレベーターがついているので、重い荷物があっても安心。共用部には宅配ボックスが設定されているので、不在の時にも荷物を受け取ることができます。
お金・契約の情報
※「-」と表示されているものは、実際は料金が発生するものもございます。詳細はお問い合わせください。
| 家賃 | 16.4万円 | 管理費・共益費 | 1.8万円 |
|---|---|---|---|
| 敷金 | 16.4万円 | 礼金 | なし |
| フリーレント | あり | ||
| 入居決定でお祝い金最大100,000円 | |||
| 保証金 | - | 償却・敷引 | - |
| 住宅保険料 | - | 更新料 | - |
| 保証会社利用 | 必須 | 保証会社名 | - |
| 保証会社費用 | - | 保証会社備考 | 保証会社利用必 初回50%、月額保証料700円、月額事務手数料330円 外国籍の方:GTNを利用。初回保証料100%(最低保証料40 000円)、月額保証料1 000円 |
| 契約形態 | - | 契約期間 | - |
| 入居・引渡期間 | - | 現況 | - |
| 契約備考 | 更新料 新賃料1.00ヶ月分 室内清掃費用 82500円 1LDK 二人入居可/フリーレント1ヶ月賃料のみFR 短期解約違約金有 普通借家2年 損保【2.4万円2年】 バストイレ別、バルコニー、エアコン、ガスコンロ対応、クロゼット、フローリング、浴室乾燥機、オートロック、室内洗濯置、シューズボックス、システムキッチン、追焚機能浴室、温水洗浄便座、エレベーター、洗面所独立、駐輪場、宅配ボックス、2面採光、3口以上コンロ、対面式キッチン、防犯カメラ、分譲賃貸、全居室洋室、保証人不要、バイク置場、全居室フローリング、2面バルコニー、ネット使用料不要、フリーレント、トランクルーム、学生相談、敷地内ごみ置き場、都市ガス、保証会社利用可 入居日:'26年3月上旬 | ||
部屋の情報
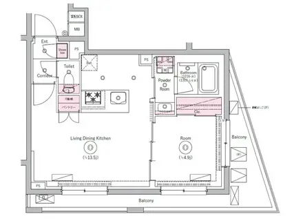
| 間取り | 1LDK | 専有面積 | 41.88m2 |
|---|---|---|---|
| 所在階 / 向き | 4階 / 南西 | バルコニー面積 | 11m2 |
| 水道 / ガス | - | ||
| 設備 | バス・トイレ別、2階以上、オートロック、宅配ボックス、浴室乾燥機、追い焚き、インターネット対応、システムキッチン、エアコン、エレベーター、温水洗浄便座、南向き、バルコニー、フローリング、トランクルーム、洗髪洗面化粧台、2口コンロ、コンロ:ガス、インターネット使用料無料、洗濯機:室内 | ||
| 当社物件ID | 160464752 | ||
建物の情報
| 建物名 | リテラス川崎ウエスト | ||
|---|---|---|---|
| 所在地 | 神奈川県川崎市川崎区堤根 | ||
| 交通 | JR南武線 八丁畷駅 徒歩4分 JR京浜東北線 川崎駅 徒歩11分 京急本線 京急川崎駅 徒歩14分 | ||
| 階数 | 5階建 | 総戸数 | 92戸 |
| 築年月 | 2026年02月 / 築1年 | エレベーター | あり |
| 駐車場 | なし | バイク置き場 | あり |
| 駐輪場 | あり | 管理人/管理会社 | - |
| 周辺環境 | その他 コーナン宮前上野川店(ホームセンター)まで926m その他 DAISOパシオス野川店(ショッピングセンター)まで588m その他 信岡歯科クリニック(病院)まで366m その他 JAセレサ野川支店(銀行)まで372m その他 ローソン川崎野川店(コンビニ)まで224m その他 ヨークマート(スーパー)まで609m | ||
| 建物種別 | マンション | 建物構造 | RC(鉄筋コンクリート) |
この部屋の取扱い不動産会社
| 会社名 | (株)シーラ(SUUMO経由) | ||
|---|---|---|---|
| 所在地 | 東京都渋谷区広尾1-1-39ー7階 | 交通 | - |
| 営業時間 | - | 定休日 | - |
| 免許番号 | 国土交通大臣9715 | 取引態様 | 貸主 |
| 不動産会社管理番号 | 100490217493 | 当社管理番号 | 89 |
| 所属団体 | (公社)東京都宅地建物取引業協会会員 | ||
| 公正取引協議会 | (公社)首都圏不動産公正取引協議会加盟 | ||
| 取扱い物件情報 | 物件詳細へ | ||
※各種情報と現状に差異がある場合は、現状優先となります。問い合わせをすることで、より詳しい条件、情報を確認する事ができます。
提供:(株)シーラ(SUUMO経由)
この物件が気になったら掲載期限まであと11日
リテラス川崎ウエストに条件(家賃・エリア)が近い物件一覧
| 写真 | 家賃 管理費等 | 敷金 礼金 | 間取り 専有面積 | 築年数 | 最寄り駅 所在地 | キープ | 詳細 |
|---|---|---|---|---|---|---|---|
マンション ディームス横濱神之木台(2LDK/4階) | |||||||
![]() | 20.5万円 1.2万円 | 20.5万円 20.5万円 | 2LDK 51.26m2 | 築4年 | JR横浜線 大口駅 徒歩11分 JR京浜東北線 新子安駅 徒歩16分 京急本線 京急新子安駅 徒歩16分 神奈川県横浜市神奈川区神之木台 | 詳細を見る | |
アパート フレバリーガーデンD(2LDK/1階) | |||||||
![]() | 14.3万円 6,000円 | なし 21.45万円 | 2LDK 63.2m2 | 築24年 | 東急田園都市線 長津田駅 徒歩16分 JR横浜線 長津田駅 徒歩16分 東急こどもの国線 長津田駅 徒歩17分 神奈川県横浜市緑区長津田みなみ台 | 詳細を見る | |
マンション パルセルもえぎ野(3DK/2階) | |||||||
![]() | 13万円 5,000円 | 13万円 13万円 | 3DK 59.07m2 | 築30年 | 東急田園都市線 藤が丘駅(神奈川) 徒歩10分 東急田園都市線 青葉台駅 徒歩14分 東急田園都市線 市が尾駅 徒歩26分 神奈川県横浜市青葉区もえぎ野 | 詳細を見る | |
マンション グリフィン横浜・日本大通(1DK/9階) | |||||||
![]() | 11.2万円 8,000円 | 11.2万円 11.2万円 | 1DK 30.45m2 | 築21年 | 横浜高速鉄道MM線 日本大通り駅 徒歩3分 神奈川県横浜市中区南仲通1丁目 | 詳細を見る | |
マンション LABELLAVITA横浜大通公園(2K/4階) | |||||||
![]() | 11.8万円 7,000円 | 11.8万円 11.8万円 | 2K 35.32m2 | 築17年 | ブルーライン 伊勢佐木長者町駅 徒歩1分 JR京浜東北線 関内駅 徒歩5分 みなとみらい線 馬車道駅 徒歩14分 神奈川県横浜市中区蓬莱町 | 詳細を見る | |
マンション デューウッド C(2LDK/1階) | |||||||
![]() | 14.5万円 7,500円 | なし 29万円 | 2LDK 58.53m2 | 築1年 | 相鉄本線 三ツ境駅 徒歩12分 相鉄本線 希望ケ丘駅 徒歩23分 相鉄本線 瀬谷駅 徒歩27分 神奈川県横浜市瀬谷区二ツ橋町 | 詳細を見る | |
マンション プレテール(2LDK/1階) | |||||||
![]() | 17.3万円 7,000円 | なし 34.6万円 | 2LDK 69.27m2 | 築1年 | グリーンライン 東山田駅 徒歩8分 グリーンライン 高田駅(神奈川) 徒歩16分 神奈川県横浜市都筑区東山田町 | 詳細を見る | |
アパート ルピナコート A(2LDK/2階) | |||||||
![]() | 10.5万円 6,000円 | なし 10.5万円 | 2LDK 53.76m2 | 築7年 | 相鉄いずみ野線 いずみ中央駅 徒歩14分 小田急江ノ島線 長後駅 徒歩25分 相鉄いずみ野線 ゆめが丘駅 徒歩26分 神奈川県横浜市泉区上飯田町 | 詳細を見る | |





/105x80-f1-q70-wp1)


