賃貸マンション
ミハス荻窪IIの賃貸物件情報(1DK/2階)
| 家賃 | 管理費等 | 敷金 | 礼金 | 間取り | 専有面積 |
|---|---|---|---|---|---|
| 10万円 | 6,000円 | なし | 10万円 | 1DK | 28.15m2 |
入居決定でお祝い金最大100,000円
Point
☆初期費用、お家賃交渉、諸条件などご相談に乗ります!インターネット上の物件はほぼ全てご紹介可能です!新築物件、デザイナーズ物件、分譲賃貸をはじめペット可物件や楽器可物件などもご相談ください☆
提供:(株)タウンハウジング東京 高円寺店(SUUMO経由)

詳細情報 ミハス荻窪II
物件紹介
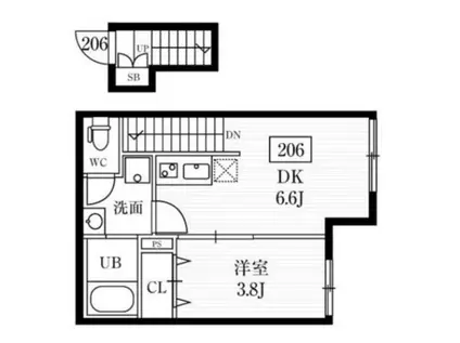
ミハス荻窪IIはJR中央線荻窪駅から徒歩13分にあるマンションです。
このお部屋は2階以上に位置しているので、通行人や周囲の住人からの視線が気になりにくく、防犯面でも安心。インターホンにはTVモニタもついているため、相手の顔を確認してから来客対応することができます。
人気の南向きのお部屋。また、フローリングなのでお掃除もラクラク。キッチンはシステムキッチン仕様になっていますので、お料理好きの方にもぴったり。バス・トイレは別なので、のんびりお風呂タイムも楽しめるでしょう。また、雨の日でも浴室乾燥機を使えば、お洗濯も問題ありません。
通信設備面では、インターネットが無料で使えるので、月々の出費を抑えられるのも魅力です(別途工事等が必要な場合あり)。
共用部には宅配ボックスが設定されているので、不在の時にも荷物を受け取ることができます。
このお部屋は2階以上に位置しているので、通行人や周囲の住人からの視線が気になりにくく、防犯面でも安心。インターホンにはTVモニタもついているため、相手の顔を確認してから来客対応することができます。
人気の南向きのお部屋。また、フローリングなのでお掃除もラクラク。キッチンはシステムキッチン仕様になっていますので、お料理好きの方にもぴったり。バス・トイレは別なので、のんびりお風呂タイムも楽しめるでしょう。また、雨の日でも浴室乾燥機を使えば、お洗濯も問題ありません。
通信設備面では、インターネットが無料で使えるので、月々の出費を抑えられるのも魅力です(別途工事等が必要な場合あり)。
共用部には宅配ボックスが設定されているので、不在の時にも荷物を受け取ることができます。
お金・契約の情報
※「-」と表示されているものは、実際は料金が発生するものもございます。詳細はお問い合わせください。
| 家賃 | 10万円 | 管理費・共益費 | 6,000円 |
|---|---|---|---|
| 敷金 | なし | 礼金 | 10万円 |
| 入居決定でお祝い金最大100,000円 | |||
| 保証金 | - | 償却・敷引 | - |
| 住宅保険料 | - | 更新料 | - |
| 保証会社利用 | 必須 | 保証会社名 | - |
| 保証会社費用 | - | 保証会社備考 | 保証会社利用必 初回:賃料等の50% 2年目以降:10000円/年 月額550円 |
| 契約形態 | - | 契約期間 | - |
| 入居・引渡期間 | 即時 | 現況 | - |
| 契約備考 | 西武鉄道新宿線上井草駅徒歩29分/★お部屋探しはタウンハウジングまで★ 合計6.38万円(内訳:鍵交換代:9900円/室内清掃費用:44000円/サポート初回登録料:9900円) 更新料新賃料(ヶ月):1.00ヶ月、サポート料:1320円/月 1DK 単身者可/二人入居可 普通借家2年 損保【2万円2年】 バストイレ別、エアコン、ガスコンロ対応、クロゼット、フローリング、TVインターホン、浴室乾燥機、室内洗濯置、シューズボックス、システムキッチン、温水洗浄便座、脱衣所、洗面所独立、2口コンロ、宅配ボックス、即入居可、閑静な住宅地、最上階、敷金不要、防犯カメラ、独立型キッチン、全居室洋室、保証人不要、単身者相談、二人入居相談、全居室フローリング、2沿線利用可、駅まで平坦、ネット使用料不要、保証金不要、始発駅、2駅利用可、3沿線以上利用可、上階無し、敷地内ごみ置き場、東南向き、都市ガス、礼金1ヶ月、IT重説対応物件、初期費用カード決済可 | ||
部屋の情報
| 間取り | 1DK | 専有面積 | 28.15m2 |
|---|---|---|---|
| 所在階 / 向き | 2階 / 南東 | バルコニー面積 | - |
| 水道 / ガス | - | ||
| 設備 | バス・トイレ別、2階以上、テレビドアホン、宅配ボックス、浴室乾燥機、インターネット対応、システムキッチン、エアコン、温水洗浄便座、南向き、フローリング、洗髪洗面化粧台、2口コンロ、コンロ:ガス、インターネット使用料無料、洗濯機:室内 | ||
| 当社物件ID | 101565837 | ||
建物の情報
| 建物名 | ミハス荻窪II | ||
|---|---|---|---|
| 所在地 | 東京都杉並区上荻 | ||
| 交通 | JR中央線 荻窪駅 徒歩13分 JR中央線 西荻窪駅 徒歩18分 西武新宿線 井荻駅 徒歩27分 | ||
| 階数 | 2階建 | 総戸数 | 14戸 |
| 築年月 | 2019年10月 / 築7年 | エレベーター | - |
| 駐車場 | なし | バイク置き場 | - |
| 駐輪場 | - | 管理人/管理会社 | - |
| 周辺環境 | その他 ミニコープ西荻店(スーパー)まで756m その他 セブンイレブン荻窪店(コンビニ)まで436m その他 ユニバーサルドラッグ荻窪店(その他)まで378m その他 城西病院(病院)まで541m その他 杉並四面道郵便局(郵便局)まで687m | ||
| 建物種別 | マンション | 建物構造 | 鉄骨造 |
この部屋の取扱い不動産会社
| 会社名 | (株)タウンハウジング東京 阿佐ヶ谷店(SUUMO経由) | ||
|---|---|---|---|
| 所在地 | 東京都杉並区阿佐谷南2-17-3 Libera Asagaya1階 | 交通 | - |
| 営業時間 | AM10:00~PM7:00 | 定休日 | 水曜日 |
| 免許番号 | 国土交通大臣9926 | 取引態様 | 仲介 |
| 不動産会社管理番号 | 100493321502 | 当社管理番号 | 89 |
| 所属団体 | (公社)東京都宅地建物取引業協会会員 | ||
| 公正取引協議会 | (公社)首都圏不動産公正取引協議会加盟 | ||
| 取扱い物件情報 | 物件詳細へ | ||
※各種情報と現状に差異がある場合は、現状優先となります。問い合わせをすることで、より詳しい条件、情報を確認する事ができます。
提供:(株)タウンハウジング東京 阿佐ヶ谷店(SUUMO経由)
この物件が気になったら掲載期限まであと12日
ミハス荻窪IIに条件(家賃・エリア)が近い物件一覧
| 写真 | 家賃 管理費等 | 敷金 礼金 | 間取り 専有面積 | 築年数 | 最寄り駅 所在地 | キープ | 詳細 |
|---|---|---|---|---|---|---|---|
アパート メールメゾン・シマ(ワンルーム/2階) | |||||||
![]() | 6.7万円 2,000円 | 6.7万円 6.7万円 | ワンルーム 23.6m2 | 築63年 | 東急田園都市線 駒沢大学駅 徒歩10分 東急世田谷線 西太子堂駅 徒歩13分 東急田園都市線 三軒茶屋駅 徒歩14分 東京都世田谷区上馬 | 詳細を見る | |
マンション YOLK江古田(1K/3階) | |||||||
![]() | 9.6万円 3,000円 | 9.6万円 なし | 1K 21.35m2 | 築1年 | 都営大江戸線 新江古田駅 徒歩4分 西武池袋線 江古田駅 徒歩5分 西武池袋線 桜台駅(東京) 徒歩5分 東京都練馬区豊玉上 | 詳細を見る | |
マンション KI-FLAT永福町(1K/3階) | |||||||
![]() | 14.5万円 9,000円 | 14.5万円 なし | 1K 30.99m2 | 築2年 | 京王電鉄井の頭線 永福町駅 徒歩8分 東京都杉並区和泉3丁目 | 詳細を見る | |
アパート JE CROIS世田谷(1K/2階) | |||||||
![]() | 9.2万円 3,000円 | なし 9.2万円 | 1K 31.9m2 | 築12年 | 東急世田谷線 上町駅 徒歩5分 東急世田谷線 世田谷駅 徒歩8分 東急田園都市線 桜新町駅 徒歩18分 東京都世田谷区世田谷 | 詳細を見る | |
アパート マウ明大前(1K/1階) | |||||||
![]() | 9.5万円 5,000円 | 9.5万円 9.5万円 | 1K 18.94m2 | 築1年 | 京王井の頭線 明大前駅 徒歩8分 京王線 代田橋駅 徒歩9分 京王井の頭線 東松原駅 徒歩11分 東京都世田谷区松原 | 詳細を見る | |
マンション レオパレスストラーダ(1K/3階) | |||||||
![]() | 9.1万円 7,000円 | なし 9.1万円 | 1K 23.18m2 | 築18年 | 西武多摩川線 新小金井駅 徒歩22分 JR中央線 武蔵境駅 徒歩27分 JR中央線 東小金井駅 徒歩28分 東京都三鷹市深大寺 | 詳細を見る | |
マンション JMFレジデンス世田谷三宿(1K/4階) | |||||||
![]() | 13.2万円 1万円 | 13.2万円 13.2万円 | 1K 27.3m2 | 築19年 | 東急田園都市線 池尻大橋駅 徒歩14分 京王井の頭線 池ノ上駅 徒歩14分 京王井の頭線 駒場東大前駅 徒歩18分 東京都世田谷区三宿 | 詳細を見る | |
マンション レガーロ田園調布(1DK/3階) | |||||||
![]() | 11.3万円 1.5万円 | なし なし | 1DK 22m2 | 築3年 | 東急東横線 田園調布駅 徒歩5分 東急目黒線 奥沢駅 徒歩8分 東急池上線 雪が谷大塚駅 徒歩18分 東京都世田谷区東玉川 | 詳細を見る | |



/105x80-f1-q70-wp1)




