賃貸アパート
JACK TODANISHIIの賃貸物件情報(1LDK/1階)
| 家賃 | 管理費等 | 敷金 | 礼金 | 間取り | 専有面積 |
|---|---|---|---|---|---|
| 6.15万円 | 3,500円 | なし | 6.15万円 | 1LDK | 31.31m2 |
入居決定でお祝い金最大100,000円
- 保証金
- -
- 償却・敷引
- -
- 築年数
- 新築
- 所在階
- 1階
- 向き
- 北
Point
オートロック付なので女性、はじめての一人暮らしでも安心してご入居頂けます☆インターネット使用料不要なので面倒な手続き不要です◎LINE・メール・お電話でやり取り可能!
提供:スタイルエステート西支店(株)エムホームエステート(SUUMO経由)

詳細情報 JACK TODANISHII
物件紹介
JACK TODANISHIIは近鉄名古屋線戸田駅から徒歩12分にあるアパートです。
建物のエントランスはオートロックがついており、インターホンにはTVモニタもついているため、相手の顔を確認してから来客対応することができます。
おしゃれなデザイナーズ物件!人気の角部屋で周囲の居住者の生活音も気になりにくく、また、フローリングのお部屋なのでお掃除もラクラク。キッチンはシステムキッチン仕様になっていますので、お料理好きの方にもぴったり。バス・トイレは別なので、のんびりお風呂タイムも楽しめるでしょう。また、雨の日でも浴室乾燥機を使えば、お洗濯も問題ありません。
通信設備面では、インターネットが無料で使えるので、月々の出費を抑えられるのも魅力です(別途工事等が必要な場合あり)。
共用部には宅配ボックスが設定されているので、不在の時にも荷物を受け取ることができます。
建物のエントランスはオートロックがついており、インターホンにはTVモニタもついているため、相手の顔を確認してから来客対応することができます。
おしゃれなデザイナーズ物件!人気の角部屋で周囲の居住者の生活音も気になりにくく、また、フローリングのお部屋なのでお掃除もラクラク。キッチンはシステムキッチン仕様になっていますので、お料理好きの方にもぴったり。バス・トイレは別なので、のんびりお風呂タイムも楽しめるでしょう。また、雨の日でも浴室乾燥機を使えば、お洗濯も問題ありません。
通信設備面では、インターネットが無料で使えるので、月々の出費を抑えられるのも魅力です(別途工事等が必要な場合あり)。
共用部には宅配ボックスが設定されているので、不在の時にも荷物を受け取ることができます。
お金・契約の情報
※「-」と表示されているものは、実際は料金が発生するものもございます。詳細はお問い合わせください。
| 家賃 | 6.15万円 | 管理費・共益費 | 3,500円 |
|---|---|---|---|
| 敷金 | なし | 礼金 | 6.15万円 |
| 入居決定でお祝い金最大100,000円 | |||
| 保証金 | - | 償却・敷引 | - |
| 住宅保険料 | - | 更新料 | - |
| 契約形態 | - | 契約期間 | - |
| 入居・引渡期間 | - | 現況 | - |
| 契約備考 | 巡回管理/見学から契約までご来店不要でご対応可能です♪駐車場の空き状況は別途お問い合わせ下さい。 1LDK 単身者可/二人入居可 普通借家2年 損保【要】 バストイレ別、バルコニー、エアコン、ガスコンロ対応、クロゼット、フローリング、シャワー付洗面台、TVインターホン、浴室乾燥機、オートロック、室内洗濯置、シューズボックス、システムキッチン、追焚機能浴室、角住戸、温水洗浄便座、洗面所独立、洗面化粧台、2口コンロ、宅配ボックス、敷金不要、保証人不要、デザイナーズ、2沿線利用可、ネット使用料不要、築2年以内、未入居、3駅以上利用可、プロパンガス、洗面所にドア、礼金1ヶ月、IT重説対応物件、初期費用カード決済可 入居日:'26年5月下旬 | ||
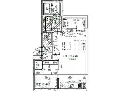
部屋の情報
| 間取り | 1LDK | 専有面積 | 31.31m2 |
|---|---|---|---|
| 所在階 / 向き | 1階 / 北 | バルコニー面積 | - |
| 水道 / ガス | - | ||
| 設備 | バス・トイレ別、オートロック、テレビドアホン、宅配ボックス、浴室乾燥機、追い焚き、インターネット対応、システムキッチン、エアコン、温水洗浄便座、角部屋、バルコニー、フローリング、洗髪洗面化粧台、2口コンロ、コンロ:ガス、デザイナーズ、インターネット使用料無料、洗濯機:室内 | ||
| 当社物件ID | 160470174 | ||
建物の情報
| 建物名 | JACK TODANISHII | ||
|---|---|---|---|
| 所在地 | 愛知県名古屋市中川区戸田西 | ||
| 交通 | 近鉄名古屋線 戸田駅(愛知) 徒歩12分 近鉄名古屋線 近鉄蟹江駅 徒歩14分 JR関西本線 蟹江駅 徒歩20分 | ||
| 階数 | 3階建 | 総戸数 | 9戸 |
| 築年月 | 2026年05月 / 新築 | エレベーター | - |
| 駐車場 | 空有 5500円 | バイク置き場 | - |
| 駐輪場 | - | 管理人/管理会社 | - |
| 周辺環境 | その他 アオキスーパー 戸田店(スーパー)まで192m その他 DAISO 蟹江専門館店(スーパー)まで582m その他 ローソン 中川戸田三丁目店(コンビニ)まで425m その他 ホームセンターコーナン 蟹江店(ホームセンター)まで736m その他 ヨシヅヤ蟹江専門店館(ショッピングセンター)まで584m その他 名古屋戸田郵便局(郵便局)まで695m | ||
| 建物種別 | アパート | 建物構造 | 木造 |
この部屋の取扱い不動産会社
| 会社名 | スタイルエステート西支店(株)エムホームエステート(SUUMO経由) | ||
|---|---|---|---|
| 所在地 | 愛知県名古屋市中川区高畑1-235 | 交通 | - |
| 営業時間 | 10:00~20:00 | 定休日 | - |
| 免許番号 | 愛知県知事22094 | 取引態様 | 仲介 |
| 不動産会社管理番号 | 100490446267 | 当社管理番号 | 89 |
| 所属団体 | (公社)愛知県宅地建物取引業協会会員 | ||
| 公正取引協議会 | 東海不動産公正取引協議会加盟 | ||
| 取扱い物件情報 | 物件詳細へ | ||
※各種情報と現状に差異がある場合は、現状優先となります。問い合わせをすることで、より詳しい条件、情報を確認する事ができます。
提供:スタイルエステート西支店(株)エムホームエステート(SUUMO経由)
この物件が気になったら掲載期限まであと11日
JACK TODANISHIIに条件(家賃・エリア)が近い物件一覧
| 写真 | 家賃 管理費等 | 敷金 礼金 | 間取り 専有面積 | 築年数 | 最寄り駅 所在地 | キープ | 詳細 |
|---|---|---|---|---|---|---|---|
マンション メディオ JUN(2K/1階) | |||||||
![]() | 5.7万円 3,000円 | なし なし | 2K 37.23m2 | 築26年 | リニモ 杁ケ池公園駅 徒歩8分 リニモ はなみずき通駅 徒歩15分 リニモ 長久手古戦場駅 徒歩22分 愛知県長久手市根の神 | 詳細を見る | |
アパート ソレイユ(3K/2階) | |||||||
![]() | 5.2万円 4,200円 | なし 5.2万円 | 3K 50.54m2 | 築31年 | 名鉄瀬戸線 水野駅 徒歩18分 名鉄瀬戸線 三郷駅(愛知) 徒歩25分 愛知県瀬戸市西寺山町 | 詳細を見る | |
マンション レオパレスグラシアス(1K/2階) | |||||||
![]() | 5.6万円 7,000円 | なし 5.6万円 | 1K 20.81m2 | 築18年 | 名鉄常滑線 尾張横須賀駅 徒歩13分 愛知県東海市養父町釈迦御堂 | 詳細を見る | |
アパート COMFORT北山(1LDK/1階) | |||||||
![]() | 6万円 2,300円 | なし 7万円 | 1LDK 44.82m2 | 築19年 | JR東海道本線 共和駅 徒歩18分 JR東海道本線 大府駅 徒歩44分 JR武豊線 大府駅 徒歩44分 愛知県大府市北山町 | 詳細を見る | |
アパート リザイア 八瀬の木(2LDK/2階) | |||||||
![]() | 7.9万円 5,000円 | なし 7.9万円 | 2LDK 59.16m2 | 新築 | 名鉄犬山線 西春駅 徒歩32分 愛知県北名古屋市片場八瀬の木 | 詳細を見る | |
マンション レオパレスノーブル(1K/1階) | |||||||
![]() | 5.1万円 7,000円 | なし 5.1万円 | 1K 23.18m2 | 築21年 | 愛知県愛知郡東郷町清水1丁目 | 詳細を見る | |
アパート ディアス晴丘(2DK/2階) | |||||||
![]() | 5万円 なし | なし なし | 2DK 43.54m2 | 築33年 | 名鉄瀬戸線 尾張旭駅 徒歩28分 愛知県尾張旭市北本地ケ原町 | 詳細を見る | |
アパート レオパレスM T K(1K/1階) | |||||||
![]() | 5.4万円 7,000円 | なし なし | 1K 21.81m2 | 築19年 | JR東海道本線 稲沢駅 徒歩27分 名鉄犬山線 西春駅 徒歩40分 JR東海道本線 清洲駅 徒歩42分 愛知県清須市 | 詳細を見る | |









