賃貸アパート
叡山電鉄 宝ケ池駅 徒歩5分 2階建 築15年の賃貸物件情報(2LDK/2階)
| 家賃 | 管理費等 | 敷金 | 礼金 | 間取り | 専有面積 |
|---|---|---|---|---|---|
| 8万円 | 8,000円 | なし | 10万円 | 2LDK | 49.06m2 |
入居決定でお祝い金最大100,000円
Point
環境良好の築浅物件 地下鉄の国際会館駅まで徒歩圏内。2012年築のハイツ登場。
提供:株式会社 京都ライフ 北大路店(賃貸スモッカ経由)

詳細情報 叡山電鉄 宝ケ池駅 徒歩5分 2階建 築15年
物件紹介
叡山電鉄宝ケ池駅から徒歩5分にあり、駅近で通勤通学に便利なアパートです。
このお部屋は2階以上に位置しているので、通行人や周囲の住人からの視線が気になりにくく、防犯面でも安心です。
人気の南向きのお部屋。また、フローリングなのでお掃除もラクラク。キッチンはシステムキッチン仕様になっていますので、お料理好きの方にもぴったり。また、バス・トイレは別で、のんびりお風呂タイムも楽しめるでしょう。
通信設備面では、インターネット接続が可能です。また、BSアンテナもありますので、おうち時間も充実するでしょう(別途工事、契約料が必要な場合あり)。
このお部屋は2階以上に位置しているので、通行人や周囲の住人からの視線が気になりにくく、防犯面でも安心です。
人気の南向きのお部屋。また、フローリングなのでお掃除もラクラク。キッチンはシステムキッチン仕様になっていますので、お料理好きの方にもぴったり。また、バス・トイレは別で、のんびりお風呂タイムも楽しめるでしょう。
通信設備面では、インターネット接続が可能です。また、BSアンテナもありますので、おうち時間も充実するでしょう(別途工事、契約料が必要な場合あり)。
お金・契約の情報
※「-」と表示されているものは、実際は料金が発生するものもございます。詳細はお問い合わせください。
| 家賃 | 8万円 | 管理費・共益費 | 8,000円 |
|---|---|---|---|
| 敷金 | なし | 礼金 | 10万円 |
| 入居決定でお祝い金最大100,000円 | |||
| 保証金 | - | 償却・敷引 | - |
| 住宅保険料 | 住宅保険料あり | 更新料 | - |
| 契約形態 | - | 契約期間 | 2年 |
| 入居・引渡期間 | 2026年05月下旬 | 現況 | 賃貸中 |
| 契約備考 | 2012年3月完成の築浅2LDKです。地下鉄国際会館駅まで徒歩9分。叡山、地下鉄のダブルアクセス。更新料ナシです。嬉しい3点セパレートに追い焚き機能付浴室、システムキッチンなど充実の設備。TVホンでセキュリティも安心です。コンビニ、スーパー、ドラッグストア、ホームセンターなど近くにあって便利ですよ。光ファイバー対応しています。 抗菌除菌処理代:22,000円 更新料:1ヶ月 保証会社:利用必須 初回:月額賃料等の50%、月額:保証料として月額賃料等の1% その他設備/条件:最上階の物件、コンロ2口以上、独立洗面台、TVドアホン | ||
部屋の情報
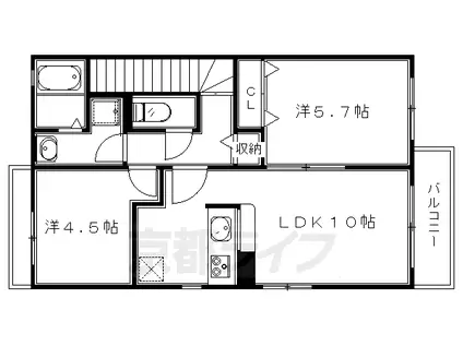
| 間取り | 2LDK | 専有面積 | 49.06m2 |
|---|---|---|---|
| 間取り詳細 | 洋室(5.7帖)、洋室(4.5帖)、LDK(10帖) | ||
| 所在階 / 向き | 2階 / 南 | バルコニー面積 | - |
| 水道 / ガス | ガス【都市】 | ||
| 設備 | バス・トイレ別、2階以上、インターネット対応、システムキッチン、南向き、バルコニー、フローリング、コンロ:ガス、BSアンテナ、洗濯機:室内 | ||
| 当社物件ID | 160479807 | ||
建物の情報
| 建物名 | 叡山電鉄 宝ケ池駅 徒歩5分 2階建 築15年 | ||
|---|---|---|---|
| 所在地 | 京都府京都市左京区上高野仲町 | ||
| 交通 | 叡山電鉄 宝ケ池駅 徒歩5分 京都市烏丸線 国際会館駅 徒歩7分 | ||
| 階数 | 2階建 | 総戸数 | - |
| 築年月 | 2012年03月 / 築15年 | エレベーター | - |
| 駐車場 | - | バイク置き場 | - |
| 駐輪場 | あり | 管理人/管理会社 | - |
| 建物種別 | アパート | 建物構造 | 木造 |
この部屋の取扱い不動産会社
| 会社名 | 株式会社 京都ライフ 北大路店(賃貸スモッカ経由) | ||
|---|---|---|---|
| 所在地 | 京都市北区小山上総町11 | 交通 | - |
| 営業時間 | - | 定休日 | - |
| 免許番号 | 京都府知事(11)第6353号 | 取引態様 | 仲介 |
| 不動産会社管理番号 | kyotolife_52927-202-22 | 当社管理番号 | 463 |
| 所属団体 | 京都府宅地建物取引業協会\n公益社団法人近畿地区不動産公正取引協議会 | ||
| 公正取引協議会 | 全国宅地建物取引業保証協会 | ||
| 取扱い物件情報 | 物件詳細へ | ||
※各種情報と現状に差異がある場合は、現状優先となります。問い合わせをすることで、より詳しい条件、情報を確認する事ができます。
提供:株式会社 京都ライフ 北大路店(賃貸スモッカ経由)
この物件が気になったら掲載期限まであと6日
叡山電鉄 宝ケ池駅 徒歩5分 2階建 築15年に条件(家賃・エリア)が近い物件一覧
| 写真 | 家賃 管理費等 | 敷金 礼金 | 間取り 専有面積 | 築年数 | 最寄り駅 所在地 | キープ | 詳細 |
|---|---|---|---|---|---|---|---|
一戸建て 山陰本線 馬堀駅 徒歩13分 築51年(3DK) | |||||||
![]() | 5.8万円 なし | 5万円 5万円 | 3DK 48.6m2 | 築51年 | 山陰本線 馬堀駅 徒歩13分 山陰本線 亀岡駅 徒歩38分 京都府亀岡市篠町篠観音芝 | 詳細を見る | |
マンション ドミトリィ御池(1K/4階) | |||||||
![]() | 6.8万円 6,000円 | 5万円 10万円 | 1K 24.7m2 | 築30年 | 地下鉄東西線 三条京阪駅 徒歩1分 京阪本線 三条駅(京都) 徒歩1分 地下鉄東西線 京都市役所前駅 徒歩4分 京都府京都市左京区孫橋町 | 詳細を見る | |
アパート ウエスト HILL(1LDK/2階) | |||||||
![]() | 9.3万円 3,000円 | 3万円 15万円 | 1LDK 50m2 | 築35年 | 阪急電鉄京都線 西山天王山駅 徒歩10分 阪急電鉄京都線 長岡天神駅 徒歩18分 東海道本線 長岡京駅 徒歩27分 京都府長岡京市下海印寺東条 | 詳細を見る | |
マンション 奈良線 宇治駅(JR) 徒歩5分 築31年(3LDK/10階) | |||||||
![]() | 12万円 なし | 12万円 12万円 | 3LDK 65.49m2 | 築31年 | 奈良線 宇治駅(JR) 徒歩5分 京阪電気鉄道宇治線 宇治駅(京阪) 徒歩7分 京都府宇治市宇治 | 詳細を見る | |
アパート JR山陰本線 吉富駅(京都) 徒歩63分 築5年(1LDK/1階) | |||||||
![]() | 6.35万円 5,000円 | なし 6.35万円 | 1LDK 44.21m2 | 築5年 | JR山陰本線 吉富駅(京都) 徒歩63分 JR山陰本線 船岡駅(京都) 徒歩67分 京都府南丹市園部町横田5号 | 詳細を見る | |
マンション 京阪電気鉄道宇治線 三室戸駅 徒歩2分 築39年(1LDK/1階) | |||||||
![]() | 6.8万円 7,000円 | なし 6.8万円 | 1LDK 50.35m2 | 築39年 | 京阪電気鉄道宇治線 三室戸駅 徒歩2分 京阪電気鉄道宇治線 宇治駅(京阪) 徒歩5分 京都府宇治市莵道田中 | 詳細を見る | |
マンション 叡山電鉄 宝ケ池駅 徒歩2分 築10年(1LDK/3階) | |||||||
![]() | 6.9万円 6,000円 | なし 6.9万円 | 1LDK 33.36m2 | 築10年 | 叡山電鉄 宝ケ池駅 徒歩2分 京都市烏丸線 国際会館駅 徒歩12分 京都府京都市左京区上高野西氷室町 | 詳細を見る | |
マンション 京阪電気鉄道宇治線 木幡駅(京阪) 徒歩4分 築36年(2DK/1階) | |||||||
![]() | 6.3万円 3,000円 | なし なし | 2DK 50.71m2 | 築36年 | 京阪電気鉄道宇治線 木幡駅(京阪) 徒歩4分 奈良線 六地蔵駅(JR) 徒歩8分 京都府宇治市木幡 | 詳細を見る | |









