賃貸マンション
BPRレジデンス王子の賃貸物件情報(1DK/12階)
| 家賃 | 管理費等 | 敷金 | 礼金 | 間取り | 専有面積 |
|---|---|---|---|---|---|
| 12.4万円 | 1万円 | 12.4万円 | なし | 1DK | 25.42m2 |
入居決定でお祝い金最大100,000円
Point
まずはお問い合わせ!
不動産会社は街のプロ、あなたに合った物件がきっと見つかります。
提供:東急リバブル(株)池袋センター(SUUMO経由)

詳細情報 BPRレジデンス王子
物件紹介
BPRレジデンス王子は東京メトロ南北線王子駅から徒歩2分にあり、駅近で通勤通学に便利なマンションです。
このお部屋は2階以上に位置しているので、通行人や周囲の住人からの視線が気になりにくく、防犯面でも安心。建物のエントランスはオートロックがついており、インターホンにはTVモニタもついているため、相手の顔を確認してから来客対応することができます。
おしゃれなデザイナーズ物件!人気の角部屋で周囲の居住者の生活音も気になりにくく、また、フローリングのお部屋なのでお掃除もラクラク。室内にはウォークインクローゼットがありますので、たくさんの荷物も効率的に収納ができます。キッチンはシステムキッチン仕様になっていますので、お料理好きの方にもぴったり。バス・トイレは別なので、のんびりお風呂タイムも楽しめるでしょう。また、雨の日でも浴室乾燥機を使えば、お洗濯も問題ありません。
通信設備面では、インターネットが無料で使えるので、月々の出費を抑えられるのも魅力です。また、CATVにも対応しているので、おうち時間も充実するでしょう(別途工事、CATVの契約料等が必要な場合あり)。
建物にはエレベーターがついているので、重い荷物があっても安心。共用部には宅配ボックスが設定されているので、不在の時にも荷物を受け取ることができます。また、ペット飼育の相談ができますので、あなたの大切な家族の一員も快適に暮らせるか、ぜひ確認してみてください。
このお部屋は2階以上に位置しているので、通行人や周囲の住人からの視線が気になりにくく、防犯面でも安心。建物のエントランスはオートロックがついており、インターホンにはTVモニタもついているため、相手の顔を確認してから来客対応することができます。
おしゃれなデザイナーズ物件!人気の角部屋で周囲の居住者の生活音も気になりにくく、また、フローリングのお部屋なのでお掃除もラクラク。室内にはウォークインクローゼットがありますので、たくさんの荷物も効率的に収納ができます。キッチンはシステムキッチン仕様になっていますので、お料理好きの方にもぴったり。バス・トイレは別なので、のんびりお風呂タイムも楽しめるでしょう。また、雨の日でも浴室乾燥機を使えば、お洗濯も問題ありません。
通信設備面では、インターネットが無料で使えるので、月々の出費を抑えられるのも魅力です。また、CATVにも対応しているので、おうち時間も充実するでしょう(別途工事、CATVの契約料等が必要な場合あり)。
建物にはエレベーターがついているので、重い荷物があっても安心。共用部には宅配ボックスが設定されているので、不在の時にも荷物を受け取ることができます。また、ペット飼育の相談ができますので、あなたの大切な家族の一員も快適に暮らせるか、ぜひ確認してみてください。
お金・契約の情報
※「-」と表示されているものは、実際は料金が発生するものもございます。詳細はお問い合わせください。
| 家賃 | 12.4万円 | 管理費・共益費 | 1万円 |
|---|---|---|---|
| 敷金 | 12.4万円 | 礼金 | なし |
| 入居決定でお祝い金最大100,000円 | |||
| 保証金 | - | 償却・敷引 | - |
| 住宅保険料 | - | 更新料 | - |
| 保証会社利用 | 必須 | 保証会社名 | - |
| 保証会社費用 | - | 保証会社備考 | 保証会社利用必 エポスカード(RP) 保証料:賃料等の50%(最低2万)、月額保証料:賃料等の1%(更新料無) |
| 契約形態 | - | 契約期間 | - |
| 入居・引渡期間 | - | 現況 | - |
| 入居可能条件 | ペット相談 | ||
| 契約備考 | 合計8.25万円(内訳:鍵交換代:33000円、清掃費:38500円、エアコン清掃費:11000円) 町内会費:100円/月 1DK ペット相談 損保【1.66万円2年】 バストイレ別、エアコン、TVインターホン、オートロック、室内洗濯置、エレベーター、洗面所独立、駐輪場、宅配ボックス、礼金不要、最上階、防犯カメラ、ペット相談、2沿線利用可、ネット使用料不要、築3年以内、駅徒歩5分以内、敷地内ごみ置き場 敷金積み増し【ペット飼育の場合敷金2ヶ月(総額)】 入居日:'26年2月中旬 | ||
部屋の情報
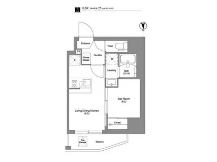
| 間取り | 1DK | 専有面積 | 25.42m2 |
|---|---|---|---|
| 所在階 / 向き | 12階 / 北 | バルコニー面積 | - |
| 水道 / ガス | - | ||
| 設備 | バス・トイレ別、2階以上、オートロック、テレビドアホン、宅配ボックス、インターネット対応、エアコン、エレベーター、洗髪洗面化粧台、インターネット使用料無料、洗濯機:室内 | ||
| 当社物件ID | 160313678 | ||
建物の情報
| 建物名 | BPRレジデンス王子 | ||
|---|---|---|---|
| 所在地 | 東京都北区王子 | ||
| 交通 | 東京メトロ南北線 王子駅 徒歩2分 JR京浜東北線 王子駅 徒歩4分 | ||
| 階数 | 12階建 | 総戸数 | 33戸 |
| 築年月 | 2023年10月 / 築3年 | エレベーター | あり |
| 駐車場 | なし | バイク置き場 | - |
| 駐輪場 | あり | 管理人/管理会社 | - |
| 建物種別 | マンション | 建物構造 | RC(鉄筋コンクリート) |
この部屋の取扱い不動産会社
| 会社名 | ポラスの賃貸 Room'Spot川口営業所(株)中央ビル管理(SUUMO経由) | ||
|---|---|---|---|
| 所在地 | 埼玉県川口市川口1-1-1 | 交通 | - |
| 営業時間 | 9:30~18:00 | 定休日 | 火曜日・水曜日 |
| 免許番号 | 国土交通大臣3918 | 取引態様 | 仲介 |
| 不動産会社管理番号 | 100485870395 | 当社管理番号 | 89 |
| 所属団体 | (公社)埼玉県宅地建物取引業協会会員 | ||
| 公正取引協議会 | (公社)首都圏不動産公正取引協議会加盟 | ||
| 取扱い物件情報 | 物件詳細へ | ||
※各種情報と現状に差異がある場合は、現状優先となります。問い合わせをすることで、より詳しい条件、情報を確認する事ができます。
提供:ポラスの賃貸 Room'Spot川口営業所(株)中央ビル管理(SUUMO経由)
この物件が気になったら掲載期限まであと11日
BPRレジデンス王子に条件(家賃・エリア)が近い物件一覧
| 写真 | 家賃 管理費等 | 敷金 礼金 | 間取り 専有面積 | 築年数 | 最寄り駅 所在地 | キープ | 詳細 |
|---|---|---|---|---|---|---|---|
マンション TRIAS629(1DK/2階) | |||||||
![]() | 9.6万円 1.8万円 | なし 9.6万円 | 1DK 17.31m2 | 築1年 | 東京地下鉄丸ノ内線 新大塚駅 徒歩3分 山手線 大塚駅(東京) 徒歩9分 東京地下鉄有楽町線 東池袋駅 徒歩10分 東京都文京区大塚6丁目 | 詳細を見る | |
マンション TKD本郷(1K/3階) | |||||||
![]() | 12.4万円 6,000円 | 12.4万円 12.4万円 | 1K 24.18m2 | 築14年 | 東京地下鉄丸ノ内線 本郷三丁目駅 徒歩5分 総武・中央緩行線 御茶ノ水駅 徒歩8分 東京都文京区本郷2丁目 | 詳細を見る | |
マンション スカイコートお茶の水女子大前第2(1K/3階) | |||||||
![]() | 8.3万円 9,000円 | 8.3万円 8.3万円 | 1K 20m2 | 築23年 | 東京地下鉄丸ノ内線 茗荷谷駅 徒歩8分 東京地下鉄有楽町線 護国寺駅 徒歩9分 東京地下鉄丸ノ内線 新大塚駅 徒歩9分 東京都文京区大塚3丁目 | 詳細を見る | |
マンション スカイコート後楽園イースト(1K/6階) | |||||||
![]() | 8.9万円 9,000円 | なし なし | 1K 19.52m2 | 築21年 | 東京地下鉄丸ノ内線 後楽園駅 徒歩10分 東京都大江戸線 春日駅(東京) 徒歩10分 総武・中央緩行線 飯田橋駅 徒歩15分 東京都文京区小石川4丁目 | 詳細を見る | |
マンション SYFORME江戸川橋(1DK/5階) | |||||||
![]() | 14.1万円 1万円 | なし なし | 1DK 25.05m2 | 築4年 | 東京地下鉄有楽町線 江戸川橋駅 徒歩1分 東京都文京区関口1丁目 | 詳細を見る | |
マンション ラ・レジダンス・ド千駄木(1K/12階) | |||||||
![]() | 10.9万円 6,000円 | 10.9万円 10.9万円 | 1K 21.46m2 | 築20年 | 東京地下鉄千代田線 千駄木駅 徒歩2分 東京都文京区千駄木2丁目 | 詳細を見る | |
マンション 後楽プレイス(1LDK/1階) | |||||||
![]() | 15.7万円 1.5万円 | なし なし | 1LDK 40.33m2 | 築1年 | 総武・中央緩行線 飯田橋駅 徒歩6分 東京地下鉄丸ノ内線 後楽園駅 徒歩8分 東京地下鉄東西線 神楽坂駅 徒歩15分 東京都文京区後楽2丁目 | 詳細を見る | |
マンション リビオメゾン御茶ノ水イースト(1DK/9階) | |||||||
![]() | 17万円 1万円 | 17万円 なし | 1DK 25.41m2 | 築1年 | 中央本線 御茶ノ水駅 徒歩5分 東京地下鉄銀座線 末広町駅(東京) 徒歩6分 東京地下鉄丸ノ内線 御茶ノ水駅 徒歩6分 東京都文京区湯島1丁目 | 詳細を見る | |









