賃貸アパート
KEIAI RESIDENCE 西八王子Ⅳの賃貸物件情報(1LDK/2階)
| 家賃 | 管理費等 | 敷金 | 礼金 | 間取り | 専有面積 |
|---|---|---|---|---|---|
| 8.3万円 | 3,500円 | なし | 8.3万円 | 1LDK | 32.39m2 |
入居決定でお祝い金最大100,000円
Point
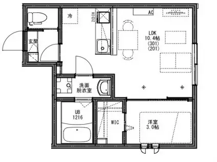
収納はシューズボックス・クロゼット・全居室収納など豊富なので、衣類や履き物の整理がしやすく便利です。
提供:ハウスコム西東京株式会社 八王子駅前店

詳細情報 KEIAI RESIDENCE 西八王子Ⅳ
物件紹介
KEIAI RESIDENCE 西八王子Ⅳは中央本線西八王子駅から徒歩8分にあり、駅近で通勤通学に便利なアパートです。
このお部屋は2階以上に位置しているので、通行人や周囲の住人からの視線が気になりにくく、防犯面でも安心。建物のエントランスはオートロックがついており、インターホンにはTVモニタもついているため、相手の顔を確認してから来客対応することができます。
人気の角部屋で周囲の居住者の生活音も気になりにくく、また、フローリングのお部屋なのでお掃除もラクラク。キッチンはシステムキッチン仕様になっていますので、お料理好きの方にもぴったり。バス・トイレは別なので、のんびりお風呂タイムも楽しめるでしょう。また、雨の日でも浴室乾燥機を使えば、お洗濯も問題ありません。
通信設備面では、インターネットが無料で使えるので、月々の出費を抑えられるのも魅力です。また、CATVにも対応しているので、おうち時間も充実するでしょう(別途工事、CATVの契約料等が必要な場合あり)。
共用部には宅配ボックスが設定されているので、不在の時にも荷物を受け取ることができます。
コンビニまで徒歩8分の場所にあり、日用品や食料品のお買い物にも便利です。
このお部屋は2階以上に位置しているので、通行人や周囲の住人からの視線が気になりにくく、防犯面でも安心。建物のエントランスはオートロックがついており、インターホンにはTVモニタもついているため、相手の顔を確認してから来客対応することができます。
人気の角部屋で周囲の居住者の生活音も気になりにくく、また、フローリングのお部屋なのでお掃除もラクラク。キッチンはシステムキッチン仕様になっていますので、お料理好きの方にもぴったり。バス・トイレは別なので、のんびりお風呂タイムも楽しめるでしょう。また、雨の日でも浴室乾燥機を使えば、お洗濯も問題ありません。
通信設備面では、インターネットが無料で使えるので、月々の出費を抑えられるのも魅力です。また、CATVにも対応しているので、おうち時間も充実するでしょう(別途工事、CATVの契約料等が必要な場合あり)。
共用部には宅配ボックスが設定されているので、不在の時にも荷物を受け取ることができます。
コンビニまで徒歩8分の場所にあり、日用品や食料品のお買い物にも便利です。
お金・契約の情報
※「-」と表示されているものは、実際は料金が発生するものもございます。詳細はお問い合わせください。
| 家賃 | 8.3万円 | 管理費・共益費 | 3,500円 |
|---|---|---|---|
| 敷金 | なし | 礼金 | 8.3万円 |
| 入居決定でお祝い金最大100,000円 | |||
| 保証金 | - | 償却・敷引 | - |
| 住宅保険料 | 1円 | 更新料 | - |
| 保証会社利用 | 必須 | 保証会社名 | - |
| 保証会社費用 | - | 保証会社備考 | 初回 賃料等総額 50% 月額900円 |
| 契約形態 | - | 契約期間 | 2年 |
| 入居・引渡期間 | 2026年04月 | 現況 | 未完成 |
| 入居可能条件 | 事務所不可、学生可、楽器不可、ペット不可 | ||
| 契約備考 | 鍵交換27500円 清掃代66000円 契約事務手数料16500円 半年以内解約 違約金 賃料2ヶ月 1年未満解約 違約金 賃料1ヶ月 ケイアイクラブ月額2750円 室内は同ハウスメーカーの参考写真となります。 その他設備/条件:室内洗濯機置き場、独立洗面台、防犯カメラ、全居室収納、クローゼット、シューズボックス、照明器具付き | ||
部屋の情報
| 間取り | 1LDK | 専有面積 | 32.39m2 |
|---|---|---|---|
| 間取り詳細 | 洋室(5帖)、LDK(10.4帖) | ||
| 所在階 / 向き | 2階 / 南西 | バルコニー面積 | - |
| 水道 / ガス | 水道【公営】、ガス【プロパン】 | ||
| 設備 | バス・トイレ別、オートロック、テレビドアホン、宅配ボックス、浴室乾燥機、インターネット対応、システムキッチン、エアコン、温水洗浄便座、角部屋、フローリング、洗髪洗面化粧台、2口コンロ、コンロ:ガス、CATV、インターネット使用料無料、シャワー、給湯 | ||
| 当社物件ID | 160454784 | ||
建物の情報
| 建物名 | KEIAI RESIDENCE 西八王子Ⅳ | ||
|---|---|---|---|
| 所在地 | 東京都八王子市千人町4丁目 | ||
| 交通 | 中央本線 西八王子駅 徒歩8分 | ||
| 階数 | 3階建 | 総戸数 | 9戸 |
| 築年月 | 2026年04月 / 新築 | エレベーター | - |
| 駐車場 | なし | バイク置き場 | - |
| 駐輪場 | あり | 管理人/管理会社 | - |
| 周辺環境 | コンビニ 徒歩8分(590m) 販売店 徒歩7分(499m) 病院 徒歩8分(620m) その他 ドラッグストア その他 公園 その他 銀行 その他 * | ||
| 建物種別 | アパート | 建物構造 | 木造 |
この部屋の取扱い不動産会社
| 会社名 | ハウスコム西東京株式会社 八王子駅前店 | ||
|---|---|---|---|
| 所在地 | 東京都八王子市2-12サンドラッグ八王子駅前ビル6階 | 交通 | - |
| 営業時間 | 10:00~18:00 | 定休日 | - |
| 免許番号 | 東京都知事(1)第108225号 | 取引態様 | 仲介 |
| 不動産会社管理番号 | HC2-5394692-201-0078 | 当社管理番号 | 468 |
| 所属団体 | 、 | ||
| 取扱い物件情報 | 物件詳細へ | ||
※各種情報と現状に差異がある場合は、現状優先となります。問い合わせをすることで、より詳しい条件、情報を確認する事ができます。
提供:ハウスコム西東京株式会社 八王子駅前店
この物件が気になったら掲載期限まであと4日
KEIAI RESIDENCE 西八王子Ⅳに条件(家賃・エリア)が近い物件一覧
| 写真 | 家賃 管理費等 | 敷金 礼金 | 間取り 専有面積 | 築年数 | 最寄り駅 所在地 | キープ | 詳細 |
|---|---|---|---|---|---|---|---|
アパート ハイム松原(2DK/2階) | |||||||
![]() | 5.6万円 1,000円 | なし なし | 2DK 33.76m2 | 築49年 | JR青梅線 拝島駅 徒歩4分 西武拝島線 拝島駅 徒歩4分 JR青梅線 昭島駅 徒歩21分 東京都昭島市松原町 | 詳細を見る | |
マンション サンビュー北田園(2DK/1階) | |||||||
![]() | 7万円 3,000円 | なし なし | 2DK 48m2 | 築41年 | JR青梅線 牛浜駅 徒歩12分 JR五日市線 熊川駅 徒歩14分 JR青梅線 福生駅 徒歩18分 東京都福生市北田園 | 詳細を見る | |
アパート ベルハイムIII(2DK/2階) | |||||||
![]() | 6.5万円 2,000円 | 6.5万円 なし | 2DK 40.9m2 | 築35年 | JR横浜線 橋本駅(神奈川) 徒歩10分 JR相模線 橋本駅(神奈川) 徒歩10分 京王相模原線 多摩境駅 徒歩23分 神奈川県相模原市緑区橋本 | 詳細を見る | |
アパート スカイデュー(1LDK/1階) | |||||||
![]() | 9.1万円 4,000円 | なし 9.1万円 | 1LDK 44.7m2 | 築1年 | 神奈川県相模原市緑区久保沢2丁目 | 詳細を見る | |
アパート セジュールコトB(ワンルーム/1階) | |||||||
![]() | 7.5万円 5,000円 | なし 10万円 | ワンルーム 30.27m2 | 築20年 | 京王相模原線 京王堀之内駅 徒歩14分 多摩都市モノレール 大塚・帝京大学駅 徒歩19分 多摩都市モノレール 中央大学・明星大学駅 徒歩24分 東京都八王子市堀之内 | 詳細を見る | |
アパート カインドネス八王子東中野(1K/2階) | |||||||
![]() | 5.8万円 3,000円 | なし なし | 1K 23.58m2 | 築9年 | 多摩都市モノレール 中央大学・明星大学駅 徒歩2分 多摩都市モノレール 大塚・帝京大学駅 徒歩10分 多摩都市モノレール 多摩動物公園駅 徒歩15分 東京都八王子市東中野 | 詳細を見る | |
アパート プリマ八王子壱番館(ワンルーム/2階) | |||||||
![]() | 7万円 5,000円 | 7万円 なし | ワンルーム 22.04m2 | 築1年 | 京王線 京王八王子駅 徒歩25分 JR中央線 八王子駅 徒歩28分 東京都八王子市暁町 | 詳細を見る | |
マンション エコーハイツK(3DK/2階) | |||||||
![]() | 5.9万円 1,000円 | 5.9万円 5.9万円 | 3DK 48.73m2 | 築37年 | JR五日市線 秋川駅 徒歩10分 JR五日市線 武蔵引田駅 徒歩28分 JR五日市線 東秋留駅 徒歩35分 東京都あきる野市秋川 | 詳細を見る | |









