賃貸アパート
東海道本線 山科駅 徒歩8分 3階建 築15年の賃貸物件情報(2LDK/1階)
| 家賃 | 管理費等 | 敷金 | 礼金 | 間取り | 専有面積 |
|---|---|---|---|---|---|
| 11万円 | 8,500円 | なし | 25万円 | 2LDK | 59.92m2 |
入居決定でお祝い金最大100,000円
Point
設備充実マンション 山科駅より徒歩8分 大手メーカー施工のマンション登場
提供:株式会社 京都ライフ 丹波橋店(賃貸スモッカ経由)

詳細情報 東海道本線 山科駅 徒歩8分 3階建 築15年
物件紹介
東海道本線山科駅から徒歩8分にあり、駅近で通勤通学に便利なアパートです。
建物のエントランスはオートロックがついており、防犯性が高くなっています。
人気の角部屋で周囲の居住者の生活音も気になりにくく、また、フローリングのお部屋なのでお掃除もラクラク。室内にはウォークインクローゼットがありますので、たくさんの荷物も効率的に収納ができます。キッチンはシステムキッチン仕様になっていますので、お料理好きの方にもぴったり。バス・トイレは別なので、のんびりお風呂タイムも楽しめるでしょう。また、雨の日でも浴室乾燥機を使えば、お洗濯も問題ありません。
通信設備面では、インターネット接続が可能です。また、BSアンテナもありますので、おうち時間も充実するでしょう(別途工事、契約料が必要な場合あり)。
建物のエントランスはオートロックがついており、防犯性が高くなっています。
人気の角部屋で周囲の居住者の生活音も気になりにくく、また、フローリングのお部屋なのでお掃除もラクラク。室内にはウォークインクローゼットがありますので、たくさんの荷物も効率的に収納ができます。キッチンはシステムキッチン仕様になっていますので、お料理好きの方にもぴったり。バス・トイレは別なので、のんびりお風呂タイムも楽しめるでしょう。また、雨の日でも浴室乾燥機を使えば、お洗濯も問題ありません。
通信設備面では、インターネット接続が可能です。また、BSアンテナもありますので、おうち時間も充実するでしょう(別途工事、契約料が必要な場合あり)。
お金・契約の情報
※「-」と表示されているものは、実際は料金が発生するものもございます。詳細はお問い合わせください。
| 家賃 | 11万円 | 管理費・共益費 | 8,500円 |
|---|---|---|---|
| 敷金 | なし | 礼金 | 25万円 |
| 入居決定でお祝い金最大100,000円 | |||
| 保証金 | - | 償却・敷引 | - |
| 住宅保険料 | 住宅保険料あり | 更新料 | - |
| 契約形態 | - | 契約期間 | 1年 |
| 入居・引渡期間 | 2026年07月下旬 | 現況 | 賃貸中 |
| 契約備考 | 2011年9月完成の築浅2LDKです。JR山科駅まで徒歩8分。JR、京阪、地下鉄のトリプルアクセス。更新料ナシです。嬉しい3点セパレートにウォークインクローゼット、浴室乾燥機、追い焚き機能付浴室、温水洗浄便座など充実の設備。オートロック、TVホンでセキュリティも安心です。コンビニ、スーパー、ドラッグストア、ホームセンターなど近くにあって便利ですよ。光ファイバー対応しています。 リブネスあんしんサポート:1,320円 更新料:50,000円 保証会社:利用必須 初回:月額賃料等の50%、月額:保証料として月額賃料等の1%(初回保証料は最低保証料15000円、月額保証料は最低保証料300円) その他設備/条件:1階の物件、コンロ2口以上、TVドアホン | ||
部屋の情報
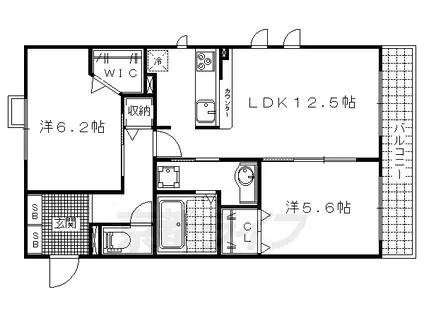
| 間取り | 2LDK | 専有面積 | 59.92m2 |
|---|---|---|---|
| 間取り詳細 | 洋室(6.2帖)、洋室(5.9帖)、LDK(12.5帖) | ||
| 所在階 / 向き | 1階 / 東 | バルコニー面積 | - |
| 水道 / ガス | - | ||
| 設備 | バス・トイレ別、オートロック、浴室乾燥機、ウォークインクローゼット、追い焚き、インターネット対応、システムキッチン、カウンターキッチン、エアコン、温水洗浄便座、角部屋、バルコニー、フローリング、オール電化、コンロ:IH、BSアンテナ、洗濯機:室内 | ||
| 当社物件ID | 160369839 | ||
建物の情報
| 建物名 | 東海道本線 山科駅 徒歩8分 3階建 築15年 | ||
|---|---|---|---|
| 所在地 | 京都府京都市山科区竹鼻地蔵寺南町 | ||
| 交通 | 東海道本線 山科駅 徒歩8分 京阪電気鉄道京津線 京阪山科駅 徒歩8分 | ||
| 階数 | 3階建 | 総戸数 | - |
| 築年月 | 2011年09月 / 築15年 | エレベーター | - |
| 駐車場 | - | バイク置き場 | - |
| 駐輪場 | あり | 管理人/管理会社 | - |
| 建物種別 | アパート | 建物構造 | 軽量鉄骨造 |
この部屋の取扱い不動産会社
| 会社名 | 株式会社 京都ライフ 丹波橋店(賃貸スモッカ経由) | ||
|---|---|---|---|
| 所在地 | 京都市伏見区京町北7丁目1-4 | 交通 | - |
| 営業時間 | - | 定休日 | - |
| 免許番号 | 京都府知事(11)第6353号 | 取引態様 | 仲介 |
| 不動産会社管理番号 | kyotolife_32962-101-05 | 当社管理番号 | 463 |
| 所属団体 | 京都府宅地建物取引業協会\n公益社団法人近畿地区不動産公正取引協議会 | ||
| 公正取引協議会 | 全国宅地建物取引業保証協会 | ||
| 取扱い物件情報 | 物件詳細へ | ||
※各種情報と現状に差異がある場合は、現状優先となります。問い合わせをすることで、より詳しい条件、情報を確認する事ができます。
提供:株式会社 京都ライフ 丹波橋店(賃貸スモッカ経由)
この物件が気になったら掲載期限まであと6日
東海道本線 山科駅 徒歩8分 3階建 築15年に条件(家賃・エリア)が近い物件一覧
| 写真 | 家賃 管理費等 | 敷金 礼金 | 間取り 専有面積 | 築年数 | 最寄り駅 所在地 | キープ | 詳細 |
|---|---|---|---|---|---|---|---|
マンション ロイヤルガーデン長岡京(2LDK/3階) | |||||||
![]() | 8.3万円 6,000円 | 8.3万円 15万円 | 2LDK 54m2 | 築36年 | 阪急京都線 長岡天神駅 徒歩10分 JR東海道本線 長岡京駅 徒歩18分 阪急京都線 西向日駅 徒歩22分 京都府長岡京市長岡 | 詳細を見る | |
マンション 京都市東西線 椥辻駅 徒歩20分 築38年(3DK/2階) | |||||||
![]() | 6.9万円 4,000円 | 15万円 なし | 3DK 60.57m2 | 築38年 | 京都市東西線 椥辻駅 徒歩20分 京都市東西線 東野駅(京都) 徒歩34分 京都府京都市山科区西野山百々町 | 詳細を見る | |
マンション 奈良線 六地蔵駅(JR) 徒歩3分 築5年(1LDK/5階) | |||||||
![]() | 8.1万円 4,000円 | なし 8.1万円 | 1LDK 29.58m2 | 築5年 | 奈良線 六地蔵駅(JR) 徒歩3分 京阪電気鉄道宇治線 六地蔵駅(京阪) 徒歩4分 京都府宇治市六地蔵 | 詳細を見る | |
アパート 東海道本線 山科駅 徒歩9分 築22年(1K/2階) | |||||||
![]() | 7.4万円 7,000円 | なし 7.4万円 | 1K 23.18m2 | 築22年 | 東海道本線 山科駅 徒歩9分 京都市東西線 山科駅 徒歩9分 京都府京都市山科区厨子奥若林町 | 詳細を見る | |
マンション グリーンサム大久保Ⅱ(3LDK/1階) | |||||||
![]() | 14万円 7,000円 | なし 28万円 | 3LDK 72m2 | 築2年 | JR奈良線 新田駅(京都) 徒歩5分 近鉄京都線 大久保駅(京都) 徒歩7分 近鉄京都線 久津川駅 徒歩13分 京都府宇治市大久保町久保 | 詳細を見る | |
一戸建て 奈良線 新田駅(京都) 徒歩17分 築54年(2LDK) | |||||||
![]() | 6.9万円 なし | 13.8万円 6.9万円 | 2LDK 53.38m2 | 築54年 | 奈良線 新田駅(京都) 徒歩17分 近鉄京都線 伊勢田駅 徒歩19分 近鉄京都線 大久保駅(京都) 徒歩21分 京都府宇治市神明宮東 | 詳細を見る | |
アパート HARMONY TERRACE-SY 椥辻(1LDK/2階) | |||||||
![]() | 6.9万円 4,000円 | なし なし | 1LDK 30.4m2 | 築3年 | 地下鉄東西線 椥辻駅 徒歩11分 地下鉄東西線 小野駅(京都) 徒歩18分 地下鉄東西線 東野駅(京都) 徒歩25分 京都府京都市山科区椥辻番所ケ口町 | 詳細を見る | |
アパート 京都市東西線 東野駅(京都) 徒歩13分 新築(1LDK/3階) | |||||||
![]() | 7.7万円 5,000円 | なし なし | 1LDK 35.04m2 | 新築 | 京都市東西線 東野駅(京都) 徒歩13分 京阪電気鉄道京津線 京阪山科駅 徒歩22分 京都府京都市山科区西野大鳥井町 | 詳細を見る | |









