賃貸アパート
CASA DEL RIOの賃貸物件情報(1LDK/2階)
| 家賃 | 管理費等 | 敷金 | 礼金 | 間取り | 専有面積 |
|---|---|---|---|---|---|
| 6.2万円 | 3,000円 | なし | 6.2万円 | 1LDK | 42.36m2 |
入居決定でお祝い金最大100,000円
- 保証金
- -
- 償却・敷引
- -
- 築年数
- 築11年
- 所在階
- 2階
- 向き
- 南
- 交通
- 所在地
- 宮城県仙台市宮城野区福田町
CASA DEL RIO
[地図を表示]
Point
仙台市に3店舗、黒川郡大和町に1店舗を構えており、様々なエリアのお部屋探しが可能!オンライン内見も可能です!お気軽にお問い合わせください♪
提供:リロの賃貸 (株)進和商事本店(SUUMO経由)

詳細情報 CASA DEL RIO
物件紹介
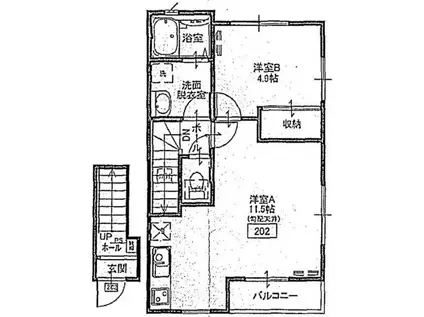
このお部屋は2階以上に位置しているので、通行人や周囲の住人からの視線が気になりにくく、防犯面でも安心。インターホンにはTVモニタもついているため、相手の顔を確認してから来客対応することができます。
人気の南向き・フローリングのお部屋。角部屋でもあるため、周囲の居住者の生活音も気になりにくい場所です。バス・トイレ別の仕様で、のんびりお風呂タイムも楽しめます。
通信設備面ではBSアンテナがありますので、おうち時間も充実するでしょう(別途工事、契約料が必要な場合あり)。
人気の南向き・フローリングのお部屋。角部屋でもあるため、周囲の居住者の生活音も気になりにくい場所です。バス・トイレ別の仕様で、のんびりお風呂タイムも楽しめます。
通信設備面ではBSアンテナがありますので、おうち時間も充実するでしょう(別途工事、契約料が必要な場合あり)。
お金・契約の情報
※「-」と表示されているものは、実際は料金が発生するものもございます。詳細はお問い合わせください。
| 家賃 | 6.2万円 | 管理費・共益費 | 3,000円 |
|---|---|---|---|
| 敷金 | なし | 礼金 | 6.2万円 |
| 入居決定でお祝い金最大100,000円 | |||
| 保証金 | - | 償却・敷引 | - |
| 住宅保険料 | - | 更新料 | - |
| 保証会社利用 | 利用可 | 保証会社名 | - |
| 保証会社費用 | - | 保証会社備考 | 保証会社利用可 ジェイリース(株):初回保証料は月額総賃料の50%、毎月保証料950円 |
| 契約形態 | - | 契約期間 | - |
| 入居・引渡期間 | - | 現況 | - |
| 入居可能条件 | 事務所可 | ||
| 契約備考 | ※初期費用についてはお問い合わせください。※現況優先※駐車場2台可(2台め3,000円)※社宅可/事務所使用可/SOHO使用可/二人入居可 合計8.96万円(内訳:エアコンクリーニング費用 14520円税込 ハウスクリーニング 75020円税込) 1LDK 二人入居可/事務所利用相談 普通借家2年 損保【2万円2年】 バストイレ別、バルコニー、エアコン、ガスコンロ対応、フローリング、TVインターホン、室内洗濯置、シューズボックス、南向き、追焚機能浴室、角住戸、温水洗浄便座、洗面所独立、2口コンロ、2面採光、最上階、敷金不要、照明付、二人入居相談、全居室フローリング、浴室に窓、事務所相談、雨戸、全室2面採光、プロパンガス、BS、礼金1ヶ月、保証会社利用可、IT重説対応物件、初期費用カード決済可 入居日:'26年4月中旬 | ||
部屋の情報
| 間取り | 1LDK | 専有面積 | 42.36m2 |
|---|---|---|---|
| 所在階 / 向き | 2階 / 南 | バルコニー面積 | - |
| 水道 / ガス | - | ||
| 設備 | バス・トイレ別、2階以上、テレビドアホン、追い焚き、エアコン、温水洗浄便座、南向き、角部屋、バルコニー、フローリング、洗髪洗面化粧台、2口コンロ、コンロ:ガス、BSアンテナ、洗濯機:室内 | ||
| 当社物件ID | 160375738 | ||
建物の情報
| 建物名 | CASA DEL RIO | ||
|---|---|---|---|
| 所在地 | 宮城県仙台市宮城野区福田町 | ||
| 交通 | - | ||
| 階数 | 2階建 | 総戸数 | 4戸 |
| 築年月 | 2015年04月 / 築11年 | エレベーター | - |
| 駐車場 | 空有 5500円 | バイク置き場 | - |
| 駐輪場 | - | 管理人/管理会社 | - |
| 周辺環境 | その他 西友高砂駅前店(スーパー)まで1504m その他 ファミリーマートみやぎ福田町店(コンビニ)まで334m その他 ドラッグヤマザワ高砂店(ドラッグストア)まで1438m その他 仙台福田町郵便局(郵便局)まで595m その他 杜の都信用金庫福田町支店(銀行)まで538m その他 ほっともっと仙台福田町店(飲食店)まで792m | ||
| 建物種別 | アパート | 建物構造 | 木造 |
この部屋の取扱い不動産会社
| 会社名 | リロの賃貸 (株)進和商事本店(SUUMO経由) | ||
|---|---|---|---|
| 所在地 | 宮城県仙台市青葉区昭和町 3-40 シーアイマンション北仙台1階 | 交通 | - |
| 営業時間 | 10:00~18:30 | 定休日 | 水曜日 |
| 免許番号 | 宮城県知事2649 | 取引態様 | 仲介 |
| 不動産会社管理番号 | 100487759067 | 当社管理番号 | 89 |
| 所属団体 | (公社)宮城県宅地建物取引業協会会員 | ||
| 公正取引協議会 | 東北地区不動産公正取引協議会加盟 | ||
| 取扱い物件情報 | 物件詳細へ | ||
※各種情報と現状に差異がある場合は、現状優先となります。問い合わせをすることで、より詳しい条件、情報を確認する事ができます。
提供:リロの賃貸 (株)進和商事本店(SUUMO経由)
この物件が気になったら掲載期限まであと10日
CASA DEL RIOに条件(家賃・エリア)が近い物件一覧
| 写真 | 家賃 管理費等 | 敷金 礼金 | 間取り 専有面積 | 築年数 | 最寄り駅 所在地 | キープ | 詳細 |
|---|---|---|---|---|---|---|---|
アパート PREMORY名取駅前 A(1LDK/1階) | |||||||
![]() | 6.4万円 3,000円 | なし なし | 1LDK 29.12m2 | 築1年 | JR東北本線 名取駅 徒歩3分 仙台空港鉄道 杜せきのした駅 徒歩22分 JR東北本線 南仙台駅 徒歩44分 宮城県名取市手倉田八幡 | 詳細を見る | |
アパート メゾン・アンソレイエ(1K/1階) | |||||||
![]() | 6.2万円 4,000円 | 6.2万円 なし | 1K 33.86m2 | 築1年 | JR東北本線 名取駅 徒歩13分 仙台空港鉄道 杜せきのした駅 徒歩14分 仙台空港鉄道 美田園駅 徒歩36分 宮城県名取市増田 | 詳細を見る | |
アパート HORIZON HILLS 田子南(1LDK/3階) | |||||||
![]() | 7.3万円 なし | なし なし | 1LDK 33.01m2 | 築1年 | JR仙石線 福田町駅 徒歩7分 JR仙石線 陸前高砂駅 徒歩21分 JR仙石線 小鶴新田駅 徒歩29分 宮城県仙台市宮城野区田子 | 詳細を見る | |
アパート イリアス(2LDK/2階) | |||||||
![]() | 9万円 4,000円 | 9万円 なし | 2LDK 53.8m2 | 築1年 | JR常磐線 南仙台駅 徒歩17分 仙台空港鉄道 名取駅 徒歩26分 宮城県名取市上余田市坪 | 詳細を見る | |
アパート OHML2 松島(ワンルーム/1階) | |||||||
![]() | 4.1万円 6,000円 | なし 4.1万円 | ワンルーム 37.95m2 | 築54年 | JR仙石線 陸前浜田駅 徒歩8分 宮城県宮城郡利府町赤沼中倉 | 詳細を見る | |
アパート ハーモニーテラス新田7(1K/2階) | |||||||
![]() | 5.3万円 4,000円 | なし なし | 1K 20.08m2 | 築1年 | JR東北本線 東仙台駅 徒歩5分 JR仙石線 苦竹駅 徒歩14分 JR仙石線 小鶴新田駅 徒歩17分 宮城県仙台市宮城野区新田 | 詳細を見る | |
アパート ポプラール(2K/1階) | |||||||
![]() | 5万円 1,700円 | なし なし | 2K 42.77m2 | 築23年 | JR仙石線 下馬駅 徒歩34分 JR東北本線 塩釜駅 徒歩42分 宮城県多賀城市大代 | 詳細を見る | |
アパート サニーライフ笠神(2DK/2階) | |||||||
![]() | 4.1万円 なし | 4.1万円 4.1万円 | 2DK 43m2 | 築33年 | 仙石線 下馬駅 徒歩26分 宮城県多賀城市笠神3丁目 | 詳細を見る | |









