賃貸マンション
エルミタージュ安芸の賃貸物件情報(1K/6階)
| 家賃 | 管理費等 | 敷金 | 礼金 | 間取り | 専有面積 |
|---|---|---|---|---|---|
| 5万円 | 5,000円 | 10万円 | 5万円 | 1K | 21.56m2 |
入居決定でお祝い金最大100,000円
- 保証金
- -
- 償却・敷引
- -
- 築年数
- 築25年
- 所在階
- 6階
- 向き
- 南
Point
動画をよく見る・ゲームをよくやる方におススメ!携帯スマホの容量が気にならない◎
提供:オールハウス(株)十日市店(SUUMO経由)

詳細情報 エルミタージュ安芸
物件紹介
エルミタージュ安芸は広島電鉄本線広島駅駅から徒歩16分にあるマンションです。
このお部屋は2階以上に位置しているので、通行人や周囲の住人からの視線が気になりにくく、防犯面でも安心。建物のエントランスはオートロックがついており、インターホンにはTVモニタもついているため、相手の顔を確認してから来客対応することができます。
人気の南向き・フローリングのお部屋。角部屋でもあるため、周囲の居住者の生活音も気になりにくい場所です。バス・トイレ別の仕様で、のんびりお風呂タイムも楽しめます。
通信設備面では、インターネットが無料で使えるので、月々の出費を抑えられるのも魅力です(別途工事等が必要な場合あり)。
建物にはエレベーターがついているので、重い荷物があっても安心。共用部には宅配ボックスが設定されているので、不在の時にも荷物を受け取ることができます。
このお部屋は2階以上に位置しているので、通行人や周囲の住人からの視線が気になりにくく、防犯面でも安心。建物のエントランスはオートロックがついており、インターホンにはTVモニタもついているため、相手の顔を確認してから来客対応することができます。
人気の南向き・フローリングのお部屋。角部屋でもあるため、周囲の居住者の生活音も気になりにくい場所です。バス・トイレ別の仕様で、のんびりお風呂タイムも楽しめます。
通信設備面では、インターネットが無料で使えるので、月々の出費を抑えられるのも魅力です(別途工事等が必要な場合あり)。
建物にはエレベーターがついているので、重い荷物があっても安心。共用部には宅配ボックスが設定されているので、不在の時にも荷物を受け取ることができます。
お金・契約の情報
※「-」と表示されているものは、実際は料金が発生するものもございます。詳細はお問い合わせください。
| 家賃 | 5万円 | 管理費・共益費 | 5,000円 |
|---|---|---|---|
| 敷金 | 10万円 | 礼金 | 5万円 |
| 入居決定でお祝い金最大100,000円 | |||
| 保証金 | - | 償却・敷引 | - |
| 住宅保険料 | - | 更新料 | - |
| 保証会社利用 | 必須 | 保証会社名 | - |
| 保証会社費用 | - | 保証会社備考 | 保証会社利用必 株式会社ナップ利用必須 初回:家賃総額100%、更新:10,000円/年、引落の場合月額550円 |
| 契約形態 | - | 契約期間 | - |
| 入居・引渡期間 | 相談 | 現況 | - |
| 契約備考 | 短期解約違約金有1ヵ月(1年未満) 安心入居サポート(2年):16500円/初回、室内抗菌コート:25000円/初回、初期消火剤:9900円/初回ペット飼育の場合礼金+1ヶ月 1K 損保【1.2万円1年】 バストイレ別、バルコニー、エアコン、ガスコンロ対応、フローリング、オートロック、室内洗濯置、シューズボックス、エレベーター、洗面所独立、駐輪場、2沿線利用可、ネット使用料不要、2駅利用可、3駅以上利用可、3沿線以上利用可、IT重説対応物件 | ||
部屋の情報
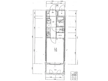
| 間取り | 1K | 専有面積 | 21.56m2 |
|---|---|---|---|
| 所在階 / 向き | 6階 / 南 | バルコニー面積 | - |
| 水道 / ガス | - | ||
| 設備 | バス・トイレ別、2階以上、オートロック、インターネット対応、エアコン、エレベーター、南向き、バルコニー、フローリング、洗髪洗面化粧台、コンロ:ガス、インターネット使用料無料、洗濯機:室内 | ||
| 当社物件ID | 20173555 | ||
建物の情報
| 建物名 | エルミタージュ安芸 | ||
|---|---|---|---|
| 所在地 | 広島県広島市南区南蟹屋 | ||
| 交通 | 広島電鉄本線 広島駅駅 徒歩16分 JR呉線 天神川駅 徒歩17分 JR芸備線 広島駅 徒歩18分 | ||
| 階数 | 13階建 | 総戸数 | - |
| 築年月 | 2001年03月 / 築25年 | エレベーター | あり |
| 駐車場 | なし | バイク置き場 | - |
| 駐輪場 | あり | 管理人/管理会社 | - |
| 周辺環境 | その他 セブン-イレブン 広島南蟹屋店(コンビニ)まで79m その他 フレスタ 東雲店(スーパー)まで971m その他 広島大学病院(病院)まで1647m | ||
| 建物種別 | マンション | 建物構造 | RC(鉄筋コンクリート) |
この部屋の取扱い不動産会社
| 会社名 | オールハウス(株)大町店(SUUMO経由) | ||
|---|---|---|---|
| 所在地 | 広島県広島市安佐南区大町東2-14-23 | 交通 | - |
| 営業時間 | 9:00~18:00 | 定休日 | 無し |
| 免許番号 | 国土交通大臣9975 | 取引態様 | 仲介 |
| 不動産会社管理番号 | 100482372110 | 当社管理番号 | 89 |
| 所属団体 | (公社)広島県宅地建物取引業協会会員 | ||
| 公正取引協議会 | 中国地区不動産公正取引協議会加盟 | ||
| 取扱い物件情報 | 物件詳細へ | ||
※各種情報と現状に差異がある場合は、現状優先となります。問い合わせをすることで、より詳しい条件、情報を確認する事ができます。
提供:オールハウス(株)大町店(SUUMO経由)
この物件が気になったら掲載期限まであと10日
エルミタージュ安芸に条件(家賃・エリア)が近い物件一覧
| 写真 | 家賃 管理費等 | 敷金 礼金 | 間取り 専有面積 | 築年数 | 最寄り駅 所在地 | キープ | 詳細 |
|---|---|---|---|---|---|---|---|
タウンハウス メゾン・カトルリベー(3LDK) | |||||||
![]() | 7.8万円 なし | 23.4万円 7.8万円 | 3LDK 69.56m2 | 築39年 | 芸備線 矢賀駅 徒歩21分 呉線 天神川駅 徒歩30分 広島県広島市東区温品1丁目 | 詳細を見る | |
一戸建て 芸備線 矢賀駅 徒歩5分 築63年(3SLDK) | |||||||
![]() | 8万円 なし | 24万円 8万円 | 3SLDK 88.88m2 | 築63年 | 芸備線 矢賀駅 徒歩5分 山陽本線 天神川駅 徒歩21分 広島県広島市東区矢賀2丁目 | 詳細を見る | |
一戸建て 芸備線 矢賀駅 徒歩23分 築53年(2DK) | |||||||
![]() | 5万円 なし | 15万円 5万円 | 2DK 45.54m2 | 築53年 | 芸備線 矢賀駅 徒歩23分 山陽本線 天神川駅 徒歩28分 広島県広島市東区温品3丁目 | 詳細を見る | |
一戸建て 芸備線 矢賀駅 徒歩4分 築35年(2LDK) | |||||||
![]() | 7.8万円 なし | 7.8万円 7.8万円 | 2LDK 59.84m2 | 築35年 | 芸備線 矢賀駅 徒歩4分 呉線 天神川駅 徒歩16分 広島県広島市東区矢賀4丁目 | 詳細を見る | |
一戸建て 芸備線 矢賀駅 徒歩20分 築57年(3DK) | |||||||
![]() | 7.3万円 なし | 21.9万円 なし | 3DK 56.3m2 | 築57年 | 芸備線 矢賀駅 徒歩20分 呉線 天神川駅 徒歩28分 広島県広島市東区中山西1丁目 | 詳細を見る | |





