賃貸マンション
クリオ戸田公園壱番館の賃貸物件情報(3LDK/3階)
| 家賃 | 管理費等 | 敷金 | 礼金 | 間取り | 専有面積 |
|---|---|---|---|---|---|
| 15万円 | 5,000円 | 15万円 | 15万円 | 3LDK | 61.25m2 |
入居決定でお祝い金最大100,000円
- 保証金
- -
- 償却・敷引
- -
- 築年数
- 築29年
- 所在階
- 3階
- 向き
- 東
Point
広々快適3LDKライフ!東向きの陽当たり良好なお部屋です。24時間ゴミ出し可能、宅配ボックス、分譲賃貸、クリオマンション、ホームセンターやコンビニが近くにあります。
提供:(株)三伸(SUUMO経由)

詳細情報 クリオ戸田公園壱番館
物件紹介
クリオ戸田公園壱番館はJR埼京線戸田公園駅から徒歩10分にあり、駅近で通勤通学に便利なマンションです。
このお部屋は2階以上に位置しているので通行人や周囲の住人からの視線が気になりにくく、建物のエントランスはオートロックがついているので防犯性が高くなっています。
フローリングのお部屋なのでお掃除もラクラク。キッチンはシステムキッチン仕様になっていますので、お料理好きの方にもぴったり。また、バス・トイレは別で、のんびりお風呂タイムも楽しめるでしょう。
建物にはエレベーターがついているので、重い荷物があっても安心。共用部には宅配ボックスが設定されているので、不在の時にも荷物を受け取ることができます。
このお部屋は2階以上に位置しているので通行人や周囲の住人からの視線が気になりにくく、建物のエントランスはオートロックがついているので防犯性が高くなっています。
フローリングのお部屋なのでお掃除もラクラク。キッチンはシステムキッチン仕様になっていますので、お料理好きの方にもぴったり。また、バス・トイレは別で、のんびりお風呂タイムも楽しめるでしょう。
建物にはエレベーターがついているので、重い荷物があっても安心。共用部には宅配ボックスが設定されているので、不在の時にも荷物を受け取ることができます。
お金・契約の情報
※「-」と表示されているものは、実際は料金が発生するものもございます。詳細はお問い合わせください。
| 家賃 | 15万円 | 管理費・共益費 | 5,000円 |
|---|---|---|---|
| 敷金 | 15万円 | 礼金 | 15万円 |
| 入居決定でお祝い金最大100,000円 | |||
| 保証金 | - | 償却・敷引 | - |
| 住宅保険料 | - | 更新料 | - |
| 保証会社利用 | 必須 | 保証会社名 | - |
| 保証会社費用 | - | 保証会社備考 | 保証会社利用必 イントラスト、初回保証料は賃料総額40%、1年更新:12000円、引落手数料300円(別途消費税)/月 |
| 契約形態 | - | 契約期間 | - |
| 入居・引渡期間 | 相談 | 現況 | - |
| 契約備考 | 3LDK 事務所利用不可/ルームシェア不可 普通借家2年 損保【要】 バストイレ別、バルコニー、エアコン、フローリング、オートロック、陽当り良好、シューズボックス、システムキッチン、追焚機能浴室、温水洗浄便座、エレベーター、洗面所独立、駐輪場、宅配ボックス、2面採光、3口以上コンロ、2面バルコニー、2沿線利用可、眺望良好、エアコン3台、平坦地、クロゼット3ヶ所、2駅利用可、24時間ゴミ出し可、敷地内ごみ置き場、来客用パーキング、玄関収納、通風良好 | ||
部屋の情報
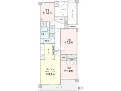
| 間取り | 3LDK | 専有面積 | 61.25m2 |
|---|---|---|---|
| 所在階 / 向き | 3階 / 東 | バルコニー面積 | - |
| 水道 / ガス | - | ||
| 設備 | バス・トイレ別、2階以上、オートロック、宅配ボックス、追い焚き、システムキッチン、エアコン、エレベーター、温水洗浄便座、バルコニー、フローリング、洗髪洗面化粧台、2口コンロ | ||
| 当社物件ID | 93706662 | ||
建物の情報
| 建物名 | クリオ戸田公園壱番館 | ||
|---|---|---|---|
| 所在地 | 埼玉県戸田市下前 | ||
| 交通 | JR埼京線 戸田公園駅 徒歩10分 JR埼京線 戸田駅(埼玉) 徒歩27分 JR京浜東北線 西川口駅 徒歩31分 | ||
| 階数 | 10階建 | 総戸数 | - |
| 築年月 | 1997年02月 / 築29年 | エレベーター | あり |
| 駐車場 | なし | バイク置き場 | - |
| 駐輪場 | あり | 管理人/管理会社 | - |
| 周辺環境 | その他 ローソン戸田川岸店(コンビニ)まで195m その他 スギ薬局戸田下前店(ドラッグストア)まで494m その他 ロイヤルホームセンター戸田公園(ホームセンター)まで348m その他 サミットストア戸田公園駅店(スーパー)まで764m その他 戸田市立喜沢中学校(中学校)まで986m その他 戸田市立戸田第二小学校(小学校)まで849m | ||
| 建物種別 | マンション | 建物構造 | RC(鉄筋コンクリート) |
この部屋の取扱い不動産会社
| 会社名 | (株)三伸(SUUMO経由) | ||
|---|---|---|---|
| 所在地 | 東京都豊島区巣鴨1-17-4 | 交通 | - |
| 営業時間 | 10:00~19:00 | 定休日 | 年中無休 |
| 免許番号 | 東京都知事18175 | 取引態様 | 仲介 |
| 不動産会社管理番号 | 100476967768 | 当社管理番号 | 89 |
| 所属団体 | (公社)東京都宅地建物取引業協会会員 | ||
| 公正取引協議会 | (公社)首都圏不動産公正取引協議会加盟 | ||
| 取扱い物件情報 | 物件詳細へ | ||
※各種情報と現状に差異がある場合は、現状優先となります。問い合わせをすることで、より詳しい条件、情報を確認する事ができます。
提供:(株)三伸(SUUMO経由)
この物件が気になったら掲載期限まであと11日
クリオ戸田公園壱番館に条件(家賃・エリア)が近い物件一覧
| 写真 | 家賃 管理費等 | 敷金 礼金 | 間取り 専有面積 | 築年数 | 最寄り駅 所在地 | キープ | 詳細 |
|---|---|---|---|---|---|---|---|
マンション シャルマン(1LDK/1階) | |||||||
![]() | 10.2万円 6,000円 | 10.2万円 10.2万円 | 1LDK 43.25m2 | 築5年 | JR京浜東北線 与野駅 徒歩15分 JR京浜東北線 北浦和駅 徒歩24分 JR京浜東北線 さいたま新都心駅 徒歩29分 埼玉県さいたま市浦和区上木崎 | 詳細を見る | |
マンション プレジオ川口ASIAN(1LDK/4階) | |||||||
![]() | 14.3万円 1.5万円 | なし 14.3万円 | 1LDK 39.33m2 | 新築 | JR京浜東北線 川口駅 徒歩13分 埼玉高速鉄道 川口元郷駅 徒歩14分 JR京浜東北線 西川口駅 徒歩27分 埼玉県川口市中青木 | 詳細を見る | |
マンション LIME RESIDENCE KAWAGUCHI イースト(3LDK/10階) | |||||||
![]() | 22.1万円 1.5万円 | 22.1万円 なし | 3LDK 64.71m2 | 築1年 | 埼玉高速鉄道 川口元郷駅 徒歩7分 JR京浜東北線 川口駅 徒歩15分 埼玉高速鉄道 南鳩ケ谷駅 徒歩35分 埼玉県川口市鳩ヶ谷本町 | 詳細を見る | |
アパート ビューテラス(3LDK/1階) | |||||||
![]() | 12万円 4,000円 | 12万円 なし | 3LDK 75.63m2 | 築24年 | JR埼京線 南与野駅 徒歩8分 JR埼京線 中浦和駅 徒歩19分 埼玉県さいたま市桜区 | 詳細を見る | |
マンション クレールメゾン(3DK/3階) | |||||||
![]() | 10.9万円 6,000円 | 10.9万円 なし | 3DK 51.84m2 | 築28年 | 京浜東北・根岸線 大宮駅(埼玉) 徒歩8分 埼玉県さいたま市大宮区大成町1丁目 | 詳細を見る | |
アパート フローラル グレイス(2LDK/3階) | |||||||
![]() | 11.4万円 3,500円 | なし 11.4万円 | 2LDK 60.26m2 | 新築 | 埼玉県さいたま市西区大字佐知川 | 詳細を見る | |
マンション セレーノ大宮D棟(2LDK/4階) | |||||||
![]() | 15.1万円 6,000円 | なし なし | 2LDK 65.2m2 | 築29年 | JR宇都宮線 土呂駅 徒歩7分 埼玉新都市交通伊奈線 加茂宮駅 徒歩19分 東武野田線 大宮公園駅 徒歩21分 埼玉県さいたま市北区土呂町 | 詳細を見る | |
マンション ベルエポック(3LDK/3階) | |||||||
![]() | 11万円 7,000円 | 11万円 11万円 | 3LDK 59m2 | 築36年 | 埼玉高速鉄道 川口元郷駅 徒歩7分 JR京浜東北線 川口駅 徒歩12分 埼玉高速鉄道 赤羽岩淵駅 徒歩18分 埼玉県川口市鳩ヶ谷本町 | 詳細を見る | |









