賃貸マンション
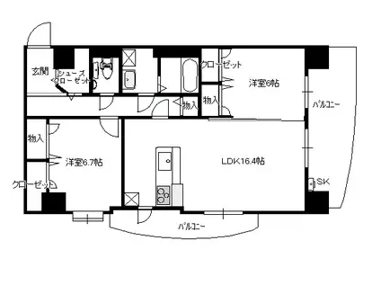
ヴィンチトーレ博多の賃貸物件情報(2LDK/2階)
| 家賃 | 管理費等 | 敷金 | 礼金 | 間取り | 専有面積 |
|---|---|---|---|---|---|
| 12.5万円 | 5,000円 | 25万円 | なし | 2LDK | 76.04m2 |
入居決定でお祝い金最大100,000円
- 保証金
- -
- 償却・敷引
- -
- 築年数
- 築9年
- 所在階
- 2階
- 向き
- 南
Point
駅チカのマンションです!広々76.04平米!LDKも15帖以上!買い物、通勤、通学もラクラク。近隣には保育園、ショッピングスポット等も多くあり、便利な環境。箱崎宮や箱崎商店街も徒歩圏内です。
提供:(株)大洋不動産(SUUMO経由)

詳細情報 ヴィンチトーレ博多
物件紹介
ヴィンチトーレ博多はJR鹿児島本線箱崎駅から徒歩5分にあり、駅近で通勤通学に便利なマンションです。
このお部屋は2階以上に位置しているので、通行人や周囲の住人からの視線が気になりにくく、防犯面でも安心。建物のエントランスはオートロックがついており、インターホンにはTVモニタもついているため、相手の顔を確認してから来客対応することができます。
人気の南向き・フローリングのお部屋。角部屋でもあるため、周囲の居住者の生活音も気になりにくい場所です。キッチンはシステムキッチン仕様になっていますので、お料理好きの方にもぴったり。バス・トイレは別なので、のんびりお風呂タイムも楽しめるでしょう。また、雨の日でも浴室乾燥機を使えば、お洗濯も問題ありません。
通信設備面では、インターネットが無料で使えるので、月々の出費を抑えられるのも魅力です(別途工事等が必要な場合あり)。
建物にはエレベーターがついているので、重い荷物があっても安心。共用部には宅配ボックスが設定されているので、不在の時にも荷物を受け取ることができます。
このお部屋は2階以上に位置しているので、通行人や周囲の住人からの視線が気になりにくく、防犯面でも安心。建物のエントランスはオートロックがついており、インターホンにはTVモニタもついているため、相手の顔を確認してから来客対応することができます。
人気の南向き・フローリングのお部屋。角部屋でもあるため、周囲の居住者の生活音も気になりにくい場所です。キッチンはシステムキッチン仕様になっていますので、お料理好きの方にもぴったり。バス・トイレは別なので、のんびりお風呂タイムも楽しめるでしょう。また、雨の日でも浴室乾燥機を使えば、お洗濯も問題ありません。
通信設備面では、インターネットが無料で使えるので、月々の出費を抑えられるのも魅力です(別途工事等が必要な場合あり)。
建物にはエレベーターがついているので、重い荷物があっても安心。共用部には宅配ボックスが設定されているので、不在の時にも荷物を受け取ることができます。
お金・契約の情報
※「-」と表示されているものは、実際は料金が発生するものもございます。詳細はお問い合わせください。
| 家賃 | 12.5万円 | 管理費・共益費 | 5,000円 |
|---|---|---|---|
| 敷金 | 25万円 | 礼金 | なし |
| 入居決定でお祝い金最大100,000円 | |||
| 保証金 | - | 償却・敷引 | - |
| 住宅保険料 | - | 更新料 | - |
| 保証会社利用 | 必須 | 保証会社名 | - |
| 保証会社費用 | - | 保証会社備考 | 保証会社利用必 月額の80% |
| 契約形態 | - | 契約期間 | - |
| 入居・引渡期間 | 相談 | 現況 | - |
| 契約備考 | 巡回管理/~その他費用~◆毎月町費 300円◆毎月くらしーど24 550円◆毎月保険料 1000円◆毎月水道料 実費◆鍵交換代 19800円◆消毒料 16500円◆消火剤 6600円◆毎月口座引落し手数料 110円)◆保証料:月額総支払額の80%※保証人は必須です※写真、間取図面は現地と異なる場合があります。現地優先となります 2LDK 単身者可/事務所利用不可 普通借家2年 損保【要】 バストイレ別、エアコン、ガスコンロ対応、シャワー付洗面台、TVインターホン、浴室乾燥機、オートロック、室内洗濯置、陽当り良好、システムキッチン、南向き、追焚機能浴室、角住戸、温水洗浄便座、脱衣所、エレベーター、洗面所独立、駐輪場、宅配ボックス、外壁タイル張り、礼金不要、対面式キッチン、防犯カメラ、全居室洋室、バイク置場、南西角住戸、全居室フローリング、2沿線利用可、LDK15畳以上、駅まで平坦、ネット使用料不要、キッチンに窓、浄水器、敷金2ヶ月、眺望良好、トランクルーム、ダブルロックキー、24時間換気システム、複層ガラス、平坦地、スロップシンク、駅前、駅徒歩5分以内、バス停徒歩3分以内、間口10m以上、敷地内ごみ置き場、当社管理物件、プロパンガス、三面鏡付洗面化粧台、ワイドバルコニー、室内物干機、シューズWIC、高速ネット対応、内装リフォーム後渡、通風良好 | ||
部屋の情報
| 間取り | 2LDK | 専有面積 | 76.04m2 |
|---|---|---|---|
| 所在階 / 向き | 2階 / 南 | バルコニー面積 | - |
| 水道 / ガス | - | ||
| 設備 | バス・トイレ別、2階以上、オートロック、テレビドアホン、宅配ボックス、浴室乾燥機、追い焚き、インターネット対応、システムキッチン、エアコン、エレベーター、温水洗浄便座、南向き、角部屋、バルコニー、フローリング、トランクルーム、洗髪洗面化粧台、コンロ:ガス、インターネット使用料無料、洗濯機:室内 | ||
| 当社物件ID | 21522440 | ||
建物の情報
| 建物名 | ヴィンチトーレ博多 | ||
|---|---|---|---|
| 所在地 | 福岡県福岡市東区筥松 | ||
| 交通 | JR鹿児島本線 箱崎駅 徒歩5分 地下鉄箱崎線 箱崎九大前駅 徒歩11分 地下鉄箱崎線 箱崎宮前駅 徒歩15分 | ||
| 階数 | 10階建 | 総戸数 | - |
| 築年月 | 2017年02月 / 築9年 | エレベーター | あり |
| 駐車場 | なし | バイク置き場 | あり |
| 駐輪場 | あり | 管理人/管理会社 | - |
| 周辺環境 | その他 ゆめマート筥松(スーパー)まで387m その他 ドラッグイレブンJR箱崎駅店(ドラッグストア)まで255m その他 ファミリーマートJR箱崎駅店(コンビニ)まで261m その他 業務スーパー箱崎駅店(スーパー)まで199m その他 福岡市立筥松小学校(小学校)まで734m その他 西松屋BOXタウン箱崎店(ショッピングセンター)まで1312m | ||
| 建物種別 | マンション | 建物構造 | RC(鉄筋コンクリート) |
この部屋の取扱い不動産会社
| 会社名 | (株)大洋不動産(SUUMO経由) | ||
|---|---|---|---|
| 所在地 | 福岡県福岡市東区箱崎3-7-6 | 交通 | - |
| 営業時間 | 9:00~18:00(祝日10:00~18:00) | 定休日 | 日曜日、正月、GW、盆 |
| 免許番号 | 福岡県知事14208 | 取引態様 | 仲介 |
| 不動産会社管理番号 | 100391725265 | 当社管理番号 | 89 |
| 所属団体 | (公社)福岡県宅地建物取引業協会会員 | ||
| 公正取引協議会 | (一社)九州不動産公正取引協議会加盟 | ||
| 取扱い物件情報 | 物件詳細へ | ||
※各種情報と現状に差異がある場合は、現状優先となります。問い合わせをすることで、より詳しい条件、情報を確認する事ができます。
提供:(株)大洋不動産(SUUMO経由)
この物件が気になったら掲載期限まであと8日
ヴィンチトーレ博多に条件(家賃・エリア)が近い物件一覧
| 写真 | 家賃 管理費等 | 敷金 礼金 | 間取り 専有面積 | 築年数 | 最寄り駅 所在地 | キープ | 詳細 |
|---|---|---|---|---|---|---|---|
アパート D-ROOM白木原(1LDK/1階) | |||||||
![]() | 8.4万円 6,000円 | なし 16.8万円 | 1LDK 44.21m2 | 築8年 | 西鉄天神大牟田線 下大利駅 徒歩17分 福岡県大野城市 | 詳細を見る | |
アパート リーベンスグランデ(1LDK/1階) | |||||||
![]() | 7.95万円 3,000円 | なし 7.95万円 | 1LDK 40.46m2 | 新築 | 西鉄天神大牟田線 下大利駅 徒歩5分 鹿児島本線 水城駅 徒歩9分 鹿児島本線 大野城駅 徒歩12分 福岡県大野城市下大利1丁目 | 詳細を見る | |
マンション コンフォルト春日西Ⅱ(1LDK/1階) | |||||||
![]() | 7.7万円 5,000円 | 7.7万円 7.7万円 | 1LDK 41.6m2 | 築1年 | 福岡県春日市 | 詳細を見る | |
マンション シグレア下大利(3LDK/5階) | |||||||
![]() | 14万円 6,000円 | なし 28万円 | 3LDK 70.08m2 | 新築 | 西鉄天神大牟田線 下大利駅 徒歩5分 JR鹿児島本線 水城駅 徒歩10分 福岡県大野城市下大利 | 詳細を見る | |
アパート カーサ・はなみずき(2LDK/2階) | |||||||
![]() | 9.25万円 4,000円 | 9.25万円 なし | 2LDK 58.15m2 | 築1年 | 鹿児島本線 大野城駅 徒歩26分 西鉄天神大牟田線 下大利駅 徒歩28分 福岡県大野城市大城3丁目 | 詳細を見る | |
マンション プレジデント春日(3LDK/2階) | |||||||
![]() | 9.4万円 3,500円 | なし 18.8万円 | 3LDK 57.02m2 | 築38年 | 鹿児島本線 春日駅(福岡) 徒歩4分 西鉄天神大牟田線 春日原駅 徒歩4分 鹿児島本線 南福岡駅 徒歩19分 福岡県春日市春日原北町4丁目 | 詳細を見る | |
マンション クレールマノワール(2LDK/1階) | |||||||
![]() | 7.5万円 3,000円 | なし 15万円 | 2LDK 50.63m2 | 築28年 | 西鉄天神大牟田線 白木原駅 徒歩6分 鹿児島本線 大野城駅 徒歩12分 西鉄天神大牟田線 春日原駅 徒歩12分 福岡県大野城市 | 詳細を見る | |








