賃貸マンション
ブランシエスタ西馬込の賃貸物件情報(1LDK/6階)
| 家賃 | 管理費等 | 敷金 | 礼金 | 間取り | 専有面積 |
|---|---|---|---|---|---|
| 20.7万円 | 1.8万円 | 20.7万円 | なし | 1LDK | 44.56m2 |
入居決定でお祝い金最大100,000円
Point
★☆川崎の賃貸はアパマンショップ川崎北口店まで!☆★
提供:アパマンショップ渋谷道玄坂店

詳細情報 ブランシエスタ西馬込
物件紹介
ブランシエスタ西馬込は東京都浅草線西馬込駅から徒歩12分にあるマンションです。
このお部屋は2階以上に位置しているので、通行人や周囲の住人からの視線が気になりにくく、防犯面でも安心。建物のエントランスはオートロックがついており、インターホンにはTVモニタもついているため、相手の顔を確認してから来客対応することができます。
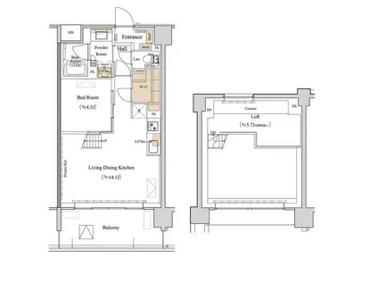
人気の南向き・フローリングのお部屋。室内にはウォークインクローゼットとロフトがありますので、たくさんの荷物も効率的に収納ができ、お部屋のアレンジも自在です。キッチンはシステムキッチン仕様になっていますので、お料理好きの方にもぴったり。バス・トイレは別なので、のんびりお風呂タイムも楽しめるでしょう。また、雨の日でも浴室乾燥機を使えば、お洗濯も問題ありません。
通信設備面では、インターネットが無料で使えるので、月々の出費を抑えられるのも魅力です。また、BSアンテナ・CSアンテナもありますので、おうち時間も充実するでしょう(別途工事、BS・CSの契約料等が必要な場合あり)。
建物にはエレベーターがついているので、重い荷物があっても安心。共用部には宅配ボックスが設定されているので、不在の時にも荷物を受け取ることができます。また、ペット飼育の相談ができますので、あなたの大切な家族の一員も快適に暮らせるか、ぜひ確認してみてください。
コンビニまで徒歩14分の場所にあり、日用品や食料品のお買い物にも便利です。
このお部屋は2階以上に位置しているので、通行人や周囲の住人からの視線が気になりにくく、防犯面でも安心。建物のエントランスはオートロックがついており、インターホンにはTVモニタもついているため、相手の顔を確認してから来客対応することができます。
人気の南向き・フローリングのお部屋。室内にはウォークインクローゼットとロフトがありますので、たくさんの荷物も効率的に収納ができ、お部屋のアレンジも自在です。キッチンはシステムキッチン仕様になっていますので、お料理好きの方にもぴったり。バス・トイレは別なので、のんびりお風呂タイムも楽しめるでしょう。また、雨の日でも浴室乾燥機を使えば、お洗濯も問題ありません。
通信設備面では、インターネットが無料で使えるので、月々の出費を抑えられるのも魅力です。また、BSアンテナ・CSアンテナもありますので、おうち時間も充実するでしょう(別途工事、BS・CSの契約料等が必要な場合あり)。
建物にはエレベーターがついているので、重い荷物があっても安心。共用部には宅配ボックスが設定されているので、不在の時にも荷物を受け取ることができます。また、ペット飼育の相談ができますので、あなたの大切な家族の一員も快適に暮らせるか、ぜひ確認してみてください。
コンビニまで徒歩14分の場所にあり、日用品や食料品のお買い物にも便利です。
お金・契約の情報
※「-」と表示されているものは、実際は料金が発生するものもございます。詳細はお問い合わせください。
| 家賃 | 20.7万円 | 管理費・共益費 | 1.8万円 |
|---|---|---|---|
| 敷金 | 20.7万円 | 礼金 | なし |
| 入居決定でお祝い金最大100,000円 | |||
| 保証金 | - | 償却・敷引 | - |
| 住宅保険料 | 2.4万円(2年) | 更新料 | - |
| 保証会社利用 | 必須 | 保証会社名 | その他 |
| 保証会社費用 | - | 保証会社備考 | 【収納代行】【新築プラン(2026年3月末まで)】初回保証料賃料共益費等20%、以後1年毎20% 月 |
| 契約形態 | - | 契約期間 | 2年 |
| 入居・引渡期間 | 相談 | 現況 | - |
| 入居可能条件 | ペット可 | ||
| 契約備考 | ペット:中型犬1匹+小型犬、猫で3匹まで敷金1ヵ月積増 、[退去時費用:退去時費用 56,100円 ※故意・過失等別途実費] | ||
部屋の情報
| 間取り | 1LDK | 専有面積 | 44.56m2 |
|---|---|---|---|
| 所在階 / 向き | 6階 / 南東 | バルコニー面積 | - |
| 水道 / ガス | ガス【都市】 | ||
| 設備 | バス・トイレ別、オートロック、テレビドアホン、宅配ボックス、浴室乾燥機、追い焚き、光ファイバー対応、システムキッチン、温水洗浄便座、フローリング、ロフトあり、CSアンテナ、BSアンテナ、インターネット使用料無料、洗濯機:室内 | ||
| 当社物件ID | 159787042 | ||
建物の情報
| 建物名 | ブランシエスタ西馬込 | ||
|---|---|---|---|
| 所在地 | 東京都大田区仲池上1丁目 | ||
| 交通 | 東京都浅草線 西馬込駅 徒歩12分 | ||
| 階数 | 7階建 | 総戸数 | 67戸 |
| 築年月 | 2025年01月 / 築1年 | エレベーター | - |
| 駐車場 | 空有 2.75万円/月 | バイク置き場 | あり |
| 駐輪場 | あり | 管理人/管理会社 | - |
| 周辺環境 | 病院 昭和大学病院 徒歩37分(2959m) その他 東京工業大学 徒歩36分(2807m) その他 東急ストア プレッセ田園調布店 徒歩43分(3398m) その他 大岡山駅 徒歩37分(2934m) その他 東急ストア 徒歩38分(3027m) その他 緑が丘駅 徒歩39分(3075m) その他 トップ 奥沢店 徒歩38分(3015m) その他 川崎下沼部郵便局 徒歩56分(4449m) | ||
| 建物種別 | マンション | 建物構造 | RC(鉄筋コンクリート) |
この部屋の取扱い不動産会社
| 会社名 | アパマンショップ川崎北口店 | ||
|---|---|---|---|
| 所在地 | 神奈川県川崎市川崎区駅前本町 12-1リバークビル1F | 交通 | 京浜東北・根岸線川崎から徒歩2分 |
| 営業時間 | 10:00〜19:00 | 定休日 | 水曜日 |
| 免許番号 | 神奈川県知事(10)13668 | 取引態様 | 仲介 |
| 不動産会社管理番号 | 111240728 | 当社管理番号 | 4 |
| 所属団体 | (公社)神奈川県宅地建物取引業協会 | ||
| 公正取引協議会 | (公社) 首都圏不動産公正取引協議会加盟 | ||
| 取扱い物件情報 | 物件詳細へ | ||
※各種情報と現状に差異がある場合は、現状優先となります。問い合わせをすることで、より詳しい条件、情報を確認する事ができます。
提供:アパマンショップ川崎北口店
この物件が気になったら掲載期限まであと10日
ブランシエスタ西馬込に条件(家賃・エリア)が近い物件一覧
| 写真 | 家賃 管理費等 | 敷金 礼金 | 間取り 専有面積 | 築年数 | 最寄り駅 所在地 | キープ | 詳細 |
|---|---|---|---|---|---|---|---|
マンション BRILLIA IST清澄白河(1K/5階) | |||||||
![]() | 13.7万円 1万円 | 13.7万円 13.7万円 | 1K 26.16m2 | 築8年 | 東京地下鉄半蔵門線 清澄白河駅 徒歩4分 東京都大江戸線 清澄白河駅 徒歩7分 東京都新宿線 菊川駅(東京) 徒歩10分 東京都江東区白河3丁目 | 詳細を見る | |
アパート フォレスタ世田谷(2LDK/2階) | |||||||
![]() | 18.5万円 1,000円 | 18.5万円 なし | 2LDK 47.7m2 | 築55年 | 東急池上線 雪が谷大塚駅 徒歩6分 東急東横線 田園調布駅 徒歩16分 東急目黒線 多摩川駅 徒歩16分 東京都世田谷区東玉川 | 詳細を見る | |
一戸建て 東京都新宿線 大島駅(東京) 徒歩7分 築76年(1DK) | |||||||
![]() | 15.8万円 1万円 | 15.8万円 15.8万円 | 1DK 27.91m2 | 築76年 | 東京都新宿線 大島駅(東京) 徒歩7分 東京都新宿線 西大島駅 徒歩7分 総武・中央緩行線 亀戸駅 徒歩11分 東京都江東区大島3丁目 | 詳細を見る | |
アパート 御殿山テラスⅡ(2LDK/1階) | |||||||
![]() | 23.9万円 3,000円 | 23.9万円 なし | 2LDK 57.6m2 | 築2年 | 山手線 大崎駅 徒歩8分 京浜急行電鉄本線 北品川駅 徒歩14分 東京都品川区北品川5丁目 | 詳細を見る | |
マンション リテラス馬込(1K/5階) | |||||||
![]() | 12.5万円 1.2万円 | なし なし | 1K 25.01m2 | 築6年 | 都営浅草線 馬込駅 徒歩3分 東急大井町線 荏原町駅 徒歩13分 JR埼京線 西大井駅 徒歩16分 東京都大田区中馬込 | 詳細を見る | |
マンション コンフォリア清澄白河サウス(1K/8階) | |||||||
![]() | 12.7万円 7,000円 | 12.7万円 なし | 1K 25.84m2 | 築20年 | 東京地下鉄半蔵門線 清澄白河駅 徒歩7分 東京都大江戸線 清澄白河駅 徒歩10分 東京都江東区三好3丁目 | 詳細を見る | |
マンション PLUMERIA BLANE プルメリアブラン(1LDK/1階) | |||||||
![]() | 14.9万円 3,000円 | 14.9万円 14.9万円 | 1LDK 48.99m2 | 築9年 | 京浜急行電鉄本線 大森町駅 徒歩5分 京浜急行電鉄本線 平和島駅 徒歩12分 東京都大田区大森西3丁目 | 詳細を見る | |







